Treppe

Treppe im Haus der Wissenschaftler in Lviv
Historische Treppe aus Naturstein
Raphael-Donner-Stiege aus Untersberger Marmor
Wendeltreppe auf dem Gelände der Kampnagelfabrik in Hamburg
( Foto:T. Meltzer)

Eine Treppe (süddt. und österr. Stiege) ist ein aus Stufen gebildeter Auf- oder Abgang, der es ermöglicht, Höhenunterschiede bequem und trittsicher zu überwinden. Das Verhältnis von Steigungshöhe zum Auftritt ist das (genormte) Steigungsverhältnis der Treppensteigung.

Eine Treppe besteht aus mindestens drei aufeinander folgenden Stufen.[1] Häufig sind auch Kombinationen aus Treppenläufen und Podest[2] (Treppenabsätzen) sowie, für die sichere Benutzung, Geländer als Absturzsicherung und ein Handlauf zum Festhalten.

Wortgebrauch

In Süddeutschland und Österreich wird im Allgemeinen der Ausdruck „Stiege“ für die Treppe verwendet. Als Treppe wird zumeist nur ein schmaler Holzaufstieg, aber auch eine Wendeltreppe bezeichnet. Andere umgangssprachliche Bezeichnungen von Treppen sind regional auch „Steige“ oder „Tritt“, im südwestdeutschen, insbesondere alemannischen Sprachraum „Staffel“. In der Seeschifffahrt spricht man in diesem Zusammenhang auch von „Niedergang“, der, vom Deck aus gesehen, die tiefer gelegenen Räume im Rumpf des Schiffes erschließt. Die Wissenschaft, die sich mit der Erforschung der Treppen befasst, heißt Scalalogie (lat. scala: „Treppe“, „Stufe“).

Funktionen

Treppe als Aufenthaltsort

Treppen und Treppenanlagen sind ein fester und wichtiger Bestandteil der Formensprache der Architektur weltweit. Die Funktion der Treppe ist nicht nur die des lotrechten Erschließungsbauteils, sie stellt auch ein wichtiges Gestaltungselement dar.

Außentreppen werden oft als Würdemotiv vor repräsentativen Gebäuden eingesetzt. Sie erhöhen das Gebäude, stellen es auf einen Sockel. Der Besucher wird beim Hinaufgehen erniedrigt, er steht niedriger als die Person, die am Ende der Treppe auf ihn wartet. Große Außentreppen sind als Aufenthaltsort beliebt, besonders bei Touristen (z. B. Basilique du Sacré-Cœur in Paris, Spanische Treppe in Rom).

Innentreppen weiten den Raum in die Vertikale und können so zu einem besonderen Blickfang werden. Sie sind wettergeschützt und oftmals aufwändiger gestaltet. In der Vergangenheit wurden Holzschnitzereien, Ornamente, Figurinen, verzierte Balustraden und Teppiche ergänzt, heute sind Treppen Objekte, die durch ihre Form, Materialität und Konstruktion auffallen. Besondere Innentreppen dienen dem Bauherren oder Besitzer auch als Statussymbol.

Treppenmotive

Seit dem Mittelalter sind in der Architektur funktionslose Treppen- oder Staffelgiebel bekannt; größere Bedeutung erlangten sie in der Spätgotik und im Barock. Treppenmotive sind stets rechtwinklig und kommen sowohl in der Mosaikkunst als auch als Web- oder Strickmuster vor, wobei Ähnlichkeiten zu Fischgrät- und Zickzackmustern existieren.

Geschichte

Urzeit

Einfache Treppe als Zugang eines Heiligen Hauses in Osttimor

Die Idee, durch Stufen Höhenunterschiede zu überwinden, kann auch bei Primaten beobachtet werden. An fast allen längerfristigen Siedlungsplätzen mit unterschiedlichen Höhenlagen können Treppen nachgewiesen werden. Funde von Baumstämmen mit stufenartigen Einkerbungen aus dem Neolithikum lassen auf eine Verwendung als Treppe (bzw. Leiter) schließen.

Frühe Hochkulturen

Zikkurat von Ur

Der früheste gestalterische Einsatz von Treppen ist in Göbekli Tepe etwa 10.000 Jahre v. Chr. nachweisbar und findet einen ersten belegten Höhepunkt in der Anlage von Zikkurats in Mesopotamien 6.000 Jahre v. Chr. Neben der reinen Erschließungsfunktion hat die Treppe hier jene Symbolkraft (Übergang von einer Ebene zur anderen; Aufstieg; Zugang zum Transzendenten; Verbindung zwischen Himmel und Erde; Prozessionsweg), die fortan bei fast allen sakralen oder repräsentativen Bauten zum Tragen kommt.

Bronzezeit

Bronzezeitliche Stiege in den Hallstätter Salzbergwerken
(etwa 1344 und 1343 v. Chr.)

Wohl die älteste erhaltene Holztreppe Europas datiert in die Bronzezeit.[3] Sie stammt aus dem prähistorischen Salzbergwerk von Hallstatt und ist komplett erhalten. Die Stiege wurde dendrochronologisch untersucht und konnte auf die Jahre 1344 und 1343 v. Chr. datiert werden. Die Treppenbreite von über 1 m erlaubte ein gleichzeitiges Benutzen in beiden Richtungen bzw. das Nebeneinandergehen von mehreren Menschen, wie es beim Tragen sehr schwerer Lasten erforderlich gewesen sein könnte. Die Stiege besteht prinzipiell aus drei Elementen: den beiden seitlichen Holmen, den Auftrittbrettern und den Distanzbrettern, die über und unter jedem Auftrittbrett in die seitlichen Holme eingelassen sind. Die beiden seitlichen Holme bilden die Wangen der Treppe. Sie bestehen aus Baumstämmen von 20 bis 35 cm Durchmesser. In diese ist je eine 6 cm breite und 8 cm tiefe Längsnut eingearbeitet. Die Auftrittbretter sind lediglich mit einem viereckigen Zapfen in den Wangen zu beiden Seiten in die Nut geschoben.

Die Treppe war durch diese Konstruktionsweise einfach zu bauen, zu transportieren und zu reparieren. Sie gehört zu jenen Spezialentwicklungen des bronzezeitlichen Bergbaus, die in dieser Form nur in Hallstatt belegt sind. Da der Bergdruck die erhaltene Stiege im Christian von Tuschwerk zu beschädigen drohte, war es notwendig, sie an ihrem Fundplatz abzubauen und umzusiedeln. Die Stiege wurde vor dem Abbau umfassend am Fundort dokumentiert. Dann wurde sie in über 60 Einzelteile zerlegt, wobei aufgrund der Enge des Bergwerks und der umgebenden Fundschichten die Stiegenwangen zersägt werden mussten. Die Teile wurden ins Naturhistorische Museum nach Wien gebracht, wo eine umfassende technische Aufnahme durchgeführt wurde. Darüber hinaus wurde sie unter anderem erneut dendrochronologisch untersucht und es wurde eine Computertomographie durchgeführt[4]. Da die Stiege für ihre Erhaltung sehr spezielle klimatische Bedingungen benötigt, wie sie im Hallstätter Salzberg herrschen, und sie zudem der Öffentlichkeit zugänglich sein sollte, wurde sie im Besucherbergwerk der Salzwelten Hallstatt neu aufgestellt. In einem eigens dafür angelegten Schauraum ist sie dort seit Frühjahr 2015 Teil der regulären Führungen. Zuvor war sie ausschließlich im Rahmen von Sonderführungen zu sehen.

Antike

Die Treppe als Würdemotiv: Tempel Maison Carrée in Nimes

Auch in der Antike wurden Treppen in der sakralen und repräsentativen Architektur als Würdemotiv eingesetzt. Griechische und römische Tempel stehen in der Regel auf mehrstufigen Sockeln. Die Akropolis in Athen erstieg man über eine Abfolge von Treppen.

Hauptsächlich unter funktionellen Gesichtspunkten entstanden die imposanten, treppenförmig angelegten Sitzreihen der Theater der griechischen Antike wie zum Beispiel in Delphi, Ephesus, Epidauros und Athen wie auch der Theater der römischen Antike. Die Doppelfunktion des Auf- und Abweges und des Sitzens findet sich zudem noch bei den Stadien.

Mittelalter

Turmtreppe im Caernarfon Castle, Wales (c1300)

Seit dem Mittelalter baute man zunehmend mehrgeschossig, wodurch der Treppe eine immer größere Bedeutung zukam. Das betraf besonders Bürger- und Handelshäuser, die im Spätmittelalter sogar mehrgeschossige Dachstühle als Lagerräume hatten.

Neuzeit

Im Barock wurden Treppen und Treppenhäuser in Schlössern äußerst prunkvoll ausgestattet und dienten zu Repräsentationszwecken. Beispiel: Treppenhaus von Balthasar Neumann in der Residenz in Würzburg.

Schwäbisch Hall: Freitreppe vor St. Michael

Dabei lassen sich bisweilen auch bautechnische Kuriositäten finden, zum Beispiel im Schloss Hartenfels in Torgau ist die außen angebrachte Wendeltreppe, der sogenannte Wendelstein, der einzige Zugang zu dem nächsten Geschoss für die gesamte Schlossanlage. Ähnlich exponiert ist der Wendelstein auf der Albrechtsburg in Meißen. Dort ist er allerdings nicht der einzige Zugang zu den oberen Geschossen.

Mit der Erweiterung der Bauaufgaben auf repräsentative öffentliche Gebäude wurde dieses Motiv auch für Theater, Rathäuser und so weiter übernommen.

Moderne

In der Moderne übernahm der Aufzug besonders bei Hochhäusern teilweise die Aufgaben der repräsentativen Vertikalerschließung.

Barrierefreiheit

Um allen Menschen eine uneingeschränkte Nutzung von Gebäuden zu ermöglichen, muss heute ein barrierefreier Zugang zu öffentlichen Gebäuden gegeben sein. Das bedeutet, dass der Eingang neben der Treppe auch über eine Rampe oder einen Aufzug möglich sein muss, damit auch Eltern mit Kinderwagen oder Rollstuhlfahrer Zugang haben.

Die Treppe in der Kunst

Begehung der Laurin-Treppe in Konstein
Begehung der von Friedrich Mielke gebauten Variante einer Laurin-Treppe

Häufig wird die Treppe auch in der Kunst thematisiert, beispielsweise in den Werken von M. C. Escher und Giovanni Battista Piranesi.

Die Potemkinsche Treppe (früher Richelieu-Treppe) in Odessa wurde durch eine Schlüsselszene in Sergei Eisensteins Film „Panzerkreuzer Potemkin“ berühmt.

Die von einem deutschen Künstler entworfene Laurin-Treppe (Sinustreppe) war Teil der von Rem Koolhaas kuratierten 14. Internationalen Architektur-Biennale Venedig (2014). Sie zeichnet sich durch eine stetige Änderung von Steigung (Stufenhöhe) und Auftritt (Stufentiefe) in Form einer Sinuskurve aus. Im ehemaligen Privathaus des Scalologen Friedrich Mielke in Konstein befindet sich der Nachbau einer Laurin-Treppe in Massivbauweise.

1912 schuf der damals 25-jährige Marcel Duchamp mit dem „Akt, eine Treppe herabsteigend Nr. 2“ eines der bekanntesten Bilder der Kunstgeschichte. Der Maler Gerhard Richter rezipierte Duchamps Meisterwerk mehrmals: so beispielsweise in dem 1965 entstandenen, fotorealistisch angelegten Ölgemälde Frau, die Treppe herabgehend (Woman Descending the Staircase) [5] und im Folgejahr mit Ema (Akt auf einer Treppe).[6]

Die Endlose Treppe ist eine Skulptur der Moderne im Zentrum der Stadt Ludwigshafen am Rhein. Sie wurde vom Schweizer Architekten, Künstler und Designer Max Bill im Jahr 1991 zum hundertsten Geburtstag des Philosophen Ernst Bloch aus nordamerikanischem Granit errichtet.

Auch in der Literatur ist das Thema präsent, so ist der Roman „ Die Strudlhofstiege oder Melzer und die Tiefe der Jahre“ das bekannteste und populärste Buch Heimito von Doderers. Die Strudlhofstiege im 9. Wiener Gemeindebezirk, Alsergrund, dient im Roman als wiederkehrender Handlungsort. Das Buch gilt als eines der bedeutendsten Werke der österreichischen Österreichische Literatur.

Begriffe im Treppenbau

  1. Treppenabsatz oder Treppenpodest
  2. Zwischenpodest
  3. unterer Treppenlauf
  4. oberer Treppenlauf
  5. Treppenloch: Ausschnitt für die Treppe in der Geschossdecke oder in einer Balkenlage
  6. Treppengeländer und Handlauf
  7. Treppenauge: Lichte Öffnung oder Luftraum, von Treppenläufen und Absätzen umschlossen und oft über mehrere Stockwerke durchgehend. Umgangssprachlich auch Treppenloch genannt.
  8. Austritt
  9. Antritt
  10. Lauflinie (auch Gehlinie): (gedachte) Linie, die den mittleren Weg angibt, auf dem die Benutzer dem Treppenlauf üblicherweise folgen; bei gewendelten Treppen meist dezentriert. Der Abstand der Lauflinie vom Handlauf beträgt meist etwa 45 cm. Freitreppen werden aber auf Grund ihrer Breite auch unabhängig vom Handlauf begangen. Die Lauflinie wird nach DIN 1356 (Bauzeichnungen) stets „unten“ mit einem Kreis beginnend und „oben“ mit einem Pfeil endend gezeichnet.

(Bezeichnungen unter Berücksichtigung der EN ISO 14122-3)

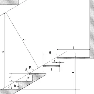
a. Stufe: Oberfläche, die betreten wird (nicht das Bauelement)
b. Setzstufe: (senkrechte) Oberfläche zum Abschluss der Treppe; Fehlt sie, muss gegebenenfalls der lichte Abstand zwischen je zwei Bauelementen kleiner als 11 cm (bei Kindern über 3 Jahren) oder gar kleiner als 8,5 cm (bei Kleinkindern) gewählt werden.
c. Freiraum: Mindestabstand der Steigungslinie von jedwedem Hindernis (im Winkel von 90° zur Steigungslinie)
d. Antrittskante: bei jeder Stufe die Kante zur nächsten darunter liegenden Stufe hin
e. lichte Durchgangshöhe: lotrechter Mindestabstand oberhalb der Steigungslinie bis zu den Unterkanten darüber liegender Bauteile. Wenn also zur Steigungslinie ein Hindernis den Abstand c hat, dann ist e das Maß zwischen dem Hindernis und der Steigungslinie in vertikaler Richtung, also senkrecht zum Fußboden. Es gilt:
g. Auftritt (englisch going): horizontaler Abstand zweier aufeinander folgender Antrittskanten
h. Stufenhöhe („Steigung“): Als Steigung einer Stufe wird im Bauwesen der vertikale Abstand zur nächsten darunter liegenden Stufe bezeichnet (z. B. „17cm“). Was außerhalb des Bauwesens als „Steigung“ bezeichnet wird, wird im Bauwesen Steigungsverhältnis genannt. Dieses ist bei Treppen der Quotient aus h und g und wird dimensionslos entweder implizit in cm (z. B. „17:29“) oder als Verhältniszahl (z. B. „1:1,7“) oder als Prozentwert (z. B. „59%“) angegeben (siehe → Treppensteigung).
H. Treppenhöhe
l. Podestlänge
P. Steigungslinie
r. Unterschneidung
t. Stufentiefe
α. Steigungswinkel: Winkel zwischen der Steigungslinie und deren Projektion auf die waagerechte Ebene
Anschlussbauteile
  • Anschlussbauteile
    • Antrittsstufe gelegentlich gesondert ausgeführte unterste Stufe einer Treppe (siehe → Treppenstufe)
    • Austrittsstufe (siehe Treppenstufe) in Material und Form meist entweder als normale Stufe oder als Teil des Podests ausgeführt
    • Treppensockel = Verkleidung der Fugen zwischen Treppe und Wand
    • Sockelleiste (a) = Leiste, die die Fuge zwischen Fußboden, Treppenstufe, Absatz oder Wandwange und Wandputz verdeckt. Auf den Absätzen und Wandwangen sind das lange Leisten. Bei Treppen ohne Wandwange sind es treppenartig angebrachte kurze Stufenleisten und Setzstufenleisten. Anstelle der Stufen und Setzstufenleisten können sogenannte Bischofsmützen eingebaut werden.
    • Bischofsmütze (b) = Verkleidung mit einer der Treppenneigung entsprechenden schrägen oberen Kante. Die Kanten sind durch unterschiedliche weitere kurze Kanten miteinander verbunden, so dass die Form einer Bischofsmütze entsteht.

Typologie

Treppen nach Lage und Funktion

Außenraum

Außentreppe am alten Campus in Frankfurt
  • Außentreppen sind alle Treppen außerhalb von Gebäuden. Da sie der Witterung ausgesetzt sind, ist besonders bei den Materialien auf Witterungsbeständigkeit zu achten. Des Weiteren ist zu beachten, dass die Treppenstufen zur Stufenkante hin geneigt sein sollten, damit Regenwasser schnell abfließen kann und Pfützen- und Eisbildung vermieden wird. Wegen der besonderen Rutschgefahr bei Regen müssen die Stufenkanten und Auftritte besonders rutschfest sein oder ausgestattet werden. Die Steigung von Außentreppen ist im Allgemeinen niedriger als bei Innentreppen. Gebräuchliche Steigungsverhältnisse sind (16/31), (15/33), (14/35) und (12/39).
  • Freitreppen befinden sich außerhalb des Gebäudes, aber an das Gebäude angebaut und sind nicht überdeckt. Diese Treppen führen meist zu einem Gebäudezugang.
  • Unter dem Begriff Gartentreppe sind alle Treppen im Garten zusammengefasst. Sie haben meist große Auftrittsbreiten und niedrige Stufenhöhen. Sie dienen zur Überwindung von Höhenunterschieden im Garten oder führen auf eine Terrasse oder zum Eingang auf der Gartenseite eines Gebäudes. Außer in Parks und Schlossgärten sind diese Treppen meist in einfacher Konstruktion.
  • Die Eingangstreppe führt direkt zum Eingang. Sie kann sowohl eine Freitreppe als auch eine überdachte Treppe sein. Je nach Gebäudetyp kann es sich dabei um sehr einfache Treppen als auch um reich verzierte aufwändige Repräsentationstreppen handeln. Wenn die Platzverhältnisse sehr beengt sind, kann die Eingangstreppe auch in das Gebäude eingezogen sein.
  • Die Hintertreppe dient einem Zu- und Ausgang an der Hinterseite eines Gebäudes, meistens für Personal und Lieferanten. Ihre Ausführung ist oft sehr einfach; sie führt zuweilen auch in den Keller.
  • Die Monumentaltreppe zeichnet sich dadurch aus, dass sie entweder extrem breite Treppenstufen hat oder dass sie enorm viele Treppenstufen besitzt – meist ohne Absätze. Beispiele sind: Die Monumentaltreppe „La Scala“ in Caltagirone, Sizilien, mit 142 Stufen. Die Monumentaltreppe in Mihintale, Sri Lanka, aus vier Treppenabsätzen bestehend mit insgesamt 1.840 Stufen.
  • Besonders flache Treppen im Außenraum werden als Rampentreppe oder Treppenrampe bezeichnet, sowie auch als Eselstreppe, Pferdetreppe und Reittreppe oder gelegentlich als Cordonata nach der bekannten Treppe in Rom, die wie eine Rampe geneigt ist, jedoch in regelmäßigen Abständen durch flache Stufen unterbrochen wird.

Innenraum

  • Als Innentreppe bezeichnet man alle Treppen, die sich im Innenraum eines Gebäudes befinden.
  • Eine Geschosstreppe verbindet zwei verschiedene Geschosse.
    • Eine Kellertreppe führt vom Hauseingang oder vom untersten ausgebauten Geschoss zum Keller und ist oft steiler als die Treppen zu den oberen Stockwerken. Bei älteren Gebäuden ist diese Treppe oft auf tragendem Baugrund ohne tragende Unterkonstruktion aufgebaut und führt oft durch einen sogenannten Kellerhals in einen Gewölbekeller.
    • Dachbodentreppen oder kurz Bodentreppen sind Treppen, die zum Dachboden, also zu Räumen im Dachraum führen, welche nicht ständig bewohnt werden. Meist werden einfache Treppenkonstruktionen verwendet (siehe Veränderbare Treppen), es kommen aber auch komfortablere Treppen zum Einsatz.
  • Als Ausgleichtreppe bezeichnet man die Treppen, die zum Ausgleich von Höhenunterschieden innerhalb eines Geschosses benötigt werden. Eine Differenztreppe ist eine Treppe mit nur wenigen Stufen, die geringe Höhendifferenzen miteinander verbindet.
  • Fluchttreppe
  • Das heutige deutsche Bauordnungsrecht unterscheidet notwendige Treppen, die zwingend vorhanden sein müssen und an die Auflagen geknüpft sind, sowie ggf. zusätzlich vorhandene nichtnotwendige Treppen, an die weniger strenge Auflagen geknüpft sind.
  • Eine Geheimtreppe ist eine der Öffentlichkeit nicht zugängliche Treppe. Es gibt sie häufig in alten Burgen und Schlössern. Sie dienten entweder der Fluchtmöglichkeit oder waren dafür ausgelegt, unerkannt in Gasträume zu kommen, um dort zu spionieren. Der Zugang zu diesen Treppen erfolgte oft über geheime unsichtbare Türen, sogenannte Tapetentüren.

Spezielle Treppen

Es gibt eine Vielzahl von besonderen Treppentypen für spezielle Anwendungsfälle. Diese sind in der Liste spezieller Treppen zusammengefasst.

Treppen nach Form

Übersicht

Treppen gibt es in unzähligen Formen. Als Draufsicht lässt sich die Form im Grundriss eines Gebäudes darstellen. Der Schnitt liefert in der Regel die dazugehörigen Angaben zur Konstruktion und zum Steigungsmaß. Man kann Treppenformen aufgrund der Anzahl (einläufig, zweiläufig..) oder der Geometrie (gradläufig, gewendelt, geschwungen) ihrer Treppenläufe unterscheiden. Die folgende Tabelle gibt eine Übersicht über einige Grundtypen.

Einläufige Treppen

(a) gerade
(b) gerade mit viertelgewendeltem Austritt
(c) gerade mit Viertelpodest am Austritt
(d) gerade mit viertelgewendeltem Antritt
(e) gerade mit Viertelpodest am Antritt
(f) gerade mit viertelgewendeltem Antritt und Austritt
(g) gerade mit zwei Viertelpodesten
(h) halbgewendelt
(i) viertelgewendelt

Zweiläufige Treppen

(j) gerade mit Zwischenpodest
(k) gewendelte U-Treppe mit verzogenen Stufen an keilförmiger Zwischenpodeststufe
(l) U-Treppe mit Halbpodest
(m) Winkeltreppe mit Viertelpodest

Dreiläufige Treppen

(n) dreiläufige U-Treppe S-Form mit zwei Viertelpodesten
(o und p) dreiläufige T-Treppe mit Viertelpodest
(q) dreiläufige U-Treppe mit zwei Viertelpodesten
(r) und (s) dreiläufige E-Treppe mit Halbpodest

Treppe gewendelt und mehrläufig repräsentativ

(t) einläufige Kreisbogentreppe
(u) einläufige Wendeltreppe mit Massivspindel
(v) einläufige Wendeltreppe mit Treppenauge bzw. Hohlspindel
(w) zweiläufige doppelte Wendeltreppe
(x) mehrläufige repräsentative Treppe mit mehreren Zwischenpodesten

Treppe in Y und S Form, Berliner Treppe

(y) Y-Treppe einläufig beginnend und zweiläufig endend
(z) Y-Treppe zweiläufig beginnend und einläufig endend
(α) einläufige S-förmige gerade Treppe mit zwei Viertelwendelungen
(β) Berliner Treppe
(λ) einläufige S-förmige Treppe

Pyramiden und Kegeltreppen

(δ) Pyramidentreppe positiv
(ε) Pyramidentreppe negativ
(φ) Pyramidentreppe auf 8eck-Grundriss positiv
(γ) Pyramidentreppe auf 8eck-Grundriss negativ
(η) Kegeltreppe positiv
(ι) Kegeltreppe negativ

Geradläufige Treppen

Geradläufige Treppen sind Treppen, deren Treppenläufe gerade sind, also in keiner Form gewendelt. Alle Stufen haben dieselbe Form und Auftrittsbreite. Richtungsänderungen werden durch Treppenabsätze erreicht. Das ist die einfachste und am weitesten verbreitete Form einer Treppe.

Sehr steile geradläufige Treppen mit wechselseitigen Trittstufen bezeichnet man als Raumspartreppe oder Sambatreppe.

Sind in einem Gebäude die Treppenläufe zu den Geschossen ohne Richtungsänderung hintereinander angeordnet, so spricht man auch von einer Himmelsleiter. Der Grund ist, dass man bei der Anordnung eines Fensters am obersten Ende den Eindruck hat, „in den Himmel“ zu steigen. Bei Freitreppen mit ähnlichem Effekt spricht man auch von Himmelstreppe.

Als Scherentreppe bezeichnet man geradläufige Treppen, die über mehrere Geschosse ineinander verschränkt sind. Sie entsprechen in der Funktion einer doppelläufigen Wendeltreppe, also einer Doppelhelix, sind aber im Grundriss orthogonal.

Gewendelte Treppen

Als gewendelte Treppe (von Wendel = schraubenförmige Struktur) bezeichnet man alle Treppen, die nicht gradläufig sind. Die Treppenstufen haben durch Biegungen des Treppenlaufs unterschiedlich große Auftritte, sehr schmal am Treppenauge, sehr breit an der Außenwand des Treppenhauses. Die Lauflinie wählt der jeweilige Benutzer selbst.

Biegt der Treppenlauf um 90° ab, spricht man von viertelgewendelt, macht er eine 180° Biegung, spricht man von halbgewendelt. Bei allen höheren Winkeln spricht man von einer Wendeltreppe.

Siehe auch Liste antiker Wendeltreppen

Bildergalerie

Treppen nach Material

Folgende Treppentypen sind vor allem aufgrund ihrer Materialien unterscheidbar. Die aufgeführten Konstruktionen sind in der Regel spezifisch für dieses Material.

Mauerwerk

  • Eine gemauerte Treppe hat immer eine Wand an den Seiten. Auf die Wände wird ein Gewölbe in Treppenneigung gemauert, auf das die Stufen gemauert werden.

Stahlbeton

Diese kann eine Oberfläche aus allen als Bodenbelag geeigneten Stoffen haben. Die Massivtreppe kann ein vor Ort gegossenes Bauteil wie auch ein an den Einbauort geliefertes Fertigbauteil sein. Auch Kombinationen aus Fertigteil und Ortbeton sind möglich.

  • Bei der Laufplattentreppe handelt es sich um eine schräge Platte, auf der die Trittstufen als prismenförmige Blöcke direkt aufgebracht sind. Meist sind das Stahlbeton-Massivtreppen oder Stahlbeton-Fertigteiltreppen. Diese Treppen können unmittelbar nach dem Einbau genutzt werden.
  • Eine Belagtreppe ist eine Rohtreppe, meist eine Stahlbetontreppe, auf die ein geeigneter Belag als Nutzschicht aufgebracht wird.

Holz

Treppen aus Holz werden seit der Frühgeschichte verwendet. Zuerst waren es Baumstämme, bei denen die Äste wie die Sprossen einer Leiter benutzt wurden, dann einfache Konstruktionen wie der sogenannte Steigbaum, der auf der ganzen Welt zu finden war. Aus diesem wurde die Einholm-Sägezahntreppe mit aufgesattelten Stufen entwickelt. Zwischen diesen einfachen Konstruktionen und modernen Holztreppen gibt es unzählige Variationen.

Üblich sind Balkentreppen, bei denen die Trittstufen auf einem Balken aufliegen, der auch Holm genannt wird. Bei einer aufgesattelten Treppe liegen die Trittstufen auf Tragholmen, die sägezahnförmig ausgeschnitten sind, daher wird diese Konstruktion auch „Sägezahntreppe“ genannt.

Bei Wangentreppen werden die Holzstufen in der seitlich laufenden Treppenwange verankert. Man spricht von einstemmen oder einschieben. Die Holzstufen werden in passende Stemmlöcher oder Nuten eingeschoben. Die Stufen werden mit der Wange verleimt und/oder verschraubt. Alternativ kann die Nut auch als Schwalbenschwanznut ausgebildet sein. Man unterscheidet zwischen halb und voll gestemmten Treppen. Bei der halb gestemmten Treppe entfällt die Setzstufe. Setzstufen können die Treppe nach unten abschließen, alternativ werden Bretter in eine durchgehende Nut in den Wangen eingesetzt, die dann eine weitgehend glatte Untersicht ergeben.

Möglich sind auch Bolzentreppen, bei denen jede Holzstufe mit der vorherigen und nächsten Stufe mit verspannten Bolzen verbunden ist.

Beim Faltwerk sind die einzelnen Trittstufen kraftschlüssig mit den Setzstufen verbunden und wandseitig mit Stahlbolzen befestigt.

Die handwerkliche Holztreppe wird vom Tischler oder Zimmerer gefertigt.

Gusseisen

Gusseiserne Treppen waren zu Beginn der industriellen Fertigung sehr beliebt. Heute findet man gusseiserne Treppen überwiegend als dekorative Spindeltreppen.

Stahl

Bei der Stahltreppe sind die tragenden Teile wie Treppenwangen oder Treppenholme aus Profilstahl oder aus Stahlrohr gefertigt. Die Stufen können gefertigt sein aus Metall (Gitterroste oder Riffelbleche), Naturstein, Beton, Holz, Panzerglas oder einem Materialmix (z. B. estrichverfüllte Wannenstufen aus Blech). Die Treppengeländer und Handläufe können ebenfalls aus Stahl gefertigt sein. Stahltreppen im Außenbereich werden in der Regel durch Feuerverzinken vor Korrosion geschützt.

Häufig findet man Stahltreppen im Industrie- und Gewerbebau und Not- oder Feuertreppen. Stahl ermöglicht relativ filigrane Konstruktionen. Manche Treppen werden (z. B. wegen der hochwertigen Anmutung) aus rostfreiem Edelstahl statt aus verzinktem Stahl gebaut.

Glas

Seit in der Glasforschung Verbundgläser mit hoher Tragfähigkeit entwickelt wurden, experimentieren Architekten mit Glas als Material für Treppen. Als Stufenmaterial ist Glas inzwischen weit verbreitet, meist ist das Tragwerk der Treppe aus Stahl. Inzwischen gibt es weltweit jedoch auch einige Treppen, die ganz aus Glas sind. Aufgrund der hohen Kosten sind das allerdings Ausnahmen, die nur bei sehr hochwertigen Innenarchitekturen (zum Beispiel für Nobelboutiquen) zum Einsatz kommen.

Bildergalerie

Treppen nach Konstruktion

Es gibt mehrere Möglichkeiten, wie man die Treppenläufe lagern kann.

Freitragende Treppen

Treppen mit Auflager oben und unten nennt man 'freitragend'. Auch zweiläufige U-Treppen, bei denen das Zwischenpodest keinerlei Auflager hat, nennt man freitragend.

  • Faltwerktreppen werden aus einem treppenlaufbreiten Blechstreifen durch Hin-und-Her-Falten hergestellt. Als Material wird überwiegend Riffelblech verwendet; sie können auch aus Beton oder Holz bestehen. Faltwerktreppen aus Holz sind nicht gefaltet, sondern werden hergestellt, indem man mehrere Holzwerkstoffplatten miteinander verbindet. Das filigrane Aussehen erlangen Faltwerktreppen dadurch, dass die Setzstufe nicht die gesamte Trittstufe „unterfüttert“, sondern nur zu einem geringen Teil unter der Trittstufe angesetzt ist.
  • Bei einer Bolzentreppe, auch Tragbolzentreppe genannt, sind die Treppenstufen untereinander mit Tragbolzen biegesteif verbunden.

Balkentreppen

Bei Balkentreppen liegen die Trittstufen auf einem Träger auf, der auch Holm genannt wird. Der Träger besteht meist aus Holz, Brettschichtholz, Stahl oder Stahlbeton.

Einholmtreppen sind Treppen mit nur einem tragenden Balken aus Holz oder Stahl, auf dem die Stufen aufgesattelt sind. Die Trittstufen müssen kippsicher auf dem Holm befestigt sein, was durch Verstrebungen erreicht werden kann. Der Holm muss neben der Biegebelastung auch eine Drehbelastung aufnehmen können. Da der Holm meist in der Mitte der Treppe angeordnet ist, wird diese Konstruktion auch Mittelholmtreppe genannt. Die Zweiholmtreppe ist eine Treppe mit zwei tragenden Balken.

Werden die Stufen massiv ausgeführt, egal ob in Holz, Naturstein, Betonwerkstein oder Stahlbeton, so spricht man auch von einer Blockstufentreppe.

Wangentreppen

Eine Wange ist das tragende, schrägliegende Bauteil links und rechts der Treppenstufe. Die linke Wange ist dabei die beim Hinaufgehen links liegende Wange. Als innere Wange, Freiwange oder Lichtwange wird die am Treppenauge liegende Wange bezeichnet. Die Wandwange liegt direkt an der Wand an oder ist mit einem Abstand von max. 6 cm von der Wandoberfläche abgerückt.

Eine Stufenwange hat keine über die gesamte Treppenlauflänge durchgehende schräge Ober- und Unterkante. Die Ober- und Unterkante der Stufenwange ist vielmehr in einem gleichmäßigen parallelen Abstand zu den Stufen und Setzstufen und hat somit ein stufenförmiges Aussehen.

Ein Krümmling oder Kröpfling ist die gebogene Verbindung von zwei gegenläufigen Wangen oder Handläufen.

Den im Bild (Fig. 12. links) sichtbaren senkrechten Pfosten, an dem das Treppengeländer beginnt, nennt man Antrittpfosten. Er kann kunstvoll verziert sein, wird aber bei modernen Treppen eher nüchtern ausgeführt.

Die im Bild (Fig. 13. rechts) sichtbare senkrechte Holzsäule mit dem Abhängling gehört zu den Hängesäulen.

Andere Konstruktionsarten

Bei einer Kragstufentreppe sind die Stufen einseitig an bzw. in der Treppenhauswand als Kragarm befestigt. Die Treppenstufen sind meist Naturstein- oder Stahlbeton-Blockstufen.

Bei einer Abgehängten Treppe, auch als Harfentreppe bezeichnet, werden die Stufen an dünnen Seilen oder Stäben aus Edelstahl oder anderen geeigneten Materialien von der Decke abgehängt. Die Seile bzw. Stäbe sind meist zum Boden hin abgespannt. Diese Treppenart kann auch als Treppe mit tragendem Geländerholm ausgeführt werden. Hier übernimmt der bohlenförmige Holm, der zugleich auch als Handlauf genutzt wird, die anfallenden Kräfte der Abhängung. Das harfenähnliche Aussehen dieser Konstruktion gibt ihr den Namen.

Bei Schwebetreppen oder Schwebestufen werden die einzelnen Stufen kraftschlüssig mit der Wand verbunden und „schweben“ im Raum.

Bildergalerie

Tragsysteme

Entsprechend der Vielzahl von Treppengeometrien ist eine Vielzahl von statischen Tragsystemen möglich. Für den Lastabtrag sind dabei als Vertikallasten neben dem Eigengewicht der Konstruktion die Verkehrslasten auf der Treppe zu berücksichtigen. Zusätzlich sind horizontale Lasten auf Geländer oder Holme und bei Treppen, die der Witterung ausgesetzt sind, Windlasten zu beachten.

  • Treppen mit selbsttragenden Stufen sind ein Tragsystem. Die Treppenstufen tragen dabei die Lasten als einfacher oder eingespannter Balken in Querrichtung ab. Die Lagerung bzw. Einspannung der einzelnen Stufen kann in Treppenhauswänden, Längsträgern oder einer Spindel erfolgen, die für den weiteren Lastabtrag sorgen. Die Längsträger sind bei Stahl- oder Holztreppen seitliche Wangenträger oder unten liegende Holmträger, bei Stahlbetontreppen massive Laufbalken. Die Treppenträger bestimmen die Steigung und können im Grundriss gekrümmt sein, sie tragen die Lasten in Längsrichtung nach oben und/oder unten ab. Als statisches System liegt ein räumlicher, evtl. gekrümmter, Balken vor.
  • Im Stahlbetonbau gibt es als zusätzliches wichtiges Tragsystem die Treppe mit gerader Lauflinie, bestehend aus den geneigten Laufplatten, die die Stufen tragen, und etwaigen horizontalen Platten als Absätzen. Das statische System besteht jetzt nicht mehr aus einem räumlichen Balkensystem, sondern aus einzelnen Plattenelementen oder bei monolithischer Verbindung von Absatz und Lauf aus einem räumlich wirkenden Flächentragwerk, auch Faltwerk genannt. Der allgemeine Sonderfall des freitragenden, räumlich gekrümmten Treppenlaufes wird heute in der Statik mit der Methode der finiten Elemente berechnet.

Normen und Vorschriften

Die für den Treppenbau in Deutschland relevanten Normen und Vorschriften sind:

  • Bauordnungsrecht der Länder:
    • Bauordnungen (speziell Fünfter Abschnitt der Musterbauordnung: Rettungswege, Öffnungen, Umwehrungen)
    • soweit zutreffend: Versammlungsstättenverordnungen, Geschäfts- und Warenhausverordnungen, Krankenhausbauverordnungen, Industriebauverordnungen und Bestimmungen über Bau und Ausrüstung von Schulen und Kindertageseinrichtungen
  • DIN 18 065 Maßliche Anforderungen an Treppenbauwerke
  • DIN 18040-1 + DIN 18024-1: 2010-10 Barrierefreies Bauen – Planungsgrundlage – Teil 1: Öffentlich zugängliche Gebäude
  • Die DIN EN ISO 14122 „Ortsfeste Zugänge zu maschinellen Anlagen“ regelt in Teil 1 „Wahl eines ortsfesten Zugangs zwischen zwei Ebenen“ Treppen mit Neigungswinkeln (Steigungswinkel) von 20° bis 45°
  • Die DIN 24 531 „Roste als Stufen“ behandelt Trittstufen aus Gitterrosten
  • BGI/GUV-I 561, 'Information Treppen' der Deutschen Gesetzlichen Unfallversicherung (DGUV)[7] (ehemals BG-Information „Treppen“ BGI 561 bzw. „Merkblatt für Treppen“ ZH 1/113)
  • Verordnung über Arbeitsstätten (Arbeitsstättenverordnung – ArbStättV) mit Arbeitsstätten-Regeln: ASR 12/1-3 „Schutz gegen Absturz und herabfallende Gegenstände“, ASR 17/1,2 „Verkehrswege“, ASR A2.3 „Fluchtwege, Notausgänge, Flucht- und Rettungsplan“.
  • Arbeits-Sicherheits-Information „ASI 4.06 - Treppen“, Berufsgenossenschaft Nahrungsmittel und Gastgewerbe[8]

DIN 18065

Baurechtlich notwendige Treppen

  • Die jeweils 18. Stufe muss als Podest ausgebildet sein.
  • Die Steigung darf nicht mehr als 19 cm, der Auftritt nicht weniger als 26 und nicht mehr als 37 cm betragen (DIN 18065 Abs. 6 Tab. 1).

Bei Wohngebäuden mit nicht mehr als 2 Wohnungen gelten weniger strenge Regeln.

ASR A2.3

Die Arbeitsstättenrichtlinie ASR A2.3[9] nennt Mindestbreiten von Fluchtwegen, die insofern auch für die notwendigen Treppen gelten, welche in den Bereich der Richtlinie fallen.

BGI/GUV-I 561 der Deutschen Gesetzlichen Unfallversicherung (DGUV)

  • Der Abstand des Treppenlaufs und -podests von der Wand und/oder vom Geländer darf nicht mehr als 6 cm betragen.
  • Treppenabsätze vor oder hinter Türen müssen eine Tiefe von 1 m bzw. von 1,5 m, falls die Tür in Richtung der Treppe aufschlägt, haben. Das gleiche Maß gilt für den Abstand der Treppe zur Tür.
  • Die Schrittmaßformel Auftritt + 2 × Steigung = 63 cm ± 3 cm gilt für Auftrittsbreiten von 26 bis 32 cm und Steigungen von 14 bis 19 cm.
  • Die Steigungen und Auftritte innerhalb von einer Geschoßtreppe dürfen nicht um mehr als 5 mm von den Sollmaßen abweichen. Von einer Stufe zur anderen darf ebenfalls keine größere Abweichung dieser Maße als 5 mm vorliegen.
  • Bei Freitreppen, Kindergärten und -krippen muss der Auftritt 30 bis 32 cm und die Steigung 14 bis 16 cm betragen. Bei Versammlungsstätten, Verwaltungsgebäuden, Schulen, Horten gelten entsprechend 29 – 31 cm und 15 – 17 cm, sowie bei gewerblichen und sonstigen Bauten 26 – 30 cm und 16 – 19 cm bzw. bei Steiltreppen und Zugängen zu maschinellen Anlagen 21 – 30 cm und 14 – 21 cm (bei Auftrittsbreiten von weniger als 24 cm ist durch Unterschneidung der Stufen eine Auftrittstiefe dieses Maßes herzustellen).
  • Wendeltreppen sind nicht als erster Fluchtweg zulässig. Als zweiter Fluchtweg sind sie zulässig, wenn eine Gefährdungsbeurteilung deren sichere Benutzung im Gefahrenfall erwarten lässt (siehe ASR A2.3). In Schulen und Kindertageseinrichtungen sind Spindeltreppen als notwendige Flucht- und Rettungswege nicht zulässig.
    Die Lauflinie wird bei Wendeltreppen mit nutzbarer Laufbreite bis zu 100 cm in der Mitte der Laufbreite vorgesehen, bei breiteren Treppen im Abstand von etwa 50 cm vom schmalen Stufenende und bei Spindeltreppen in einem Abstand von etwa 4/10 der Laufbreite von der Handlaufseite.
    Die nutzbare Treppenlaufbreite wird an der Innenseite von der Linie begrenzt, an welcher die Auftrittsbreite der Stufen 10 cm beträgt. Wenn die Treppe gleichzeitig in Auf- und Abwärtsrichtung begangen werden kann, ist die Laufbreite an dieser Linie auch baulich zu begrenzen. Die Auftrittsbreite darf an der Außenseite maximal 40 cm betragen. In Schulen und Kindertageseinrichtungen gilt innen mindestens 23 cm und in 1,25 m Entfernung maximal 40 cm.
  • Treppen in Betriebsanlagen, die häufiger und von einer größeren Zahl Personen begangen werden, sollten mit ihren Neigungswinkeln im Bereich zwischen 30° und 38° liegen. Dabei sollte die Breite der Treppe mindestens 60 cm betragen, vorzugsweise 80 cm. Hier gilt:
    Abweichungen in der Steigung im Treppenverlauf dürfen maximal 15 % betragen.
    Die Unterschneidung der Stufen muss wenigstens 1 cm betragen.
    Die lichte Durchgangshöhe muss mindestens 230 cm betragen.
    Bei Aufstiegshöhen von über 50 cm und seitlichem Spalt von mehr als 20 cm ist ein Geländer vorzusehen.
    Die lotrechte Höhe des Handlaufs oberhalb der Antrittskante muss mindestens 90 cm und über dem Austrittspodest mindestens 110 cm betragen.
  • Flache Treppen (Stufenrampen) im Freien sollten Trittflächen mit Gefälle von ca. 2 % zur Trittkante hin besitzen. Stufen und Absätze werden nach der Schrittmaßformel bemessen. In Schulen sollen Fahrradrampen eine Neigung zwischen 10 % und maximal 25 % haben.
  • Kantenprofile sind grundsätzlich bündig mit der Stufenoberfläche zu verlegen.

Beleuchtungsstärke

In der Regel „Natürliche und künstliche Beleuchtung von Arbeitsstätten“ (BGR 131) sowie der DIN EN 12464 „Beleuchtung von Arbeitsstätten“, Teil 1 „Arbeitsstätten in Innenräumen“ wird eine Nennbeleuchtungsstärke von wenigstens 150 Lux genannt.

Treppenforschung

Begründer der Treppenforschung (Scalalogie) war in der zweiten Hälfte des 20. Jahrhunderts der Architekt, Denkmalpfleger und Hochschullehrer Friedrich Mielke (1921–2018). Sein Treppen-Nachlass befindet sich seit 2012 als Friedrich-Mielke-Institut für Scalalogie in der Architektur-Fakultät der Ostbayerischen Technischen Hochschule (OTH) Regensburg[10] und umfasst Mielkes Treppen-Fachbibliothek mit mehr als 500 Titeln, etwa 15.000 Dossiers über Treppen aus allen Ländern, etwa 35.000 Bilder sowie zahlreiche Pläne und Aufmaße von Treppen und Geländern. Hinzu kommen Modelle sowie eine Sammlung von Treppen- und Geländeroriginalteilen.[11]

Literatur

  • Grundlagen, Allgemeines
  • Handbuch der Architektur, III. Theil, 3. Band, Heft 2: Otto Schmidt und Eduard Schmitt: Anlagen zur Vermittlung des Verkehrs in den Gebäuden: Treppen und Rampen [...]. Verlag von Arnold Bergsträsser, Darmstadt 1892. (Digitalisat auf archive.org, abgerufen am 26. Dezember 2023); 2. Aufl. Stuttgart 1898 (Digitalisat auf europeana.eu, abgerufen am 26. Dezember 2023)
  • Hans Koepf, Günther Binding: Bildwörterbuch der Architektur. Mit englischem, französischem, italienischem und spanischem Fachglossar (= Kröners Taschenausgabe. Bd. 194). 4., überarbeitete Auflage. Kröner, Stuttgart 2005, ISBN 3-520-19404-X (Digitalisat auf moodle.unifr.ch, abgerufen am 25. Dezember 2023), S. 476 ff.
  • Fritz Kreß: Der Treppen- und Geländerbauer. Otto Maier, Ravensburg 1929. Nachdruck: Ed. Libri Rari im Verl. Schäfer, Hanover 1988, ISBN 3-88746-213-0.
  • Willibald Mannes: Die Treppe. Zeitgemäße Beispiele in Holz, Stein und Stahl. Deutsche Verlags-Anstalt, Stuttgart 1994, ISBN 3-421-03061-8.
  • Christine-Ruth Hansmann: Treppen in der Architektur. Gestaltung, Entwicklung, Technik und Ausführung. Deutsche Verlags-Anstalt, Stuttgart 1993, ISBN 3-421-03051-0.
  • Willibald Mannes: Technik des Treppenbaus. 4. Auflage, Deutsche Verlags-Anstalt, Stuttgart 1984, ISBN 3-421-02543-6.
  • Friedrich Mielke: Handbuch der Treppenkunde. Verlag: Th. Schäfer, Hannover 1993, ISBN 3-88746-312-9.
  • Kultur und Geschichte
  • Ulrich Fromann: Von stolzen Stufen und Hintertreppen. Eine kleine Kulturgeschichte der Treppe. Berg-Sternberger See 1968.
  • Georg Hensel: Zwang und Freiheit der Stufen. Bemerkungen zur Dramaturgie der Treppe. In: Frankfurter Allgemeine Zeitung vom 10. September 1983, S. BuZ6.
  • Friedrich Mielke: Die Geschichte der Deutschen Treppen. Verlag Wilhelm Ernst & Sohn, Berlin und München 1966.
  • Friedrich Mielke: Treppen der Gotik und Renaissance (= Scalalogia, Bd. 9). Deutsches Zentrum für Handwerk und Denkmalpflege Probstei Johannesberg, Fulda 1999, ISBN 978-3-931991-22-7.
  • Scalalogia. Schriften zur internationalen Treppenforschung. Herausgegeben von der Gesellschaft für Treppenforschung, 20 Bände, 1985–2011. (Titel: Treppen in Eichstätt, Treppen in Breslau, Treppen in Wien, Treppen in Ingolstadt, Treppen in Potsdam, Treppen der Gotik und Renaissance, Treppen in der Kunst, Geistige Treppen - Treppen des Geistes, Steinerne Wendeltreppen in türkischen Minaretten, Treppen im Modell, Treppen in Nürnberg, Mensch und Treppe, Schüler sehen Treppen, Ein Fotograf sieht Treppen, Wilde Steige, Treppen der Welt)
  • Hannes Böhringer: Lehne und Geländer. In: Sebastian Hackenschmidt (Hrsg.): Möbel als Medien. Beiträge zu einer Kulturgeschichte der Dinge. Transcript, Bielefeld 2011, S. 229–231.
  • Arthur Engelbert: Die Treppe. Eine kulturgeschichtliche und medienkritische Studie. Königshausen & Neumann, Würzburg 2014, ISBN 978-3-8260-5525-6.
  • Entwurfsbeispiele
  • Wendelin Mühr: Treppenanlagen, IM DETAIL - Gestaltung barrierefreier Verkehrsraum, Teil 1: Erschließung öffentlicher Raum, ISBN 978-3-00-067612-3
  • Wolfgang Diehl Scala: Moderne Treppen, Bruderverlag, ISBN 978-3-87104-169-3, 2008.
  • Thomas Drexel: Neue Treppen, Verlag Callwey, ISBN 3-7667-1387-6, 2000.
  • Eva Jiřičná: Moderne Treppen, Deutsche Verlags-Anstalt, ISBN 3-421-03262-9, 2001.
  • Willibald Mannes: Schöne Treppen, Deutsche Verlags-Anstalt, ISBN 3-421-03015-4, 1999.
  • Willibald Mannes: Treppen-Skizzen, Deutsche Verlags-Anstalt, ISBN 3-421-02981-4, 1990.
  • Tieleman van der Horst: Treppen-Bau-Kunst (1793), Reprint der Ausgabe von 1763, Herder Verlag, Freiburg, ISBN 3-451-05339-X, 2003.
  • Norbert Stannek: Die Treppen des Bergischen Landes – Gestaltung und Technik, Ing.-Diss., RWTH Aachen, 1990.
  • Nach Material
  • Holz
  • Fritz Engelmann: Treppen in Holz, Bruderverlag, ISBN 3-87104-082-7, 1991, 3. Aufl.
  • Willibald Mannes: Der handwerkliche Holztreppenbau, Deutsche Verlags-Anstalt, ISBN 3-421-03028-6, 1992.
  • Bund Deutscher Zimmermeister und BHKH: Handwerkliche Holztreppen (Regelwerk Treppenbau), Copyright BDZ, BHKH, ISBN 3-930714-42-6.
  • Ursula Baus, Klaus Siegele: Holztreppen, Deutsche Verlags-Anstalt, ISBN 3-421-03291-2, 2001.
  • Walter Ehrmann, Wolfgang Nutsch, Dittmar Siebert: Holztechnik – Der Holztreppenbau, Verlag Europa-Lehrmittel, ISBN 978-3-8085-4105-0, 2008, 5. Aufl.
  • Ludwig Rödler: Der Holztreppenbau, Reprint Verlag:, Leipzig, ISBN 3-8262-1813-2, 4-2003.
  • Metall
  • Werner Klevenz: Einfache Treppenkonstruktionen aus Metall, Verlag Coleman
  • Ursula Baus, Klaus Siegele: Stahltreppen, Deutsche Verlags-Anstalt, ISBN 3-421-03170-3, 1998.
  • Diverse Materialien
  • Wolfgang Diehl: Neue Wege im Treppenbau. Holz – Stahl – Glas, Bruderverlag, ISBN 3-87104-095-9, 1995.
  • Karl Hartisch: Treppen in Stahl, Beton und Holz, Krämer Verlag, Stuttgart, ISBN 3-7828-1125-9, 1993.

Film

  • Treppenlandschaft NRW. Faszination auf Schritt und Tritt. Beitrag in der Reihe Bilderbuch. Regie: Antje Baumgarten, Produktion: WDR 2009, 45 Min.

Siehe auch

Commons: Treppen – Sammlung von Bildern, Videos und Audiodateien
Wiktionary: Treppe – Bedeutungserklärungen, Wortherkunft, Synonyme, Übersetzungen
Wiktionary: Stiege – Bedeutungserklärungen, Wortherkunft, Synonyme, Übersetzungen

Einzelnachweise

  1. DIN 18065 Gebäudetreppen – Begriffe, Messregeln, Hauptmaße, Ausgabe März 2015, Absatz 3.1 in Verbindung mit Absatz 3.5
  2. Podest In: Hans Koepf, Günther Binding: Bildwörterbuch der Architektur. Mit englischem, französischem, italienischem und spanischem Fachglossar. 4., überarbeitete Auflage. Kröner, Stuttgart 2005, ISBN 3-520-19404-X, S. 476 (= Kröners Taschenausgabe. Band 194); moodle.unifr.ch (PDF; 15 MB) abgerufen am 4. Oktober 2024.
  3. F. E. Barth, J. Reschreiter: Neufund einer bronzezeitlichen Holzstiege im Salzbergwerk Hallstatt, in: Archäologie Österreichs 16/1 (2005) S. 27ff.
  4. Details der Stiegenübersiedlung sind nachzulesen im Stiegenblog der Hallstatt-Forschung auf https://hallstatt-forschung.blogspot.co.at/
  5. Gerhard Richter: Frau, die Treppe herabgehend (Woman Descending the Staircase), Öl auf Leinwand, 198 × 128 cm, 1965, Art Institute of Chicago.
  6. Gerhard Richter: Ema (Akt auf einer Treppe). Öl auf Leinwand, 200 × 130 cm, 1966, Museum Ludwig, Köln.
  7. Information Treppen der Deutschen Gesetzlichen Unfallversicherung (DGUV), abgerufen im Juni 2016
  8. Arbeits-Sicherheits-Information ASI 4.06 - Treppen@1@2Vorlage:Toter Link/vorschriften.portal.bgn.de (Seite nicht mehr abrufbar, festgestellt im Mai 2019. Suche in Webarchiven), Berufsgenossenschaft Nahrungsmittel und Gastgewerbe
  9. ASR A2.3 "Fluchtwege und Notausgänge, Flucht- und Rettungsplan" (PDF-Datei, 58 KB), abgerufen im Juni 2016
  10. Friedrich-Mielke-Institut für Scalalogie. In: architektur.oth-regensburg.de. Abgerufen am 2. Dezember 2023 (Kapitel: Organisation des Instituts).
  11. Friedrich-Mielke-Institut für Scalalogie. Unterkapitel: Sammlung. In: architektur.oth-regensburg.de. Abgerufen am 3. Dezember 2023.