Eisenhoithaus






Das Eisenhoithaus in Warburg, Bernardistraße 12, ist ein 1526 erbautes Fachwerkhaus in Warburg. Es gilt als das Geburtshaus von Antonius Eisenhoit. 1985 wurde es in die amtliche Liste der Baudenkmäler in Warburg eingetragen.
Architektur
Das Haus zeigt sich heute als ein zweigeschossiges, giebelständiges Fachwerkhaus mit einer Grundfläche von ca. 10,80 m × 13,00 m. Der Giebel kragt über knaggenunterstützte Stichbalken vor.
Die sieben Gefache breite Straßenfront beinhaltet ein aus kräftigen Balken gezimmertes, leicht spitzbogiges Portal mit der Inschrift „Anno:dmni.M°vc°xxvj° (Beil) Invento (Kreuz)“. Das Haus ist also im „1526sten Jahre des Herrn am Tag der Kreuzfindung (3. Mai)“ errichtet worden. Auf der mittleren Knagge über dem Portal befindet sich ein Helm (Eisenhut). In den Bogenbalken gibt es eine offenbar später angebrachte Inschrift aus großen Renaissancebuchstaben mit Serifen „JASPER.ISERENHOD“. Das Bogenfeld ist mit Eichenbohlen, die mit Flachreliefs verziert sind, verschlossen. Dargestellt sind ein mittiges Rundfeld mit einer Frauenbüste, umrahmt von Rankenwerk, dem teilweise Drolerien, Tier-Maskarons und Arabesken entwachsen, sowie einen auf einen fliehenden Kranich oder Reiher zielenden Jäger. Offenbar wurde das Haus um 1570 umgebaut und im Bereich des Eingangs mit einer Zwischendecke versehen, die eine solche Schließung des Bogenfeldes durch ein Tympanon erforderte. Der Giebel mit seiner zweiten, geringeren Vorkragung, den dreifach verriegeltem Fachwerk, den symmetrisch angeordneten Diagonalstreben und den beiden Außenluken verweist auf eine weitere Erneuerung in der Zeit um 1700.
An der rechten Traufseite haben sich Reste des bauzeitlichen Ständerfachwerkes mit Schwertungen erhalten.
Geschichte
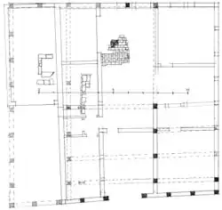
Wie der Portalinschrift und dem Helm auf der Knagge darüber zu entnehmen ist, wurde das Haus offenbar im Frühjahr 1526 durch eine Familie, die einen eisernen Helm als Zeichen führte, errichtet. Beim Bauherrn wird es sich wohl – wie andernorts vermutet – nicht um den Vater, sondern eher den Großvater des 1553/1554 in Warburg geborenen Silberschmiedes und Kupferstechers Antonius Eisenhoit handeln. Das Haus war ursprünglich, wie eine 1983 durchgeführte sanierungsbegleitende bauhistorische Untersuchung ergab, zwei Gefache breiter und hatte zudem einen Speicherstock mit einer Reihe von Fußstreben am Giebel, wie sie noch an anderen Häusern der Zeit in Warburg zu finden sind.[1] Innen beinhaltete es eine hohe, zweigeschossige Längsdeele, die sich im hinteren Teil in die Seitenschiffe öffnete. Die Kammern in den Obergeschossen der Seitenschiffe wurden durch eine steile Wangentreppe und eine auf Kragbalken an der Deelenwand angebrachte Galerie durch Spitzbodentüren erschlossen. Zahlreiche originale Bauteile der Zeit, wie Kopfbänder, Holzsäulen, eine Treppenwange, ein dazu passender Handlauf, Fensterzargen u. a. blieben durch Zweitverwendung vor Ort erhalten.[2] In der Mitte des Hauses befand sich eine große, mit Ziegeln gepflasterte offene Feuerstelle, deren Reste 1983 ebenfalls dokumentiert wurden.[3] Sie diente möglicherweise nicht nur als Herdstelle und zur Beheizung des Hauses, sondern auch als Schmiedestelle der Bewohner, die nach ihrem Namen und dem Hauszeichen nach offenbar schon zur Bauzeit sich mit der Herstellung von Rüstungen und später auch mit feineren Metallarbeiten beschäftigte. Damit wäre das Haus, wie auch das "Glockengießerhaus" in der Bernardistraße 23 und das "Kannegeterhaus" in der Josef-Kohlschein-Straße 22 ein weiterer Beleg für die damalige Existenz eines differenzierten Metallindustrie in der Warburger Altstadt.
Der auf den Bogenbalken eingeschnitzte Namen "JASPER ISERENHOD" und das oben beschriebene Brett-Tympanon sind stilistisch der Zeit um 1560–70 zuzuordnen.[4] Ob Jaspar Iserenhod der Vater von Anton Eisenhoit war, ist unsicher. Jedenfalls wurde das Haus während der Zeit umgebaut. Dabei erfolgte die Einbringung einer Zwischendecke im straßenseitigen Teil der Deele mit Schließung des Bogenfeldes, die Verkürzung der Galerie und die dadurch notwendige Verlegung und Erneuerung einer Zimmertür durch einen rundbogigen und mit gedrehten Bändern verzierten Türstock in Renaissanceformen. Ca. 1585 bis 1603 betrieb Anton Eisenhoit nach umfangreichen Lehr- und Wanderjahren, die ihn auch zu einem mehrjährigen Arbeitsaufenthalt in Rom geführt hatten, selbst eine Werkstatt im Hause.
Im 17. Jahrhundert wurde das Haus – möglicherweise in Folge des Dreißigjährigen Krieges – zum Teil zerstört und um 1700 in verkleinertem Umfang mit dem noch bestehenden Giebel wieder aufgebaut.
In den 1950er Jahren, möglicherweise anlässlich des 400sten Geburtstages von Antonius Eisenhoit, wurde eine noch bestehende Gedenktafel am Hause angebracht.
Um 1960 gehörte das Haus einem Brennstoffhändler. Er ließ sich im Garten des Hauses ein zurückgesetztes Einfamilienhaus mit Büro und ein Gewerbegebäude erbauen. 1975 plante er, das Haus zusammen mit dem Nachbarhaus Bernardistraße 10 zugunsten eines Kohlen- und Heizöllagers abzubrechen. Dieses wurde durch eine örtliche Bürgerinitiative verhindert.[5]
1981 wurde das Haus schließlich durch den Bauunternehmer Klaus Stawitzki erworben, der es 1982–84 als Mehrfamilienhaus umbauen, zum Teil rekonstruieren und in seinem äußeren Erscheinungsbild wiederherstellen ließ.
Literatur
- Franz-Josef Dubbi: Antonius Eisenhoit, Bürger und Goldschmied zu Warburg. Hg. von der Sparkassenstiftung für Kultur und Soziales der Sparkasse Höxter, Marsberg 2003
- Denkmaltopographie Bundesrepublik Deutschland, Denkmäler in Westfalen, Kreis Höxter, Band 1.1.: Die Stadt Warburg. bearb. von Gotthard Kießling, Michael Christian Müller und Burkhard Wollenweber, mit Beiträgen von Peter Barthold, Hans Joachim Betzer, Daniel Bérenger, Franz-Josef Dubbi, Horst Gerbaulet, Detlef Grzegorczyk, Fred Kaspar, Hans-Werner Peine, hg. vom Landschaftsverband Westfalen-Lippe und der Hansestadt Warburg, LWL-Denkmalpflege, Landschafts- und Baukultur in Westfalen, Imhof-Verlag, Petersberg 2015, ISBN 978-3-7319-0239-3.
- Fred Kaspar: Fachwerkbauten in Westfalen vor 1600. Coppenrath, Münster 1978, ISBN 3-920192-69-9 (Beiträge zur Volkskultur in Nordwestdeutschland 14). (Volltext als PDF)
- Elmar Nolte: Zum Profanbau der mittelalterlichen Stadt Warburg. In: Franz Mürmann (Hrsg.): Die Stadt Warburg. 1036–1986. Beiträge zur Geschichte einer Stadt. Band 2. Hermes, Warburg 1986, ISBN 3-922032-07-9, S. 165.
- Nikolaus Rodenkirchen: Kreis Warburg. Mit geschichtlichen Einleitung von Gerhard Pfeiffer. Aschendorff, Münster 1939 (Bau- und Kunstdenkmäler von Westfalen 44).
- Christoph Stiegemann (Hrsg.): Wunderwerk. Goettliche Ordnung und vermessene Welt. Der Goldschmied und Kupferstecher Antonius Eisenhoit und die Hofkunst um 1600. Katalogbuch zur Ausstellung im Erzbischöflichen Dioezesanmuseum Paderborn. Verlag Philipp von Zabern, Mainz 2003, ISBN 3-8053-3260-2.
Weblinks
Einzelnachweise
- ↑ Elmar Nolte: Warburg, Bernardistraße 12, Vermerke, Zeichnungen und Fotos, Privatarchiv, Kopien beim LWL-Denkmalpflege, Landschafts- und Baukultur in Westfalen, Warburg 1983
- ↑ Elmar Nolte, s. o.
- ↑ Dr. Hans-Werner Peine: Aktenvermerk zum „Eisenhoithaus“ in Warburg. LWL-Archäologie für Westfalen, Münster, 15. November 1983.
- ↑ Karl Eugen Mummenhoff: Aktenvermerk, Warburg, Bernardistraße 12, Fund eines Tympanons. LWL-Denkmalpflege, Landschafts- und Baukultur in Westfalen, Münster, 8. Dezember 1983.
- ↑ Westfalenblatt: „Abriss verhindern“, Altstadtbürger reagieren sauer, Warburg, 21. Mai 1975
Koordinaten: 51° 29′ 8,5″ N, 9° 8′ 54,7″ O