Warenhaus Wertheim (Berlin, Oranienstraße)

Warenhaus Wertheim, Oranienstraße, 1. und 2. Bauabschnitt (nach 1900)

Das Wertheim in der Oranienstraße in Berlin-Kreuzberg war ein 1894 eröffnetes und 1900 erweitertes Warenhaus der A. Wertheim GmbH. Das von Alfred Messel entworfene neobarocke Gebäude gilt als erster Warenhausbau nach französischem Vorbild im Deutschen Reich.

Nach dem Bau des Wertheim am Moritzplatz wurde der Standort 1913 aufgegeben und das Gebäude anderweitig genutzt, bis es beim Luftangriff vom 3. Februar 1945 zerstört wurde.

Beschreibung

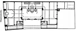
Bauabschnitt I

Erdgeschossgrundriss des 1. Bauabschnittes (1896)
Lichthof (1896)

Der breitgelagerte Baukörper befand sich innerhalb einer Blockrandbebauung auf den Grundstücken Oranienstraße 53 und 54 auf der nördlichen Straßenseite. Die Hauptfassade zur Oranienstraße war siebenachsig und dreigeschossig, wobei im unteren höheren Geschoss zusätzlich ein Zwischengeschoss eingeschoben war, welches jedoch nur an der ganz rechten Achse bis zur Fassade durchging. Die sechs linken Achsen bildeten den Hauptbau, während die ganz rechte Achse, in der der Durchgang zum Hof lag, etwas zurückgesetzt war. Die rustizierte Sockelzone aus Sandstein umfasste Erd- und Zwischengeschoss und war im Bereich des Risalites durch drei Rundbögen geöffnet, von denen der mittlere den Eingang bildete. In der rechtesten Achse waren stattdessen Tür und Fenster mit Segmentbogenabschluss. Die zwei oberen Geschosse mit Putzfassade waren im Hauptbau durch ionische Kolossalpilaster mit Kapitellen aus Kunstsandstein zusammengefasst. Die Fenster im 1. Obergeschoss waren mit geschwungenen Gesimsen verdacht, während sie im 2. Obergeschoss vertikal zu Doppelfenstern geteilt waren. Mit Ausnahme der Verdachung war die ganz rechte Achse analog ausgeführt. Über dem Gebälk mit Konsolgeison verlief über die gesamte Fassade eine Balustrade, die über den mittleren zwei Achsen des Hauptbaus von einem schmalen und hohen Volutengiebel mit einem Fenster unterbrochen wurde. Auf den Ecken des Hauptbaus sowie neben dem Volutengiebel waren zudem kleine Obelisken auf Postamenten aufgestellt. Beidseitig wurde die Balustrade am Hauptbau zudem von runden Dachgauben unterbrochen. Das Dach war über dem Hauptbau als konvex aufgebogenes Mansardwalmdach ausgeführt, während ein niedrigeres, recht flaches Dach den Anschluss zur Nachbarbebauung herstellte. Das Oberdach des Mansarddaches war so flach ausgeführt, dass es von der Straße nicht sichtbar war. An der oberen Kante des vorderen Unterdaches war ein großer „WERTHEIM“-Schriftzug angebracht.

Im Inneren waren auf vier Geschossen über einer Grundfläche von 1302 Quadratmetern Einkaufsflächen vorhanden, während im Dachgeschoss zwei niedrige Geschosse für Personal und Geschäftsleitung eingerichtet waren.[1] Mittig im Gebäude war ein 16 Meter hoher Lichthof mit einer Grundfläche von 10 × 19 Meter platziert. Der Hof belichtete von oben alle Etagen und war mit einer repräsentativen Treppe ausgestattet. Die Geschosse wurden durch Pfeiler getragen, auf denen auf allen vier Seiten ionische Pilaster angebracht waren. Das gläserne Dach in Form eines Stichkappengewölbes setzte über einem Konsolgeison über dem ersten Obergeschoss an.

Bauabschnitt II

Die sechs Jahre später verwirklichte fünfachsige Erweiterung auf dem Grundstück Oranienstraße 52 führt die Architektur des ersten Bauabschnittes im Wesentlichen fort. Die rechteste der fünf neuen Achsen kopiert die rechteste Achse des Altbaus, dazwischen sind vier Achsen die als Risalit hervortreten. Diese sind wie beim Risalit des Altbaus mit Kolossalpilastern gegliedert. Auf einen besonderen Dachaufbau verzichtet er – abgesehen von zwei Eckobelisken – nun aber vollständig. Zudem sind im Erdgeschoss statt Rundbögen zwei Eingänge oder Schaufenster mit scheitrechten Bögen.

Geschichte

Vorgeschichte

Warenhaus Wertheim, Leipziger Straße 111 (vor 1897)

Abraham Wertheim (1819–1891) gründete 1875 mit seinen Söhnen Hugo (1856–1883) und Georg ein Geschäft für Mode- und Manufakturwaren in Stralsund. Bereits 1852 hatte er mit seinem Bruder Theodor eine Geschäftsgründung versucht, dieses musste aber nach kurzem wieder schließen. Mit einem damals im Deutschen Reich noch unüblichen Geschäftsmodell nach französischem Vorbild – Festpreise, Warenauszeichnung und Umtauschrecht – welches auf Initiative der Söhne ab 1876 eingeführt wurde, hatte das Geschäft großen Erfolg. Nach einer weiteren Filiale in Rostock (1884), eröffnete Georg Wertheim im Oktober 1885 das erste Geschäft in Berlin an der Rosenthaler Straße 27. Nach kurzer Zeit wurde das noch auf Mode- und Manufakturwaren beschränkte Sortiment um Artikel der Hausschneiderei erweitert. 1888 verlegte Georg Wertheim seinen Wohnsitz nach Berlin. Mit den jüngeren Brüdern Wilhelm (1859–1934), Franz (1863–1933) und Wolf (1867–1940) gründete er in der Folge die nach dem Vater benannte offene Handelsgesellschaft „A. Wertheim GmbH“.[2]

1890 wurde ein weiteres Geschäft in der Oranienstraße 145/146 gegründet, das ein umfangreicheres Warensortiment anbot. Durch die zusätzlich gegebene Trennung der Sortimente in verschiedene Abteilungen wurde der Weg zum modernen Warenhaus geebnet.[3][4] Eine weitere Filiale eröffnete im Oktober 1892 in der Leipziger Straße 111 in einem angemieteten Geschäftshaus.[5] Für diese Filiale wurde möglicherweise erstmals der Begriff „Warenhaus“ verwendet. Dieser Begriff wurde von Wertheim auch deshalb eingeführt, um den für die ersten beiden Wertheim-Filialen und Konkurrenzgeschäfte wie Lubasch besonders vom traditionellen Einzelhandel geprägten Begriff „Ramschbazar“ abzulösen. Der Begriff besaß eine völkisch-rassistische Konnotation, wie auch insgesamt die Kritik an den Warenhäusern im Deutschen Reich oft mit antisemitischen Argumenten geführt wurde.[6] Neben der Neuausrichtung durch die Bezeichnung „Warenhaus“ fand mit der Eröffnung der neuen Filiale auch durch die Lage an der Leipziger Straße eine Abgrenzung von den vorherigen Geschäften statt, die in einfacheren Bezirken lagen. Die Leipziger Straße hatte sich ab der Reichsgründung 1871 zu einer gehobenen Haupteinkaufsstraße entwickelt.[6] Trotz der Änderungen die Wertheims noch zur Konzeption des Neubaus einbringen konnte, erwies sich das ursprünglich als Wohngebäude geplante Gebäude als unzureichend für die Zwecke eines Warenhauses. Neben schlechter Belüftung und Belichtung, erwies es sich auch schnell als zu klein. So kam es auch mehrfach zu Unstimmigkeiten mit der Baupolizei und die geplante Hebung des Standards gelang nur teilweise.[7]

Lichthof im 1. Bauabschnitt, Ansichtskarte (zwischen 1900/05)

Planung und Errichtung

Nur wenige Monate nach der Eröffnung des Warenhauses in der Leipziger Straße plante Wertheim bereits den Bau eines neuen Gebäudes in der Oranienstraße. Ein erster Bauantrag nach einem Entwurf des Architekten Richard Laude wurde im Mai 1893 abgelehnt.[5][1] Daraufhin beauftragte Georg Wertheim den Architekten Alfred Messel, bereits im November 1893 wurde die Baugenehmigung erteilt. Messel sollte später für Wertheim diverse Warenhäusern entworfen, am bekanntesten ist sein Entwurf für das Wertheim an der Leipziger Straße geworden. Für den Neubau des Warenhauses in der Oranienstraße 53–54 in Berlin entwarf er eine neobarockes, an den französischen Bautypus des Warenhauses angelehntes Gebäude. Messel orientiere sich dabei besonders an Paul Sédilles Au Printemps und schuf damit das erste Warenhaus französischer Prägung in Deutschland.[1]

Nachdem Messel 1897 für Wertheim ein Warenhaus völlig neuartiger Gestaltung an der Leipziger Straße entworfen hatte, wurde er Anfang 1900 von Wertheim mit der Erweiterung des Hauses in der Oranienstraße beauftragt. Dort allerdings hielt er sich streng an seinen ursprünglichen Entwurf, verzichtete allerdings bei der Erweiterung auf die runden Fenster in der Balustrade. Die Bauarbeiten begannen im Frühjahr 1900, im August konnte der Rohbau abgenommen werden und zum Weihnachtsgeschäft wurde die Erweiterung eröffnet, in der sich auch ein photographisches Atelier befand.[8]

Zu einem unbekannten Zeitpunkt wurde auch das Erdgeschoss des Nachbarhauses Oranienstraße 55 einbezogen, jedoch ohne dass es zu größeren baulichen Veränderungen an diesem Gebäude kam.

Spätere Nutzung

Mit der Eröffnung des Warenhauses am Moritzplatz nach einem Entwurf von Eugen Schmohl 1913 wurde die Filiale geschlossen und anschließend vom Café am Moritzplatz benutzt, die dort ein Konzertcafé mit 1228 Sitzplätzen einrichteten. 1922 wurde das Café in Varieté Triumph-Palast umbenannt. Ab 1937 wurde das Gebäude als Seidengarnfabrik genutzt. Am 3. Februar 1945 brannte es bei Luftangriffen auf die Luisenstadt vollständig aus. Die Ruine wurde bis 1957 abgerissen.[8]

Literatur

  • Robert Habel: Alfred Messels Wertheimbauten in Berlin. Der Beginn der modernen Architektur in Deutschland. Berlin 2009, ISBN 978-3-7861-2571-6, S. 93–120, (Kapitel III. Das Warenhaus Wertheim an der Oranienstraße in Berlin).

Einzelnachweise

  1. a b c Robert Habel: Alfred Messels Wertheimbauten in Berlin. Der Beginn der modernen Architektur in Deutschland. Berlin 2009, ISBN 978-3-7861-2571-6, S. 112–113.
  2. Robert Habel: Alfred Messels Wertheimbauten in Berlin. Der Beginn der modernen Architektur in Deutschland. Berlin 2009, ISBN 978-3-7861-2571-6, S. 94–98.
  3. Christian Schramm: Deutsche Warenhausbauten. Ursprung, Typologie und Entwicklungstendenzen. Aachen 1995, S. 46.
  4. Robert Habel: Alfred Messels Wertheimbauten in Berlin. Der Beginn der modernen Architektur in Deutschland. Berlin 2009, ISBN 978-3-7861-2571-6, S. 99.
  5. a b Simone Ladwig-Winters: Wertheim. Geschichte eines Warenhauses. Berlin 1997, S. 19.
  6. a b Robert Habel: Alfred Messels Wertheimbauten in Berlin. Der Beginn der modernen Architektur in Deutschland. Berlin 2009, ISBN 978-3-7861-2571-6, S. 100–101.
  7. Robert Habel: Alfred Messels Wertheimbauten in Berlin. Der Beginn der modernen Architektur in Deutschland. Berlin 2009, ISBN 978-3-7861-2571-6, S. 102–103.
  8. a b Robert Habel: Alfred Messels Wertheimbauten in Berlin. Der Beginn der modernen Architektur in Deutschland. Berlin 2009, ISBN 978-3-7861-2571-6, S. 116–118.