Vogteihaus Gummersbach



Das Vogteihaus in Gummersbach, kurz Vogtei, regional auch bekannt als „Die Burg“, ist der ehemalige Amts- und Wohnsitz des Vogts der historischen Herrschaft Gimborn-Neustadt Johann Pollmann. Seit dem Bau im Jahr 1700 wurde es kaum verändert und ist heute eines der wenigen Gebäudedenkmale der Innenstadt.
Lage
Die Burg liegt im heutigen Stadtzentrum am Nordende der Fußgängerzone Kaiserstraße/Hindenburgstraße. Von dieser wird es durch eine niedrige, mit einem schmiedeeisernen Zaun bekrönte Bruchsteinmauer, sowie einige Meter absteigender Rasenfläche mit alten Lindenbäumen getrennt. Rückseitig grenzt das Anwesen an die parallel zum Bahnbogen verlaufende Andienungsstraße. Dem Vogteihaus gegenüber befindet sich seit den 1950er Jahren ein Kino mit dem Namen „Burgtheater“, welches zurzeit umgebaut wird (Stand: Januar 2024).
Beschreibung
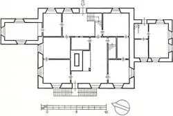
Das zweigeschossig verputzte Bruchsteingebäude schließt mit einem steilen Walmdach mit sehr kurzem First ab, so dass dieses beinahe einem Zeltdach gleicht. An beide Schmalseiten reihen sich eingeschossige Anbauten unterschiedlicher Tiefe mit gleicher Bedachung. Der Haupteingang befindet sich straßenseits im Mittelteil; Fensteröffnungen wurden links davon ein-, rechts zweiachsig geschaffen. Auf dem Sturz des Haupteingangs ist die lateinische Inschrift ‚INHABITAMUS UT EMIGREMUS‘ (dt. „wir wohnen hier, um auszuziehen“) zu lesen. In der Bekrönung sieht man das Wappen des Erbauers. Die Haustür besteht aus aufgedoppelten nietenbeschlagenen Bohlen und verfügt noch über den ursprünglichen eisernen Türklopfer. Zwischen den Geschossen erstreckt sich in gesamter Gebäudebreite die Jahreszahl 1700 in Eisenankern. Im Dach öffnen sich kleine Fenstergauben in einer Dreiergruppe sowie eine große Speicherluke. An der Rückseite des Hauptgebäudes befindet sich ein Hintereingang mit doppelläufiger Freitreppe über dem talwärts freiliegenden Kellergeschoss. An den Schmalseiten hinter dem östlichen Anbau befinden sich zwei, hinter dem breiteren westlichen Anbau eine Fensterachse. An den drei Seiten des östlichen Anbaus öffnet sich jeweils ein Fenster mit geschweiftem Sturz sowie straßenseitig eine weitere große Dachluke, am westlichen Anbau ein Nebeneingang sowie an der Straßenseite ein großes rechteckiges und an Rück- bzw. Westseite je zwei entsprechende Fenster.
In der Diele des Haupthauses war die barocke Treppe mit flachen, gesägten Balustern bis vor kurzem original erhalten. Ein schmaler Gang verbindet die vordere mit einer hinteren Diele, wo ein mächtiger Kamin mit kleiner Pflasterung unterm Rauchfang auffällt. Der übrige Fußboden der Dielen weist noch heute die ursprüngliche Belegung mit Platten aus Grauwacke auf. Ein Teil der Zimmertüren befinden sich mit ihren geschnitzten Ornamenten ebenfalls noch im Originalzustand der Erbauungszeit.
Der östliche Anbau weist nur einen Raum auf und ist vom Haupthaus zugänglich. Der westliche Anbau verfügt neben einem großen Zimmer noch über eine kleine Diele mit Treppenaufgang.
Geschichte
Dem einstigen regionalen Mittelpunkt Gummersbach war mit der 1301 gegründeten Stadt Neustadt ein Rivale erwachsen; neben der von vornherein zugedachten Aufgabe der Grenzsicherung übernahm Bergneustadt auch verwaltungsmäßige und rechtliche Aufgaben – so ab 1419 die vordem Gummersbach obliegende Hoch- und Blutgerichtsbarkeit der Grafschaft.
Nach einer Verwaltungs- und Justizneuordnung in der zweiten Hälfte des 17. Jahrhunderts bekam jedoch Gummersbach erneut den Gerichtssitz zugewiesen, und nicht zuletzt auf Drängen der Bevölkerung nahm der Vogt zwecks Beschleunigung der Gerichtsverfahren hier auch seinen ständigen Wohnsitz: Der damalige Amtsinhaber Johann Pollmann errichtete 1700 mit der „Burg“ sein repräsentatives Amts- und Wohngebäude.
Nach dem Tod des letzten Pollmann im Jahr 1847 wird die Burg von Franz Carl Albert Sondermann (Pfeifenfabrikant in Niederseßmar, Sohn des Oberbergischen Industriepioniers Johann Wilhelm Sondermann) erworben. Anfang Februar 1897 verkaufen seine Erben die Burg für 28.000 Mark an W. Kritzler jun.
Später geht das Gebäude durch Heirat in die Arztfamilie Dr. Linden über. Eine Arztpraxis wird heute in den Räumen jedoch nicht mehr betrieben. Die oben erwähnte barocke Treppe wurde inzwischen durch einen Neueinbau ersetzt.
Ende 2011 wurde das Haus durch die Entwicklungsgesellschaft Gummersbach, einer Tochtergesellschaft der Stadt, von den Erben des inzwischen verstorbenen Dr. Linden erworben. Über den Kaufpreis wurde Stillschweigen vereinbart.
Das Vogteihaus wird – ähnlich dem Oberbergischen Dom – seit etwa 100 Jahren als das älteste, weltliche Gebäude Gummersbachs und als zentrales stadtgeschichtliches Identifikationsobjekt in nahezu allen Publikationen hervorgehoben, die sich mit der Eigenwerbung Gummersbachs befassen.
Literatur
- Dietrich Rentsch (Hrsg. Rudolf Wesenberg, Albert Verbeek): Die Denkmäler des Rheinlandes. Bd. 10 (Oberbergischer Kreis), Teil 1. Rheinland-Verlag, Düsseldorf 1967.
- Gerhard Pomykaj: Gummersbacher Geschichte. Bd. 1 (Von den Anfängen bis zum Beginn der Napoleonischen Herrschaft 1806). Gronenberg, Gummersbach 1993, ISBN 3-88265-184-9.
- Jürgen Woelke: Alt Gummersbach in zeitgenössischen Bildern und Ansichten. Gronenberg, Gummersbach 1975.
Koordinaten: 51° 1′ 36″ N, 7° 33′ 57,2″ O