St. Johannis (Mainz)

Die Johanniskirche ist die älteste Kirche in Mainz, nach dem Trierer Dom die zweitälteste erhaltene Bischofskirche auf deutschem Boden und einziger erhaltener Dombau aus merowingischer, spätkarolingischer und frühottonischer Zeit in Deutschland. Seit ihrer Weihe im Jahr 910 bis zur Weihe des etwas weiter östlich gelegenen Mainzer Doms 1036 war sie die Bischofskirche des Erzbistums Mainz und wurde deshalb später auch als Aldeduom (Alter Dom) bezeichnet.[1] Die Johanniskirche wurde 1828 von der evangelischen Gemeinde übernommen. Patron ist der Heilige Johannes der Täufer.
Christentum in Mainz und erste Bischofskirche

Wann das Christentum in Mogontiacum, dem römischen Mainz, erstmals Fuß fasste, lässt sich nicht eindeutig feststellen. Als Stand der Forschung gilt, dass es für die Zeit vor der Konstantinischen Wende weder Hinweise auf ein wie auch immer organisiertes Christentum noch auf christliche Märtyrer in Mogontiacum gibt.[2] Erst mit Sidonius († nach 580) gab es Mitte des 6. Jahrhunderts einen auch historisch belegten Bischof von Mainz.
Historiker nehmen jedoch eine organisierte und unter Leitung eines Bischofs stehende Kirchengemeinde bereits um die Mitte des 4. Jahrhunderts an. Der erste gesicherte Hinweis auf eine in Mogontiacum bestehende größere christliche Gemeinde datiert in das Jahr 368. Ammianus Marcellinus berichtete im Zusammenhang mit dem Einfall der Alamannen unter Rando von einer großen Anzahl von Christen, die sich zu einem Kirchenfest[3] versammelt hatten und teilweise von den Alamannen verschleppt wurden.[4]
Zur gleichen Zeit wird auch die Existenz einer Bischofskirche angenommen, die sich vermutlich im Bereich der heutigen Johanniskirche befand. Der Standort einer offiziellen römischen Bischofskirche sowie deren Entstehungszeit sind jedoch nach wie vor unklar und werden in Fachkreisen kontrovers diskutiert. Relativ sicher ist, dass diese Kirche nicht auf dem jetzigen Domgelände gestanden haben kann. Unter der nahe gelegenen Johanniskirche brachten Ausgrabungen in den Jahren 1905 und 1950/51 u. a. Fundamente eines spätrömischen Bauwerks zum Vorschein. Diese konnten aber bei der damaligen, nicht publizierten Grabung nicht eindeutig einem kirchlich genutzten Gebäude zugewiesen werden. Trotzdem wurden diese Fundamente seitdem des Öfteren als Überreste der ersten Bischofskirche, die man sich als Kirchenfamilie mit einer Kathedrale vorzustellen hat, interpretiert.[5] Als mögliche Entstehungszeit der Bischofs- oder zumindest größeren Kirche wurde der Zeitraum nach 350 und vor 368 (die oben genannte Erwähnung einer größeren christlichen Gemeinde durch Ammianus Marcellinus) angesehen.[6] Alternativ wird nach älterem Forschungsstand immer noch eine frühchristlich-fränkische Bischofskirche St. Martin mit einer Marienkirche, die mit der späteren Johanniskirche identifiziert wird, als Katechumenkirche postuliert[7], was aber archäologisch nicht fassbar ist.
Das christliche Gemeindeleben kam zur Zeit der Völkerwanderung zum Erliegen. Erst unter Bischof Sidonius wurde wieder kirchliches Leben in Mainz möglich. Der Dichter Venantius Fortunatus schildert, wie Sidonius Kirchenbauten erneuerte. Dies ist der älteste Bericht über Kirchenbaumaßnahmen in Mainz und gleichzeitig ein Beleg, dass es zuvor schon Kirchen gegeben hatte.[8]
.png)
Ende des 8. Jahrhunderts gab es möglicherweise einen Patrozinientausch. Ursprünglich als oder in der Nähe einer archäologisch nicht nachweisbaren Marienkirche entstanden, ging nach der Beisetzung einiger Reliquien des Hl. Bonifatius durch Bischof Lul im Jahr 754 das Patrozinium auf Bonifatius über. Bereits 823 wird eine Bonifatiuskapelle bei der Marienkirche genannt. Da das Reliquiengrab des Hl. Bonifatius noch Ende des 18. Jahrhunderts ausdrücklich als in St. Johannis befindlich genannt wird, könnte die Bonifatiuskapelle bereits 754, spätestens aber 910, ein baulich nicht selbständiger Teil der späteren Johanniskirche gewesen sein. Literarisch bezeugt ist der Bau einer Taufkirche in Mainz unter Bischof Sidonius im 6. Jahrhundert, deren Patrozinium bei der Weihe der neuen Kathedrale auf die alte übertragen wurde. Da kein Wechsel des Bistumpatrons St. Martin in der zweiten Hälfte des 1. Jahrtausends anzunehmen ist, kommt auch der Hl. Martin als Patron in Betracht, zumal das Mainzer Domkapitel noch im 18. Jahrhundert am Martinstag in St. Johannis einen Gottesdienst feierte. Schließlich ist auch ein Doppelpatrozinium in Erwägung zu ziehen: der Hatto-Bau von 910 war mit zwei Chören ausgestattet mit je einem Altar, die – wie im Mainzer Dom auch – zwei verschiedenen Heiligen geweiht sein mussten.
Vom Mittelalter bis in das 21. Jahrhundert
Erzbischof Hatto I. errichtete ab etwa 900 die damalige Domkirche neu und weihte diese 910 ein. Damit zählt sie nach dem Trierer Dom zu den ältesten Kathedralbauten Deutschlands. Hattos Bau ist mit später angefügten Veränderungen die heutige Johanniskirche. Diese Kirche war als Kathedralkirche des Bistums Mainz zunächst dem Heiligen Martin von Tours geweiht. Nach 975 ließ Erzbischof Willigis östlich der bestehenden Kathedrale einen Kathedralneubau errichten, den neuen Mainzer Dom. Der Neubau wurde 1036 ebenfalls dem Heiligen Martin geweiht. Die gesamte Ausstattung und die Pfründen des Domkapitels wurden von der alten Kathedrale, die in den nächsten Jahrhunderten als Aldedu(o)m, also als Alter Dom bezeichnet wurde, in die neue Kirche übertragen. Nach der Kirchweihe des Neubaus wurde im Alten Dom ein Kanonikerstift eingerichtet. Erst für das Jahr 1128 ist für den Alten Dom das Patrozinium von Johannes dem Täufer schriftlich überliefert, doch dürfte es bereits 1036 eingerichtet worden sein.[9]
König Heinrich wurde 1002 im Alten Dom zum König gekrönt und Erzbischof Erkanbald fand hier 1021 seine letzte Ruhestätte.[10]
Wohl wegen der schlechten Fundamentierung wurde zu romanischer Zeit das Querhaus abgebrochen und die Vierung zu einem Langhausjoch umgestaltet. Mitte des 13. Jahrhunderts war die Johanniskirche in einem so schlechten Zustand, dass von Papst Gregor IX. ein Ablass zugunsten der Kirche gewährt wurde. Doch erst im 14. Jahrhundert wurde mit größeren Baumaßnahmen begonnen: anstelle des Westchors entstand ein hoher gotischer Anbau.
Größere Veränderungen erfolgten dann in der Barockzeit: 1685 wurde der Fußboden um mehr als 2 m aufgeschüttet, und ein hölzernes Kreuzgratgewölbe wurde eingezogen; 1737 wurde die Ostapsis abgebrochen und stattdessen ein Portal eingefügt; 1747 wurde der Westchor mit einer Welschen Haube überdacht. Im Jahr 1767 brannte das Paradies nieder, ein gedeckter Verbindungsgang zwischen Johanniskirche und Dom.
Mit der französischen Besetzung 1792 endete die Nutzung als Stiftskirche. Das Gebäude wurde als Lager und für militärische Zwecke gebraucht. Schließlich wurde das Stift auch formal mit dem Reichsdeputationshauptschluss aufgelöst. Im Jahr 1828 wurde die Johanniskirche der evangelischen Gemeinde zur Verfügung gestellt. Aufwendige Wiederherstellungsarbeiten waren die Folge. Der Kreuzgang im Norden der Kirche ging verloren, das Ostportal und die Seitenschiffarkaden wurden zugemauert. Die abgetrennten Seitenschiffe wurden umgenutzt und zum Teil vermietet. 1830 konnte die Kirche eingeweiht werden.
Ab 1906 erfuhr das Kircheninnere eine Umgestaltung im Jugendstil, nachmittelalterliche Einbauten wurden entfernt, Bauuntersuchungen fanden durch Rudolf Kautzsch statt. Die Gestaltung der Kirche wurde in die Hände des Darmstädter Architekten Friedrich Pützer gelegt. Er errichtete eine neue Portalanlage im Osten und gestaltete die Seitenschiffe neu. Auch die komplette Inneneinrichtung wurde von Pützer als Gesamtkunstwerk gestaltet.
Im Zweiten Weltkrieg brannte die Kirche nach einem Luftangriff auf Mainz im August 1942 völlig aus. Das Gebäude war so stark beschädigt, dass ihr Abriss erwogen, aber nicht durchgeführt wurde. Den Wiederaufbau leitete der Darmstädter Architekt Karl Gruber. Er ließ sämtliche Einbauten Pützers entfernen. Gruber orientierte sich in seinem Entwurf am Idealbild des ursprünglichen spätkarolingischen Kirchenbaus Hattos. Wohl aus Geldmangel wurde das schon im Mittelalter verlorengegangene Querhaus nicht rekonstruiert, auch die zerstörte Welsche Haube des Westchors konnte nicht wiederhergestellt werden. Die Tieferlegung des Fußbodens auf ihr ursprüngliches Niveau scheiterte nicht zuletzt aus statischen Gründen, da die alten Fundamente mangelhaft sind. Die barocken Holzgewölbe wurden nicht rekonstruiert, stattdessen ließ Gruber eine hölzerne Spitztonne einziehen, die der ursprünglichen Raumwirkung eines offenen Dachstuhls nahekommt und zum hohen gotischen Westchor vermittelt. Am 9. Dezember 1956 wurde die Johanniskirche nach der Renovierung wieder eingeweiht.
2009/10 wurden umfangreiche Renovierungsarbeiten an Dachstuhl und Mauerwerk des Gebäudes durchgeführt. Zur Aufbringung der notwendigen Mittel gab es zahlreiche Veranstaltungen, unter anderem ein Benefizkonzert im benachbarten katholischen Dom.
Bedeutende archäologische Funde wurden ab Mitte des Jahres 2013 gemacht, als in der Kirche eine Fußbodenheizung eingebaut werden sollte.[11] In Vorbereitung dieser Baumaßnahme begannen archäologische Ausgrabungen, die zunehmend umfangreicher wurden. Seit Mitte 2017 ist das Innere der Kirche vollständig entkernt. Dabei wurden Reste der Bausubstanz von Vorgängerbauten bis hin zur römischen Zeit gefunden. Auf ein nicht weiter identifizierbares römisches Bauwerk aus dem 1. Jahrhundert folgte ein in spätrömischer Zeit errichteter größerer Bau mit einer Nord-Süd-Ausdehnung von ca. 20 Metern. Dieses Bauwerk, dem auch drei in der Nähe gefundene Pfeilersockel zugeordnet werden, stürzte gegen Ende der römischen Zeit ein, wobei sich das eingestürzte Ziegeldach bei den Ausgrabungen 2015 noch in situ befand. Aus der gleichen Epoche stammen wahrscheinlich Fragmente eines Grabsteins mit frühchristlichem Motivschmuck und Resten der Inschrift.[12] Weiteres, bis zu 10 Meter aufgehendes Mauerwerk eines nachfolgenden Bauwerks wurde von Archäologen und Bauforschern in die folgenden Epochen der Merowinger- und Karolingerzeit datiert. Die Grabungen sind mehrere Meter unter das letzte Fußboden-Niveau vorangetrieben worden. Bei der Öffnung eines bei den Grabungen gefundenen steinernen Sarkophages wurden 2019 die sterblichen Überreste Erkanbalds gefunden, der von 1011 bis 1021 in Mainz Erzbischof war.[13][14] Die archäologischen Untersuchungen dauern an (2022).
Im westlichen Bereich der Kirche wurde mittlerweile ein provisorischer Holzboden eingezogen, der es ermöglicht, in der Baustelle in begrenztem Rahmen wieder Gottesdienste zu feiern.
-
Vor Beginn der Ausgrabungen: Blick aus dem südlichen Seitenschiff in das Mittelschiff im Jahr 2010 -
Das nördliche Seitenschiff im Jahr 2010 -
Das Deckengewölbe (Spitztonne aus Holz) im Jahr 2010 -
Historischer Fußboden, der bei den Ausgrabungen im Mittelschiff gefunden wurde. -
Blick auf die Ausgrabung im Mittelschiff - mit Sarkophag von Erzbischof Erkanbald -
Im Rahmen der archäologischen Arbeiten wurde am 4. Juni 2019 der Deckel des Sarkophags der zentralen Bestattung abgehoben
Architektur
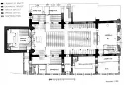
Hattos Kirche ist einer der wenigen erhaltenen spätkarolingischen Kirchenbauten. Sie wurde als Basilika errichtet, ihr breites Mittelschiff ist höher als die schmalen Seitenschiffe. Das Gebäude wurde als Doppelchoranlage in Ost-West-Richtung angelegt.
Im Osten befindet sich ein Chorraum von der Breite des Mittelschiffs. Die Seitenwände des Ostchors werden durch je zwei Rundbogenfenster und darüber liegende Rundfenster (Okuli) geöffnet. Westlich an den Chor schließt ein rechteckiges Langhaus an, das von schmalen Seitenschiffen flankiert wird. Die Mittelschiffswände werden im oberen Bereich (dem Obergaden) durch je vier Rundbogenfenster durchbrochen, darunter öffnen sich jeweils vier Arkaden (später geschlossen) in die ehemaligen Seitenschiffe (jetzt Gemeinderäume). An dieses Langhaus schließt ein quadratisches Joch an, das dem östlichen ähnelt, allerdings zur Erbauungszeit die Vierung von Langhaus und Querhauses gewesen ist. Darauf folgte in spätkarolingischer und romanischer Zeit wahrscheinlich eine halbrunde Apsis, die im 14. Jahrhundert durch einen hohen gotischen Chor über quadratischem Grundriss ersetzt wurde.[15]
Orgel
Um 1797 baute Franz Xaver Ripple eine Orgel für die Altmünsterkirche in Mainz, die um 1808 in die Welschnonnenkirche überführt wurde. 1830 wurde diese Orgel durch den Orgelbauer Bernhard Dreymann in der Johanniskirche neu aufgebaut und erweitert. 1884 wurde die Orgel durch eine neue Orgel von Wilhelm Sauer ersetzt, die alte Orgel wurde an die evangelische Gemeinde in Tann (Rhön) verkauft, wo sie 1971 durch eine neue Orgel ersetzt wurde. Die Sauer-Orgel wurde im Zweiten Weltkrieg zerstört. Eine neue Orgel wurde 1960/61 von der Orgelbaufirma Förster & Nicolaus (Lich) erbaut.[16] Das Schleifladen-Instrument hat 40 Register auf drei Manualen und Pedal. Die Orgel wurde später mit einer elektronischen Setzeranlage und Sequenzer ausgestattet.[17] Bei der Renovierung ab 2013 wurde diese Orgel entfernt und ab 2018 in der Klosterkirche von Ilsenburg aufgebaut.[18]
Kirchenmusiker
- Hanswolf Scriba (1927–2008)
- Volker Ellenberger seit 1991
Literatur
nach Autoren / Herausgebern alphabetisch geordnet
- Fritz Arens: Die Kunstdenkmäler der Stadt Mainz. Teil 1, Kirchen A–K (= Die Kunstdenkmäler von Rheinland-Pfalz. Band 4). Deutscher Kunstverlag, München 1961, S. 409–442.
- Fritz Arens, Hanswolf Scriba: Mainz, St. Johannis (= Kleine Kunstführer. Nr. 1109). Schnell und Steiner, München 1977.
- Michael Bonewitz: Die Funde in der Johanniskirche halte ich für eine Sensation. Interview mit Professor Dr. Stefan Weinfurter. In: Mainz. Vierteljahreshefte für Kultur, Politik, Wirtschaft, Geschichte. Band 34, Heft 4, 2014, S. 10–23.
- Michael Bonewitz: Mainz entdeckt einen alten Dom. Johanniskirche entpuppt sich schon jetzt als archäologische Sensation. In: Domblätter. Forum des Dombauvereins Mainz. Band 16, 2014, S. 58–63.
- Andreas Büttner: Alter Dom St. Johannis Mainz. Eine Geschichte. Herausgegeben vom Evangelischen Dekanat Mainz. Mainz 2022.
- Guido Faccani: Mainz, St. Johannis. Einhundertundzehn Jahre Bauforschung in einer Kirche abgerufen am 12. Dezember 2023
- Guido Faccani (Hrsg.): Das Grab von Erzbischof Erkanbald († 1021): Erforschung einer Sarkophagbestattung in der ehemaligen Mainzer Kathedrale St. Johannis. Schnell & Steiner 2023. ISBN 978-3-7954-3743-5.
- Friedhelm Jürgensmeier: Die Bischofskirche Sankt Martin zu Mainz (= Beiträge zur Mainzer Kirchengeschichte. Band 1). Knecht, Frankfurt am Main 1986, ISBN 3-7820-0534-1.
- Marlene Kleiner, Matthias Untermann: Der Alte Dom von Mainz – Bauuntersuchungen in der St. Johanniskirche 2013–2016. In: INSITU 2017/2. ISSN 1866-959X, S. 153–162.
- Christian-Erdmann Schott: St. Johannis – Mutter-Kirche für das evangelische Mainz. 1802–2010. In: Ebernburg-Hefte. Band 47, 2013, S. 63–78 = Beilage zu Blätter für pfälzische Kirchengeschichte und religiöse Volkskunde. Band 80, 2013, S. 255–270.
- Dethard von Winterfeld: Der Alte Dom zu Mainz. Zur Architektur der Johanniskirche (= Forschungsbeiträge des Bischöflichen Dom- und Diözesanmuseums. Band 1). Schnell + Steiner, Regensburg 2013, ISBN 978-3-7954-2777-1.
Weblinks
- Seiten der Evangelischen St. Johanniskirchengemeinde
- Der alte Dom zu Mainz – medial aufwändig gestaltete Seite zur Geschichte und Renovierung von St. Johannis
- Freundeskreis Alter Dom St. Johannis e. V.
- Stefan Grathoff: Die Mainzer Johanniskirche. In: regionalgeschichte.net. 23. September 2014.
- Martina Rommel, Reinhard Schmid: Mainz – St. Johannis. In: Klöster und Stifte in Rheinland-Pfalz.
Einzelnachweise
- ↑ Eugen Ewig: Die ältesten Mainzer Patrozinien. Frühgeschichte des Bistums Mainz. In: Eugen Ewig: Spätantikes und Fränkisches Gallien. Gesammelte Schriften (1952–1973). München 1979, S. 156.
- ↑ Walburg Boppert: Zur Ausbreitung des Christentums in Obergermanien unter besonderer Berücksichtigung der Situation in der Provinzhauptstadt Mogontiacum. In: Wolfgang Spickermann, Hubert Cancik, Jörg Rüpke (Hrsg.): Religion in den germanischen Provinzen Roms. Mohr Siebeck, Tübingen 2001, ISBN 978-3-16-147613-6, S. 383.
- ↑ Leonhard Schumacher nimmt an, dass es sich hierbei um das Osterfest am 20. April 368 gehandelt hat.
- ↑ Ammianus Marcellinus 27, 8, 1 und 27, 10, 1.
- ↑ Jürgen Oldenstein: Mogontiacum. In: Heinrich Beck, Dieter Geuenich, Heiko Steuer (Hrsg.): Reallexikon der Germanischen Altertumskunde. Band 20: Metuonis – Naturwissenschaftliche Methoden in der Archäologie. De Gruyter, Berlin/New York 2001, S. 152; Karl-Viktor Decker, Wolfgang Selzer: Mainz von der Zeit des Augustus bis zum Ende der römischen Herrschaft. In: Hildegard Temporini, Wolfgang Haase (Hrsg.): Aufstieg und Niedergang der römischen Welt. Band II 5, 1: Politische Geschichte (Provinzen und Randvölker: Germanien [Fortsetzung], Alpenprokuraturen, Raetien). De Gruyter, Berlin/New York 1976, ISBN 3-11-006690-4, S. 530.
- ↑ Hans Werner Nopper: Die vorbonifatianischen Mainzer Bischöfe. Eine kritische Untersuchung der Quellen zu den Anfängen des Bistums Mainz und zur Zuverlässigkeit der Bischofslisten. Selbstverlag, Mülheim an der Ruhr (Books on Demand, Norderstedt) 2001, ISBN 3-8311-2429-9, S. 41 ff. (Diplomarbeit Universität Bonn 1995/96).
- ↑ Ludwig Falck: Von der fränkischen Zeit bis zum Ende des 18. Jahrhunderts. In: Landesamt für Denkmalpflege Rheinland-Pfalz (Hrsg.): Kulturdenkmäler in Rheinland-Pfalz. Band 2, 2: Stadt Mainz – Altstadt. In: Denkmaltopographie Bundesrepublik Deutschland. 3. Auflage. Wernersche Verlagsgesellschaft, Worms 1997, ISBN 3-88462-139-4, S. 15 ff.
- ↑ Venantius Fortunatus, Carminum liber II Nr. 11–12 und IX Nr. 9.
- ↑ Ludwig Falck: Von der fränkischen Zeit bis zum Ende des 18. Jahrhunderts. In: Landesamt für Denkmalpflege Rheinland-Pfalz (Hrsg.): Kulturdenkmäler in Rheinland-Pfalz. Band 2, 2: Stadt Mainz – Altstadt. 3. Auflage. Wernersche Verlagsgesellschaft, Worms 1997, ISBN 3-88462-139-4, S. 100.
- ↑ Karsten Packeiser: Rätsel um den Alten Dom von Mainz. In: evangelisch.de. 10. September 2025, abgerufen am 10. September 2025.
- ↑ Markus Schug: Alter Dom viel älter als gedacht. faz.net, 27. Februar 2014, abgerufen am 27. Februar 2014.
- ↑ Landesarchäologie findet Fragmente eines spätantiken christlichen Grabsteins. Archiviert vom (nicht mehr online verfügbar) am 13. Januar 2016; abgerufen am 13. Januar 2016. Info: Der Archivlink wurde automatisch eingesetzt und noch nicht geprüft. Bitte prüfe Original- und Archivlink gemäß Anleitung und entferne dann diesen Hinweis. (mit Abbildung).
- ↑ Gisela Kirschstein: Es ist Erkanbald – Abschlussbericht zum Sarkophag in der Johanniskirche bestätigt Identität als Erzbischof, in: Mainz&, 14. November 2019.
- ↑ Andreas Büttner: Alter Dom St. Johannis Mainz. Eine Geschichte. Herausgegeben vom Evangelischen Dekanat Mainz. Mainz 2022. Seite 16 ff
- ↑ Ausgrabungen in der Mainzer Johanniskirche: „Am spannendsten ist es, wenn etwas geöffnet wird“. Aus der SWR Landesschau Rheinland-Pfalz ( des vom 22. Februar 2014 im Internet Archive) Info: Der Archivlink wurde automatisch eingesetzt und noch nicht geprüft. Bitte prüfe Original- und Archivlink gemäß Anleitung und entferne dann diesen Hinweis., aufgerufen am 17. März 2014.
- ↑ Fritz Rohrbach (Hrsg.): Festschrift zur Einweihung der neuen großen Orgel der evangelischen St. Johanniskirche zu Mainz 1961. Mainz 1961.
- ↑ Orgel-Disposition ( des vom 6. Oktober 2013 im Internet Archive) Info: Der Archivlink wurde automatisch eingesetzt und noch nicht geprüft. Bitte prüfe Original- und Archivlink gemäß Anleitung und entferne dann diesen Hinweis. auf den Seiten der Kirchenmusik an St. Johannis.
- ↑ Jörg Niemann: Orgel aus St. Johannis erklingt im Harz. In: Allgemeine Zeitung Mainz vom 27. Dezember 2018
Koordinaten: 49° 59′ 54″ N, 8° 16′ 20″ O