Schopenhauerhaus

(Rendering aus dem Virtuellen Altstadtmodell Frankfurt am Main von Jörg Ott)

(Chromolithografie, 1904)

Das Schopenhauerhaus mit der Adresse Schöne Aussicht 16 war ein klassizistisches Wohnhaus im Fischerfeldviertel der heutigen Innenstadt von Frankfurt am Main. Nach Norden besaß es, von einem für die Verhältnisse der Altstadt geräumigen Innenhof unterbrochen, ein Hinterhaus zur Straße Hinter der Schönen Aussicht mit der Hausnummer 21.
Das Gebäude wurde nach Plänen des Stadtbaumeisters Johann Georg Christian Hess 1805 für den jüdischen Bankier Wolf Zacharias Wertheimber errichtet und gilt als das Hauptwerk des bürgerlichen Klassizismus in Frankfurt. Neben seiner architektur- und kunstgeschichtlichen Bedeutung diente es im 19. und in der ersten Hälfte des 20. Jahrhunderts als Wohnstätte wichtiger städtischer und nationaler Persönlichkeiten. Namensgebend war der Philosoph Arthur Schopenhauer, der dort von 1859 bis zu seinem Tod 1860 lebte. Es war der letzte seiner zahlreichen Wohnsitze.
Im Zweiten Weltkrieg fing das Schopenhauerhaus, nachdem es bei mehreren schweren Bombardements nur geringe Schäden davongetragen hatte, bei den Bombenangriffen des 22. März 1944 Feuer und brannte bis auf das Erdgeschoss nieder. Auf der Parzelle wurde nach dem Krieg ein Zweckbau im Stil der 1950er Jahre errichtet, der jetzt aufgrund des Durchbruches der Kurt-Schumacher-Straße ein Eckhaus ist. An sein Vorgängergebäude erinnert nichts mehr.
Geschichte
Vorgeschichte und Entwicklung des Baugrundes

(Kupferstich von Matthäus Merian d. Ä. mit Nachträgen der Erben)
Die östlich des Domhügels gelegene Niederung am Main war schon im Mittelalter als Fischerfeld bekannt.[1] Doch eine dichte Bebauung wie im übrigen Stadtgebiet machten die Witterungsverhältnisse kaum möglich: Während der Herbst- und Wintermonate überflutete der anschwellende Fluss das Gebiet und verwandelte es in einen Sumpf, im Winter fror es häufig flächenhaft zu.[2] Dennoch entwickelte sich dort eine kleine Vorstadt,[3] die dauerhafter Wohnsitz vor allem der namensgebenden Fischer, aber auch von Weißgerbern wurde.[4][5]
Der Frankfurter Chronist Baldemar von Petterweil beschrieb die Ansiedlung um 1350 als eine einzige Reihe Häuser, die durch drei kleine Gassen voneinander getrennt waren.[6] Jedoch ging das Dorf mit 29 Bewohnern im Jahr 1354 und 22 1365 schon Ende des 14. Jahrhunderts wieder ein.[7] Vermutlich hatte der damalige Umbau der Alten Brücke durch Madern Gerthener zu engeren Brückenbögen als vorher geführt, wodurch die Brücke nun wie eine Staustufe wirkte und das Wasser noch stärker in das Gebiet presste.[8] Auch strategisch-militärische Gründe vor dem Hintergrund der damaligen Hussitenkriege wurden von der Forschung als Grund für die Aufgabe in Betracht gezogen.[9][10]
Sowohl die Stadtmauer der Stauferzeit als auch die der zweiten Stadterweiterung nach 1333 hatten das Gebiet ausgespart. Stattdessen war es durch eine eigene Ummauerung geschützt, die jedoch kaum etwas gegen die jährlichen Überschwemmungen ausrichten konnte. Erst durch die bastionäre Befestigung des 17. Jahrhunderts wurde sie zum Main hin verstärkt, erhöht und das Areal 1632/33 mittels des Fischerfeldbollwerks in das Stadtgebiet einbezogen.[Anm. 1] Die Innenfläche blieb aber, wie schon seit dem Niedergang der Vorstadt, weitgehend unbebaut.[11]

(Zeichnung von Johann Kaspar Zehender)
Genutzt wurde das Fischerfeld allerdings als Schießplatz der Schützengesellschaft der Krautschützen, deren Schützenhaus seit dem dritten Viertel des 15. Jahrhunderts eines der wenigen dauerhaften Bauwerke war; ihre Zielscheiben fanden auf den Merian-Plänen der Stadt überdimensionale Darstellung.[12] Später waren dort Gärten und der inzwischen hochgewachsene alte Baumbestand einziges größeres Naherholungsgebiet innerhalb der schützenden Mauern. Johann Wolfgang von Goethe berichtete im 16. Buch von Dichtung und Wahrheit davon, wie er hier im Winter gerne Schlittschuh lief.[13] Seit der Reformationszeit verlagerte sich die Prostitution, die in der Stadt nicht mehr geduldet wurde,[14] vor allem während der Messen in jenen abgelegenen Osten der Stadt.[15]
In der Goethezeit hatten der lange Frieden im 18. Jahrhundert, der Aufstieg des Bürgertums, die Aufklärung und das Vordringen des Klassizismus zu einem grundsätzlichen Wandel der Lebens- und Wohnvorstellungen in großen Teilen der Bevölkerung geführt. Mit palaisartigen Bauten an der Zeil und am Roßmarkt, den einzigen weitläufigen Straßen- und Platzanlagen, sowie Gartenhäusern vor den Mauern der Stadt drückte sich die Sehnsucht vor allem der städtischen Oberschicht nach mehr Großzügigkeit im Bauwesen aus. Markantestes Kennzeichen war die Umnutzung der bastionären Befestigung der Stadt, die aufgrund ihrer militärischen Bedeutungslosigkeit gegenüber modernen Feuerwaffen seit 1765 mit Bäumen bepflanzt als „Lustallee“ für Spaziergänge diente.[16]

(Altkolorierter Kupferstich von Jakob Samuel Walwert nach Vorlage von Johann Hochester)
Aber selbst in der Neustadt, der heutigen Innenstadt, fehlte der Baugrund zur Verwirklichung von Vorhaben nach den neuen Idealen, dominierten doch auch dort bis auf wenige Ausnahmen mittelalterliche schmale Straßen und kleine Parzellen, deren Zusammenführung aus vielerlei Gründen, vorrangig aber wegen komplizierter Eigentumsverhältnisse, kaum möglich war. Wohl Ende der 1780er Jahre kam im Stadtrat die Idee auf, erstmals seit dem frühen 14. Jahrhundert die Stadt zu erweitern. Vielleicht schon 1788, sicher aber 1792 legte der seit 1787 im Amt befindliche Stadtbaumeister Johann Georg Christian Hess einen ersten Bebauungsplan für das zukünftige Viertel vor. Die Ausführung wurde 1792 im Rat beschlossen und noch im April die Versteigerung der Grundstücke eingeleitet.[Anm. 2]
Die Arbeiten begannen 1793 und schritten, bedingt durch die angestrebte geschlossene Blockrandbebauung, systematisch von Westen nach Osten voran.[Anm. 3] Auf der Ostseite der Fahrgasse wurden der Brückhof und eine Anzahl der dort dominierenden Giebelhäuser abgerissen, um einen Anschluss an das Neubaugebiet zu schaffen.[17] Die anschließende Auffüllung des Fischerfeldes bis zur Spitze der gotischen Stadtmauer, nun Futtermauer für den Kai, ist in ihrem Beginn nicht eindeutig datierbar. Klar ist nur, dass sie in dem sumpfigen Gebiet ausschließlich der ausgesparten Kellerbereiche teilweise über sechs Meter betrug.[Anm. 4]
Weitere ingenieurtechnische Details des für die Zeit gewaltigen Unterfangens, beispielsweise die Beschaffung und die logistische Bewältigung der sich bei rund 400 Metern Uferlänge auf 200 Metern Tiefe des Viertels ergebenden 480.000 Kubikmeter Füllmaterial sind unbekannt.[18] Überliefert ist nur, dass sich die Aufschüttung weit länger als erwartet hinzog und erst deutlich nach 1810, vermutlich sogar erst gegen 1820 abgeschlossen war, was auf die Schwierigkeiten hinweist.[19] Die ältesten Bauten im Bereich des ehemaligen Brückhofs, die nach der Auffüllung rasch folgten, datierten auf das Jahr 1797, die letzten entstanden nach offenbar längerer Unterbrechung in einer großen Endbauphase der frühen 1820er Jahre.[20] Mit der Einweihung der Alten Stadtbibliothek im Jahr 1825 galt die Stadterweiterung als vollendet.[21]
Der Bauherr und seine Herkunft

(Ölgemälde)
Die Frankfurter Juden, ursprünglich weitgehend gleichberechtigt südlich des Doms ansässig, waren 1462 in ein Ghetto vor der staufischen Stadtmauer zwangsumgesiedelt worden. Die Frankfurter Judengasse stieß südlich direkt an das Fischerfeld an.[22] Zwei Großbrände 1711 und 1721 zerstörten große Teile der Judengasse, die aber jedes Mal in alter Form wiederaufgebaut wurden.[23][24] Das heißt, dass sich rund 200 Häuser mit Frontbreiten von zwei bis selten mehr als vier Metern auf 330 Metern Gassenlänge drängten. Unter diesen Verhältnissen lebten hier mehr als 3000 Menschen.[25]
1769 heiratete Zacharias Isaak Wertheimber aus München im Hochzeitshaus der Judengasse die hier gebürtige Frummet Speyer, eine Schwester von Isaak Michael Speyer.[26] Dieser galt vor dem Aufstieg des Bankhauses Rothschild als der mit Abstand vermögendste Frankfurter Jude.[27] Auch Zacharias Isaak, der sich alsbald mit seinem Bruder Elias Isaak im Ghetto niederließ, wo er ebenfalls Bankgeschäfte pflegte, kam aus einer bedeutenden Familie. Beide waren Urenkel des in Wien als kaiserlicher Hoffaktor und Oberrabbiner tätigen Samson Wertheimber.[28] Als Beispiel für seinen Einfluss mag gelten, dass er nach dem Gassenbrand von 1711 gegen den Willen des Frankfurter Rats mittels einer direkten kaiserlichen Intervention den Bau eines luxuriösen, zehn Meter breiten Steinhauses durchzusetzen vermochte.[29]
Die Bankgeschäfte der Brüder unter dem Firmennamen Zacharias & Elias Isaak Wertheimber entwickelten sich prächtig, wie überlieferte Angaben zu ihren Vermögen belegen. Als Elias Isaak 1794 starb, hinterließ er alleine ein Privatvermögen von 90.000 Gulden,[26] Zacharias Isaak folgte ihm 1803 nach.[30] Von seinen acht Kindern führte der 1782 geborene Wolf Zacharias die väterliche Firma fort.[31] Am 15. Dezember 1803 heiratete er eine erst fünfzehnjährige Tochter seines verstorbenen Onkels Elias Isaak Wertheimber, Leonore, und bekam mit ihr mindestens 15 Kinder.[32]

(Kolorierte Aquatinta von Christian Georg Schütz d. J. und Regina C. Carey)
Im Jahr 1796, als die Stadt von österreichischen Truppen besetzt war, wurde sie von französischen Belagerern beschossen, wobei die Judengasse abermals in Brand geriet und rund ein Drittel ihrer Häuser einbüßte.[33] Auch das Stammhaus der Wertheimbers, das Haus Roter Turm, das eine Fassadenbreite von nur 2,28 Metern aufwies, brannte nieder.[34]
Nach der Französischen Revolution und der einsetzenden französischen Besetzung der Stadt überwanden die Juden zumindest zeitweise den Ghettozwang und erlangten die Erlaubnis zur Niederlassung im christlichen Teil der Stadt. Der Beginn der Emanzipation zeichnete sich auch durch die nochmals neu errichteten Häuser im nördlichen Teil der Judengasse ab. Dort entstanden auf der gleichen Fläche statt der rund 60–70 zerstörten Gebäude rund 20 klassizistische Neubauten.[33]
Noch bevor der 1806 auf Veranlassung Napoleons eingesetzte Fürstprimas Carl Theodor von Dalberg die Gleichberechtigung aller Konfessionen verfügte und dies 1811 gegen eine Zahlung von 440.000 Gulden durch die Juden auch per Verordnung durchgesetzt wurde, gelang es einigen sehr vermögenden jüdischen Bürgern, Bauplätze im Fischerfeld zu kaufen.[2] Vermutlich mussten sie auch für das Recht, dort ein Haus zu bauen, hohe Summen entrichten, was allerdings nicht überliefert ist. Wolf Zacharias Wertheimber kaufte zwei Parzellen an der Schönen Aussicht, im Gegensatz zu der überwiegenden Zahl seiner Glaubensgenossen, die sich bevorzugt an der Brückhof- und der Fischerfeldstraße niederließen.[35][Anm. 5]
Der Architekt und die Bauausführung

(Kupferstich)
Für Johann Georg Christian Hess waren bei der Ausarbeitung des Bebauungsplans noch die Ideale des 18. Jahrhunderts maßgeblich, die ein regelmäßiges Netz parallel verlaufender und sich rechtwinklig kreuzender Straßen vorsahen. Abweichend davon und fortschrittlicher war dagegen der Verzicht auf eine breite Magistrale zugunsten der weitgehenden Gleichberechtigung aller Straßen.[36] In die Zukunft wies auch der großzügige Zuschnitt der annähernd gleich großen Parzellen, die durchschnittlich 15 bis 16 Meter Fassadenbreite bei annähernd doppelter Tiefe erlaubten.[37]
Eine absolute Neuheit und einen völligen Bruch mit der bisherigen Baupolitik stellte die Vorbedingung dar, die „Neue Anlage“ als reines ruhiges Wohngebiet auszuweisen; die Ansiedlung von Handwerksbetrieben war ebenso verboten wie das Aushängen von Schildern an den zu bauenden Häusern.[38] Nicht weniger revolutionär war es, dort ausschließlich Etagenhäuser von gleicher Form und Höhe zu errichten, die vermietet werden sollten. Mit dem Vorbild für dieses Konzept konnte sich Hess wohl während seines Studiums in Paris 1774 bis 1776 ausgiebig beschäftigen.[39]

(Altkolorierter Kupferstich von Johann Conrad Felsing nach Vorlage von Christian Friedrich Ulrich)
Wolf Zacharias Wertheimber hatte zwei Parzellen erworben, da er ein Haus mit einer Fassadenbreite von 40 Metern errichten lassen wollte.[40] Bedenkt man den Kinderreichtum der Familie und die Dimensionen des bisherigen Hauses in der Judengasse, war diese Großzügigkeit verständlich. Dennoch konnten seine konträr zu den Idealen des Viertels stehenden Absichten prinzipiell als Wagnis gelten; zudem hatte Hess, der als Leiter des Bauamts das städtische Bauwesen der Zeit vollständig unter seiner Kontrolle hatte, den Ruf eines Dogmatikers. Selbst kleinste Details seiner Bauten unterwarf er den Lehren großer Vorbilder der Klassik wie Vitruv oder Palladio.[41]
Doch der Bauherr kannte wohl die andere Seite des Stadtbaumeisters, die erst die jüngere Forschung wieder aufgebracht hat. Hess beteiligte sich selbst so intensiv an der Grundstücksspekulation, dass er mehrmals von seinem eigenen Amt zur Räson gerufen werden musste. Zur Gewinnmaximierung verletzte er vielfach die selbsterlassenen Bauvorschriften, wenn er, wie nicht selten, als privater Bauunternehmer auftrat. Als Architekt klassischer Schule war er mit der städteplanerischen Aufgabe so überfordert, dass ihm ab 1802 der Geometer und Münzmeister Johann Georg Bunsen zur Seite gestellt wurde. Dieser sollte wohl auch die Rolle einer überwachenden Instanz spielen.[42]
Auch im Fall Wertheimbers, vielleicht des markantesten Beispiels für diese Verhältnisse, setzte sich Hess über die eigenen Maßstäbe hinweg und ließ durch Maurermeister Kayser 1805 ein überbreites Gebäude mit der Nutzung von anderthalb Parzellen errichten.[Anm. 6] Es war trotz des Kompromisses das breiteste, höchste und auch tiefste im ganzen Fischerfeld und konnte sogar mit den Bauten des Hochadels an der Zeil konkurrieren.[40] Der Kostenvoranschlag für das spätere Schopenhauerhaus belief sich auf 180.000 Gulden, eine für die Zeit ungeheure Summe, die dem Bauherrn als Guldenmillionär jedoch kaum Schwierigkeiten bereitet haben dürfte.[43]
Von der Schönen Aussicht 16 zum Schopenhauerhaus

(Altkolorierter Kupferstich nach Vorlage von Johann Friedrich Morgenstern)
In der Zeit nach 1800 wurde das Wechsel- und Börsengeschäft durch die Koalitionskriege und die Kontinentalsperre beeinträchtigt. Wer in diesem Sektor noch Geld wie einst verdienen wollte, musste bald hohe Risiken eingehen.[44] Vermutlich deswegen betätigte sich Wolf Zacharias Wertheimber auch als Privatfinanzier von Napoleon Bonaparte, dessen Aufstieg ihn zunächst emportrug. Kurz vor dem Russlandfeldzug soll er ihn gar persönlich an der Schönen Aussicht besucht und seiner Frau einen Marquisenring verehrt haben.
Doch mit Napoleons Niederlage im Osten und dem Sturz in Paris verlor Wertheimber praktisch über Nacht sein gesamtes Vermögen, seine Frau überwand das Trauma nie. Bis ins hohe Alter stand sie angeblich täglich an einem Fenster im Erdgeschoss, auf einen Kurier aus der französischen Hauptstadt mit der Nachricht ihres Mannes wartend, dass Napoleon gesiegt habe. Doch nach der verspäteten Rückkehr aus Paris gelang es Wertheimber, allein das Haus und die Firma knapp vor der Insolvenz zu retten. Er selbst zog zurück in das winzige Haus JQ 131 in der Judengasse, in dem er bis zu seinem Tod 1844 lebte und nach der Überlieferung zur Beruhigung seiner Nerven regelmäßig die Gasse kehrte.[45]
Der Wohnsitz an der Schönen Aussicht blieb der Familie somit erhalten. Zur Zeit der Freien Stadt Frankfurt wohnten dort noch Wertheimbers Frau, sein 1809 geborener Sohn Zacharias Wolf, der sich als Börsenmakler betätigte, die 1811 geborene Tochter Sara, der 1827 geborene jüngste Sohn namens Leopold sowie einige Diener.[46] Die übrigen Räume des Hauses waren wohl aufgrund der finanziellen Nöte in Mietwohnungen aufgeteilt worden. Im Jahr 1856 zog hier die wichtigste – da sie neben Fried Lübbecke als einzige ihre Lebenserinnerungen schriftlich abfasste – Zeitzeugin des Schopenhauerhauses ein, die damals siebenjährige Lucia Franz. Sie war das fünfte Kind ihrer aus Frankfurt stammenden Eltern, der Vater betätigte sich als Handelsmann.[47] Sie erlebte dort den Einzug und Tod des Mannes, der dem Haus Schöne Aussicht 16 seinen späteren Namen gab.

(Daguerreotypie eines unbekannten Frankfurter Fotografen)
Arthur Schopenhauer hatte bei Ausbruch einer Choleraepidemie in Berlin 1831 Frankfurt am Main erstmals besucht, das als gesund und „cholerafest“ galt. Seine erste Wohnung lag in der Alten Schlesingergasse 16/18, heute mitten im Bankenviertel. Als er im Winter 1831/32 trotz des guten Rufs der Stadt erkrankt war, siedelte er im Juli 1832 nach Mannheim über und kehrte im Juli 1833 erneut, diesmal endgültig, nach Frankfurt zurück.[48]
Nach zahlreichen Wohnungswechseln fand sich Schopenhauer im März 1843 schließlich an der Schönen Aussicht 17 ein, also im westlichen Nachbarhaus des Wertheimberschen Prachtbaus. Überliefert ist auch seine aufgrund seiner Schwerhörigkeit spezielle Beschreibung des Wohnsitzes für Besucher – „parterre, Rechts, Glasthür, stark schellen.“.[49] Hier entstand in den folgenden Jahren nicht nur sein letztes großes Werk Parerga und Paralipomena, er erlebte auch die Frankfurter Septemberunruhen des Jahres 1848, bei denen fast 100 Menschen starben.[50]
Im Sommer 1859 kam es – angeblich wegen seines Pudels Atman – mit seinem Vermieter zu einem Streit, infolge dessen er mit seiner Haushälterin Margarete Schnepp[51] eine Hausnummer weiter zog und sich bei den Wertheimbers, ebenfalls im rechten Parterre, einmietete.[52] Obwohl Schopenhauer als Misanthrop und Sonderling verrufen war, freundete sich Lucia Franz mit ihm und vor allem seinem Hund schnell an.[53] So konnte sie ein getreues Bild seines wohl dem Vorbild Immanuel Kants folgenden, minutiös durchgeplanten Tagesablaufs einerseits und seiner ärmlichen bis chaotischen Wohnverhältnisse andererseits zeichnen.[54]

(Fotografie von Carl Hertel)
Zuerst beschrieb sie den hohen Grad der Dressur, den Schopenhauer Atman hatte angedeihen lassen. Mit einem Korb im Maul, in den sein Herrchen Geld legte, ging er auf Befehl in zwei Geschäften in der nahen Fahrgasse sowie in einer Bäckerei in der ebenfalls benachbarten Großen Fischergasse für ihn einkaufen.[55] Auch ansonsten war er einem Diener gleichgestellt, die Haushälterin kochte für ihn und speiste mit ihm zusammen an einem Mittagstisch. Regelmäßig schor sie den Pudel und strickte aus seiner Wolle Kleidung und Strümpfe.[56]
Zum Tagesgeschäft Schopenhauers gehörte immer ein Besuch des Englischen Hofs am Roßmarkt – das 1797 von Nicolas Alexandre Salins de Montfort erbaute Gebäude war damals eines der bedeutendsten Gasthäuser der Stadt – aus dem er um Punkt drei Uhr nachmittags heimkehrte.[57] Dort hatte Schopenhauer durch seine sich über alles mokierende Art, die Quell zahlloser, nicht immer richtig überlieferter Anekdoten war, jedoch ebenso wenige Freunde wie unter der Dienerschaft, die ihn wenigstens einmal auf der einzigen Toilette der Schönen Aussicht 17 einsperrte.[58]
Schopenhauers Wohnung beschrieb Franz wie folgt:[59]
„Schopenhauers Wohnung bestand aus vier Zimmern und einer Küche. Das mittlere Zimmer vorne hinaus war sein Wohnzimmer, links kam sein Schlafzimmer, rechts das einfenstrige war seine Bibliothek. In der Küche, die er nie benutzte, standen Kisten mit Büchern und Schriften. Hinten hatte die Haushälterin ihre Stube und einen kleinen Schiffmannsofen, auf dem sie sich und dem Pudel die Mahlzeiten kochte. […] Seine Einrichtung war sehr einfach, fast armselig zu nennen. Eine Sitzgelegenheit gab es fast nicht bei ihm, da auf dem Sofa und den Stühlen, auf Tisch und Schreibtisch über und über Bücher und Hefte lagen. […] In seiner Bibliothek sah es immer recht kunterdibunter aus. Oft wenn er ein Buch nicht fand, riß er alles aus den Regalen und warf es zur Erde. […] In der Ecke stand ein Feldbett mit grauer Decke, dahinter hing ein grüner Vorhang.“
Nach einem beginnenden Husten im Herbst 1860, gegen den ihm Franz am Mainkai noch „Schillertränen“, also Lutschbonbons, kaufte,[60] wurde er alsbald bettlägerig und starb am 21. September 1860, laut der Todesanzeige vom 23. September, an einer Lungenlähmung.[61] Der Trauerzug vom Sterbehaus über die Fahrgasse zum Hauptfriedhof fiel entsprechend seiner geringen Beliebtheit sehr klein aus, auch wenn Franz in ihren Lebenserinnerungen mehrmals hervorhob, wie neben ihrem Vater auch etwa ihre Lehrer am Gymnasium immer wieder betont hätten, dass erst nachfolgende Generationen sein Werk verstehen und schätzen würden.[62]
Nach Fried Lübbecke hieß Schöne Aussicht 16 seitdem Schopenhauerhaus.[2] Die geringe Beachtung, die dem Fischerfeldviertel, das wie die Altstadt zu einem Armeleuteviertel herabsank, in der zweiten Hälfte des 19. Jahrhunderts zuteilwurde, lässt dies allerdings, auch wegen der nicht vorhandenen literarischen Überlieferung, als zweifelhaft erscheinen.[63] Im Frankfurter Adressbuch von 1916 wird das vorherige Wohnhaus, also Schöne Aussicht 17, als Schopenhauerhaus bezeichnet.[64] Somit deutet einiges darauf hin, dass erst Lübbecke den Begriff für die Nr. 16 geprägt hat, der bis heute gängig ist.
Vom Schopenhauerhaus zur Weinhandlung mit berühmten Mietern

(Fotografie von Carl Friedrich Mylius)
Die geräumigen, planmäßig und bereits als moderne Ingenieurbauten angelegten Keller der Häuser im Fischerfeldviertel waren seit deren Errichtung ideale Weinlagerstätten. Mit dem Tod des Vaters von Lucia Franz im Jahr 1865 erwarb der Koblenzer Weinhändler Moritz Sachs senior die Schöne Aussicht 16 von den Wertheimbers.[65][66] Im Jahr 1868 eröffnete dort der gerade volljährige Sohn Moritz Sachs junior zusammen mit einem Geschäftspartner die Weinhandlung Sachs & Höchheimer.[67] Der etwa 2,50 Meter hohe Keller des Hauses, der sich unter der gesamten Parzelle erstreckte, hatte ein Fassungsvermögen von etwa achtzig Fässern mit insgesamt rund 70.000 bis 80.000 Liter Wein, Likör und Weinbrand.[68]
Nach dem Verkauf des Hauses hielt es die verbliebenen Familienmitglieder bis auf die Witwe Leonore Wertheimber offenbar nicht mehr in der Stadt. Letztere starb hochbetagt mit 83 Jahren im Schopenhauerhaus, worauf bis zu dessen Zerstörung eine in eine Fensterscheibe im dritten Stock geritzte Inschrift hinwies:
„Heute nacht starb in diesem Zimmer meine innigstgeliebte Mutter Leonore Wertheimber, geborene Wertheimber, am 20. Februar 1872.“
Da Leopold 1872 in Berlin starb – wann genau er die Stadt verließ, ist nicht zu erfahren – kommt als Schreiber der Nachricht eigentlich nur Zacharias Wolf in Frage. Er heiratete erst nach dem Tod der Mutter am 4. Oktober 1871, also im Alter von 62 Jahren, in Leeuwarden die nur 27 Jahre alte Judith Dusmus, wodurch mit ihm am 13. Oktober 1883 auch der männliche Stamm von Wolf Zacharias Wertheimber erlosch. Ein weiteres, im 19. Jahrhundert nach Frankfurt am Main eingewandertes Urenkelpaar Samson Wertheimbers hat – die Details sind unbekannt – die Zeit des Nationalsozialismus nicht überlebt.[69]
Der einstige Familiensitz blieb, obwohl seine neuen Eigentümer die Mietwohnungen zumindest in den Obergeschossen behielten, im gesamten 19. und beginnenden 20. Jahrhundert Stammhaus der Familie Sachs.[65] Der Firmengründer richtete sein Büro in der einstigen Wohnung Schopenhauers im Erdgeschoss ein, den zweiten Stock bewohnten die Eltern. Nach ihrem Tod bezog er deren Wohnung mit seiner Frau, von der er den späteren Namenszusatz Fuld übernahm.[68] Aus dieser Ehe ging eine Tochter, Rosie, hervor. Diese lebte dort seit 1912 mit ihrem Mann, dem Architekten Ernst Hiller.[70] Die übrigen, großzügig geschnittenen Räumlichkeiten wurden jedoch weiter nach dem Vorbild der Wertheimbers vermietet.

(Zeichnung von Peter Becker)
Der erste der illustren Gäste und Mieter des Schopenhauerhauses in dieser Epoche war ab 1860 der kommandierende General der österreichischen Garnison der Freien Stadt Frankfurt, Bayer, dessen Tochter Anna Lucia Franz noch kennenlernte. Bis zur Machtübernahme Preußens 1866 hielt er jeden Mittag in der Beletage des ersten Stocks offene Tafel. Nach 1866 folgte der Konsul Hartmann-Coustol. Im dritten Stock zog der Philologe und Gymnasialdirektor Tycho Mommsen, Bruder des Historikers Theodor Mommsen, ein. Er war von 1864 bis 1886 Direktor des Städtischen Gymnasiums, das seit 1839 seinen Sitz im nahegelegenen Arnsburger Hof an der Predigergasse hatte.[68]

(Holzstich)
In den 1870er Jahren bezog der katholische Historiker Johannes Janssen die Wohnung Mommsens; von 1854 bis 1891 unterrichtete er Geschichte und katholische Religion am städtischen Gymnasium. In seiner Wohnung vollendete er sein achtbändiges Hauptwerk, Die Geschichte des deutschen Volkes seit dem Ausgang des Mittelalters, das ab den 1880er Jahren eine kontroverse Debatte auslöste. Janssen war unter dem Einfluss des Kulturkampfes ein Vertreter der ultramontanen Geschichtsschreibung und entschiedener Gegner der Reformation geworden. In seinem Werk versuchte er nachzuweisen, dass sie für negative gesellschaftliche, politische und konfessionelle Entwicklungen des 16. und 17. Jahrhunderts verantwortlich war. Dagegen wandten sich vor allem protestantische Kritiker, die mehrheitlich übersahen, dass seine ganzheitlich angelegte Sozialgeschichte trotz ihrer tendenziösen Wertung Bedeutendes auf dem Gebiet der zuvor sehr einseitigen Luther-Rezeption leistete.
Die Kritik, die ihm waschkorbweise ins Schopenhauerhaus gebracht wurde und der er einen Großteil seiner Kraft widmete, wurde von Zeitgenossen als Ursache seines relativ frühen und plötzlichen Todes am Heiligen Abend des Jahres 1891 angesehen. Den Trauerzug, der ihn am 27. Dezember von seinem Sterbehaus an der Schönen Aussicht über die Fahrgasse zum Hauptfriedhof geleitete, hielt der Frankfurter Maler Fritz Boehle in einem Gemälde fest.[71]
Die einstige Wohnung Schopenhauers bewohnte bereits kurz nach dessen Tod die Familie des Zollbeamten Schädlich. Anekdotisch ist überliefert, dass dessen Frau dort das 100. Lebensjahr erreichte und 1917 nach über fünfzigjährigem Mietverhältnis den Vermieter darum bat, doch anlässlich des Empfangs der Gratulanten die Wohnung neu tapezieren zu lassen. Dieser lehnte jedoch, angeblich mit Verweis darauf, dass die bisherigen Tapeten für den Rest ihrer Tage wohl genügen dürften, ab, worauf die Hochbetagte das Mietverhältnis kündigte und ein paar Häuser mainaufwärts zog, wo sie noch im selben Jahr der Tod ereilte.[72]
Die Ära Fried Lübbeckes

(Ausschnitt aus einer Fotografie von Max Junghändel)
Ebenfalls 1917 bezog der Frankfurter Kunsthistoriker Fried Lübbecke mit seiner Frau die Wohnung im dritten Stock. Etwa zeitgleich mieteten sich die Lebensmittelchemiker Reiss und Fritzmann mit einer Werkstatt in der einstigen Schopenhauer-Wohnung im Erdgeschoss sowie der Bildhauer Richard Petraschke in der Dachgeschosswohnung ein. Letztere war durch das riesige Zwerchhaus, das auch ein Pendant auf der Rückseite besaß, gut beleuchtet und ideal für ein Atelier geeignet. Dennoch hatten die Mieten laut Lübbecke ein äußerst bescheidenes Niveau, lag das Gebäude doch am Rande der damals bedeutungslosen und unsanierten Altstadt. Damit einher ging ihr Ruf als Hort der Kriminalität und Prostitution.[63][73]
Lübbecke erkannte in der Altstadt einen weitgehend von der übrigen Stadtentwicklung abgekapselt erhaltenen und eigenständigen Komplex mit hohem historischen und kunstgeschichtlichen Wert. Im Jahr 1922 gründete er den Bund tätiger Altstadtfreunde, der sich die Erhaltung und Instandsetzung der Frankfurter Altstadt zur Aufgabe machte. Ab Mitte des Jahrzehnts restaurierte der Bund, meist jedoch nur äußerlich, zahlreiche Häuser der Altstadt und rückte das mittelalterliche Ensemble im Herzen Frankfurts durch zahlreiche Veröffentlichungen, für die Lübbecke den Leica-Fotografen Paul Wolff gewinnen konnte, wieder in das allgemeine Bewusstsein.
Bereits 1923 hatte der Verein das bedeutende gotische Patrizierhaus Fürsteneck an der Fahrgasse erworben und sanieren lassen, das ab 1934 auch als Vereinssitz diente.[74] Für Lübbecke selbst war dies ein Glücksfall, lag das Haus doch nur wenige Schritte von der Schönen Aussicht entfernt. Er schrieb:[75]

(Fotografie von Carl Friedrich Fay)
„War der Gegensatz nicht unerträglich? Wie kann man in einer gotischen Burg arbeiten und in einem klassizistischen Hause wohnen, ohne das eine oder das andere zu verurteilen! Nur äußerlich waren sie verschieden, innerlich waren sie eines. […] Wie in einer Wohnung sich Möbel verschiedener Epochen sehr wohl miteinander vertragen, wenn sie gut in der Form und im Handwerk sind, so standen an der Fahrgasse sich gotische und klassizistische Häuser ohne Feindschaft gegenüber, ja ergänzten sich. War der Fremdling der krausen Wanderung durch die Gassen um das Goethehaus müde, so erholte er sich an den ruhigen breiten Straßen um das Schopenhauerhaus, genoß die weißen Fronten der Schönen Aussicht oder des Brückhofplätzchens um den ägyptischen Brunnen. Kein aufdringlicher Lärm, keine Reklame! Wahrlich, dieses Viertel war voll Edler Einfalt und stiller Größe.“
Vorschläge Ernst Hillers kurz nach dem Ersten Weltkrieg, das Schopenhauerhaus umzubauen und in Kleinwohnungen zu unterteilen, lehnte der Eigentümer Moritz Sachs-Fuld angeblich mit der Begründung ab, dass man die darin wohnenden Geister der Musik nicht stören dürfe. Tatsächlich besuchten nach den Lebenserinnerungen Lübbeckes zahlreiche Musiker, vor allem der im Kuhhirtenturm auf der anderen Mainseite wohnende und mit ihm befreundete Komponist Paul Hindemith, regelmäßig das Schopenhauerhaus. Mit ihm kamen Künstler, Mäzene und Intellektuelle wie Alfredo Casella, Darius Milhaud, Elizabeth Sprague Coolidge, Ludwig Rottenberg, Hermann Scherchen, Julius Meier-Graefe, Edwin Redslob, Cornelius Gurlitt, Georg Swarzenski, Benno Elkan oder Reinhard Piper.[71]
Mit dem Eindringen des Nationalsozialismus in das öffentliche und damit auch geistige und kulturelle Leben der Stadt ging diese Ära zu Ende. 1935, als auch Ernst Hiller sechs Jahre nach dem Tod seiner Frau im Schopenhauerhaus starb, kam es zur offenen Konfrontation zwischen der Nationalsozialistischen Volkswohlfahrt (NSV) und Fried Lübbecke.[76] Streitpunkt war das seit 1924 bestehende Altstadt-Kinderheim des Bundes tätiger Altstadtfreunde, das sich auf den südmainischen Wiesen östlich der Sachsenhäuser Altstadt, heute dem Gelände des Deutschherrnviertels, befand. Es diente ganzjährig jeweils für vier Wochen 40 Kindern aus den ärmsten Haushalten der Altstadt kostenlos als Spielstätte, zur Verköstigung und Gesundheitsversorgung. Nun sollte es aus dem Verein herausgelöst und in die nationalsozialistischen Organisationsstrukturen eingegliedert werden.[77]

Obwohl Fried Lübbecke durchaus auf die Sympathien des nationalsozialistischen Oberbürgermeisters Friedrich Krebs bauen konnte,[78] war dieser in der Angelegenheit offenbar machtlos oder nicht gewillt, Widerstand zu leisten.[77] Als der Vorsitzende des Altstadtbundes eine Übergabe verweigerte, rückten am Abend des 7. Mai 1935 SA-Männer in Zivil aus, stellten sich vor dem Schopenhauerhaus auf und forderten im Sprechchor den „Volksverräter Lübbecke“ zum Herauskommen auf. Dieser konnte mit seiner Frau jedoch über die engen Altstadtgassen entkommen und mittels einiger Freunde die Stadt verlassen. Die SA-Männer ließen daraufhin ihre Wut am Schopenhauerhaus und dem Vereinssitz Fürsteneck aus, die mit Parolen beschmiert und durchwühlt wurden. Fast sämtliche Frankfurter Tageszeitungen berichteten am nächsten Tag in Hetzartikeln über den „unsozialen Bund“ mit dem „Volksfeind“ an seiner Spitze.[76]
Lübbecke und seine Frau erhielten bereits nach einigen Tagen im „Exil“ in Bonn ein Telegramm des Oberbürgermeisters mit dem Inhalt: „Bitte zurückkehren. Alles bestens erledigt. Krebs.“ Allerdings hatte sich der zweite Vorsitzende des Altstadtbundes, Max Fleischer, in Lübbeckes Abwesenheit genötigt gesehen, das Kinderheim für den symbolischen Betrag von fünf Reichsmark im Jahr an die NSV zu vermieten.[77] Als der Vertrag nach einem Jahr auslief, war das Heim laut der Schilderung Lübbeckes völlig ausgeplündert und verwahrlost. So stimmte er dem Vorschlag der SS zu, das Heim abzubrechen und auf dem anderen Mainufer als „Kameradschaftsheim“ wieder aufzubauen. Selbst dazu kam es nicht mehr, da die dort aufgestapelten Baumaterialien binnen weniger Tage verschwanden und wohl als Brennholz verwendet wurden.[79]
Nach dem Inkrafttreten der Nürnberger Gesetze verschwanden mehr und mehr sowohl die ständigen Gäste als auch die Bewohner des Schopenhauerhauses. Der Großteil ging ins Exil in Übersee, andere, wie beispielsweise der sozialdemokratische Abgeordnete und Redakteur bei der Frankfurter Volkszeitung, Stephan Heise, kamen ins Vernichtungslager, das er wie weit über 10.000 vornehmlich jüdische Bürger der Stadt nicht überlebte. Eines natürlichen, aber dennoch unerwarteten Todes starb 1937 Richard Petraschke, nachdem er über zwei Jahrzehnte sein Atelier im Dachgeschoss gehabt hatte. Seine Arbeitsstätte bezog der Bildhauer Herbert Garbe.
Dreieinhalb Jahre nach den Unruhen um das Altstadtkinderheim wurde das Schopenhauerhaus während der Novemberpogrome 1938 abermals verwüstet. Mit Brechstangen zertrümmerte der Mob die kostbare Einrichtung des Erdgeschosses mit der Büste Schopenhauers, die sich dort seit 1930 befand, ebenso das Flaschenlager im Keller, in dem am Tag danach kniehoch der französische Cognac stand. Verbrannt oder zerfetzt wurden neben den seit der Einrichtung der Weinhandlung im Haus lückenlos geführten Bestandsbüchern auch die Bilder der im Ersten Weltkrieg gefallenen Kinder der Familie Weiß, die die Geschäfte von Sachs & Höchheimer seit Anfang des 20. Jahrhunderts unter eigenem Namen fortführte.[80]
Nach der Vertreibung der Familie Weiß befürwortete Oberbürgermeister Krebs die Einrichtung eines Schopenhauer-Museums in deren früherer Wohnung. Pläne dafür hatte es schon vor dem Ersten Weltkrieg gegeben. Anfang 1939 bot der hochbetagte Moritz Sachs-Fuld der Stadt einen Mietvertrag an.[65] Parallel zu den Verhandlungen erzwang die nationalsozialistische Stadtverwaltung mit einem nach der Verordnung über den Einsatz des jüdischen Vermögens zustandegekommenen Vertrag vom 3. April 1939 desselben Jahres den Verkauf sämtlichen jüdischen Grundbesitzes an die Stadt für 1,8 Millionen Reichsmark. Darunter fiel auch das Schopenhauerhaus, das zum 1. April 1939 zum Einheitswert von 71.500 Reichsmark verkauft wurde. Von dem Erlös musste Sachs-Fuld 11.860 Mark Judenvermögensabgabe zahlen.[65] In der Folge schickte die Stadt ohne weitere Korrespondenz Handwerker zur Einrichtung des Museums in das Haus. Sachs-Fuld, der es auf keinen Streit mehr ankommen ließ, starb in seinem Haus am 16. Juni 1940 im Alter von 90 Jahren.[65][80][81]
Untergang, Nachkriegszeit und Gegenwart

Schon im selben Jahr erlebte Frankfurt am Main die ersten Luftangriffe, die jedoch anfangs kaum nennenswerte Schäden verursachten und den an Kulturdenkmälern so reichen Stadtkern noch verschonten. Nach den Angriffen auf Lübeck, vor allem aber auf Köln war jedoch klar, dass auch die größte Stadt des damaligen Hessen-Nassau jederzeit Ziel vernichtender Angriffe werden könnte, weswegen von nun an verstärkt im Zuge der Altstadtaufnahme Fassadenabwicklungen des gesamten alten Stadtkerns angelegt wurden. Das Innere bestimmter Gebäude wie auch des Schopenhauerhauses dokumentierte man sogar in Grundrissen und Schnittzeichnungen, und noch 1943 hielt Paul Wolff einen Großteil des klassizistischen Bauerbes der Stadt, darunter nahezu das gesamte Fischerfeldviertel, in Fotografien fest.[82]
Im Oktober dieses Jahres traf dann auch der erste schwere Luftangriff die Altstadt, der vor allem im nördlichen Teil um die Töngesgasse schwerste Verwüstungen anrichtete, aber auch herausragenden Einzelbauten wie dem Großen Braunfels am Liebfrauenberg oder dem Römer irreversible Schäden zufügte. Eine auf Höhe des Kuhhirtenturms explodierende Luftmine zerstörte die Scheiben aller Häuser an der Schönen Aussicht, also auch des Schopenhauerhauses, ansonsten blieb die klassizistische Stadterweiterung aber noch weitgehend ohne Schäden.
Der bis dahin schwerste Angriff ereignete sich am 29. Januar 1944, der das Frankfurter Stadtarchiv am Dom neben dem Leinwandhaus, eines der bis dahin reichsten in Deutschland, vernichtete. Es büßte dabei große Teile seiner Bestände ein. Das nach dem Schopenhauerhaus zweitgrößte Gebäude an der Schönen Aussicht, das Willemer-Dötschesche Haus (Nr. 9), wurde von drei Sprengbomben getroffen, die es bis in den Keller durchschlugen und vollständig zerstörten. Dabei verloren auch sämtliche Menschen im Keller, die sich in den massiven Gewölben in Sicherheit gewähnt hatten, ihr Leben.[83]

(Fotografie von Max Junghändel)
Eine weitere Sprengbombe schlug in den Hochkai direkt vor dem Schopenhauerhaus ein, riss ein sechs Meter tiefes Loch und schleuderte die nahezu zwei Meter dicke Futtermauer – eigentlich die ehemalige gotische Stadtmauer zum Main – auf den Tiefkai. Die Pflastersteine der Straße durchschlugen wie Schrapnells das Dach, der Druck zerstörte sämtliche Türen und die gerade erst notdürftig wiederhergestellten Fenster, das Haus blieb jedoch abermals in seiner Substanz unversehrt. Auch beim ersten der drei Märzangriffe, die die gesamte Altstadt zerstörten, konnte das Gebäude nochmals gerettet werden, als es gelang, über zwanzig durch Brandbombentreffer verursachte Brandherde im Dach und dritten Obergeschoss zu löschen.
Übersehen hatte man dabei allerdings, dass sich ein Schwelbrand über die Durchbrüche in den Brandmauern des bereits niedergebrannten Nachbarhauses im Westen ausbreitete und auf die im Keller ausgelagerten Ausstattungsstücke übergriff. Doch auch diesen Brand konnte die Feuerwehr als einen von wenigen jener Tage noch unter Kontrolle bringen, indem sie den Keller mit Mainwasser vollpumpte, was auch die letzten Reste des dort befindlichen Inventars zerstörte. Das lange Schwelen hatte die Brandmauer jedoch im Fuß so durchgeglüht, dass sie langsam gen Westen aus dem Lot wich und herabzustürzen drohte, weswegen man dann doch die ordentliche – das heißt mit Sicherung des Hausstandes – Räumung des Gebäudes anordnete.[84]
Die Möbelwagen kamen jedoch zwölf Stunden zu spät, denn am Abend des 22. März 1944 traf die Stadt der schwerste Luftangriff des Zweiten Weltkriegs. Fried Lübbecke schrieb die Erinnerungen an den Angriff im April 1944 in Bad Homburg in seinem Text Abschied vom Schopenhauerhause nieder, der als eines der wichtigsten zeitgenössischen Dokumente über die Zerstörung der Stadt gilt. Er wird hier in Auszügen wiedergegeben:[85]
„Auf dem Umweg über den Mainkai eilten wir dann heimwärts und deckten uns bei einer Kerze zum letzten Male unseren Abendbrot-Tisch. Gerade gießt meine Frau die erste Tasse ein, als die wenigen Sirenen, die den Samstag überstanden, ziemlich kläglich Voralarm heulen. Ein Blick vom Balkon zeigt viele Scheinwerfer vor einem hellen dunstigen Nachthimmel. Eine Kaskade von grünen und weißen Funken schwebt hernieder, anscheinend geraden Wegs auf unser Dach zu. Im gleichen Augenblick krachen die ersten Bomben, ohne daß man sie pfeifen hört. Wir jagen die Treppe hinunter und erreichen gerade noch ihre Halle im Erdgeschoß. Eine furchtbare Explosion reißt uns nieder, wirft Fenster und Türen auf uns, begräbt uns unter Schutt, Mörtel und Staub, so dicht wie ein Sandsturm. Bombe um Bombe rast hernieder, wohl zehn Minuten lang. Das gewaltige Haus schwankt wie ein Trunkener, durch die Fensterlöcher kommt mit dem Staub erstickender Rauch, auch flackernde Helle. Das Hinterhaus brennt. Wir eilen die Hoftreppe hinunter, zum Luftschutzkeller! Ein Blick nach oben: das Zwerchhaus brennt ebenfalls – das hohe Atelier mit den drei lichten Bogenfenstern, […] Schon kracht’s von neuem. Die zweite Welle ist heran. Wieder Bombe um Bombe in nächster Nähe. Das Haus holpert wie ein Lastwagen über gefrorenem Landweg; die dicke Mauer zwischen den Kellern stürzt zusammen; tausende von Stabbrandbomben knattern hernieder, […]
Die zweite Welle ist vorbei. Ich jage die Treppe hinauf, Über mir im Dach heult bereits der Brand – unlöschbar selbst für eine Feuerwehr. Auch in anderen Zimmern frisst sich der Brand bereits durch die Decke. Ich stehe hoch oben am Flurfenster und schaue gegen Norden, Westen und Osten über die Stadt. Alles brennt! […]
Die dritte Welle ist heran. Gelassen gehe ich die Treppe hinunter. Der Hof liegt voller Trümmer, der Fachwerkgiebel, bis auf das Balkengerüst verzehrt, droht jeden Augenblick herabzustürzen und den letzten Ausgang des Kellers zu verschütten. Wir alle steigen hinauf, obgleich immer noch Bomben fallen, […] Wir gehen durch den Hausflur.[…]
Mitten auf der [Alten] Brücke stehen wir, unter dem Kreuz des Brückenhahnes. Wir leben. Sichtbar frißt sich der Brand durch unsere Wohnung, von Fenster zu Fenster, steigt jetzt die Treppe hinab, erscheint links am ersten Fenster des zweiten Stockes – schnell, schnell hindurch, alle Fenster leuchten, werfen lange Feuerzungen über den Main, wirbeln Kissen, Bücher, Teppiche brennend hinaus. Die Hitze ist so stark, dass ich den Mantel ausziehe. Eine himmelhohe Feuerwolke treibt über den Dächern zum Main, getrieben vom Feuersturm. Nun steht der Dom hoch und frei über dem Main, über der alten Brücke. Noch niemand hat ihn so gesehen. Die Spitze verschwindet in waberndem Qualm. Ein Sofa, ein Stuhl stehen neben uns. Jahn und Diel haben sie noch aus Schopenhauers Wohnung im Erdgeschoß hergeschleppt – Schopenhauers Sterbesofa, Schopenhauers Schreibtischstuhl – Parerga – Paralipomena.“

Trotz des geschilderten Zerstörungsgrades und der Menge der an jenem Abend abgeworfenen Bomben überstanden einige wenige Gebäude an der Schönen Aussicht den Zweiten Weltkrieg unbeschadet. Dies war bei den Hausnummern 12 und auch 15, dem direkten östlichen Nachbarn des Schopenhauerhauses, der Fall. Auch vom Hinterhaus blieb nahezu die gesamte Fassade zur Straße Hinter der Schönen Aussicht stehen.
1951 erhielt Sachs-Fulds Enkelin, Holde Hirsch-Hiller, das Trümmergrundstück zurückerstattet.[65] 1954 verkaufte sie das Grundstück an einen privaten Investor. Beim Wiederaufbau des Fischerfeldviertels nahm man etwas mehr Rücksicht auf den überkommenen Stadtgrundriss als in der übrigen Altstadt. Dies dürfte jedoch kaum einem historischen Bewusstsein als vielmehr der Tatsache, dass das Viertel und die Parzellenstruktur bereits weitgehend den Anforderungen der 1950er Jahre genügte, zuzuschreiben sein.
So wurde zumindest an den zum Main hin gelegenen Blöcken weitgehend die alte Blockrandbebauung unter Beibehaltung der Straßenbreiten und sogar der überwiegenden Einbeziehung der alten Kellergeschosse wieder aufgenommen. In zweiter Reihe prägen allerdings im Vergleich zum historischen Bestand unmaßstäbliche Großbauten wie das jetzige Gebäude des Stadtplanungsamtes oder das des Museums Judengasse das Bild. Außerdem ist eine zunehmende Auflösung der alten Struktur zugunsten beispielsweise als Parkplatz genutzter Freiflächen festzustellen.

Auch auf dem Gelände des einstigen Schopenhauerhauses entstand ab Mitte 1954 ein zeittypischer Mietshaus[65] als Eckbau, da die einst westlich angrenzenden Hausnummern 17 und 18 dem Durchbruch der Kurt-Schumacher-Straße zum Opfer fielen. Das unbeschädigt gebliebene Haus Nr. 15 wurde, wie aus dem Vergleich von Fotografien hervorgeht, spätestens bis etwa 1970 abgebrochen. Von ihm zeugte noch bis 2010 ein letzter Rest in Form einer Fensterachse der Fassade des Erdgeschosses.
Im Februar 2010 wurde bekannt, dass die FRAN Besitz- & Verwaltungs-GmbH aus Weiterstadt die Baugenehmigung für ein 54-Zimmer-Hotel auf den Parzellen der einstigen Häuser Schöne Aussicht 13–15 erhalten hatte. Das mit der Ausarbeitung beauftragte Architekturbüro war SpaBau aus Modautal.[86] Das Hotel, das ursprünglich den Namen Schopenhauer-Hotel erhalten sollte, wurde im Frühjahr 2019 als Hotel My Main eröffnet.
Beim Aushub der Baugrube war auch der letzte bis dahin erhaltene Rest des einstigen Nachbarn des Schopenhauerhauses verschwunden. Später kamen nicht nur Reste der klassizistischen Keller, sondern auch die von Fried Lübbecke beschriebenen, mittlerweile zugemauerten Durchbrüche zu den offenbar erhaltenen Kellern der Nachbarhäuser, also auch zum Keller des westlich angrenzenden ehemaligen Schopenhauerhauses, zum Vorschein. Nach dem Abräumen der Kellerreste stieß man auf noch weit ältere Mauerreste, die das Denkmalamt der Stadt der um 1200 errichteten Staufenmauer zuordnet. Bei einer ebenfalls aufgedeckten, parallel verlaufenden Mauer könnte es sich um die der zweiten Stadterweiterung ab 1333 handeln. Aus Sicht des Amtes war der „Erhalt der Mauern und die Integration in den Neubau […] kaum möglich und auch nicht sinnvoll“, mittlerweile wurden sie durch weitere Gründungsarbeiten zerstört.[87]

Architektur
Allgemeines

(Chromolithografie von Friedrich August Ravenstein)
Wie aus der Planung von Johann Georg Christian Hess ersichtlich ist (vgl. Geschichte), sollten die Schöne Aussicht und die nach Norden anschließenden Straßen parallel, die Querstraßen im rechten Winkel zum Mainufer verlaufen. Gleichzeitig musste aber die westlich gelegene Altstadt, vor allem die Fahrgasse, angebunden werden, die im Verhältnis zum neuen Stadtteil etwas nach Westen bog. Der Übergang wurde dadurch hergestellt, dass die westlichsten Teile der Parallelstraßen zum Main, namentlich der Brückhofstraße und Hinter der Schönen Aussicht (als Sackgasse), nach Süden abknickten und so annähernd rechtwinklig auf die Fahrgasse stießen.
Jede andere Straßenführung hätte weit mehr Bauten vor allem an der Ostseite der Fahrgasse und wohl auch den Arnsburger Hof an der Predigerstraße zerstört. Aus dieser für den Geist der Zeit bemerkenswerten, wenn auch wohl primär in Sorge um den zu erwartenden Widerstand der Anwohner getroffenen Rücksichtnahme auf den Altbaubestand ergaben sich jedoch nicht die erwünschten rechteckigen, sondern eher trapezförmige Parzellen. Dies war bei den Häusern Schöne Aussicht 15–18 sowie Hinter der Schönen Aussicht 18, 19, 21 und 23 der Fall. Für das Eck-Doppelhaus Schöne Aussicht 17/18 / Fahrgasse 2 / Hinter der Schönen Aussicht 23 ergab sich gar ein fünfeckiger Zuschnitt.
Das östliche Nachbarhaus Schöne Aussicht 16 / Hinter der Schönen Aussicht 21, das Schopenhauerhaus, stand ebenfalls auf einer trapezförmigen Parzelle, da das Hinterhaus an dem Abschnitt der Straße Hinter der schönen Aussicht lag, wo diese nicht parallel mit dem Mainufer verlief. Wie im geschichtlichen Teil bereits angeführt, entstand es eigentlich auf anderthalb Parzellen. Das Grundstück war an der Schönen Aussicht rund 30,[Anm. 7] an der tiefsten Stelle, der östlichen Flanke, circa 32,40 Meter breit und insgesamt etwa 830 Quadratmeter groß.[Anm. 8]
Äußeres
Das an der Schönen Aussicht rund 23 Meter hohe[Anm. 9] viergeschossige Gebäude war vertikal in elf Achsen gegliedert und wurde von einem flachen, eingeschossigen Satteldach mit beidseitigen großen Zwerchhäusern und je vier flankierenden Dachgauben abgeschlossen.[Anm. 10] Der rückwärtige Innenhof hatte die Form eines liegenden, wenig tiefen Rechtecks. Die dorthin gewandte Rückfassade des Vorderhauses zeigte eine analoge Gestaltung; seitlich begrenzten den Innenhof ebenso hohe Seitenflügel. Die Nordseite des Hinterhofs schloss ein dreiteiliges, zweigeschossiges Hinterhaus mit flachem Satteldach und einer Fassade zur Straße Hinter der Schönen Aussicht ab.
Vom Material her handelte es sich um verputzte Ziegelbauten mit Holzdachwerk und Holzbalkendecken, die Dächer waren bis auf geringe Teile der Zwerchhäuser mit Naturschiefer gedeckt. Stilistisch stellte die gesamte Anlage einen Vertreter hochklassizistischer Architektur dar, der sich völlig frei von Einflüssen des Empire-Stils zeigte, welcher um die Bauzeit andernorts in der Stadt durchaus Rezeption fand. Die einzigen Schmuckelemente orientierten sich an der dorischen Säulenordnung der Antike.
Schöne Aussicht

(Zeichnung aus der sogenannten Altstadtaufnahme)
Das Bodenniveau des Erdgeschosses an der Schönen Aussicht lag aufgrund des hohen Kellers mit 1,25 Metern deutlich über dem Straßenniveau und war von diesem an der Fassade auch optisch durch ein 0,15 Meter starkes Gesims getrennt.[Anm. 10] Verschließbare, rechteckige Öffnungen von 1,30 Meter Breite und 0,25 Meter Höhe in der horizontalen Gliederung als unterstes Element einer jeden Achse ermöglichten die Beleuchtung der Kellerräume.
Es folgte in der horizontalen Gliederung eine nicht gestaltete Putzfläche von etwa einem Meter Höhe, die abermals ein 0,30 Meter hohes Gesims vom nächsten Element trennte und zugleich durch ihr Hervortreten auch die Fensterbänke bildete. Zwischen den 1,30 Meter breiten und 2,50 Meter hohen Rundbogenfenstern war der Putz durch Fugenschnitt belebt. Auf Höhe des Kämpfers zwischen Rechteck und Rundbogen der Fenster durchlief ein weiteres, 0,15 Meter starkes Gesims das gesamte Geschoss. Durch die schmale, dem Rundbogen folgende Verdachung der Fenster, die auf dem Gesims auflag, ergab sich der Eindruck einer Pilastergliederung.
Die genannte Gestaltung galt für die vier westlichsten und östlichsten Achsen. Die drei mittleren Achsen bildeten dagegen im Erdgeschoss einen um 1,85 Meter aus der Fassade hervortretenden Portikus. Dieser öffnete sich wie die flankierenden Fenster in Rundbogenöffnungen zur Straße. Letztere waren dort mit 1,85 Meter Breite und 2,65 Meter Höhe jedoch deutlich größer bemessen. Die einfach profilierten Bögen wurden mittig von zwei Säulen mit 0,50 Meter Durchmesser, in den Ecken von ebenso großen Pilastern mit dorischen Kapitellen getragen. Die beiden seitlichen Achsen, die an der Hauswand die gleichen Fenster wie das übrige Erdgeschoss besaßen, schlossen zur Straße mit einer schlichten Attika ab, deren Oberkante mit den Fensterbrüstungen auf einer Ebene lag.
In der mittleren Achse des Portikus überbrückte eine 1,35 Meter hohe Treppe mit zehn Stufen, absperrbar mit einem einfachen schmiedeeisernen Gitter, den Höhenunterschied zur Schönen Aussicht. Dahinter lag die rundbogig abgeschlossene Öffnung der Eingangstür von 1,70 Meter Breite und der stattlichen Höhe von 3,75 Metern. Sie wurde von zwei quadratischen Pfeilern mit 0,5 Meter Kantenlänge flankiert, die zusammen mit den Säulen des Vorbaus als Auflager für die drei Tonnengewölbe des Portikus dienten.
Der horizontalen Gliederung folgten nach weiteren 1,80 Metern und zwei Gesimsen, von denen das obere abermals die Fensterbänke ausmachte, die rechteckigen Fenster des ersten Obergeschosses von 1,30 Meter Breite und 2,50 Meter Höhe. Ihre einzige Dekoration bestand in einem leichten Hervortreten der Gewände gegenüber der Fassade und einer schlichten Konsolverdachung. Bis auf den geraden Abschluss waren die Fenster mit einem Setzholz, Kämpfern im oberen Drittel und zwei Längssprossen identisch mit denen des Erdgeschosses.
Auch im ersten Obergeschoss waren die drei mittleren Achsen besonders gegliedert. Den Portikus überdachte ein Balkon mit schlichter, bis etwa auf Höhe der Fensterbänke des Geschosses reichender Brüstung. Die mittlere, als Tür ausgebildete Achse ermöglichte das Betreten vom ersten Stock aus. Anstatt einer Konsolverdachung waren Fenster und Tür des Balkons von insgesamt vier Pilastern mit dorischen Kapitellen flankiert. Diese trugen ein etwas höher als die Verdachung der flankierenden Fenster liegendes Gebälk mit Scheibenfries, Zahnschnitt und abschließendem Geison.
Die Fenster im zweiten Stock, 1,40 Meter oberhalb der Konsolverdachung des ersten Stocks und eines Fensterbankgesimses waren 2,25 Meter hoch und 1,30 Meter breit. Beim darüber liegenden Stockwerk waren sie bei gleicher Breite 1,85 Meter hoch. Eine Profilierung der Gewände oder Verdachung fehlte völlig, die Gliederung der Fensterfläche entsprach den unteren Geschossen. Im dritten Stock waren dem Drittel unterhalb der untersten Längssprosse jeweils einfache Gitter vorgesetzt.
Das dritte Geschoss besaß in den drei mittleren Achsen ebenfalls einen, dort jedoch nur um 0,8 Meter hervortretenden Balkon. Er ruhte auf sechs Konsolsteinen, deren Unterseite eine leichte S-Kurve beschrieb. Jeweils zwei waren flankierend zur mittleren Achse zu einer Gruppe zusammengefasst, je ein weiterer beschloss östlich und westlich mit einer Achse Abstand den Balkon. Er war mit 1,30 Meter Breite etwas schmaler als der darunterliegende Balkon bzw. der Portikus.
Um den Balkon auf die gleiche Ebene zu verlegen wie die Balkenlage des dritten Stocks, setzten die Kragsteine nur etwa 0,40 Meter oberhalb der Fenster des zweiten Stocks an. Dieser lag somit auch 0,2 Meter unterhalb des Gesimsbandes, das die Fensterbänke des dritten Stocks bildete. Auch dort öffnete sich die mittlere Achse als Tür zum Balkon, ebenso flankierten insgesamt vier dorische Pilaster die Fenster, die jedoch keine Verdachung trugen.
Über die gesamte Hausbreite folgte nach einem durch schlichte Profile belebten Meter oberhalb der Fenster die Dachtraufe. Nach einem weiteren Meter Dachhöhe beschlossen schlichte Giebelgauben von einem halben Meter Breite und einem Meter Höhe die horizontale Gliederung. Die vertikale endete in den mittleren drei Achsen mit einem kapitalen Zwerchhaus von 9,15 Meter Breite und 5,5 Meter Höhe bis zu dessen Giebelabschluss. In seiner Gestaltung nahm es weitgehend Elemente des Erdgeschosses wieder auf.
Zwischen zwei starken Gesimsbändern befanden sich 1,25 Meter breite und 2,50 Meter hohe Rundbogenfenster. Das untere Gesimsband verlief etwa 0,5 Meter oberhalb der Trauflinie und bildete die Fensterbänke, das obere befand sich auf Höhe des Kämpfers zwischen Rechteck und Rundbogen der Fenster. Letztere wie auch die Ecken wurden abermals von Pilastern mit dorischen Kapitellen innerhalb der Gesimsgrenzen begleitet. Zu den Seiten bestand eine kurze Verkröpfung der gesamten Fassade, um eine massive Steinwand vorzutäuschen, auf die eine für den Rest des Dachs typische Verschieferung folgte.
Innenhof und Hinter der Schönen Aussicht
Die Rückfassade des Haupthauses zum Hinterhof besaß im Gegensatz zum Vorderhaus nur neun Achsen.[Anm. 10] In den Abmessungen und der Anzahl waren die einzelnen Fenster der unterschiedlichen Geschosse aber identisch. Einzig der Keller hatte nur in den jeweils drei äußersten Achsen Öffnungen. Jedoch war die Fassade dort flach und völlig ungestaltet.
Im Erdgeschoss der mittleren Achse öffnete sich eine Tür von 1,70 Meter Breite und 3,20 Meter Höhe zu einem Zwischenpodest. Von dort führte seitlich eine zweiläufige Treppe in den Innenhof. Als Kunstgriff des Baumeisters lag das Bodenniveau des Innenhofs deutlich niedriger als die Schöne Aussicht. So ermöglichte der Hof den ebenerdigen Zugang in den Keller des Vorderhauses unterhalb des Zwischenpodests der Treppe.
An das Hinterhaus anschließende Seitenflügel mit je zwei Fensterachsen von 1,25 Meter breiten und 1,80 Meter hohen Fenstern bildeten die Begrenzungen des Hofs. Sie leiteten zu einem nur zweistöckigen Hofgebäude mit Satteldach über, das die Parzelle zur Straße Hinter der Schönen Aussicht abschloss. Wegen der ungewöhnlichen Parzellenform war die Hofseite dieses Gebäudes parallel zum Vorderhaus ausgeführt, die Straßenfassade aber parallel zur Straße, so dass sich in der Aufsicht die Form eines zusammengedrückten Trapezes ergab.
Da bereits der Eingang des Vorderhauses an der Schönen Aussicht über den Hinterausgang in einer Sichtachse mit jenem Hofgebäude lag, hatte der Baumeister hier einen weiteren Kunstgriff angewandt. In das Hinterhofgebäude war in der Mitte eine breite halbrunde Apsis mit der Hofeinfahrt eingeschnitten. Zwei die Einfahrt im Hof flankierende Nischen mit vergitterten Rundbogenabschlüssen verbesserten das Erscheinungsbild weiter. Der edle Eindruck wurde durch einen Pfeilerumgang über einem Attikagesims im oberen Bereich der Attika verstärkt.
Die an den Seiten der Apsis liegenden Teile des Hofgebäudes waren höchst zweckmäßig gestaltet. Die größten Räume der Erdgeschosse besaßen je zwei über eine Mittelsäule gekuppelte, fast vier Meter hohe und mit Stichbogen geschlossene Öffnungen. Östlich beziehungsweise westlich, also schon fast in den Hofecken, befanden sich kleine Türen zu den Nebenräumen.
Oberhalb des Scheitels eines jeden Bogens wurde nach weiteren 1,75 Metern Höhe das Obergeschoss des Hofgebäudes über ein kleines, nahezu quadratisches Fenster beleuchtet. Es wiederholte sich auf gleicher Höhe nochmals oberhalb der kleinen Türen. Auf Höhe des Pfeilerumgangs, horizontal genau zwischen den beiden quadratischen Fenstern oberhalb der Scheitel, befand sich jeweils ein dem Ober- und dem Dachgeschoss dienendes halbrundes Fenster.
Auch die Fassade des Hofgebäudes zur Straße Hinter der Schönen Aussicht war ähnlich zweckmäßig gegliedert. Zwei Gesimsbänder teilten die Fassade horizontal in drei gleiche Teile. Das Zentrum bildete das 4,20 Meter hohe Portal der Einfahrt im Erdgeschoss. Aus dem unteren Gesimsband waren dort flankierend je vier Fenster entwickelt, die jedoch größtenteils nur aus dem oberen Rundbogen bestanden. Nur auf der Ostseite befand sich in der Achse direkt neben dem Tor ein kleiner Eingang. Aus dem darüberliegenden Gesimsband entwickelten sich in der Achsreihung kleine quadratische Fenster. Abgeschlossen wurde die Fassade von halbrunden Fenstern oberhalb der mittleren und in der jeweils vorletzten Achse, die nahezu denen der Hoffassade entsprachen.
Inneres

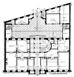
(Zeichnung von Claus Mehs aus der so genannten Altstadtaufnahme)
Hier kann nur das Haupthaus beschrieben werden, da über das Innere des Hinterhauses bis auf die Tatsache, dass es ebenso wie der Innenhof unterkellert war[68], nur wenig bekannt ist.
Nach dem einzigen veröffentlichten Grundriss, der eine besonders detaillierte Beschreibung des Erdgeschosses ermöglicht, diente es ehemals als Stall für die Pferde, Remise für die Kutschwagen sowie als Waschküche und zuletzt vor allem als Magazin.[71] Nach Fried Lübbecke befand sich in der ehemaligen Kutscherwohnung in den Obergeschossen zuletzt die Wohnung des Hausmeisters, das Dach diente zur Einlagerung von Heu und Stroh für die Pferde.[88]
Im gesamten Haupthaus verbanden Doppeltüren alle Räume. Nur Küchen und Toiletten hatten einflügelige Eingänge.[89] In den rechten Pfosten aller Türen befanden sich dort vom einstigen Bauherren eingesetzte, bis zuletzt überwiegend erhaltene Mesusahs, also Kästen mit einer Pergamentrolle mit dem jüdischen Glaubensbekenntnis.[71][71] Fast alle Stockwerke einschließlich des Daches hatten Deckenhöhen von 5 Metern, nur das dritte Geschoss war 3,5 Meter hoch.[68] Der Grundriss war jeweils an einer gedachten vertikalen Mittelachse spiegelsymmetrisch; oft bildete sich auch an einer fiktiven horizontalen Mittelachse nahezu eine Symmetrie aus.
Keller und Erdgeschoss
Über den Innenhof erreichte man den gewölbten, 2,25 Meter hohen Keller des Hauptbaus, der von sechs niedrigen quadratischen Mittelpfeilern gestützt wurde.[Anm. 11] Der Haupteingang an der Schönen Aussicht führte zu einem im Grundriss rechteckig stehenden Eingangsraum, den ein Tonnengewölbe überspannte. Daran schloss ein rechteckig liegender Windfang an, der nach Osten zu einem Vorraum, nach Westen zu einem Flur führte. Nach Norden betrat man vom Windfang aus das von vier korinthischen Säulen getragene Atrium mit dem Treppenhaus beziehungsweise die dahinterliegende zweiläufige Treppe hinunter zum Innenhof.
Westlich und östlich des Eingangsraums lagen gleichartige Vorräume von drei Meter Breite und sechs Meter Tiefe mit je einem Fenster zum Portikus an der Straße. Der im Ostflügel war Schopenhauers einstige Bibliothek. Es schlossen flankierende, mit sechs Meter Breite auf sechs Meter Tiefe quadratische, zuletzt als, im Falle des Philosophen, Wohn-, auf der anderen Seite als Schlafzimmer genutzte Räume mit je zwei Fensterachsen und Türen nach Norden zum Flur an. Es folgten als größte Räume des Erdgeschosses Zimmer von sechs Meter Breite und acht Meter Tiefe. Schopenhauer nutzte das auf der Ostseite als Schlafzimmer, das auf der Westseite diente zuletzt als Wohnzimmer. Auch sie hatten jeweils zwei Fenster und waren so tief, weil in sie der bei den anderen Räumen vom Flur beanspruchte Raum einbezogen war.
Zum Flur öffneten sie sich durch Türen in der Nordwest- beziehungsweise Nordostecke, ferner zu Hinterzimmern nach Norden, die nahezu die Größe der Schlafzimmer an der Straßenseite hatten. Auf der Ostseite handelte es sich dabei um die ehemalige Küche Schopenhauers, auf der Westseite um einen zuletzt als Schlafzimmer genutzten Raum. Sie hatten jeweils ein Fenster zum Hof; von einem kleinen Nebenraum unterbrochen schlossen sich nach Norden auch die Seitenflügel mit eigenen Treppenhäusern an. Auf der Ostseite diente ein kleiner, wohl kaum mehr als drei Meter breiter und drei Meter tiefer Nebenraum als Wohnung der Haushälterin Schopenhauers.[51]
Die einzige Asymmetrie im Grundriss ergab sich nur bei den Räumen, die die Hinterzimmer östlich und westlich flankierten, da die Treppenspindel auf der Ostseite rund ein Drittel des Grundrisses beanspruchte, was auf der Westseite nicht der Fall war. Der Architekt hatte sich auf der erstgenannten Seite durch Aufteilung in drei kleine Räume mit je einem Hoffenster sowie mit einer Vergrößerung des angrenzenden Flurs zu dem bereits erwähnten Vorraum beholfen. Erstere waren nur über die Küche erreichbar und dienten zuletzt als Archiv, Kammer und Zählerraum. Auf der Westseite ließ sich dagegen in einem großen, nach Süden zum Flur erschlossenen Raum mit zwei Fenstern zum Hof eine weitere Küche unterbringen.
An das Atrium des Treppenhauses schloss sich ein zwei Meter breiter Treppenlauf aus Eichenholz mit einer Stufenhöhe von nur 0,15 Metern an.[89] Von dort schwang sich die Treppe in Halbkreisen um einen durch zwei Fensterachsen der Rückwand stets belichteten Schacht zu den Podesten der Etagen hoch, die jeweils durch eine breite Doppeltür zu betreten waren. Im Erdgeschoss befand sich unterhalb der Treppe hinter einer Blindtür eine Kammer mit einer Toilette.[90]
Obergeschosse
Auch im Grundriss der Obergeschosse ist deutlich der Einfluss der barocken Architektur, speziell des französischen Hotels jener Zeit zu erkennen.[Anm. 11] Zum Main hin reihten sich wie bei der Enfilade von Schlossanlagen jeweils fünf mit Flügeltüren verbundene Wohnräume, wobei sich die Türen jeweils dicht an der Außenwand befanden, um die Räume nicht zu zerschneiden.
Dabei war der mittlere, der Salon, mit je drei Fenstern, im ersten und dritten Stock mit Balkon, bei neun mal sechs Metern jeweils am größten. Die flankierenden Räume hatten Maße von sechs mal sechs, die Eckzimmer von acht mal sechs Metern. Hinter diesen fünf Vorderzimmern befand sich ein zwei Meter breiter, 20 Meter langer, zum Treppenhaus hin verglaster Korridor. An den Gang schlossen sich nach Norden in den kurzen Seitenflügeln frühere Bade- und Mädchenzimmer mit eigenen Treppen an.
Vom Dachgeschoss, das über Jahrzehnte die Ateliers von Bildhauern beherbergte, ist, bis auf die sehr gute Belichtung durch die großen Zwerchhäuser zu beiden Seiten, nichts überliefert.
Archivalien und Literatur
Archivalien
Historisches Museum Frankfurt
Institut für Stadtgeschichte
- Bestand Rechnei vor 1816, Signatur 752.
Literatur
Hauptwerke
- Lucia Franz-Schneider: Erinnerungen an das Schopenhauerhaus Schöne Aussicht Nr. 16 in Frankfurt am Main. Von Lucia Franz-Schneider niedergeschrieben im Jahre 1911. Mit einem Nachwort von Fried Lübbecke. 2. Auflage. Verlag Waldemar Kramer, Frankfurt am Main 1987, ISBN 3-7829-0347-1.
- Georg Hartmann, Fried Lübbecke: Alt-Frankfurt. Ein Vermächtnis. Verlag Sauer und Auvermann KG, Glashütten/Taunus 1971, S. 226, 227 u. 321–330.
- Wolfgang Klötzer (Hrsg.): Frankfurter Biographie. Personengeschichtliches Lexikon (= Veröffentlichungen der Frankfurter Historischen Kommission. Band XIX, Nr. 2). Zweiter Band: M–Z. Waldemar Kramer, Frankfurt am Main 1996, ISBN 3-7829-0459-1., S. 329–334.
- Günther Vogt: Frankfurter Bürgerhäuser des Neunzehnten Jahrhunderts. Ein Stadtbild des Klassizismus. Neuauflage. Societäts-Verlag, Frankfurt am Main 1989, ISBN 3-7973-0189-8, S. 17–29, 52–60, 123–129 u. 275.
Verwendete, weiterführende Werke
- Adreßbuch für Frankfurt am Main und Umgebung 1916. Unter Benutzung amtlicher Quellen. Mit der Beigabe: Großer Plan von Frankfurt a. M. und Umgebung. Verlag August-Scherl Deutsche Adreßbuch-Gesellschaft m. b. H., Frankfurt am Main 1916.
- Bernd Baehring: Börsen-Zeiten. Frankfurt in vier Jahrhunderten zwischen Antwerpen, Wien, New York und Berlin. Selbstverlag der Frankfurter Wertpapierbörse, Frankfurt am Main 1985, ISBN 3-925483-00-4.
- Wolfgang Bangert: Baupolitik und Stadtgestaltung in Frankfurt am Main. Ein Beitrag zur Entwicklungsgeschichte des deutschen Städtebaues in den letzten 100 Jahren. Verlag Konrad Triltsch, Würzburg 1937.
- Johann Georg Battonn: Oertliche Beschreibung der Stadt Frankfurt am Main – Band I. Verein für Geschichte und Alterthumskunde zu Frankfurt am Main, Frankfurt am Main 1861 (online).
- Johann Georg Battonn: Oertliche Beschreibung der Stadt Frankfurt am Main – Band II. Verein für Geschichte und Alterthumskunde zu Frankfurt am Main, Frankfurt am Main 1863.
- Johann Conradin Beyerbach: Sammlung der Verordnungen der Reichsstadt Frankfurt. Fünfter Theil. Verordnungen welche die Communication im Handel und Wandel zum Endzweck haben. Herrmannische Buchhandlung, Frankfurt am Mayn 1798.
- Johann Friedrich Boehmer, Friedrich Lau: Urkundenbuch der Reichsstadt Frankfurt. Zweiter Band: 1314–1340. J. Baer & Co, Frankfurt am Main 1905.
- Gerhard Bott: Die angenehme Lage der Stadt Frankfurt am Main. Verlag Waldemar Kramer, Frankfurt am Main 1954.
- Alexander Dietz: Frankfurter Handelsgeschichte – Band IV, 2. Herman Minjon Verlag, Frankfurt am Main 1925.
- Alexander Dietz: Stammbuch der Frankfurter Juden. Geschichtliche Mitteilungen über die Frankfurter jüdischen Familien von 1349–1849, nebst einem Plane der Judengasse. Verlag von J. St. Goar, Frankfurt am Main 1907.
- Friedrich Siegmund Feyerlein: Ansichten, Nachträge und Berichtigungen zu A. Kirchners Geschichte der Stadt Frankfurt am Mayn. Frankfurt und Leipzig 1810 (online).
- Johann Wolfgang von Goethe: Goethe’s Werke. Vollständiger Ausgabe letzter Hand Acht und vierzigster Band. J. G. Cotta’sche Buchhandlung, Stuttgart und Tübingen 1833 (online).
- Evelyn Hils: Johann Friedrich Christian Hess. Stadtbaumeister des Klassizismus in Frankfurt am Main von 1816–1845. Verlag Waldemar Kramer, Frankfurt am Main 1988, ISBN 3-7829-0364-1 (Studien zur Frankfurter Geschichte 24).
- Heinrich Sebastian Hüsgen: H. S. Hüsgen’s Getreuer Wegweiser von Frankfurt am Main und dessen Gebiete für Einheimische und Fremde nebst einem genauen Grundriß der Stadt und einer akkuraten Charte von deren Gebiete. Behrenssche Buchhandlung, Frankfurt am Main 1802 (online).
- Anton Kirchner: Ansichten von Frankfurt am Main der umliegenden Gegend und den benachbarten Heilquellen. Erster Theil. Verlag der Gebrüder Wilmans, Frankfurt am Main 1818.
- Heinz Ulrich Krauß: Frankfurt am Main: Daten, Schlaglichter, Baugeschehen. Societäts-Verlag, Frankfurt am Main 1997, ISBN 3-7973-0626-1.
- Georg Ludwig Kriegk: Deutsches Bürgerthum im Mittelalter. Neue Folge. Rütten und Löning, Frankfurt am Main 1871.
- Georg Ludwig Kriegk: Frankfurter Bürgerzwiste und Zustände im Mittelalter. Ein auf urkundlichen Forschungen beruhender Beitrag zur Geschichte des deutschen Bürgerthums. J. D. Sauerländer’s Verlag, Frankfurt am Main 1862 (online).
- Friedrich Krug: Die Hausnummern zu Frankfurt am Main, in einer vergleichenden Uebersicht der neuen mit den alten, und umgekehrt, zusammgestellt. Georg Friedrich Krug’s Verlags-Buchhandlung, Frankfurt am Main 1850.
- Fried Lübbecke: Das Antlitz der Stadt. Nach Frankfurts Plänen von Faber, Merian und Delkeskamp 1552–1864. Verlag Waldemar Kramer, Frankfurt am Main 1952.
- Fried Lübbecke: Der Muschelsaal. Verlag Waldemar Kramer, Frankfurt am Main 1960.
- Fried Lübbecke: Spätlese vom Altstadtvater Fried Lübbecke. Bund tätiger Altstadtfreunde zu Frankfurt am Main E. V., Frankfurt am Main 1964.
- Christoph Mohr: Stadtentwicklung und Wohnungspolitik in Frankfurt am Main im 19. Jahrhundert. Habelt, Bonn 1992, ISBN 3-7749-2549-6 (Beiträge zum Denkmalschutz in Frankfurt am Main 6).
- Karl Nahrgang: Die Frankfurter Altstadt. Eine historisch-geographische Studie. Verlag Waldemar Kramer, Frankfurt am Main 1949.
- Heinrich von Nathusius-Neinstedt: Baldemars von Peterweil Beschreibung von Frankfurt. In: Verein für Geschichte und Alterthumskunde zu Frankfurt am Main (Hrsg.): Archiv für Frankfurts Geschichte und Kunst. Dritte Folge, Fünfter Band, K. Th. Völcker’s Verlag, Frankfurt am Main 1896.
- Tobias Picard: Wohnen, Leben und Arbeiten am Fluß. Die Mainufer im 19. und 20. Jahrhundert in Bildern und Fotografien. In: Dieter Rebentisch und Evelyn Hils-Brockhoff im Auftrag der Gesellschaft für Frankfurter Geschichte e. V. in Verbindung mit dem Institut für Stadtgeschichte (Hrsg.): Archiv für Frankfurts Geschichte und Kunst. Band 70, Verlag Waldemar Kramer, Frankfurt am Main 2004.
- Ludwig Schemann: Schopenhauer-Briefe. Sammlung meist ungedruckter oder schwer zugänglicher Brief von, an und über Schopenhauer. Mit Anmerkungen und biographischen Analekten. Nebst zwei Porträts Schopenhauers von Ruhl und Lenbach. Brockhaus, Leipzig 1893.
- Hermann Karl Zimmermann: Das Kunstwerk einer Stadt. Frankfurt am Main als Beispiel. Verlag Waldemar Kramer, Frankfurt am Main 1963.
Abbildungen (soweit bibliografisch nachweisbar)
- Peter Becker: Bilder aus dem alten Frankfurt. Prestel, Frankfurt am Main etwa 1880.
- Bibliographisches Institut (Hrsg.): Meyers Großes Konversations-Lexikon. Ein Nachschlagewerk des allgemeinen Wissens. Sechste, gänzlich neubearbeitete und vermehrte Auflage. Bibliographisches Institut, Leipzig und Wien 1902–10.
- Jakob Fürchtegott Dielmann: Frankfurt am Main. Album der interessantesten und schönsten Ansichten alter und neuer Zeit. 2. Auflage. Verlag von Carl Jügel, Frankfurt am Main 1848.
- Carl Friedrich Fay, Carl Friedrich Mylius, Franz Rittweger, Fritz Rupp: Bilder aus dem alten Frankfurt am Main. Nach der Natur. Verlag von Carl Friedrich Fay, Frankfurt am Main 1896–1911.
- Johann Hochester, Jakob Samuel Walwert: Plan Der Roemisch kayserlichen freyen Reichs Wahl und Handel Stadt Franckfurth am Mayn und Gegend. Jaegerische Buchhandlung, Frankfurt am Main 1792.
- Max Junghändel: Frankfurt am Main. Aufnahmen nach der Natur von Max Junghändel. In Lichtdruck ausgeführt von der Verlagsanstalt für Kunst und Wissenschaft vormals Friedrich Bruckmann in München. Verlag von Heinrich Keller, Frankfurt am Main 1898.
- Wolfgang Klötzer (Hrsg.): Frankfurt-Archiv. Archiv-Verlag Braunschweig, Braunschweig 1982–88.
- Adolf Koch: Aus Frankfurts Vergangenheit. Architecturstudien nach der Natur gezeichnet und beschrieben. Verlag von Heinrich Keller, Frankfurt am Main 1894.
- Eberhard Mayer-Wegelin: Frühe Photographie in Frankfurt am Main: 1839–1870. Schirmer/Mosel Verlag GmbH, München 1982, ISBN 3-921375-87-8.
- Matthäus Merian d. Ä. & Erben: Francofurti ad moenum, urbis imperialis, electioni rom. regum atque imperatorum consecratae, emporiique tam germaniae. Quam totius europae celeberrimi, accuratio declinatio. Jäger’sche Buchhandlung, Frankfurt am Main etwa 1770.
- Johann Friedrich Morgenstern: Kleine Ansichten von Frankfurt am Main in 36 gestochenen und illuminirten Erinnerungsblättern. Faksimile der Auflage Friedrich Wilmans, Frankfurt am Main 1825 im farbigen Lichtdruck. F. Lehmann am Römerberg 3, Frankfurt am Main 1913.
- Friedrich August Ravenstein: August Ravensteins Geometrischer Plan von Frankfurt am Main. Verlag des geographischen Instituts zu Frankfurt am Main, Frankfurt am Main 1862.
- Christian Friedrich Ulrich: Geometrischer Grundriss von Frankfurt am Mayn. Verlag von Carl Christian Jügel, Frankfurt am Main 1811.
- Christian Friedrich Ulrich: Geometrischer Grundriss der Freyen Stadt Frankfurt und Sachsenhausen mit ihrer fruchtbaren Umgegend bis auf 1/4tel Stunde Entfernung im Jahr 1819. Verlag von Carl Christian Jügel, Frankfurt am Main 1819.
Weblinks
Einzelnachweise und Anmerkungen
Einzelnachweise
- ↑ Boehmer, Lau 1905, S. 224–226, Urkunde Nr. 293; die älteste in der Literatur genannte Urkunde, in der die Bezeichnung in mittelhochdeutscher Sprache Erwähnung findet. Dies deckt sich auch mit den Ausführungen bei Battonn 1861, S. 196–198, die keinen früheren Nachweis und einzig den lateinischen Namen campus piscatorum liefern.
- ↑ a b c Hartmann, Lübbecke 1971, S. 321.
- ↑ Battonn 1861, S. 188; Verweis auf eine durch den Frankfurter Chronisten Achilles Augustus von Lersner überlieferte, (nicht datierte) Gebührenverordnung, die in ihrer Höhe zwischen Altstadt, Neustadt, Sachsenhausen und Fischerfeld unterscheidet.
- ↑ Battonn 1864, S. 196 u. 197; nach Vikarienbüchern des Bartholomäusstifts aus dem 14. und 15. Jahrhundert, in die Kirchenzinszahlungen von Fischteichen in dem Areal eingetragen wurden.
- ↑ Battonn 1864, S. 197; entsprechend einer Erwähnung durch Baldemar von Petterweil um die Mitte des 14. Jahrhunderts sowie einer Ratsverfügung aus dem Jahre 1457 zugunsten der auf dem Gelände tätigen Schützen, wobei die Weißgerber in einem Nebensatz erwähnt werden.
- ↑ Battonn 1864, S. 189; Zitat: „Sie bestand nach seiner Schilderung [der von Baldemar von Petterweil] nur aus einer Reihe Häuser, die durch drei Einschnitte oder schmale Gassen von Mittag gegen Mitternacht getheilt waren.“.
- ↑ Kriegk 1862, S. 255 u. 256; Einwohnerzahlen nach den Bedebüchern, keine Erwähnung mehr in den Bedebüchern des 15. Jahrhunderts, bereits die letzte Nennung im Bedebuch 1397 lässt schon nicht mehr Wohnhäuser, sondern Gärten und Felder erkennen.
- ↑ Franz-Schneider 1987, S. 51; nach Lübbecke.
- ↑ Battonn 1864, S. 190; Zitat: „Es ist aber zu vermuthen, dass sie [die Vorstadt] zur gleichen Zeit niedergerissen wurde, als man aus Furcht vor den Hussiten neue Gräben um die Stadt aufwarf, und wo wahrscheinlich der Rechneigraben an ihre Stelle kam, […]“.
- ↑ Bott 1954, S. 58.
- ↑ Kriegk 1862, S. 256.
- ↑ Battonn 1864, S. 200 u. 201; die Bezeichnung Krautschützen diente zur Abgrenzung von der Gesellschaft der Bogen- und Armbrustschützen, Kraut und Loth war in diesem Zusammenhang ein zeitgenössischer Begriff für Pulver und Blei. Nach der Überlieferung des Frankfurter Chronisten Achilles Augustus von Lersner wurde das Schützenhaus erstmals 1472 mit einem Zuschuss des Rats aus Holz erbaut und vermutlich 1679 durch einen Steinbau ersetzt, der nach dem Augenzeugenbericht Battonns bis 1805 bestand.
- ↑ Goethe 1833, S. 19–22.
- ↑ Kriegk 1871, 290 ff.; Kriegks Darstellung der Prostitution in Frankfurt am Main vom Spätmittelalter bis zur frühen Neuzeit hat mangels moderner Darstellungen bis heute nichts an Gültigkeit verloren.
- ↑ Battonn 1861, S. 189; Zitat: „[…] die gemeinen Frauen [ein alter Begriff für Prostituierte], welche in Messzeiten hieher kamen und sich in den Weinhäusern im Fischerfelde aufhielten, […]“, nach der Überlieferung des Frankfurter Chronisten Achilles Augustus von Lersner.
- ↑ Bott 1954, S. 36.
- ↑ Battonn 1863, S. 49, 50, 54, 56, 58, 59 u. 108–110; es wurden zahlreiche Abrisse und Neubauten zwischen Predigerstraße und Alter Brücke in den 1790er und 1800er Jahren erwähnt.
- ↑ Lübbecke 1952, S. 128.
- ↑ Feyerlein 1809, S. 150 u. 151; nach Feyerleins Schilderung waren der Kai der Schönen Aussicht und die dortigen Häuser 1808 erst bis zur Ecke der Mainstraße fertig gestellt, dahinter fiel das Gelände noch direkt auf das alte Niveau ab. Das Jahr 1820 ergibt sich aus der Annahme einer Baulinie, die direkt der Aufschüttung folgte.
- ↑ Vogt 1989, S. 123, 124, 274 u. 275; die hier zumindest für den Gesamtverlauf ohne Einzelnachweis getroffene, sich eher auf die Datierungsfolge einzelner Häuser stützende Aussage wird durch den Vergleich von Ulrich 1811 und Ulrich 1819 untermauert, wonach an der Schönen Aussicht in fast zehn Jahren nur zwei neue Häuser entstanden.
- ↑ Hils 1988, S. 76 u. 77; aus dem hier auszugsweise abgedruckten Protokoll der Gesetzgebenden Versammlung vom 29. März 1825 geht hervor, dass die Pflasterung der Schönen Aussicht damals nur noch vor dem Gelände der Alten Stadtbibliothek fehlte.
- ↑ Die Einrichtung der Judengasse. In: judengasse.de. Abgerufen am 1. September 2010.
- ↑ Der Brand von 1711. In: judengasse.de. Abgerufen am 1. September 2010.
- ↑ Der Brand von 1721. In: judengasse.de. Abgerufen am 1. September 2010.
- ↑ Judengasse / Mauer / Tore. In: judengasse.de. Abgerufen am 1. September 2010.
- ↑ a b Dietz 1907, S. 321.
- ↑ Dietz 1925, S. 711.
- ↑ Dietz 1925, S. 717.
- ↑ Steinernes Haus. In: judengasse.de. Abgerufen am 1. September 2010.
- ↑ Dietz 1907, S. 321, u. Dietz 1925, S. 718, geben als Todesjahr 1809 an, bei Franz-Schneider 1987, S. 37 u. 47, ist 1803 angegeben. Da Lübbecke im Folgenden Angaben macht, die bei Dietz nicht erwähnt sind, und seine Daten der „Mitteilung des Frankfurter Standesamtes […] verdankt“, ist seiner Angabe der Vorzug zu geben.
- ↑ Dietz 1907, S. 322.
- ↑ Dietz 1907, S. 322 weist nur 14 Kinder (davon sechs detailliert) nach, auch hier sind die weit umfangreicheren Angaben von Lübbecke bei Franz-Schneider 1987, S. 37 u. 49, zu bevorzugen.
- ↑ a b Der Gassenbrand von 1796. In: judengasse.de. Abgerufen am 1. September 2010.
- ↑ Roter Turm. In: judengasse.de. Abgerufen am 1. September 2010.
- ↑ Vogt 1989, S. 126 u. 127.
- ↑ Vogt 1989, S. 17 u. 18; es wird insbesondere der Vergleich zu dritten Stadterweiterung in Darmstadt (Planung ab 1790, Ausführung ab 1791) herangezogen, welcher noch eine Magistrale nach barocken Vorstellungen vorsah, der sich die übrigen Straßen unterzuordnen hatten.
- ↑ Zimmermann 1963, S. 103 u. 104; neben Angaben zu den Parzellenabmessungen wird darauf hingewiesen, dass die Straßenbreiten in der Ausführung dann doch zwischen maximal 16 Metern (Fischerfeld- und Rechneigrabenstraße) und minimal neun Metern (Wollgraben) schwankten, was jedoch wohl bewusst zur Belebung des Straßenbildes gewählt wurde.
- ↑ Beyerbach 1798, S. 1102; Zitat: „Es können aber II. in dem Districkt des Brückhofs und in dem Zwinger keine Baustellen für Feuer – oder Getösmachende Handwerker abgegeben werden, […]“. Eine Ergänzung hinsichtlich der Schilder befindet sich im Konzept der Verkaufsbedingungen von 1806 im Institut für Stadtgeschichte Frankfurt am Main, Bestand Rechnei vor 1816, Signatur 752.
- ↑ Hils 1988, S. 28.
- ↑ a b Franz-Schneider 1987, S. 52; nach Lübbecke.
- ↑ Vogt 1989, S. 54 u. 55; es wird das Beispiel der Korrekturen seitens Hess' an den Plänen zur Paulskirche genannt, die noch sein Vorgänger Johann Andreas Liebhardt ausgearbeitet hatte. Die Turmhöhe veränderte er von 80 Schuh auf 116 Schuh, da nach Vitruv die Höhe als die Hälfte der Addition aus der Breite anzusetzen sei. Weiter führte er aus, dass man auch nach der Berechnung Andrea Palladios, der hierfür die Quadratwurzel aus dem Produkt von Länge und Breite ansetzte, zum gleichen Ergebnis komme.
- ↑ Mohr 1992, S. 12, 13, 117 u. 134; die Verweise an Hess aufgrund mehrfacher Verstöße gegen die Vorschriften werden anhand von Auszügen zahlreicher Senatsprotokolle aus dem frühen 19. Jahrhundert unzweifelhaft belegt. Mit Verweis auf die Quellenlage, ohne diese im Einzelnen zu nennen, zweifelt Mohr auch die Urheberschaft von Hess an der Einzelbauplanung an und schreibt diese zumindest nach 1802 überwiegend Bunsen zu; Hess sei demnach primär für den Bebauungsplan verantwortlich gewesen.
- ↑ Vogt 1989, S. 129; ohne Einzelnachweis und auch einzige bekannte Erwähnung des Betrages in der Literatur, daher wahrscheinlich nach nicht mehr vorhandenen Archivalien oder Exzerpten.
- ↑ Baehring 1985, S. 70–75.
- ↑ Franz-Schneider 1987, S. 27, 29 u. 48; nach den Lebenserinnerungen von Franz-Schneider. Lübbecke merkte zur Ergänzung an, dass sich im Frankfurter Adressbuch des Jahres 1844 tatsächlich ein Handelsmann Wolf Zacharias Wertheimber im genannten Haus in der Judengasse nachweisen lässt.
- ↑ Franz-Schneider 1987, S. 25, 37 u. 49; nach den Lebenserinnerungen von Franz-Schneider sowie den von Lübbecke nach „Mitteilung des Frankfurter Standesamtes […]“ gemachten Angaben. Bezüglich Sara, die bei Franz-Schneider nur als eine geschiedene „Baronin Hirsch“ genannt wird, ergibt sich nach dem Stammbaum der Familie bei Dietz 1907, S. 322, dass sie den Bankier Joel Jakob von Hirsch in Würzburg geheiratet hatte und wohl dessen Namen trug.
- ↑ Franz-Schneider 1987, S. 25 u. 37; hier widersprechen sich die Lebenserinnerungen von Franz-Schneider und die Angaben von Lübbecke, wobei ersteren der Vorzug gegeben wird. Franz-Schneider erinnert sich, dass „wir im Jahre 1856 an die Schöne Aussicht zogen“, Lübbecke führt als Geburtsdatum den 11. Mai 1852 an, spricht dann jedoch davon, sie wäre beim Einzug in das Haus „sieben Jahre alt, genau so alt wie in ihrer Schilderung“ gewesen.
- ↑ Klötzer 1996, S. 329; Klötzer ist hier bezüglich der Anschrift von Schopenhauers erster Wohnung zu ergänzen, die dort auf Alte Schlesingergasse 32 bestimmt wird. Bis 1847 existierte in Frankfurt am Main noch die Quartiersordnung aus dem Siebenjährigen Krieg, nach der Umstellung hatte die Alte Schlesingergasse aber nur 20 Hausnummern. In der bei Klötzer verwendeten Quelle kann nach Krug 1850, S. 67, mit 31 nur die (1831 gängige) Bezeichnung E32 gemeint sein, die nach 1847 den Hausnummern 16/18 entsprach.
- ↑ Schemann 1893, S. 406; diese Beschreibung schrieb Schopenhauer allerdings erst nach seinem Umzug in das Nachbarhaus nieder, wörtliches Zitat: „Sie wißen, ich wohne jetzt im Wertheimber'schen Hause No. 16, parterre, Rechts, Glasthür, stark schellen.“.
- ↑ Klötzer 1996, S. 330 u. 332.
- ↑ a b Franz-Schneider 1987, S. 55; nach Lübbecke.
- ↑ Klötzer 1996, S. 332.
- ↑ Franz-Schneider 1987, S. 12 u. 13; nach den Lebenserinnerungen von Franz-Schneider.
- ↑ Klötzer 1996, S. 330.
- ↑ Franz-Schneider 1987, S. 12; nach den Lebenserinnerungen von Franz-Schneider.
- ↑ Franz-Schneider 1987, S. 14, 16 u. 17; nach den Lebenserinnerungen von Franz-Schneider.
- ↑ Franz-Schneider 1987, S. 12 u. 14; nach den Lebenserinnerungen von Franz-Schneider.
- ↑ Franz-Schneider 1987, S. 17 u. 19; nach den Lebenserinnerungen von Franz-Schneider.
- ↑ Franz-Schneider 1987, S. 14 u. 15; nach den Lebenserinnerungen von Franz-Schneider.
- ↑ Franz-Schneider 1987, S. 18 u. 19; nach den Lebenserinnerungen von Franz-Schneider.
- ↑ Klötzer 1996, S. 333.
- ↑ Franz-Schneider 1987, S. 9, 20 u. 22; nach den Lebenserinnerungen von Franz-Schneider.
- ↑ a b Hartmann, Lübbecke 1971, S. 324; Zitat: „Am 1. Januar 1917 zogen wir [Lübbecke und seine Ehefrau] […] in den dritten Stock des Schopenhauerhauses. Die Miete war – gemessen an der Größe der Wohnung – sehr bescheiden. Schon lange wohnte »man« nicht mehr am Main.“
- ↑ Adreßbuch 1916, Teil II, S. 226.
- ↑ a b c d e f g Gudrun Jäger: Sachs-Fuld, Moritz im Frankfurter Personenlexikon (Stand des Artikels: 10. Juni 2023)
- ↑ Franz-Schneider 1987, S. 35; nach den Lebenserinnerungen von Franz-Schneider.
- ↑ Hartmann, Lübbecke 1971, S. 323 u. 326; Lübbecke verlegt hier fälschlicherweise, da es sich sowohl nicht mit der Aussage von Franz-Schneider als auch seiner eigenen späteren bei Franz-Schneider 1987, S. 35 u. 38, deckt, den Kauf des Hauses bereits in das Jahr 1860. Allerdings liefert er nur hier die Information, dass es die Weinhandlung erst ab 1868 gab und erwähnt das Alter des jüngeren Sachs, wonach dieser 1940 mit neunzig Jahren starb.
- ↑ a b c d e Hartmann, Lübbecke 1971, S. 323.
- ↑ Franz-Schneider 1987, S. 49 u. 50; nach den von Lübbecke nach „Mitteilung des Frankfurter Standesamtes […]“ gemachten Angaben bzw. nach seinem Augenzeugenbericht zu der Scheibe.
- ↑ Franz-Schneider 1987, S. 41; nach den von Lübbecke nach „Mitteilung des Frankfurter Standesamtes […]“ gemachten Angaben.
- ↑ a b c d e Hartmann, Lübbecke 1971, S. 324.
- ↑ Franz-Schneider 1987, S. 39; nach Lübbecke.
- ↑ Franz-Schneider 1987, S. 39 u. 40; nach Lübbecke.
- ↑ Hartmann, Lübbecke 1971, S. 304.
- ↑ Hartmann, Lübbecke 1971, S. 322.
- ↑ a b Hartmann, Lübbecke 1971, S. 325.
- ↑ a b c Lübbecke 1964, S. 89.
- ↑ Lübbecke 1964, S. 57–59.
- ↑ Lübbecke 1964, S. 90.
- ↑ a b Hartmann, Lübbecke 1971, S. 326.
- ↑ Lübbecke 1960, S. 467.
- ↑ Hartmann, Lübbecke 1971, S. 276.
- ↑ Hartmann, Lübbecke 1971, S. 327.
- ↑ Hartmann, Lübbecke 1971, S. 328.
- ↑ Hartmann, Lübbecke 1971, S. 330.
- ↑ Schöne Aussicht 13–15 – Hotelprojekt auf bedeutsamem Boden (13. Februar 2010, 21:10). In: deutsches-architektur-forum.de. Abgerufen am 4. Dezember 2010.
- ↑ Schöne Aussicht 13–15 – Hotelprojekt auf bedeutsamem Boden (18. Februar 2010, 07:49). In: deutsches-architektur-forum.de. Abgerufen am 4. Dezember 2010.
- ↑ Franz-Schneider 1987, S. 56; nach Lübbecke.
- ↑ a b Franz-Schneider 1987, S. 53; nach Lübbecke.
- ↑ Franz-Schneider 1987, S. 54; nach Lübbecke.
Anmerkungen
- ↑ Diese Entwicklung ergibt sich aus dem Vergleich früher Stadtpläne, beispielsweise des Plans von Matthäus Merian von 1628 noch ohne Darstellung der bastionären Befestigung und dessen fünfter Auflage aus der Zeit um 1770 mit vollendeter Befestigung; zum Fischerfeldbollwerk vgl. Battonn 1864, S. 163.
- ↑ Die Details der Bebauung des Fischerfeldes, insbesondere die Vorplanung und die genauen Daten, sind in der Literatur lange Zeit teils gar nicht, teils undeutlich und vielfach widersprüchlich dargestellt. Vor allem mangelt es fast durchgängig an Einzelnachweisen, die zumindest auf die zeitgenössische Literatur zurückgehen (Hüsgen 1802; Feyerlein 1809; Kirchner 1818; Battonn 1863 [basiert auf einem Manuskript der Zeit um 1800]). Erst Christoph Mohr (Mohr 1992) zeigt in seiner Dissertation auf, dass trotz großer Kriegsverluste (teils sogar entgegen der Aussagen bei Hils 1988, S. 9–11) noch erhebliches unausgewertetes Quellenmaterial im Institut für Stadtgeschichte Frankfurt am Main vorhanden ist. Er hat das Thema Fischerfeld aufgrund eines anderen Schwerpunktes seiner Arbeit trotz einzelner wertvoller, erstmals erbrachter Einzelnachweise und Bildveröffentlichungen aber nur am Rande gestreift und das vorhandene Material wohl auch nur in geringem Maße verarbeitet. Relativ eindeutig, da durch eine sehr zeitnahe Quelle untermauert, ist die Zuschreibung der Idee für die Bebauung des Fischerfeldes an den Frankfurter Syndikus Borke (Hüsgen 1802, S. 71; Vogt 1989, S. 17 kannte diese alte Quelle offenbar als einziger Autor des 20. Jahrhunderts, ohne jedoch den Einzelnachweis zu liefern, schon Mohr 1992, S. 116 zeigt, dass diese bereits wieder in Vergessenheit geraten war). Aus dem geringen Nachlass von Johann Georg Christian Hess geht hervor, dass dieser 1787 in Frankfurt die Stelle als Stadtbaumeister annahm und dorthin umzog (Hils 1988, S. 13). Die Zuschreibung der Planung für das Fischerfeld an ihn kann ebenfalls durch die zeitgenössische Überlieferung als gesichert gelten (Feyerlein 1809, S. 155). Das Jahr 1788 ist in der älteren Literatur (z. B. Kriegk 1862, S. 256; Nathusius-Neinstedt 1896, S. 51) bereits das des Baubeginns, was aufgrund der nachfolgenden Ausführungen jedoch erwiesenermaßen als falsch bezeichnet werden kann. Bei Vogt 1989, S. 17, jedoch ohne Einzelnachweis, ist es dagegen wohl zutreffender das Jahr, in dem die Idee aufkam. Wann genau nun erstmals ein Bebauungsplan vorgelegt wurde, ist nicht eindeutig erforscht und selbst in der jüngeren Literatur widersprüchlich dargestellt. Picard 2004, S. 294, spricht von einem ersten Plan im Jahr 1788, bleibt aber einen Einzelnachweis schuldig bzw. verweist auf ältere Veröffentlichungen, die diesen ebenso nicht liefern. Zumindest verweist bereits die ältere Überlieferung (Feyerlein 1809, S. 155) auf einen ersten Plan für das Brückhof-Gelände und einem zweiten, zweiteiligen für das eigentliche Fischerfeld, erlaubt jedoch nur, diese vor 1802 zu datieren. Der erste Plan und die westliche Hälfte des zweiten Planes wurden erstmals bei Mohr 1992, S. 8 veröffentlicht, dort jedoch – und somit entgegen der o. g. Angabe bei Picard 2004, S. 294 – beide auf 1792 datiert. Dazu widersprüchlich wird bei Mohr 1992, S. 10, nur der erste Teil explizit auf 1792 datiert. Die Genehmigung der Planung durch den Rat erfolgte nach der jüngeren Literatur ebenfalls 1792 (wohl zurückgehend auf Bangert 1937, S. 210; dann folgend Hils 1988, S. 28; Mohr 1992, S. 10; Krauß 1997, S. 101), Fried Lübbecke beharrte in seinen Veröffentlichungen (wohl fälschlich) auf dem Jahr 1790, zumal er nie einen Einzelnachweis erbrachte (Lübbecke 1952, S. 129; Hartmann, Lübbecke 1971, S. 329; Franz-Schneider 1987, S. 51, auf S. 52 wird sogar widersprüchlich nochmals 1799 genannt). Dass die Verkaufsbedingungen zumindest für die Grundstücke des Brückhof-Geländes am 13. April 1792 vorlagen, ist nachvollziehbar (Beyerbach 1798, S. 1101–1104). Die dort explizite Erwähnung des Fischerfeldes neben dem Wollgraben und dem Brückhof spräche dafür, dass damals bereits ein vollständiger Bebauungsplan vorlag.
- ↑ Das Jahr des Baubeginns kann als gesichert gelten. Es ist zeitgenössisch mehrfach überliefert (Ulrich 1811; Kirchner 1818, S. 51), wobei allerdings davon auszugehen ist, dass man in jenem Jahr erst zu Abriss und Bebauung des Brückhof-Geländes schritt und anschließend zur Auffüllung überging. Dies deckt sich mit der Genehmigung durch den Senat vom 10. September 1795, dort Straßen zu bauen (Mohr 1992, S. 10); offenbar waren dort die Abrissarbeiten beendet und man ging zur Neubebauung über.
- ↑ Auch hier legt sich die ältere wie jüngere Literatur nicht fest, meist wird indirekt unterstellt, dass die Auffüllung 1793 begann, was sich jedoch nicht mit der Bautätigkeit deckt. Einzig Karl Nahrgang (Nahrgang 1949, S. 15) nennt ohne Einzelnachweis „nach 1807“, was sich einigermaßen mit der Bautätigkeit decken würde – erst danach entstanden Gebäude, die nicht mehr im ehemaligen Brückhof-Gelände lagen. Auch ließe sich so die Herkunft des Füllmaterials für die Aufschüttung zufriedenstellend erklären, da in jenem Jahr der Abbruch der Stadtbefestigungen bereits im vollen Gange war.
- ↑ Der Kauf dürfte 1804 erfolgt sein, da nach Battonn 1863, S. 110, die Bauplätze an der Brückhofstraße im März 1804 verkauft wurden. Da diese parallel zur Schönen Aussicht verlief und in den gleichen Bauabschnitt fiel, kann der Verkauf der Grundstücke am Main nicht wesentlich früher oder später stattgefunden haben.
- ↑ Die Zuschreibung des Entwurfs an Hess bzw. das Nichtvorhandensein auch nur eines Versuchs der Abrede ist eine Konstante in der gesamten Literatur, ohne dass jemals ein Einzelnachweis oder ein Abdruck des (wohl 1944 verbrannten) Entwurfs geliefert worden wäre. Da insbesondere Lübbecke 1971 und Vogt 1989, S. 127 u. 275, die Zuschreibung gleich mehrfach liefern und bestimmte Details nennen, waren mittlerweile nicht mehr vorhandene Archivalien diesen Autoren aber wahrscheinlich noch bekannt. Mohr 1992, S. 12 u. 117, referenziert seinerseits Vogt 1989.
- ↑ Die Breite betrug nach den Skizzenbüchern der Gebrüder Treuner exakt 29,25 Meter, in der Literatur finden sich stark schwankende Angaben: Zimmermann 1963, S. 104, „fast 30 m“; Hartmann, Lübbecke 1971, S. 323, „Länge von sechsunddreißig Metern“; Franz-Schneider 1987, S. 52, „Länge von 30 Metern“; Vogt 1989, S. 127, „Fassadenbreite von 35 Metern“.
- ↑ Bezüglich der Tiefe und der Fläche finden sich Angaben von 25 Metern bzw. 750 Quadratmetern nur bei Franz-Schneider 1987, S. 52, die sich aber einzig auf das Vorderhaus beziehen, daher extrapoliert aus Ravenstein 1862.
- ↑ Nach den Skizzenbüchern der Gebrüder Treuner hatte das Gebäude bis zu Giebel des Zwerchhauses eine Höhe von exakt 23,25 Metern, zweimal einzig von Lübbecke gemachte Angaben differieren stark: Hartmann, Lübbecke 1971, S. 323, „fast dreißig Meter hohen First“; Franz-Schneider 1987, S. 52, „vom Hochbauamt erkämpften Höhe von 28 Metern“.
- ↑ a b c Diese und die gesamte nachfolgende Beschreibung folgt der Frontalfotografie des Hauses bei Hartmann, Lübbecke 1971, S. 226, sowie (vor allem bezüglich der Hof- und Hintergebäudefassaden) den Skizzenbüchern der Gebrüder Treuner, sofern nicht explizit anders angegeben.
- ↑ a b Diese und die gesamte nachfolgende Beschreibung folgt einem Foto des Treppenhauses bei Hartmann, Lübbecke 1971, S. 227, der Beschreibung des Hausinneren ebenda auf S. 323 sowie dem Grundriss des Erdgeschosses auf S. 324, sofern nicht explizit anders angegeben. Die Höhe des Kellers ist aus den Skizzenbüchern der Gebrüder Treuner abgeleitet.
Koordinaten: 50° 6′ 34,8″ N, 8° 41′ 18,1″ O