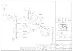
Rohrleitungsisometrie

Die Rohrleitungsisometrie ist eine technische Zeichnung in Form einer isometrischen Darstellung für die Planung und den Bau von Rohrleitungen in Großanlagen wie Dampfkraftwerken, Raffinerien und Produktionsstätten der chemischen Industrie.
Die Rohrleitungsisometrie zeigt die zu bauende Rohrleitung in all ihren Details und allen Dimensionen in Länge, Breite und Höhe, wobei sich die Hauptachsen dieser drei Dimensionen unter dem Winkel von 60° schneiden. Außerdem erhalten die drei Dimensionen den gleichen Maßstab, daher gilt dieses Verfahren der Darstellung als sehr einfach auszuführen und gibt trotzdem eine gute Vorstellung vom dreidimensionalen Verlauf der Rohrleitung.
Durch die Darstellung der einzelnen Rohrleitung können in der Rohrleitungsisometrie sämtliche Bemaßungen vorgenommen und alle Einzelteile für die Stückliste positioniert werden. Sie eignet sich allerdings nicht zur Kontrolle, ob die Verlegung der Rohrleitung in der dargestellten Art und Weise überhaupt möglich ist. Diese Prüfung wird im Rohrleitungsplan durchgeführt.
Übersicht anzuwendender Normen
Stand: Juli 2019
- EN ISO 7200 (alt DIN 6771-1) Dokumentenschriftfeld
- DIN EN ISO 6412-1:2018-06 Technische Produktdokumentation – Vereinfachte Darstellung von Rohrleitungen – Teil 1: Allgemeine Regeln und orthogonale Darstellung
- DIN EN ISO 6412-2:2018-06 Technische Produktdokumentation – Vereinfachte Darstellung von Rohrleitungen – Teil 2: Isometrische Darstellung
- DIN EN ISO 6412-3:2018-06 Technische Produktdokumentation – Vereinfachte Darstellung von Rohrleitungen – Teil 3: Zubehörteile für Lüftungs- und Entwässerungsanlagen