Römischer Gutshof von Büßlingen

Der Römische Gutshof von Büßlingen ist eine restaurierte und rekonstruierte Villa rustica (römisches Landgut) aus dem ersten Jahrhundert n. Chr., die mindestens bis ins dritte Jahrhundert existierte.
Die Anlage umfasst auf einer Fläche von 5,4 Hektar neun ausgegrabene Gebäude. Sie befindet sich südsüdöstlich von Büßlingen, einem Stadtteil von Tengen im baden-württembergischen Landkreis Konstanz in Deutschland. Nach der Villa rustica von Meßkirch ist sie die größte bekannte Hofanlage ihrer Art in Süddeutschland[1] und auch die einzige, deren durch Luftbildarchäologie ermittelten Gebäude vollständig ausgegraben wurden. Heute ist sie ein Freilichtmuseum.
Lage und Umgebung
Historisch
Der Gutshof von Büßlingen gehörte zur römischen Provinz Germania superior und lag zwischen den Vici Schleitheim (Iuliomagus) im Südwesten und Orsingen im Osten, jeweils 15 Kilometer entfernt. Etwas weiter im Südosten lagen noch die Vici Stein und Eschenz (Tasgetium). Ungefähr 24 Kilometer betrug die Entfernung zu den Römischen Grenzkastellen Hüfingen im Nordwesten und Tuttlingen im Südosten. In direkter Umgebung des Gutshofs gab es im Abstand von zirka 1,5 Kilometern noch römische Siedlungen oder Gutshöfe in Storzeln, Binningen, Tengen, Beuren und Watterdingen.[2] Westlich des Geländes befinden sich das Gewann „Hochstraß“ sowie eine Straße, die den Namen „Hochstraße“ trägt.[3] Beides könnten Hinweise auf eine vorbeiführende Römerstraße sein, die aber nicht nachgewiesen werden konnte.
Heute
Die Überreste, die das Bodendenkmal darstellen, liegen auf einem leicht nach Süden geneigten Gelände der Gemarkung „Binningen“ der Stadt Tengen im westlichen Teil des Hegaus auf einer Höhe von 515 m ü. NHN.[4] Exakt liegt der Hof im Gewann „Lohgaß“. Das Gelände ist ungefähr einen Kilometer in westlicher Richtung von der Bundesstraße 314 und zwei Kilometer nach Osten von der deutsch-schweizerischen Grenze entfernt. Nähergelegene größere Orte sind auf der deutschen Seite Hilzingen (acht Kilometer) und auf der Schweizer Seite Thayngen (5,5 Kilometer). An dem Areal führen die Römerstraße Neckar–Alb–Aare und der Heidelberg-Schwarzwald-Bodensee-Weg vorbei. Östlich des Areals verläuft ein Bächlein im „Zeltengraben“, zu dem vom Römerhof ein „kanalisierter“ Zulauf nach Südosten existiert.[3] Nördlich des Zeltengrabens liegt der „Lohrenwald“.[5] Der Hof liegt in einer nach Süden leicht abfallenden Ebene, die im Westen an das eingeschnittene Tal der Biber anschließt.
Ausgrabungen
Erste Funde auf dem Gelände des Büßlinger Gutshofs wurden um die Wende vom 19. zum 20. Jahrhundert bei Drainage-Arbeiten gemacht. Eine erste Veröffentlichung von Reliefsigillatafragment-Funden vermutlich aus dem Jahr 1900 geschah 1913 durch Otto Fritsch. Auf Grund von Flurbereinigungstätigkeiten, die das Areal betrafen, wurden Ausgrabungen notwendig und im Jahr 1976 begonnen. Insgesamt wurden dabei etwa ein Drittel der 5,4 ha großen Fläche aufgedeckt und ein Sechstel des Geländes flächig untersucht.[6] Die Gebäude wurden im Planum ausgegraben, selten Profile angelegt. Flächen zwischen den Gebäuden wurden mit dem Bagger eröffnet.[7] Die Grabungen, Rekonstruktionen und Erschließungen mit Wegen fanden 1982 ihren Abschluss.[8]
Auftraggeber der vom Konstanzer Kreisarchäologen Jörg Aufdermauer geleiteten Ausgrabungen war die Stadt Tengen, die die Absicht hatte, aus dem Areal ein Freilichtmuseum zu gestalten. Unterstützt wurden die Arbeiten durch das Landesdenkmalamt und Landesamt für Flurbereinigung Baden-Württemberg sowie das Arbeitsamt, welches durchschnittlich zwölf Arbeiter zur Verfügung stellte. Es mangelte deshalb an kompetenten Mitarbeitern, wodurch die Anforderungen an eine moderne Ausgrabung nicht erfüllt werden konnten.[9]
Im Archäologischen Hegau-Museum der Stadt Singen können die ausgegrabenen Funde angeschaut werden. Zu diesen gehören zahlreiche Schüsseln aus Keramik, der obere Teil einer Amphore, gebrannte Dachziegel und ein Hypokaustpfeiler. Daneben fanden sich metallene Bestandteile eines Bolzenschlosses, ein Messer, eine Eisengabel, eine Schere, ein Sichelfragment, ein Tüllenschaber, ein Werkzeug zur Holzbearbeitung, drei Griffel (stilus) und Glasscherben. Neben einer Gürtelschnalle wurden zwei Bronze-Fibel mit Emaille-Verzierungen (zwischen 150 und 200 n. Chr.) und eine solche ohne Verzierungen gefunden. Auf dem Gelände wurde außerdem ein alamannisches Eisenkreuz gefunden. Vom Münzschatz aus Gebäude 8 ist eine Kopie im Museum ausgestellt.[10]
Geschichte des Gutshofes
Römische Bewirtschaftung
Zur Datierung der Hofgründung dient eine Terra-Sigillata-Schüssel als Beleg, die dem späten 1. Jahrhundert zugerechnet wird. Aus Vergleichen mit ähnlichen Funden beispielsweise aus Rottenburg (Sumelocenna) sowie den Kastellen Heilbronn-Böckingen und Bad Nauheim wird ein Gründungsjahr zwischen 75 und 80 angenommen.[11] Da einige der Tontöpfereien auch keltischen Ursprungs sind, haben auf dem Hof Römer und Kelten wahrscheinlich zusammengelebt. In den Anfangsjahren war die Anlage wohl in Holzbauweise erbaut worden, die dann im Laufe der Jahre durch die Steinbauweise ersetzt wurde, gesicherte Funde gibt es dazu jedoch in Büßlingen nicht. Ein Ausbau in Steinbauweise ist erst ab der Mitte des 2. Jahrhunderts anzunehmen, dies legen zumindest Parallelen zu Villen in der Umgebung nahe.[12]
Die jüngsten Münzfunde auf dem Gelände wurden in der Mauer des Gebäudes 8 gemacht. Sie waren hier von einem Bewohner zwischen 240 und 259 gesammelt und belassen worden, insgesamt 100 Münzen. Der Schatz stellte den eineinhalbfachen Monatslohn eines einfachen römischen Soldaten dar. Ein Grund für das Belassen in der Mauer könnte das südliche Vordringen der Alamannen in den Jahren nach 260 n. Chr. sein. Dabei wurde eventuell der Hof zerstört und der Besitzer daran gehindert, die Münzen rechtzeitig aus dem Versteck zu holen.[13] Frühestes Ende des Gutshofes könnte 263 gewesen sein, da eine Münze, ein Antoninian, des Schatzes frühestens 262 oder Mitte 263 geprägt wurde. Allerdings ist die Zurechnung der Münze zu dem Schatz nicht gesichert.[14][8] Die etwa 190 Jahre römischer Nutzung entsprechen zwischen sechs und sieben Generationen.
Nach der Römerzeit
Was im Anschluss an die gesicherte, römische Siedlungstätigkeit auf dem Gutshof passierte gilt als nicht gesichert. Hätten die Römer den Hof verlassen, so wäre umfangreiches Hausratmaterial zurückgeblieben. Zudem liegen Hinweise dafür vor, dass sowohl Alamannen als auch Römer den Hof im 3. und 4. Jahrhundert genutzt hatten. Der wichtigste Hinweis auf eine Nutzung im 4. Jahrhundert ist eine Bügelknopffibel. Weitere spätrömische Funde sind zwar gut zu vergleichen, aber nicht eindeutig einem Jahrhundert zuzuordnen. Zudem fanden sich im Innenhof des Hauptgebäudes (Gebäude 1) Anzeichen für einen Pfostenbau, die in die frühe Völkerwanderungszeit gerechnet werden können.
Keiner der Funde auf dem Areal beweist eine längerdauernde Siedlungstätigkeit. Sie lassen lediglich die Annahme zu, dass die Villa im Verlauf entweder als römische Begräbnisstätte genutzt wurde oder von den Alamannen weiterverwendet wurde. Sie könnten die vorhandene römische landwirtschaftliche Infrastruktur übernommen haben, wohl aber wurden die Wohngebäude nicht genutzt.[15]
Nutzung
Die bodenkundliche Beurteilung zeigt im Bereich Tengen eine negative Pseudovergleyung. Diese Böden sind gekennzeichnet durch Sauerstoffarmut und Ton- und Nährstoffreichtum. Dadurch vergrast und verkrautet die Vegetation stark, da Stauwasser nicht abfließen kann. Zudem verkürzt sich die Vegetationsperiode an den Höhen der Hegau-Vulkane und des Randen.[16] Folglich eignete sich das Land um den Gutshof nicht zum Anbau von Kulturpflanzen, der Schwerpunkt der Nutzung dürfte damit auf der Viehwirtschaft gelegen haben.[17] Knochenfunde auf dem Gutshof beweisen eine Mehrzahl an Ochsen, ein Hinweis auf die Verwendung von Ochsengespannen. Die gefundenen Schweineknochen zeigen ältere, weibliche Tiere, die sich zur Zucht von Jungtieren geeignet hätten.[18] Auf dem Hof könnten abschätzenden Berechnungen zufolge 40 bis 50 Menschen auf zirka 1230 Quadratmetern Nutzfläche in vier Gebäuden gelebt und gearbeitet haben. Die Größe der bewirtschafteten Fläche hätte bis zu 100 ha betragen und dabei ungefähr 50–60 Rinder, 100 Schafe oder Ziegen sowie 50 Schweine ernähren können.[19] Bei dieser Größe wäre eine Überproduktion zu erwarten gewesen, weshalb der Hof als Versorgungsbetrieb für die Städte Tasgetium oder Iuliomagus gedient haben könnte.[8]
Bautechnik
Mauerwerk
Bei allen ausgegrabenen Gebäuden wurde dieselbe Mauertechnik aus kaltzeitlichen Geröllen verwendet. Nach der Vermessung eines rechteckigen Grundrisses huben die Arbeiter Fundamentgräben aus, die der natürlichen Geländeneigung folgten. Diese waren je nach Funktion des Gebäudes zwischen 40 und 120 Zentimeter tief und zwischen 60 und 120 Zentimeter breit. Anschließend verfüllte man sie mit Hegau-Basalten und -Phonoliten, wodurch die sogenannte „Sickerstückung“ entstand. Sie gewährleistete die Versickerung von Regenwasser. Hierauf wurden die Grundmauern aufgesetzt, die der Breite des Grabens entsprachen. Die zweireihig und -lagigen Mauern bestanden aus Kalksandsteinen und vereinzelt aus Muschelkalkfragmenten sowie Konglomeratblöcken. Die Verbindung zwischen den größtenteils nicht bearbeitet Steinen stellte vermutlich Kalkmörtel her. Nur die Ecksteine waren manchmal behauen.
Auf die Grundmauern wurden die etwa 10 cm schmaleren Wände aufgesetzt, die wiederum zweireihig war und aus unbehauenen Steinen bestand. Teilweise waren bis zu fünf Lagen erhalten. Der Innenraum war mit Steinen und Kalkmörtel verfüllt. Die Differenz wurde meist im Innenraum sichtbar oder an der Außenseite mit schrägen Steinen kaschiert.[20]
Wände
Für die Außenwände konnte kein Verputzen nachgewiesen werden, es fehlt am aufgehenden Mauerwerk der Fugenstrich. Die Innenwände des Hauptgebäudes und des Tempels sind den Hinweisen nach mit weißem Kalkmörtel verputzt gewesen. An wenigen Stellen waren Reste geometrischer Bemalungen aus roten und gelben Streifen vorhanden.[21]
Türen und Fenster
Nur in Gebäude 4 waren Türschwellen einer 90 cm breiten Holztür gefunden worden. Im Tempel fanden sich Hinweise auf einen mit Kalksteinplatten ausgelegten Eingang. In den anderen Gebäuden fehlen Hinweise auf Eingänge. Die Funde zu Fenstern lassen nur wenige Rückschlüsse auf die Art der Fenster zu. Es waren nur Reste von Fensterscheiben und eines Fenstergitters erhalten geblieben.[21]
Dächer
Insgesamt konnten bei der Ausgrabung mit 143 nur wenige Dachziegel-Bruchstücke gesichert werden. Tegulae gab es in zwei unterschiedlichen Größen, wobei die größere Version Ausmaße von 35 auf 32 Zentimetern annahm. Die kleine Version war bei gleicher Länge deutlich schmäler: zwischen 15 und 19 cm. Bei 2 cm Mächtigkeit hatten die gefundenen Imbrices eine Breite von 16 cm und eine Höhe von 6,5 cm. Für die Gebäude 1–4 und 7 konnten die Dachziegelfragmente eindeutig identifiziert werden. Bei den restlichen Gebäuden fanden sich lediglich Ziegelfragmente.[20]
Böden

In einigen Gebäuden konnten Reste von Estrichböden nachgewiesen werden. Der Estrich bestand aus einem mit Ziegelsplitt durchsetzen Gemisch von Sand- und Kalksteinen. Er war zehn Zentimeter dick und auf einer ebenso mächtigen Geröllschicht aufgebracht. In gleicher Art waren die Unterböden der Fußbodenheizung und des Schwimmbeckens. In Gebäude 4 fand sich ein sekundär verbrannter Stampflehmboden.
Vier Räume waren mit einer für die damalige Zeit typischen Fußbodenheizung (Hypokaustum) ausgestattet. Dabei wurde unter dem eigentlichen Fußboden ein Hohlraum belassen, der in regelmäßigen Abständen mit den Fußboden stützenden Steinsäulen (Hypokaustpfeiler) bebaut wurde. In Büßlingen wurden zwei vollständige Pfeiler mit einer Länge von 38 und 60 cm geborgen. Hierauf wurden annähernd quadratische Ziegelplatten (Suspensurplatten) mit gelegt, die die Unterlage für die Fußbodenschicht aus Kalkmörtel bildeten. Ein Heizkanal, der Luft in den Hohlraum leitete, sorgte durch Befeuerung für die Erwärmung des Bodens. Bei Dauerbetrieb konnten so bis zu 30 °C Bodentemperatur erreicht werden. Durch kantige Tonröhren (Tubuli) wurden Rauch und Wärme in den Steinkern der Wände abgeleitet, was gleichzeitig zu einer zusätzlichen, leichten Erwärmung der Hausmauer führte. Es konnten Tubuli gesichert werden, die einen Hohlraum von acht auf acht Zentimeter aufwiesen. Der zum Heizen verwendete Ofen war mit Sandsteinplatten verkleidet, ebenso der Heizkanal.[22]
Die Anlage
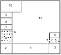
Das ausgegrabene Areal hat einen annähernd trapezförmigen Grundriss, wie er für einen Streubauhof typisch ist[23] und umfasst neun nachgewiesene Gebäude. Der Stall (Gebäude 9) und das Schlachthaus (Gebäude 4) wurden nach Ende der Grabungsarbeiten wieder zugedeckt, eine Rekonstruktion ist jedoch geplant. Eine Steinmauer mit den ungefähren Maßen 190 × 250 Meter umgab das Gelände. Ein mit Steinplatten gepflasterter, drei Meter breiter Wirtschaftsweg, der von Osten auf das Hauptgebäude zuläuft, konnte ausgegraben werden, wurde jedoch nicht rekonstruiert. Insgesamt sind die Grundzüge der Gebäude mit modernen Methoden nachgebildet und die original erhaltenen Teile vervollständigt worden.
Wohnhaus
-
Wohnhaus – Blick über Raum 10 auf das Haus
-
Grundriss-Schema des Wohnhauses
Das mit seiner Front nach Süden ausgerichtete Wohnhaus (Gebäude 1) befindet sich im zentralen Teil des Geländes und hat die Grundmaße 35 × 40 Meter. Bei den Ausgrabungen wurden die Sickerstückung, Grundmauerteile und im nördlichen Abschnitt bis zu zwei Lagen des aufgehenden Mauerwerks vorgefunden. Das einstöckige Haus war in zehn Räume gegliedert. Links und rechts der Eingangshalle (Raum 1) befanden sich zwei, wahrscheinlich einstöckige Ecktürme (Raum 2,3). An diese schlossen sich zwei jeweils per Hypokaustum heizbare Räume (4, 5) an, die wiederum von den Schlaf- und Essräumen (6–9) gefolgt wurden. Außerdem besaß das Haus einen Vorratsraum (10). Den größten Teil des Wohnhauses nahm der unüberdachte 600 Quadratmeter große Innenhof (11) ein. Bei den Grabungen konnten die Hauseingänge nicht rekonstruiert werden.
Im Unterschied zu anderen, luxuriöseren Villae rusticae hatte das Wohnhaus von Büßlingen keine säulengestützte Eingangshalle vor dem Haus, sondern eine vollständig in das Wohnhaus integrierte Eingangshalle. Die heute nur noch in ihren quadratischen Grundzügen erhaltenen Ecktürme waren von außen vermutlich nicht als solche zu erkennen. Der Grund dafür, dass im Gutshaus der sonst übliche Keller fehlte, könnte an dem teilweise nahe an die Erdoberfläche reichenden Stauwasser-Horizont liegen. Dadurch wäre vermutlich, zumindest periodisch, zu viel Wasser in den Keller eingedrungen. Den Keller ersetzte ein Raum mit Mörtelboden im Westeck des Hauses. Architektonische Auffälligkeiten sind eine abgeschrägte oberste Steinlage der Grundmauer und ein Sickergraben an der Südwestseite des Hauses. Ersteres geschah aus ästhetischen Gründen, Zweiteres war den in dieser Region vorherrschenden West-Wetterlagen geschuldet. Von daher schloss man auf ein nach außen geneigtes Pultdach.
Badehaus
Das Badehaus (Gebäude 3) liegt an der Südseite, am tiefsten Punkt des Geländes und ist über 200 Quadratmeter groß. Von dem Gebäude waren Sickerstückung, Grundmauer und die unterste Lage des aufgehenden Mauerwerks erhalten, in fragmentarischer Form auch Teile des farbigen Wandinnenverputzes und der Ziegelbelag des Kaltwasserbeckens. Insgesamt war das Haus in sechs Räume gegliedert, die alle einen mit Rollsteinen unterlegten, 10 cm dicken Mörtelboden besaßen. An der Ostseite befand sich der Heizraum (5), der sowohl das warme Wasser, als auch die Wärme für die Fußbodenheizung zur Verfügung stellte. Hierin könnte auch der Grund für das wenig beheizte Haupthaus liegen: Die Bewohner verbrachten in den kühleren Jahreszeiten ihre Freizeit vermutlich vermehrt in dem wohl dauergeheizten Badehaus.
-
Badehaus – Blick über Raum 2a auf das Haus
-
Badehaus – Blick über Raum 5 auf das Haus
-
Abflussrinne des Badehauses
-
Grundriss-Schema des Badehauses
Für den Ablauf in einem römischen Bad hatte sich im Laufe des ersten Jahrhunderts ein Grundschema herausgebildet. Nach dem Umkleiden in der palaestra (Raum 1) begab sich der Badende in den Kaltwasserraum (2), der zur Hälfte aus dem Kaltwasserbecken (piscina, Raum 2a) bestand. Danach wechselte er in das Schwitzbad (sudatorium, Raum 3) und von dort entweder in die Warmbadewanne (caldarium, Raum 3a) oder das Laubad (tepidarium, Raum 4). Die Räume für Lau- und Warmbad waren mit dem Hypokaustum beheizt. Das Wasser wurde in einem Metallkessel erhitzt und durch ein Bleirohr dem Becken zugeführt. Der Kessel befand sich direkt auf der Heizleitung das Warmbades. Wie das Wasser zu dem Badehaus gelangte, konnte bisher nicht geklärt werden, jedoch dessen Ablauf. Unter den Becken befand sich eine Sickergrube, von der aus eine Abflussrinne ins Freie führte.
Tempel
Der Tempel (Gebäude 2) liegt 25 Meter südöstlich des Wohnhauses und ist dessen Eingangshalle zugewandt. Mit neun Metern Breite und 16 Metern Länge ist der Tempel größer als die meisten römischen Tempel dieser Art in Baden-Württemberg. Das Gebäude vom Typus eines Prostylos war in zwei Räume geteilt, das Heiligtum (cella, ca. 96 m²) und eine Eingangshalle (ca. 54 m²). Bei den Ausgrabungen stieß man auf die Sickerstückung und die Grundmauern. Vom Mörtelfußboden des innersten Heiligtums und dem Eingangsbereich konnten ebenfalls Teile gefunden werden. Das Dach über der offenen Eingangshalle wurde mutmaßlich von vier Säulen getragen, die jedoch nicht erhalten waren. Auffällig am Gebäude war die bessere Bauausführung im Vergleich mit den übrigen Gebäuden. Hinweise auf die hier verehrte Gottheit konnten nicht gefunden werden.[24]
Wirtschaftsgebäude
Insgesamt verfügte der Gutshof über sechs Wirtschaftsgebäude. Darunter waren eine Schmiede, ein Schlachthaus, ein Stall und weitere drei, vermutlich als Scheunen genutzte, Gebäude.
-
Schmiede – Blick über Raum 4 auf das Haus
-
Grundriss-Schema der Schmiede
Die Schmiede (Gebäude 5) liegt ein Stück westlich des Haupthauses. Von ihr waren Sickerstückung und große Teile der Grundmauern sowie des beginnenden, aufgehenden Mauerwerks erhalten. Auf die Nutzung des Gebäudes als Schmiedehaus deuten Feuerspuren und Aschefunde in den beiden mittleren Räumen (2,3) hin. Auch die Reste von Feuerungsanlagen wurden gefunden. Rötliche Feuerspuren der Hitze fanden sich an den Wänden und den Ecken der Räume, so dass von mehreren Feuerstellen ausgegangen werden kann. Eine 8 Zentimeter in den Boden reichende, halbkreisförmige Feuerspur im Lehmboden des östlichen Raumes deutet auf einen größeren Ofen wie beispielsweise eine Eisenschmelze hin. Im südlichen Raum (1) finden sich nur eine größere Feuerstelle, die zu einem Herd gehört haben könnte und Reste eines Mörtelfußbodens. Von diesem sind Teile des Unterbaus und Steinplatten-Auflagen erhalten, die ebenfalls angeglüht sind. Daneben fand sich ein ehemaliger Mahlstein, der vielleicht als Halterung für einen Schwenkarm gedient haben könnte. Es könnte auch möglich sein, dass das Gebäude als Wohnhaus in Benutzung war, in dem die Angestellten des Hofes lebten. Unter der Hofschmiede fand man die Sickerstückung eines älteren Hauses, das vermutlich als Stall genutzt wurde.
Das Schlachthaus (Gebäude 4) befindet sich am östlichsten Punkt des Areals. Es wurde bisher nicht rekonstruiert, aber Tierknochenfunde in seiner Umgebung lassen auf die Funktion als Schlachterei schließen. Daneben scheint auch eine Nutzung als Pförtnerhaus möglich zu sein.
Am anderen Ende des Geländes, im Nordwesten, war der Stall (Gebäude 9) des Hofes. Allerdings war nur noch die Sickerstückung erhalten, so dass die eigentliche Funktion nur vermutet werden kann. Das Gebäude ist recht schmal und dafür eher in die Länge gezogen (im Gegensatz zu den großräumigeren Scheunen). Hier hätten zwei Reihen von Viehboxen Platz gefunden.
-
Scheune (6)
-
Scheune (7)
-
Scheune (8)
Südlich des Tempels befanden sich zwei Scheunen (Gebäude 6, 7) und nordwestlich des Haupthauses nochmals eine (Gebäude 8). Von ersteren war nur die Sickerstückung erhalten, allerdings deutet der größere Grundriss auf eine Nutzung als Lagergebäude hin. Von der dritten Scheune waren außerdem noch Teile der Grundmauern und des aufgehenden Mauerwerks aufzufinden gewesen. In einer zusammengestürzten Mauer eines vermuteten Anbaus fanden sich die Goldmünzen.
Denkmalschutz
Das Bodendenkmal „Römischer Gutshof von Büßlingen“ ist geschützt als eingetragenes Kulturdenkmal im Sinne des §2 des Denkmalschutzgesetzes des Landes Baden-Württemberg (DSchG).[25] Nachforschungen und gezieltes Sammeln von Funden sind genehmigungspflichtig, Zufallsfunde an die Denkmalbehörden zu melden.
Literatur
- Jörg Aufdermauer: Ein römischer Gutshof in Büßlingen, Kreis Konstanz. In: Antike Welt. Band 12, 1981.
- Jörg Aufdermauer: Ein römischer Gutshof von Tengen-Büsslingen, Landkreis Konstanz. In: Archäologie der Schweiz. Band 9, 1986, S. 57–61.
- Karin Heiligmann-Batsch: Der römische Gutshof bei Büsslingen, Kr. Konstanz. Ein Beitrag zur Siedlungsgeschichte des Hegaus. Theiss, Stuttgart 1997, ISBN 978-3-8062-1286-0.
Siehe auch
Weblinks
- Informationen zum Freilichtmuseum „Römischer Gutshof Büßlingen“ auf der Website der Stadt Tengen
- Bilder von den Ausgrabungen 1976 (Reihen 1-4)
- Archäologisches Hegau-Museum auf der Website der Stadt Singen
- Villa Rustica in Büßlingen auf der Website der Römerstraße Neckar–Alb–Aare
Einzelnachweise
- ↑ Karin Heiligmann, Jürgen Hald: Der römische Gutshof von Tengen-Büßlingen. (PDF; 3,0 MB) Kleiner Führer zur Freilichtanlage. 2011, S. 2, abgerufen am 19. Juli 2013.
- ↑ Karin Heiligmann-Batsch: Der römische Gutshof bei Büsslingen. Theiss, Stuttgart 1997, S. 13, 15.
- ↑ a b ADAC Stadtatlas: Großraum Städte- und Gemeindeatlas Bodensee (Band 63, 1:20.000). 3. Auflage. ADAC-Verlag, München 2001, ISBN 978-3-8264-0952-3.
- ↑ Landesvermessungsamt Baden-Württemberg (Hrsg.): Wanderkarte des Schwarzwaldvereins „Blatt 10 – Hegau-Bodensee“ (1:50.000). 1989.
- ↑ Kompass Wander- und Bikekarte: Blatt 783 Hegau, Westlicher Bodensee (1:50.000).
- ↑ Bürgermeisteramt Tengen (Hrsg.), Karin Heiligmann: Kleiner Römischer Gutshof-Führer Büßlingen.
- ↑ Bürgermeisteramt Tengen (Hrsg.), Karin Heiligmann: Kleiner Römischer Gutshof-Führer Büßlingen.
- ↑ a b c Anneros Troll, Jürgen Hald: Zeitreisen am Bodensee. Von den Rentierjägern zu den Alemannen. Culturis, Steißlingen 2004, S. 24–25.
- ↑ Karin Heiligmann-Batsch: Der römische Gutshof bei Büsslingen. Theiss, Stuttgart 1997, S. 16–17.
- ↑ Stadt Singen: Die Sammlung des Archäologischen Hegau-Museums. Abgerufen am 12. Dezember 2011.
- ↑ Karin Heiligmann-Batsch: Der römische Gutshof bei Büsslingen. Theiss, Stuttgart 1997, S. 95.
- ↑ Karin Heiligmann-Batsch: Der römische Gutshof bei Büsslingen. Theiss, Stuttgart 1997, S. 98.
- ↑ Karin Heiligmann-Batsch: Der römische Gutshof bei Büsslingen. Theiss, Stuttgart 1997, S. 54.
- ↑ Karin Heiligmann-Batsch: Der römische Gutshof bei Büsslingen. Theiss, Stuttgart 1997, S. 59.
- ↑ Karin Heiligmann-Batsch: Der römische Gutshof bei Büsslingen. Theiss, Stuttgart 1997, S. 98 ff.
- ↑ Karin Heiligmann-Batsch: Der römische Gutshof bei Büsslingen. Theiss, Stuttgart 1997, S. 15.
- ↑ Karin Heiligmann-Batsch: Der römische Gutshof bei Büsslingen. Theiss, Stuttgart 1997, S. 105.
- ↑ Karin Heiligmann-Batsch: Der römische Gutshof bei Büsslingen. Theiss, Stuttgart 1997, S. 108.
- ↑ Karin Heiligmann-Batsch: Der römische Gutshof bei Büsslingen. Theiss, Stuttgart 1997, S. 108f.
- ↑ a b Karin Heiligmann-Batsch: Der römische Gutshof bei Büsslingen. Theiss, Stuttgart 1997, S. 45–46.
- ↑ a b Karin Heiligmann-Batsch: Der römische Gutshof bei Büsslingen. Theiss, Stuttgart 1997, S. 46–47.
- ↑ Karin Heiligmann-Batsch: Der römische Gutshof bei Büsslingen. Theiss, Stuttgart 1997, S. 46.
- ↑ Karin Heiligmann-Batsch: Der römische Gutshof bei Büsslingen. Theiss, Stuttgart 1997, S. 42.
- ↑ Karin Heiligmann-Batsch: Der römische Gutshof bei Büsslingen. Theiss, Stuttgart 1997, S. 27.
- ↑ Albert Bittlingmaier: Alte Gemäuer erzählen Geschichten. 22. August 2008, abgerufen am 19. Juli 2013.
Koordinaten: 47° 47′ 11,7″ N, 8° 42′ 16,2″ O
