Prinzregentenstraße 7–9

Prinzregentenstraße 7–9 ist ein Gebäudekomplex in München. Der Baukomplex im Stil des Historismus beherbergt die Sammlung Schack und mehrere Kulturinstitutionen. Die beiden miteinander verbundenen Gebäude sind einzeln als Baudenkmal in die Bayerische Denkmalliste eingetragen und gehören zu dem Ensemble Prinzregentenstraße.[1]
Lage
Der Gebäudekomplex liegt in dem Münchener Stadtteil Lehel in der Prinzregentenstraße an der Ecke zur Reitmorstraße, einer Parallelstraße der am linken Ufer der Isar verlaufenden Widenmayerstraße. Etwa 100 Meter westlich des Komplexes liegt das Bayerische Nationalmuseum.
Geschichte
%252C_um_1909.jpg)
Bauherr des Doppelkomplexes war Kaiser Wilhelm II. Der Gedanke, die Funktionen eines für die Preußische Gesandtschaft in München geplanten Palais und einer Gemäldegalerie in einem Gebäudekomplex miteinander zu verknüpfen, ging auf Graf Friedrich Pourtalès zurück, der seit 1902 preußischer Gesandter in München war. Er schlug dafür den Umzug der Schack-Galerie, die der Sammler Graf Adolf Friedrich von Schack 1874 an Wilhelm II. vermacht hatte und die nach dem Tod Schacks im Jahr 1894 in den Besitz des Kaisers gekommen war, aus ihrem bisherigen Galeriegebäude an der Brienner Straße in den Neubau vor. Nach der Vorstellung von Pourtalès sollten die Räume der Botschaft und der Galerie bei feierlichen Anlässen eine repräsentative Einheit bilden. Pourtalès veranlasste den Architekten und Bildhauer Adolf von Hildebrand, erste Entwürfe anzufertigen. Die endgültige Planung führte Max Littmann durch, der dabei auch Elemente der Entwürfe Hildebrands aufgriff. 1907–1909 wurde der Gebäudekomplex erbaut. In dem Winkel zwischen Gesandtschaftsgebäude und Galeriegebäude lag ursprünglich ein geometrisch angelegter Garten.
-
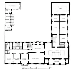
Grundriss Erdgeschoss -
Grundriss 1. Obergeschoss -
Eingangshalle Schackgalerie -
Lenbachsaal -
Kopiensaal
Ab 1921 wurde das Palais zum Sitz der Vertretung der Regierung des Deutschen Reichs in München. Zur Zeit des Nationalsozialismus war das Palais von 1933 bis 1945 der Amtssitz von Franz Xaver Ritter von Epp, des Reichsstatthalters in Bayern. Im Zweiten Weltkrieg wurde das Gebäude teilweise beschädigt. Nach Beseitigung der Schäden wurde die Schack-Galerie 1950 wiedereröffnet. Im selben Jahr wurde das Palais zum Sitz der Bayerischen Staatskanzlei und des Ministerpräsidenten. Der ehemalige Lenbachsaal des benachbarten Galeriegebäudes diente als Sitzungssaal. Nach Umzug der Staatskanzlei 1993 in einen Neubau am Hofgarten kamen Kultur- und Bildungsinstitutionen in das Palais, darunter die Bayerische Elite-Akademie, das Polnische Kulturzentrum München und das Tschechische Zentrum München.
Architektur

Der Gebäudekomplex hat einen L-förmigen Grundriss und erstreckt sich entlang der Prinzregentenstraße und der Reitmorstraße. An der Schaufassade an der Prinzregentenstraße sind die beiden Bauteile entsprechend ihrer unterschiedlichen Funktion verschieden gestaltet, aber durch gemeinsame Architekturelemente miteinander verbunden. Sie haben ein Erdgeschoss mit durchgehender Bandrustizierung aus Sandstein, das durch ein durchlaufendes Gurtgesims abgeschlossen ist. Die beiden Obergeschosse sind über zwei Geschosse hinweg durch Lisenen, Pilaster oder Säulen in Kolossalordnung vertikal gegliedert. Auch das abschließende Gebälk mit Kranzgesims und die von Vasen bekrönte Attika laufen über beide Gebäudeteile durch. Fensterrahmungen, Pilaster und Säulen sind aus Sandstein.
Gesandtschaftsgebäude

Das dreigeschossige ehemalige Gesandtschaftsgebäude ist als Stadtpalais gestaltet. Es hat einen rechteckigen Grundriss von etwa 32 × 17 Metern und trägt ein Walmdach. Die fünfachsige Fassade im barockisierenden Stil hat Steinrahmenfenstern und über die zwei Obergeschosse durchlaufende Lisenen. Die Fenster des ersten Obergeschosses haben geschwungene Fenstergiebel. In der Mittelachse liegt das Portal, hinter dem eine Tordurchfahrt zum Innenhof führt. Darüber liegt ein Balkon, auf den eine Glastüre hinausführt, die durch Steinsäulen mit ionischen Kapitellen von zwei schmalen Seitenfenstern getrennt ist. Das darüberliegende Fenster des zweiten Obergeschosses ist entsprechend verbreitert und durch Steinpfosten dreigeteilt. Die Hoffassade ist putzgegliedert und hat an ihrer Ostseite im ersten Obergeschoss vor dem ehemaligen Speisesaal eine dreibogige Loggia mit toskanischen Säulenpaaren.
Die Tordurchfahrt hat drei Kreuzgratgewölbe, die durch von toskanischen Säulenpaaren gestützte Gurtbögen voneinander getrennt sind. Zwischen den Säulenpaaren an der Westseite führt eine Glastüre in ein Vestibül, von dem man aus zu der dreiseitig um ein Treppenauge gelegten Haupttreppe mit weißen Marmorstufen und neoklassizistischem Messinggeländer gelangt. In dem Raum in der Südwestecke des ersten Obergeschosses ist noch die hölzerne Kassettendecke erhalten.
In der Nordwestecke des Innenhofs liegt ein zweiflügeliges Rückgebäude, dessen Erdgeschoss ursprünglich als Remise und Stall diente. Der zweigeschossige Westflügel mit Garagen im Erdgeschoss hat zwei Giebelrisaliten und trägt ein Pultdach. Der eingeschossige Nordflügel trägt ein Walmdach mit Dachgauben.
-
Portal -
Mittelachse -
Tordurchfahrt -
Hoffassade -
Rückgebäude
Galeriegebäude

Das ebenfalls dreigeschossige Galeriegebäude hat über dem Rustika-Ergdeschoss eine zweigeschossige, von Pilastern begrenzte Säulenloggia mit ionischen Säulen in Kolossalordnung. Pilaster und Säulen tragen ein Gebälk mit einer Widmung: „Kaiser Wilhelm II. der Stadt München zur Mehrung ihres Ruhmes und großen Künstlern zum Gedächtnis“. Im Tympanon des darüber aufragenden Giebeldreiecks ist ein von Adlern flankiertes Wappen mit einem Monogramm des Kaisers dargestellt.
Die Seitenfassade an der Reitmorstraße ist dreigeschossig mit leicht erhöhten Eckrisaliten. Der Mittelbau und der südliche Eckrisalit haben ein Satteldach, der nördliche Eckrisalit ein Walmdach. Die südliche Eckrisalit hat an seiner fast fensterlosen Ostseite zwei Paare von ionischen Pilastern aus Sandstein, die sich über die beiden Obergeschosse hinweg erstrecken. Ansonsten weist die Seitenfassade ebenso wie die Hoffassade eine Putzgliederung auf.
Durch das Portal gelangt man in ein Vestibül, das an zwei Seiten einen Säulengang mit roten Marmorsäulen hat. Es bietet Zugang zu den Räumen im Erdgeschoss und zu dem Treppenaufgang, in dem eine Treppe aus rotem Marmor in das erste Obergeschoss führt. Die Ausstellungsräume sind im Erd- und ersten Obergeschoss zweizeilig angeordnet, die drei Räume im zweiten Obergeschoss des Mittelbaus liegen in einer Flucht. Im Obergeschoss der beiden Eckrisaliten liegt je ein zweigeschossiger Saal mit Oberlichtern für großformatige Gemälde.
-
Front -
Portal -
Giebel -
Seite -
Hoffassade
Literatur
- Su.: Neubau der Schackgalerie und der preußischen Gesandtschaft in München. In: Zentralblatt der Bauverwaltung. Nr. 81, 1909, S. 532–535 (zlb.de).
- Julius Seidler (Hrsg.), Heinrich Ernst Kromer (Vorwort): Münchener Architektur-Plastik. P. Klostermann, München 1908, Tafel 36 (Abbildung des plastischen Fassadenschmucks von Seidler)
- Süddeutsche Bauzeitung, 19. Jahrgang 1909, Nr. 10 und Nr. 41.
- Architektonische Rundschau, 26. Jahrgang 1910, Heft 10, S. 87 f.
- Bayerischer Architekten- und Ingenieur-Verein (Hrsg.): München und seine Bauten bis 1912. Bruckmann, München 1912, S. 404 f.
- Franz Zauner: München in Kunst und Geschichte. Lindauer, München 1914, S. 311 f. (= Das bayerische Oberland in Kunst und Geschichte, Band 1).
- Georg Jacob Wolf: Max Littmann 1862–1931. Knorr & Hirth, München 1931, S. 21 f. (Text), S. 23 (Abbildung), Tafeln 60, 61, 62 und 63 (Abbildungen).
- Karl Stankiewitz: Prachtstraßen in München. Brienner und Prinzregentenstraße. Bayerland, Dachau 2009, ISBN 978-3-89251-397-1, S. 72 f., S. 127–129.
- Heinrich Habel, Johannes Hallinger, Timm Weski: Landeshauptstadt München – Mitte (= Bayerisches Landesamt für Denkmalpflege [Hrsg.]: Denkmäler in Bayern. Band I.2/1). Karl M. Lipp Verlag, München 2009, ISBN 978-3-87490-586-2, S. 831 ff.
Weblinks
Einzelnachweise
- ↑ Denkmalliste für München (PDF) beim Bayerischen Landesamt für Denkmalpflege. Abgerufen am 15. Januar 2020 (Denkmalnummern D-1-62-000-5577, D-1-62-000-5578 und E-1-62-000-54)
Koordinaten: 48° 8′ 32,7″ N, 11° 35′ 35,5″ O