Nortongetriebe

Das Nortongetriebe ist eine spezielle Art eines Getriebes, erfunden von Wendell P. Norton (19. Jh.) in der Werkzeugfabrik Hendey (USA). Am 8. März 1892 wurde Norton das US-Patent Nr. 470,591 für die erste Version dieses Getriebes zuerkannt.[1] Dieses Getriebe kann im Vorschubgetriebe einer Drehmaschine eingesetzt werden. Es diente dazu, beim Drehen schnell die Drehzahl der Leitspindel für verschiedene Steigungen (mm oder ") beim Gewindedrehen bzw. wenn so konstruiert auch die Drehzahl der Zugspindel für den Vorschub beim Längs- bzw. Plandrehen (mm/Umdrehung) umschalten zu können. Ohne Nortongetriebe sind die Schaltungen im Vorschubgetriebe einfach gehalten und die Grobvorwahl der Vorschubdrehzahlen erfolgte durch Umrüsten des Wechselrädersatzes zwischen Hauptspindel und Antriebsspindel des Vorschubgetriebes. Dies erfordert einen erheblichen Montageaufwand.
Das Nortongetriebe ist ein Schwenkradgetriebe und erlaubt das Einschwenken in verschiedene Übersetzungsstufen ohne Ummontieren der Zahnradsätze.
Funktionsprinzip

Der Antrieb des Vorschubgetriebes ist mit der Hauptspindel fest gekoppelt (Zahnräder oder Zahnriemen). Deshalb ist kein Schlupf zwischen Hauptspindel und Vorschub des Werkzeugschlittens möglich.
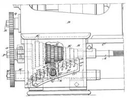
Im Bild rechts ist eine Prinzipzeichnung des Getriebes dargestellt.
Die mit A gekennzeichnete Gruppe mit der grünen Welle und den dunkelgrauen Zahnrädern stellt den Antriebsteil des Vorschubgetriebes dar. Die Welle ist entweder direkt die Hauptspindel oder die direkte Ankopplung an die Hauptspindel der Drehmaschine. Über einen Wechselrädersatz wird deren Drehzahl mit der Antriebswelle des Vorschubgetriebes gekoppelt.
Die mit B gekennzeichnete Gruppe mit gelber Welle und den blauen Zahnrädern ist Antriebswelle des Vorschubgetriebes. Die Schwenkrad-Komponente des Getriebes sind die blauen Räder. Sie sind miteinander gekoppelt. Die Schwenkrad-Komponente ist auf der gelben Welle verschiebbar und schwenkbar (hellblaues Zahnrad schwenkt um die gelbe Achse). Das hellblaue Zahnrad wird über einen Hebel (nicht dargestellt) gegen eines der Zahnräder der Gruppe C mit dem zugehörigen Achsabstand eingerückt und in dieser Position verriegelt. Je nach Größe des Zahnrades der Gruppe C stellt sich ein anderes Übersetzungsverhältnis ein und damit auch eine andere Drehzahl der roten Welle. Die gelbe Welle kann in dieser Darstellung für die Drehzahl der Zugspindel genutzt werden.
Die mit C gekennzeichnete Gruppe mit roter Welle und den hellgrauen Zahnrädern ist die Abtriebswelle des Vorschubgetriebes, die mit der Leit- bzw. Zugspindel für den Werkzeugschlitten[2] der Drehmaschine verbunden wird. Auf der roten Welle sitzen hier im Bild vier unterschiedlich große Zahnräder, die fest mit der Welle verbunden sind.
Einzelnachweise
- ↑ a b Patent US470591A: Feed mechanism for screw cutting lathes. Angemeldet am 16. September 1891, veröffentlicht am 8. März 1892, Erfinder: Wendell P. Norton.
- ↑ z. B. Zitat aus Bedienungsanleitung der Drehmaschine des Herstellers CHOLCHESTER, Typ Master (wortgleich auch bei anderen Typen des Herstellers, z,B. Chipmaster, Student, u. a.): "THE SPINDLE AND HEADSTOCK GEARING MUST BE STOPPED BEFORE ANY OF THE LEVERS CONTROLLING THE GEARBOX ARE MOVED". Dieser Text ist auch im Original gegenüber dem übrigen durch Großschreibung hervorgehoben. Er gilt auch für das in den jeweiligen Getrieben (Gearbox) integrierte Nortongetriebe.