Neferirkare-Pyramide

Neferirkare-Pyramide
Ägyptischer Name
ranfrir
kA
bAO24
Ba-nefer-ir-ka-Re
B3-nfr-jr(.w)-k3-Rˁ
Das Ba des Neferirkare
(mit Determinativ für Pyramide)
Daten
Ort Abusir
Erbauer Neferirkare
Bauzeit 5. Dynastie (~2475 bis 2465 v. Chr.)[1]
Typ Stufenpyramide / Pyramide
Baumaterial Kalkstein
Basismaß 105 m
Höhe (ursprünglich) 52 m (1. Bauphase) /
72 m (2. Bauphase)
Höhe (heute) 44,5 m
Volumen 257.250 m³
Stufen 6 (1. Bauphase)
Neigung etwa 54° (2. Bauphase)
Kultpyramide keine
Königinnenpyramiden keine

Die Neferirkare-Pyramide wurde unter der Herrschaft des Pharao Neferirkare aus der 5. Dynastie in Abusir erbaut. Sie war 72 Meter hoch und damit die siebthöchste der ägyptischen Pyramiden. Sie erscheint heute als Ruinenhügel, aus dem gut sichtbar die Stufen des Pyramidenkerns hervorragen.

Erforschung

Die Erforschung der Neferirkare-Pyramide begann mit einer Untersuchung durch John Shae Perring um 1840. Kurze Zeit später untersuchte auch die Lepsius-Expedition das Bauwerk. Richard Lepsius katalogisierte das Bauwerk unter der Bezeichnung Lepsius XXI in seiner Pyramidenliste.

Die erste detaillierte Untersuchung, sowohl der Pyramide als auch des Totentempels, führte von 1904 bis 1907 Ludwig Borchardt durch. Bei der Untersuchung des Totentempels stieß Borchardt auf das Tempelarchiv, das mit den Abusir-Papyri eine wichtige Quelle zum Totenkult des Neferirkare enthielt.

In dem durch den Ruinencharakter des Bauwerks freigelegten gestuften Kern glaubten fälschlicherweise sowohl Lepsius als auch Borchardt, die ideale Stätte gefunden zu haben, um den Bau der Pyramiden zu studieren. Insbesondere die Theorie von Lepsius basierte auf den geböschten Schalen an dieser Fundstätte. Durch die Baukonzeptänderung stellt aber gerade diese Pyramide kein typisches Beispiel einer Pyramide des Alten Reiches dar.[2][3]

Neuere Forschungen an diesem Pyramidenkomplex führte ein tschechisches Archäologenteam unter der Leitung von Miroslav Verner in den letzten Jahren durch.[4]

Bau der Pyramide

Neferirkare baute seine Pyramide etwa 200 m südwestlich der Pyramide seines Vorgängers und Vaters Sahure als zweite Pyramide der Nekropole von Abusir. Neferirkare wird nach Miroslav Verner eine Regierungszeit von 11 Jahren, nach dem Königspapyrus Turin von 20 Jahren zugesprochen. Auch die heute als realistischer angesehene elfjährige Regierungszeit hätte für den Bau der Pyramide ausreichen müssen, aber vermutlich ging durch die Änderungen der Baukonzeption viel Zeit verloren, so dass die Pyramide nicht zu Lebzeiten des Pharaos fertiggestellt werden konnte.[2][3]

Pyramide

Querschnitt der Pyramide
hellgrau: Stufenpyramide (1. Phase)
dunkelgrau: Stufenkern (2. Phase)
beige: Auffüllung zur echten Pyramide (2. Phase)
Oberflächen der ersten Bauphase, sowie Kern- (Core) und Verkleidungsteile (Casing) der zweiten Bauphase sind im heutigen Zustand der Pyramide sichtbar

Die Neferirkare-Pyramide ist in zwei Bauphasen entstanden, wobei sie zuerst als Stufenpyramide geplant war, später aber vergrößert und zu einer echten Pyramide ausgebaut werden sollte. Sie wurde nie fertiggestellt.

1. Bauphase – Die Stufenpyramide

In der ersten Bauphase entstand eine sechsstufige Stufenpyramide, deren erste Stufe doppelt so hoch war wie die restlichen Stufen. Sie bestand aus mäßig behauenem Kalkstein aus Steinbrüchen der Umgebung. Eine äußere Verkleidung aus feinem Kalkstein war bis zur Höhe der ersten Stufe angebracht, woraus ersichtlich ist, dass es sich tatsächlich um eine Stufenpyramide handelte und nicht um den Pyramidenkern. Das Mauerwerk der Stufenpyramide bestand aus horizontal verlegten Steinschichten, wie es auch bei anderen Pyramiden dieser Zeit üblich war, nicht jedoch aus geneigten Schalen wie beim Bau der Stufenpyramiden der 3. und frühen 4. Dynastie. Der Grund, weshalb Neferirkare auf die Stufenpyramide zurückgriff, die seit mehr als 100 Jahren nicht mehr als Königspyramiden gebaut wurden, ist unbekannt.[2][3]

2. Bauphase – Die echte Pyramide

In einer zweiten Bauphase wurde die Stufenpyramide vergrößert und zu einer echten Pyramide umgebaut. Zunächst wurde über die ursprüngliche Stufenpyramide ein achtstufiger Kern aus grob behauenem Kalkstein gebaut. Das deutlich gröbere Material lässt hier erkennen, dass diese Struktur als innerer Kern geplant war. Die Stufen sollten dann in einem weiteren Schritt mit einer Verkleidung aus feinem Kalkstein aufgefüllt werden, so dass eine echte Pyramide entstand. Eine unterste Verkleidungsreihe aus Rosengranitblöcken konnte nachgewiesen werden, jedoch wurden bislang keine Fragmente der Kalksteinverkleidung gefunden. Wie weit diese Verkleidung der Pyramide fertiggestellt wurde, ist heute nicht mehr nachweisbar, da die Pyramide über die Jahrtausende Opfer eines exzessiven Steinraubs wurde. Bei einer Neigung von etwa 54° hätte die vollendete Pyramide eine Höhe von 72 m erreicht, womit sie die größte Pyramide der 5. Dynastie gewesen wäre und sogar die Mykerinos-Pyramide übertroffen hätte.[2][3] Es kommt einem Rücksprung von 5-Handbreiten auf eine Elle nahe. Die Ermittlung erfolgte durch Borchardt anhand eines in situ in der untersten Reihe gefundenen Verkleidungsblocks aus Granit.[5] Das entspricht 5 + 1/12 + 1/20 Seked in ägyptischer Schreibweise.

Unterbau

Der Eingang zum Unterbau der Pyramide befindet sich in etwa 2 m Höhe auf der Nordseite der Pyramide. Von dort führt ein absteigender Gang bis zu einer kleinen Kammer in 2,5 m Tiefe unter der Pyramide. Der Gang und die Kammer waren mit Kalkstein verkleidet und hatten eine Decke aus flachen Kalksteinblöcken. Darauf lagen als eine zweite Decke giebelförmige Kalksteine, auf denen sich wiederum eine Schicht aus Schilf befand. Diese Gangkonstruktion ist einmalig im ägyptischen Pyramidenbau. Hinter der Kammer befindet sich eine aus Granit gefertigte Fallsperre. Nach der Sperre wird der Gang ein wenig nach Osten versetzt und führt zur Vorkammer unter der Pyramidenmitte. Vorkammer und Grabkammer waren in ost-westlicher Richtung ausgerichtet und hatten beide die gleiche Breite, wenn auch die Vorkammer etwas länger war als die Grabkammer. Auf beiden Kammern befinden sich drei Schichten giebelförmiger Kalksteinblöcke, von denen heute nur noch die beiden oberen Lagen erhalten sind. Beide Kammern waren ursprünglich mit einer feinen Kalksteinverkleidung versehen, doch ist durch maßlosen Steinraub praktisch nichts erhalten geblieben. Es konnten auch keine Spuren des Sarkophags gefunden werden.[2][3]

Pyramidenkomplex

Rekonstruktion der Pyramidenbezirke des Neferirkare und der Chentkaus II.

Der Pyramidenkomplex hat eine ost-westliche Ausrichtung und war von einer Lehmziegelmauer umgeben, von der heute nur noch wenige Reste erhalten sind.

Totentempel

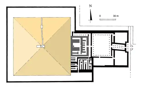
Grundriss des Pyramidenbezirks und des Totentempels
grau: 1. Bauphase des Totentempels (Kalkstein)
schwarz: 2. Bauphase des Totentempels (Lehmziegel)

Der Totentempel der Neferirkare-Pyramide ist ebenso wie die Pyramide selbst in mehreren Phasen errichtet worden. Durch das Fehlen des Taltempels im Pyramidenkomplex wurden einige der Funktionen des Taltempels in den Totentempel integriert.

1. Bauphase – Der Kalksteintempel

Die älteste Phase des Totentempels bestand aus auf einer steinernen Plattform an der Ostseite der Pyramide aus Kalkstein errichtetem Mauerwerk und umfasste den inneren Bereich. Diese Bauphase bestand aus der Opferhalle, der Fünfnischenkapelle mit Statuen des Königs sowie den länglichen Magazinkammern im Norden und Süden der Opferhalle. Dieser Bereich war mit Reliefs versehen, von denen aber nur eines erhalten blieb. Dennoch bildet das Relief eine wichtige Quelle für die Genealogie der 5. Dynastie.[2][3]

2. Bauphase – Der Lehmziegeltempel

Die weiteren Bereiche des Totentempels wurden offensichtlich in größerer Eile fertiggestellt und bestanden aus Lehmziegelmauerwerk. Das Fundament bestand hier nicht mehr aus Steinen, sondern aus gestampftem Lehmboden, wobei Unebenheiten mit Lehmziegeln nivelliert wurden. Im südwestlichen Teil wurden Kammern gebaut, in denen Papyrusfragmente gefunden wurden. Dies spricht dafür, dass dort die Tempelarchive untergebracht waren, die im Normalfall im Taltempel lokalisiert wurden. Ein Querkorridor östlich vom inneren Bereich befand sich noch auf dem Steinfundament. Von diesem Korridor gelangte man im Norden über einen Gang mit sechs Holzsäulen in den Pyramidenhof und im Süden zu den Archivmagazinen. Weiter im Osten lag der Tempelhof, der von 37 hölzernen Lotossäulen eingefasst war. Die Asymmetrie der Anordnung der Säulen – im Süden war eine mehr als im Norden – wird laut Herbert Ricke dadurch erklärt, dass eine der Säulen zerstört und nicht ersetzt wurde. Diese Theorie wird durch einen Bericht in den Papyri aus dem Tempelarchiv bestätigt. Der Zugang erfolgte über einen schrägen Korridor mit sechs hölzernen Lotussäulenpaaren. Den Eingang des Komplexes bildete ein Portikus aus vier Papyrussäulen.[2][3]

Vermutlich wurde dieser Bereich unter Neferirkares Nachfolgern Raneferef und Niuserre beendet.

Bootsgruben

Nördlich und südlich der Pyramide befinden sich Bootsgruben im Hof des Pyramidenkomplexes. Die Entdeckung dieser Gruben basierte auf deren Erwähnung in einem Papyrusfragment, das im Archiv des Totentempels gefunden wurde. Die südliche Grube wurde von tschechischen Archäologen ausgegraben, doch war das hölzerne Boot im Gegensatz zu denen in den Bootsgruben der Cheops-Pyramide vollständig zerfallen. Die Wände der Grube bestehen aus Lehmziegeln.[3]

Weitere Elemente

Aufweg und Taltempel wurden offenbar von Neferirkares Nachfolger Niuserre usupiert

Ungewöhnlicherweise fehlen sowohl der Taltempel als auch ein Aufweg, vermutlich da nach dem Tod des Herrschers von seinen Nachfolgern nur die nötigsten Elemente fertiggestellt wurden, um einen Totenkult zu gewährleisten. Offenbar waren jedoch Taltempel und Aufweg bereits vorbereitet, da diese Elemente der Niuserre-Pyramide klar auf die Neferirkare-Pyramide ausgerichtet sind. Erst im oberen Bereich knickt der Aufweg dann zu Niuserres Grabmal ab, was darauf hindeutet, dass die vorhandene Baustelle usurpiert wurde.[3]

Bislang wurde auch keine Kultpyramide gefunden, was ungewöhnlich ist, da diese offenbar ein wichtiges Element des Königskults war. Der Komplex enthält ebenfalls keine Königinnenpyramiden, aber die Pyramide seiner Gemahlin Chentkaus II. wurde direkt südlich als eigenständiger Komplex errichtet, da diese möglicherweise als regierende Königin über Ägypten geherrscht hat.[2][3]

Südlich der Pyramide befand sich eine Siedlung aus Lehmziegelhäusern für die Priester des Herrscherkults, die bis in die 6. Dynastie bewohnt war.

Literatur

Allgemein

  • Zahi Hawass: Die Schätze der Pyramiden. Deutsche Erstausgabe, Weltbild, Augsburg 2004, ISBN 3-8289-0809-8, S. 246–247.
  • Mark Lehner: Das Geheimnis der Pyramiden in Ägypten. Orbis, München 2002, ISBN 3-572-01261-9, S. 144–145.
  • Rainer Stadelmann: Die ägyptischen Pyramiden. Vom Ziegelbau zum Weltwunder (= Kulturgeschichte der Antiken Welt. Band 30). 2., überarbeitete und erweiterte Auflage. Philipp von Zabern, Mainz 1991, ISBN 3-8053-1142-7, S. 155f. 171–174.
  • Miroslav Verner: Die Pyramiden (= rororo-Sachbuch. Band 60890). Rowohlt, Reinbek bei Hamburg 1999, ISBN 3-499-60890-1, S. 324–331.

Grabungspublikationen

  • Ludwig Borchardt: Das Grabdenkmal des Königs Nefer-ír-ke-re (= Ausgrabungen der Deutschen Orient-Gesellschaft in Abusir. Band 5 = Wissenschaftliche Veröffentlichungen der Deutschen Orient-Gesellschaft. Band 11). Hinrichs, Leipzig 1909 (Online).
  • Miroslav Verner: Abusir – Realm of Osiris. American University in Cairo Press, 2002.
  • Miroslav Verner: Remarks on the Pyramid of Neferirkare (= Mitteilungen des Deutschen Archäologischen Instituts, Abteilung Kairo 47), von Zabern, Mainz 1991, S. 411–418 und Tafeln 61–63.
  • Paule Posener-Kriéger: Les archives du temple funéraire de Néferirkarê-Kakaï: les papyrus d’Abousir. In: Bibliothèque d'Étude de l'Institut Français d'Archéologie Orientale du Caire 65, Le Caire 1976.
Commons: Neferirkare-Pyramide – Sammlung von Bildern, Videos und Audiodateien

Einzelnachweise

  1. Jahreszahlen nach Thomas Schneider: Lexikon der Pharaonen. Albatros, Düsseldorf 2002, ISBN 3-491-96053-3.
  2. a b c d e f g h Mark Lehner: Das Geheimnis der Pyramiden in Ägypten. München 2002 S. 144 f.: Die Neferirkare-Pyramide.
  3. a b c d e f g h i j Miroslav Verner: Die Pyramiden. Reinbek bei Hamburg 1999, S. 324 ff.: Die Pyramide des Neferirkare.
  4. Radio Prag International – Miroslav Bárta. Ägyptologe Bárta: „Während der Grabung hat man keine Zeit für Emotionen“. Auf: deutsch.radio.cz vom 8. September 2020; zuletzt abgerufen am 12. April 2022.
  5. Frank Müller-Römer: Der Bau der Pyramiden im Alten Ägypten. Utz, München 2011, ISBN 978-3-8316-4069-0, S. 200.

Koordinaten: 29° 53′ 42,1″ N, 31° 12′ 8,8″ O