Markuskirche (Butzbach)


Die Markuskirche in Butzbach im Wetteraukreis in Hessen wurde im frühen 13. Jahrhundert als Basilika errichtet und von etwa 1430 bis 1520 in ihre jetzige Form als dreischiffige gotische Hallenkirche umgestaltet. Das hessische Kulturdenkmal dient heute als Gemeindekirche der evangelischen Markus-Kirchengemeinde. Zu den Inventarstücken gehören ein romanischer Taufstein aus der ersten Hälfte des 13. Jahrhunderts und die landgräfliche Gruft von 1620–1622. Der Orgelprospekt von Georg Wagner aus dem Jahr 1614 ist der zweitälteste erhaltene in Hessen.
Geschichte
Um 300 bis 500 n. Chr. war das Gebiet um die heutige Markuskirche von Galloromanen besiedelt.[1] Die spätantike germanische Besiedlung war nicht durch einen Graben, sondern durch etliche Gruben gesichert, die Feinden nur einen schmalen Durchgang gewährten. Archäologisch sind drei steinerne Vorgängerbauten nachgewiesen, die sich allerdings kaum datieren lassen. Das älteste nachweisbare Mauerwerk an der Südwestecke der heutigen Kirche wurde um 680 n. Chr. abgerissen. Nicht sicher ist, ob das Gebäude von 680 n. Chr. eine Kirche war. Die beiden untersten Gebäude wiesen eine etwas andere Ost-West-Ausrichtung auf als der dritte Bau. Wie archäologische Ausgrabungen in den 1960er Jahren ergaben, schloss der mittlere Bau mit einer halbrunden Apsis ab. Wenn die in 34 Meter nachgewiesene Westmauer (in Höhe der heutigen Orgelbrüstung) den Abschluss bildete, hatte der romanische Vorgängerbau stattliche Ausmaße.[2] Im Südosten grenzte schräg ein großes Wohngebäude, die Butzbacher Residenz (Kirchplatz 12) aus der Zeit um 1220, unmittelbar an diese Kirche an. Weil ein Residenzplatz erforderlich war, wurde die neue Kirche mindestens fünf Meter nördlich versetzt. Vermutlich im Zuge dieser Versetzung erhielt die Butzbacher Kirche das neue Patrozinium des heiligen Markus. Der Vorgängerbau der heutigen Kirche entstand um 1230/1240 als Pfeilerbasilika im romanisch-gotischen Übergangsstil mit schmaleren Seitenschiffen, halbrunden Apsiden und einer flachen Decke.[3] Da das Zehntrecht und das Patronatsrecht erst im Jahr 1354 an das Kloster Petersberg kamen, war der Mainzer Erzbischof Siegfried II. von Eppstein oder Siegfried III. von Eppstein wahrscheinlich der Bauherr.[4]
Der erste Pfarrer ist für das Jahr 1303 nachgewiesen; Gottfried war Erzpriester des wetterauischen Archidiakonats Södel: „Gotfridus, plebanus in Butspach, archipresbiter sedis in Sodele“.[5] Nachdem Butzbach im Jahr 1321 die Stadtrechte erhalten hatte, wurde das Gotteshaus in der Folgezeit immer weiter in eine gotische Stadtkirche umgebaut und erweitert. In den 1330er Jahren erhielt das Mittelschiff ein neues Dach und um 1341 einen zweijochigen gotischen Chor mit Fünfachtelschluss.
Am 17. Dezember 1344 wurde von einem Erzbischof und zehn Kardinälen in Avignon eine Ablassurkunde für Butzbach ausgestellt, die allen Besuchern des neuen Altars, der zu Ehren von Johannes dem Evangelisten und der Muttergottes errichtet worden war, einen Ablass von 40 Tagen gewährte.[6] Die ungewöhnlich hohe Anzahl an Altarstiftungen im 14. Jahrhundert weist auf die Bedeutung Butzbachs und der Pfarrkirche. Der Mitte des 14. Jahrhunderts entstehende Rechtsverband der Chorbruderschaft bildete den Butzbacher „Halbstift“.[7] Ein Altar zu Ehren der heiligen Anna wurde 1344 gestiftet, ein Altar Johannes des Täufers wird 1351 erstmals erwähnt, 1390 wurde der Heilig-Kreuz-Altar, 1399 der St.-Bartholomäus-Altar, 1400 der St.-Valentinus-Altar gestiftet und 1421 der St.-Peter-und-Paul-Altar schriftlich erwähnt.[8]
In einem Sakristeibau vor dem Südschiff lagerte die bürgerliche Gemeinde 1371/1372 wichtige Dokumente. Auch das Kugelhaus verwahrte hier in Truhen seine wichtigsten Dokumente.[9] Da zwei Glocken in den 1370er Jahren gegossen wurden, wird angenommen, dass der ursprüngliche hohe gotische Turmhelm schon aus dieser Zeit stammt. Eine im Turmfundament entdeckte Münze aus der Mitte des 14. Jahrhunderts stützt diese Datierung.[10] Die ursprünglich niedrigen und schmalen Seitenschiffe wurden um 1395 durch größere ersetzt, die fast die Höhe des Mittelschiffs erreichten. Die Michaeliskapelle auf dem Friedhof wurde 1433 von Berta Grundewald gestiftet.[11]
Am 1. November 1468 wurde die Kirche von Paul II. den Brüdern vom gemeinsamen Leben („Kugelherren“) übertragen und zur Kollegiatkirche erhoben.[12] Vor der Gründung des Stifts bildeten ein Pastor, ein Pleban, drei Frühmessner, neun Altaristen und der Schulmeister, also insgesamt 15 Geistliche, die Chorgeistlichkeit von St. Markus.[13] Kirchlich gehörte Butzbach im ausgehenden Mittelalter zum Archidiakonat St. Maria ad Gradus in der Erzdiözese Mainz im Sendbezirk des Dekanats Friedberg.[14]
Um 1474 wurde der Südchor errichtet und eingewölbt, am 30. April 1511 der Nordchor von Paul Hutten (gebürtig aus Grüningen) geweiht.[15] Wohl Ende des 15. Jahrhunderts wurde dem Südchor eine spätgotische Sakristei mit Kreuzgewölbe anstelle eines Vorgängerbaus vorgelagert, die von einem Satteldach mit einem achtseitigen Dachreiter bedeckt war. In den 1500er Jahren wurde das Südschiff durch einen querschiffartigen Rechteckbau mit vier Quergiebeln und Netzgewölbe im Obergeschoss erweitert und erhielt auf diese Weise eine repräsentative Schaufassade.[16] Seit 1520 stellt sich die Kirche im Wesentlichen in ihrer heutigen Gestalt dar.
Die Reformation hatte sich 1536 in Butzbach durchgesetzt. Eine im Südchor eingezogene Wand ermöglichte beiden Konfessionen für einige Zeit die Nutzung als Simultankirche.[17] Im Gefolge der Reformation wurde im Jahr 1550 das Stift aufgelöst; der letzte der Brüder starb im Jahr 1555. Die hohe spitze Turmspitze aus gotischer Zeit fiel am 17. März 1606 einem Sturm zum Opfer und wurde im barocken Stil ersetzt: „Anno 1606, den 17. Martii bey dem großen Windt fiel der Kirchturn daselbsten ein. Haben aber denselben widder hübsch gebawet uff ein ander Muster dann zuvor.“[18] Unter Landgraf Philipp III. von Hessen-Butzbach gab es erhebliche Änderungen im Inneren der Kirche. So stiftete er in den 1610er Jahren eine neue Kanzel und eine neue Orgel. Zudem wurden 1617 Emporen und Stände für den Landgrafen und andere Personen eingebaut. 1620–1622 ließ Philipp III. die Krypta mit Stuckdecke als Fürstengruft anlegen.[19] Ein mit Schindeln überdachter Gang aus Tannenholz führte vom Schloss auf die Stadtmauer durch die ehemalige Meierei und das erste Pfarrhaus in die Markuskirche.[20]
1798 erfolgte der Abriss der Sakristei aufgrund von Baufälligkeit. Zwei Kirchenpfeiler, die das Sakristeigewölbe getragen hatten, mussten ausgebessert werden. Der Durchgang in der Außenwand des Südchores wurde vermauert. Die Verwendung der Steine für die Inspektoratswohnung führte zu einem Streit zwischen dem Stadtrat und dem Kugelhausfond.[20] Eine Kirchenrenovierung von 1837 bis 1840 beinhaltete eine Umsetzung von Kanzel und Fürstenstand sowie einen neuen Innenanstrich. Der spätgotische Marienaltar wurde 1880 der katholischen Gemeinde überlassen. Grundlegende Renovierungen der Kirche erfolgten von 1902 bis 1904 durch Architekt und Denkmalpfleger Ludwig Hofmann aus Herborn. In diesem Zuge wurden die nördlichen Umfassungsmauern, die aufgrund des Gewölbeschubs nach außen gedrückt waren, gesichert und durch vier neue Strebepfeiler gestützt. Das Seitenschiff erhielt in Anpassung an die Südseite Zwerchgiebel. Etliche Emporen wurden entfernt, Windfänge und eine Heizung eingebaut, die Gruft wiederhergestellt und die Pfeiler vom Verputz befreit.[21] Durch die Verlegung der Orgelempore aus dem Mittelchor auf die Westseite und die Öffnung der teils vermauerten Chorfenster wurde der Mittelchor wieder freigelegt.[22]
1903/1904 wurden zudem das Maßwerk rekonstruiert und die meisten Fenster mit Glasmalerei gestiftet. Fritz Geiges führte 1903 die Glasmalerei der drei Mittelchorfenster aus, die die Geburt, Kreuzigung und Auferstehung Christi darstellen. Steiger und Weidlich aus Köln gestalteten die Fenster über dem Südportal (Jesu Salbung in Bethanien) und gegenüber in der Nordseite (Paulus auf dem Areopag). Westlich vom Südportal ist Elisabeth von Thüringen zu sehen (1903). Zwei Nordchorfenster von Bernhard Kraus aus dem Jahr 1904 zeigen Jesus als den guten Hirten und bei der Hochzeit zu Kana. Aus demselben Jahr stammen das Wappenfenster über der Landgrafengruft und das Stephanus-Fenster in der Südwand. Stiftungen für drei weitere Fenster erfolgten in den 1950er und 1960er Jahren. Gustav van Treeck gestaltete 1956 ein Nordschifffenster (Christus, Lukas und Jakobus), Heinz Hindorf das Fenster östlich vom Südportal von 1964, das in 28 Szenen das Gleichnis vom Weltgericht in seiner heilsgeschichtlichen Entwicklung entfaltet, sowie das gegenüberliegende Fenster in der Nordseite von 1968, das in 14 Medaillons Szenen aus dem Leben Jesu zusammenstellt. Im dritten Nordseitenfenster ist als Duplikat des ältesten Fensters aus der Zeit um 1500 eine runde Glasmalerei mit einem Engel, der zwei Wappenschilde hält, eingelassen.[23] Eine weitere Renovierung folgte 1965/1967. Das Portal der Sakristei am Südchor wurde in dieser Zeit in den südlichen Vorbau umgesetzt.[24] Seit dem Jahr 2000 wird das Kirchendach restauriert.[12]
Architektur

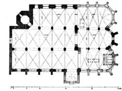
Die Markuskirche wurde im Nordosten des alten befestigten Stadtgebiets errichtet. Sie ist 38,30 Meter lang und 23,30 Meter breit. Die drei Schiffe sind je etwa 7 Meter breit; das südliche und mittlere Gewölbe erreichen eine Höhe von 9,50 Meter, das nördliche 8,60 Meter.[25] Das Gebäude vereint verschiedene Baukörper und Baustile aus dem 14. bis 16. Jahrhundert zu einem geschlossenen Ganzen.[3] Sie zeigt sich seit 1520 als spätgotische, dreischiffige Hallenkirche. Die unverputzten Außenmauern weisen Bruchsteinmauerwerk mit Eckquaderung auf. Im Inneren weisen alle Pfeiler und Gliederungselemente wie Bögen, Dienste, Gewölberippen und Gewände eine einheitliche rote Quaderbemalung auf, die sich von den weiß verputzten Wänden abhebt. Pfeiler und Gurtbögen sind überwiegend aus Londorfer Basaltlava (Lungstein) gefertigt, die Gewände wurden in späterer Zeit teilweise durch roten Sandstein ersetzt.
Aus romanischer Zeit sind keine aufgehenden Mauern mehr erhalten. Zu den ältesten Teilen des frühen 13. Jahrhunderts gehören die quadratischen, an den Ecken abgerundeten Pfeiler des Mittelschiffs, die im 14. Jahrhundert überarbeitet wurden. Spitzbogige Arkaden mit Quaderbemalung öffnen die Seitenschiffe zum fast gleich breiten Mittelschiff. Die Kämpferprofile haben in romanischer Art Rundstab, Kehle und Platte.[26] Auf die sekundär vorgelegten Dienste wurde ein Kreuzgewölbe eingezogen. Die gekehlten Rippen enden in Schlusssteinen, die in den drei Schiffen mit Rosen- und Blattornamenten oder Schreckmasken belegt sind und im Nordschiff ein Sonnengesicht mit herausgestreckter Zunge zeigt. Über dem Gewölbe sind unter dem Dach die alten spitzbogigen Obergadenfenster erkennbar. Die Kragsteine für die ursprüngliche Flachdecke des südlichen Seitenschiffs ragen noch über den Arkaden des Mittelschiffs heraus.[27] Zur gleichen Zeit wie das Mittelschiff entstand der Mittelchor mit Fünfachtelschluss und Kreuzrippengewölbe auf Konsolen und Diensten. Mittelschiff und Mittelchor erhielten nach dendrochronologischen Untersuchungen und anderen Hinweisen zwischen 1330 und 1341 ihre Dächer. Zwei breite Pfeiler mit einem Spitzbogen trennen das Langschiff vom Hauptchor.[28] Das spitzbogige Hauptportal an der Westseite hat ein profiliertes Gewände aus rot angestrichenem Lungstein, in das auf der rechten Seite ein Weihwasserbecken eingearbeitet ist. Die eisenbeschlagene Tür wurde 1904 geschaffen. Darüber ist ein kleines zweibahniges Spitzbogenfenster mit Vierpass eingelassen. Eine Baufuge, die nach Süden schräg abfällt, weist auf das ursprünglich niedrige Seitenschiff. In der Westwand des Südchors ist über einem kleinen zugemauerten Spitzbogenfenster ein kleines schmales Rundbogenfenster eingelassen. Fünf aus der Mauer herausragende Kragsteine weisen auf den landgräflichen Verbindungsgang zum Schloss.[29]
Die Seitenschiffe erreichen fast die Höhe des Mittelschiffes und bilden mit diesem eine fast quadratische Halle.[30] Die Gewölbe ruhen wie im Mittelschiff auf Diensten, die oberhalb der Kämpfer in gekehlte Rippen übergehen und in Schlusssteinen enden. Der südliche, querschiffartige Vorbau hat einen Sockel mit Schräge und entsprechend seinen vier Jochen vier gereihte, steile Spitzgiebel. Im Osten schließt sich ein spätgotischer, kapellenartiger Vorbau mit Netzgewölbe aus doppelt gekehlten Rippen an, der wie ein Querschiff wirkt.[31] Die spitzbogigen Maßwerkfenster der gesamten Südseite sind alle vierbahnig mit unterschiedlicher Gestaltung der Bogenfelder, sind aber unterschiedlich hoch. In den Giebeldreiecken sind kleine Rundbogenfenster eingelassen. In der Westseite des Südschiffes sind zwei kleine spitzbogige Fenster übereinander angebracht, deren unteres vermauert ist. Das kleinere, spitzbogige Portal im südlichen Vorbau hat Überstabungen. Ein ehemaliger Gewölbeschlussstein, der ein Lamm als Symbol für Christus zeigt, ist in etwa drei Meter Höhe in der Südmauer des Südchors eingelassen.[12] Rechts darunter ist der Grabstein des Fürstlichen Rats Burgk († 1655) mit lateinischem Text und zwei Wappenschilden eingelassen. Das Südportal links des Vorbaus ist wie das Westportal gestaltet. Gotische Spitzbogenfenster, deren linkes Rosenrankenmaßwerk aufweist, belichten das nördliche Seitenschiff.[32] Die Zwerchgiebel des Nordschiffs wurden 1904 in Angleichung an das Südschiff geschaffen. Beide Seitenschiffe haben abgetreppte Strebepfeiler.
Die drei Chöre mit halbrunden Apsiden sind im Inneren hallenartig miteinander verbunden.[16] Auf je drei achteckigen Säulen, die keine Basen und Kapitelle haben, ruht das Kreuzgewölbe der beiden Joche auf Konsolen. Der Südchor hat Dienste, während die Gewölberippen im Nordchor aus der Wand kommen. Im Nordchor sind die Schlusssteine mit Allianz-Wappenschilden der Familien Eppstein-Falkenstein und im Südchor mit Marterwerkzeugen und einem Kreuz mit Dornenkrone belegt. Das Ostjoch des Mittelchors zeigt im Schlussstein einen Christuskopf. Ein Rundbogen öffnet den Nordchor und ein Spitzbogen den Südchor zu den Seitenschiffen. Die drei Maßwerkfenster im Hauptchor sind zweiteilig und mit Vierpässen im Bogenfeld gestaltet. Der Südchor hat drei dreiteilige Maßwerkfenster, die wegen des Grabdenkmals des Landgrafen zugemauert sind. Der Nordchor hat zwei dreiteilige Maßwerkfenster mit Fischblasen und im Süden ein zweiteiliges mit Vierpass in der Art des Mittelchors.[28] Der Südchor ist mit fünf kleinen Gauben besetzt und wird von einem hohen sechsseitigen Dachreiter bekrönt, der vollständig verschiefert ist. Über dem Schaft, der an der Südseite vier rechteckige Schalllöcher hat, leiten Dreiecksgiebel zum Spitzdach über, dem ein Turmknauf mit Kreuz aufgesetzt ist. Der Mittelchor hat einen kleinen verschieferten, sechsseitigen Dachreiter. Alle drei Chöre werden durch abgetreppte Strebepfeiler mit Wasserspeiern gestützt, die krabbenartig oder als Tiere gestaltet sind.[33]
Der jetzt 47 Meter hohe Westturm ist in das nördliche Seitenschiff eingebunden. Der achtseitige gemauerte Schaft mit Eckquaderung aus Lungstein stammt aus dem 14. Jahrhundert, der barocke, verschieferte Helm aus dem Jahr 1606.[16] Der verschieferte, hölzerne Turmhelm wird durch Gesimse in drei Geschosse gegliedert, die sich nach oben verjüngen. Das erste Geschoss hat an vier Seiten spitzbogige Schalllöcher und dient als Glockenstube, die ein Vierergeläut beherbergt. Die ältesten erhaltenen Glocken wurden am 4. Juli 1372 und 9. November 1379 gegossen.[12] Das mittlere Geschoss wird von den vier Zifferblättern der Turmuhr geprägt, die von einem Dreiecksgiebel mit kleinen Spitzen verziert werden. Das Obergeschoss hat vier rundbogige Schalllöcher und wird von einer Welschen Haube bedeckt, die von einem Turmknauf und einer Wetterfahne bekrönt wird.[34]
Ausstattung
Aus dem romanischen Vorgängerbau ist ein romanisches Taufbecken erhalten, das zuletzt im alten Rathaus zu besichtigen war und seit dem 1. März 2017 wieder in der Markuskirche steht. Es ruht auf vier Füßen aus stilisierten Tieren, deren Ohren als Scheibenkreuze gestaltet sind. Drei wurden anhand eines originalen Fußstücks rekonstruiert, das 1965 unter dem Kirchenboden ausgegraben wurde.[35] Das Becken wird oben von einem einfachen Tauband mit Rundbogenfries und unten von einem doppelten Tauband verziert. Die Wandung zeigt ein griechisches Kreuz, Scheibenkreuze und stilisierte Blätter, die auf Stilen aufgereiht sind. Das achtseitige gotische Taufbecken mit Spitzbogenfries aus Lungstein stammt aus dem 14. Jahrhundert.[12] Vermutlich wurde es ursprünglich für die Wendelinskapelle geschaffen. Ein dritter, ovaler Taufstein aus schwarzem Lahnmarmor aus dem Jahr 1620 steht heute im nördlichen Seitenschiff.
Der aufgemauerte Blockaltar im mittleren Chorbogen steht auf einem steinernen Podest und wird von einer Mensaplatte über Schräge bedeckt. Sie weist fünf Weihekreuze auf, stammt vermutlich aus romanischer Zeit und wurde bei der Renovierung 1965 unter dem Fußboden entdeckt. Das hölzerne Kruzifix des Dreinageltypus auf dem Altar datiert aus dem späten 15. Jahrhundert. Im Jahr 1924 wurde es aus der Wendelinskapelle umgesetzt.[36] Die Kanzel von 1617 mit Beschlagwerk im Stil des Frühbarock am nördlichen Mittelchorpfeiler ist ebenso wie die Orgel von 1614 eine Stiftung des Landgrafen Philipp III.[12] Sie ruht auf einer achteckigen Holzsäule. Teils vergoldete Voluten stützen den polygonalen Kanzelkorb, dessen Kanzelfelder zwischen Säulen die Wappen von Philipp III. und seiner ersten Frau tragen.[19] Über dem Wappen des Landgrafen im zweiten Feld sind die Buchstaben V.T.D.M.D. („vias tuas doce me domine“ = Herr, lehre mich deine Wege) zu lesen, unter dem Wappen P.L.Z.H. (Philipp Landgraf zu Hessen). Rechts davon im Wappen der Landgräfin B.W.M.H. (Bewahre mich, Herr), unter dem Wappen A.M.L.Z.H.G.G.Z.D.V.B. (Anna Margareta Landgräfin zu Hessen geborene Gräfin zu Diepholz und Bronckhorst). Die Kanzel ist in zwei kleinen Feldern unter den Wappen mit der Jahreszahl „ANNO 1617“ bezeichnet.[37]
In den drei Schiffen steht das schlichte, holzsichtige Kirchengestühl blockweise und ist auf Kanzel und Altar ausgerichtet. Die hölzerne Westempore ragt in das Mittelschiff hinein und wird von einer achteckigen Säule mit Bügen gestützt. Die weiß gefasste Brüstung hat kassettierte Füllungen. In der Mitte ist das Rückpositiv der Orgel eingelassen. Der Unterbau der Empore und die Säule sind marmoriert bemalt. Das erste und letzte Joch des Südschiffs sind im unteren Bereich als separate Räume abgetrennt und dienen im oberen Bereich als Empore. Die Brüstungen aus rotem Sandstein haben Nonnenköpfe und Vierpässe. In der östlichen Brüstung der Empore in der Südwestecke kragt eine kleine trapezförmige Sängerkanzel aus.
Grüfte

Die Gruft des Landgrafen Philipp III. von Hessen-Butzbach auf quadratischem Grundriss im Südchor ist reich mit Stuckwerk verziert, das von Christian Steffan aus Frankfurt am Main gestaltet wurde und biblische Motive zeigt, die mit Sätzen aus dem Apostolischen Glaubensbekenntnis und einem biblischen Mottovers kombiniert werden. Die Ostwand zeigt den Gekreuzigten, unter dem der Landgraf mit seinen beiden Frauen anbetend kniet sowie deren drei Wappen. Die Südwand illustriert die Sündenvergebung, die Nordwand die Totenauferstehung, das westliche Deckenfeld die Himmelfahrt Elijas, das nördliche die Verklärung des Herrn, das östliche Christi Himmelfahrt und das südliche Deckenfeld das neue Jerusalem. Im Scheitelpunkt des Kreuzgewölbes wird das Tetragramm mit dem hebräischen Gottesnamen JHWH von den Schlussworten des Apostolikums „und ein ewiges Leben“ und einem Flammenkranz mit Engeln umgeben, der die Glückseligkeit in der Auferstehung symbolisiert.[38] Die Krypta beherbergt die vier Sarkophage von Philipp, seinen beiden Frauen Anna Margareta († 1629) und Christina Sophia von Ostfriesland (1609–1658) sowie seinem Urgroßneffen Prinz Heinrich von Hessen-Darmstadt.[16] Von Westen her ist sie durch eine Steintreppe erschlossen und wird von Osten durch zwei Schächte mit Licht versorgt. Die Gruft wird durch die Staatlichen Schlösser und Gärten Hessen betreut und unterhalten[39]. Im Südchor markiert ein repräsentatives Grabdenkmal die Grabstelle. Über einem Steinsarg ruht ein baldachinartiger, hölzerner Überbau, der eine Laterne trägt, auf vier Freisäulen mit korinthischen Kapitellen. Die Malereien an den Gewölbekappen des Baldachins greifen die Motive des Stuckwerks aus dem Alten und Neuen Testament auf.[19] Auf einem Ölgemälde, das gleichsam als Rückwand dient, ist Philipp mit seinen Frauen vor dem Gekreuzigten dargestellt. Die steinerne Umfassung des Bildes mit reichem Figurenschmuck schuf Philipp Franck aus Gießen.
Eine Sandsteingruft im Nordchor wurde früh geplündert und ist heute nicht mehr zugänglich. Als letzter wurde dort Hermann Adolf Graf zu Solms-Hohensolms-Lich († 1613) beigesetzt.[40] Zwei Epitaphe des 15. Jahrhunderts aus rotem Sandstein sind links und rechts vom Altar an den beiden Hauptpfeilern aufgestellt. Sie zeigen Philipp VII. von Falkenstein († 1410) und Werner von Eppstein († 1462). Weitere Epitaphe aus dem 16.–18. Jahrhundert, darunter das des Johann Christoph Hert († 1731), sind in den Wänden eingemauert.[41]
Orgeln
Die Markuskirche besitzt zwei funktionsfähige Orgeln aus stilistisch unterschiedlichen Epochen.
Metzler-Orgel
Die Orgel auf der Westempore geht auf Georg Wagner zurück, der 1614 ein zweimanualiges Werk ohne selbstständiges Pedal schuf. Für den Neubau wurden Teile einer älteren Vorgängerorgel aus dem 16. Jahrhundert integriert. Ursprünglich stand das Instrument auf einer kleinen Empore im Mittelschiff des Chors, die 1904 in den Westen umgesetzt wurde.[19] Erhalten geblieben ist der Orgelprospekt des Butzbacher Schreinermeisters Hildebrand Harke mit Wagners Prospektpfeifen. Die Schleierbretter von 1614 sind noch von der ausgehenden Renaissance geprägt, während das seitliche Rankenwerk aus dem frühen 18. Jahrhundert stammt.[30] Dieser Prospekt ist nach der Kiedricher Orgel der zweitälteste erhaltene in Hessen.[30] Im Hauptwerkprospekt findet sich in den zweigeschossigen Flachfeldern wie im Brabanter Orgelbau ein Spiegelprinzipal mit doppelten Pfeifen, während das Rückpositiv auf einem Zwei-Fuß-Prinzipal basiert.
Das neue, rein mechanische Instrument der Orgelbaufirma Metzler Orgelbau (Dietikon, Schweiz) im Wagner-Gehäuse verfügt über 22 klingende Register auf zwei Manualen und Pedal.[42]
|
|
| |||||||||||||||||||||||||||||||||||||||||||||||||||||||||||||||||||||||||||||||||||||||||||||||||||||||||||||||||||
- Koppeln: I/II, I/P, II/P
Förster & Nicolaus-Orgel

Das Gehäuse der alten Orgel, das inzwischen unter Denkmalschutz stand, wurde 1904 auf die Westempore überführt. Dahinter und seitlich davon wurden die Pfeifen eines neuen Orgelwerks von Förster & Nicolaus als Opus 105 ohne umrahmendes Gehäuse aufgestellt. Als 1990 das heutige Orgelwerk auf der Empore erbaut wurde, konnte die Orgel von Förster & Nicolaus erhalten werden, indem sie an der Ostseite des Nordschiffes einen neuen Standort fand. Die stummen Prospektpfeifen wurden aus der Orgel in Nieder-Weisel übernommen. Dieses Werk mit pneumatischen Kegelladen wird heute zur Darstellung romantischer Orgelliteratur genutzt.[12] Die Disposition lautet wie folgt:[43]
|
|
| |||||||||||||||||||||||||||||||||||||||||||||||||||||||||||||||||||||||||||||||||||||||||||||||||||||||||||||||||||||||||||
- Koppeln:
- Normalkoppeln: II/I, I/P, II/P
- Superoktavkoppeln: I/II
- Suboktavkoppeln: I/II
- Spielhilfen: 4 feste Kombinationen (p, mf, f, tutti), Registerschweller
Geläut
Zwei bis heute erhaltene Glocken wurden in den 1370er Jahren gegossen. Die größte Glocke aus dem Jahr 1453 wog 2230 kg. Wegen eines Sprungs wurde sie 1911 umgegossen, musste aber 1917 an das Kriegsministerium abgeliefert werden. Die als Ersatz gegossene „Gedächtnisglocke“ von 1926 wurde 1942 zu Rüstungszwecken eingeschmolzen. Die Kirchengemeinde erwarb 1953 von der Glocken- und Kunstgießerei Rincker eine gebrauchte Glocke von 1848, die aus einer im Zweiten Weltkrieg zerstörten Hamburger Dreieinigkeitskirche stammte. Eine 1955 gegossene Vaterunser-Glocke vervollständigte das Quartett, das auf dem Präfationsmotiv, einem ausgefüllten Moll-Dreiklang, erklingt. Die kleine Glocke im Dachreiter auf dem Mittelschiff ist derzeit nicht in Betrieb. Die Glocke des südlichen Dachreiters diente bis in die 1950er Jahre als Schulglocke der nahegelegenen Stadt- und Weidigschule. Im Jahr 2005 wurde sie im Kirchenraum auf einem kleinen Ständer angebracht.[44]
| Nr. |
Gussjahr |
Gießer Gussort |
Durchmesser (mm) |
Masse (kg) |
Schlagton (HT-1/16) |
Inschrift |
| 1 | 1848 | Johann Ehlert Bieber, Hamburg | 2010 | 1540 | c1 +11,5 | „Selbst leblos ruf ich doch zu tätigem Leben und mahne, daß zu Gott sich soll erheben des Menschen Herz in Freud und Schmerz Der Umguß wurde beschafft durch milde Beiträge. Anno MDCCCXLVIII Fecit Bieber Hamburg“ |
| 2 | 1372 | Johannes von Frankfurt | 1330 | 1340 | es1 +10 | „lucus markus matheus johannes datum anno domini MCCCLXXII in fecto beati udalrici (Relief mit Kreuzigungsgruppe)“ |
| 3 | 1955 | Rincker, Sinn | 1120 | 900 | f1 +10 | „Dem Gedächtnis der Gefallenen und Vermißten beider Weltkriege. Evg. Gemeinde Butzbach. Niemand hat größere Liebe denn die, daß er sein Leben läßt für seine Freunde. (Joh 15,13 )“ |
| 4 | 1379 | unbezeichnet | 1060 | 800 | g1 +7 | „+ anno d(omi)ni M CCC LXXIX nonas octobris perfecta est campana o rex glorie veni cu pace naq: maria vocor botsbach defendere conor“ |
Literatur
- Rudolf Adamy: Kunstdenkmäler im Großherzogtum Hessen. Provinz Oberhessen. Kreis Friedberg. Arnold Bergstraesser, Darmstadt 1895, S. 22–38 (online).
- Friedrich Karl Azzola, Dieter Wolf: Die spätmittelalterliche Kreuzplatte in der Butzbacher Stadtpfarrkirche – die Grabplatte des Butzbacher Bürgermeisters Conrad Fauerbach, um 1460/70? In: Wetterauer Geschichtsblätter. 41, 1992, S. 69–74.
- Wolfgang Georg Bayerer: Die Handschriften des ehemaligen Fraterherrenstifts St. Markus zu Butzbach. Teil I: Handschriften aus der Nummernfolge Hs 42 – Hs 760. Handschriftenkataloge der Universitätsbibliothek Gießen, 4, Harrassowitz, Wiesbaden 1980, ISBN 3-447-02024-5.
- Franz Bösken, Hermann Fischer: Quellen und Forschungen zur Orgelgeschichte des Mittelrheins (= Beiträge zur Mittelrheinischen Musikgeschichte. Band 29,1). Band 3: Ehemalige Provinz Oberhessen. Teil 1: A–L. Schott, Mainz 1988, ISBN 3-7957-1330-7.
- Georg Dehio: Handbuch der deutschen Kunstdenkmäler. Hessen II. Regierungsbezirk Darmstadt. Bearbeitet von Folkhard Cremer und Tobias Michael Wolf. 3. Aufl. Deutscher Kunstverlag, München 2008, ISBN 978-3-422-03117-3, S. 127.
- Wilhelm Diehl: Baubuch für die evangelischen Pfarreien der Landgrafschaft Hessen-Darmstadt (= Hassia sacra. Band 5). Selbstverlag, Darmstadt 1931, S. 283–287.
- Peter Fleck, Dieter Wolf (Hrsg.): Katholisches Leben in Butzbach in Mittelalter und Neuzeit. Kath. Pfarrgemeinde St. Gottfried, Butzbach 1994.
- Bodo Heil: Hessische Beamtengrabsteine in und an der Butzbacher Markuskirche. In: Butzbacher Geschichtsblätter. Bd. 236. Butzbach 2009, S. 3–4.
- Bodo Heil: Vom Hamburger Glockenfriedhof auf den Turm der Markuskirche. Geschichte der großen Butzbacher Sturm- und Läuteglocken vom Jahre 1953 bis zurück zum Jahre 1453. In: Butzbacher Geschichtsblätter. Band 235. Butzbach 2008, S. 2–3.
- Landesamt für Denkmalpflege Hessen (Hrsg.), Heinz Wionski (Bearb.): Kulturdenkmäler in Hessen. Wetteraukreis II. Teilbd. 1. Bad Nauheim bis Florstadt. (= Denkmaltopographie Bundesrepublik Deutschland). Theiss, Stuttgart 1999, ISBN 3-528-06227-4, S. 333–336.
- Joachim Ott: Die Handschriften des ehemaligen Fraterherrenstift St. Markus zu Butzbach in der Universitätsbibliothek Giessen, Teil 2, Die Handschriften aus der Signaturenfolge, Hs 761 – Hs 1266, NF-Signaturen, Ink-Signaturen, Berichte und Arbeiten aus der Universitätsbibliothek und dem Universitätsarchiv Gießen, 52, Justus-Liebig-Universität Gießen, 2004, ISBN 3-9808042-1-6.
- Gail Schunk: Aus der Geschichte der Markuskirche. In: Butzbacher Geschichtsblätter. Nr. 312. Butzbach 2017, S. 1–4.
- Gail und Winfried Schunk: Chronik Butzbach. Zeittafel für Butzbach und seine Stadtteile. 2. Auflage. Geschichtsverein für Butzbach und Umgebung, Butzbach 2007, ISBN 978-3-9809778-3-8.
- Gail Schunk-Larrabee: Tierplastik in der Markuskirche. In: Butzbacher Geschichtsblätter. Band 77. Butzbach 1992, S. 2–3.
- Jörg Wiegand: Die Evangelische Markuskirche Butzbach. Evangelische Markus-Kirchengemeinde Butzbach, Butzbach 2007, ISBN 978-3-00-021299-4.
Weblinks
- Website der Markuskirche Butzbach
- Offizieller Internetauftritt der Staatlichen Schlösser und Gärten Hessen zur Gruft
- Landesamt für Denkmalpflege Hessen (Hrsg.): Markuskirche, ev. Pfarrkirche In: DenkXweb, Online-Ausgabe von Kulturdenkmäler in Hessen
Einzelnachweise
- ↑ Schunk: Chronik Butzbach. 2008, S. 10.
- ↑ Fleck, Wolf: Katholisches Leben in Butzbach in Mittelalter und Neuzeit. 1994, S. 43.
- ↑ a b Landesamt für Denkmalpflege Hessen: Kulturdenkmäler in Hessen. Wetteraukreis II. 2010, S. 333.
- ↑ Schunk: Aus der Geschichte der Markuskirche. 2017, S. 1–4.
- ↑ Fleck, Wolf: Katholisches Leben in Butzbach in Mittelalter und Neuzeit. 1994, S. 27.
- ↑ Fleck, Wolf: Katholisches Leben in Butzbach in Mittelalter und Neuzeit. 1994, S. 28–29.
- ↑ Fleck, Wolf: Katholisches Leben in Butzbach in Mittelalter und Neuzeit. 1994, S. 39.
- ↑ Schunk: Chronik Butzbach. 2008, S. 15, 16, 19.
- ↑ Fleck, Wolf: Katholisches Leben in Butzbach in Mittelalter und Neuzeit. 1994, S. 47.
- ↑ Wiegand: Die Evangelische Markuskirche Butzbach. 2007, S. 10.
- ↑ Schunk: Chronik Butzbach. 2008, S. 19.
- ↑ a b c d e f g Website der Markuskirche: Virtueller Rundgang, gesehen am 1. Januar 2012.
- ↑ Fleck, Wolf: Katholisches Leben in Butzbach in Mittelalter und Neuzeit. 1994, S. 36.
- ↑ Gerhard Kleinfeldt, Hans Weirich: Die mittelalterliche Kirchenorganisation im oberhessisch-nassauischen Raum (= Schriften des Instituts für geschichtliche Landeskunde von Hessen und Nassau 16). N. G. Elwert, Marburg 1937, ND 1984, S. 19.
- ↑ Fleck, Wolf: Katholisches Leben in Butzbach in Mittelalter und Neuzeit. 1994, S. 45.
- ↑ a b c d Landesamt für Denkmalpflege Hessen: Kulturdenkmäler in Hessen. Wetteraukreis II. 2010, S. 334.
- ↑ Wiegand: Die Evangelische Markuskirche Butzbach. 2007, S. 14.
- ↑ Diehl: Baubuch für die evangelischen Pfarreien der Landgrafschaft Hessen-Darmstadt. 1931, S. 283.
- ↑ a b c d Dehio: Handbuch der deutschen Kunstdenkmäler. Hessen II. 2008, S. 127.
- ↑ a b Diehl: Baubuch für die evangelischen Pfarreien der Landgrafschaft Hessen-Darmstadt. 1931, S. 284.
- ↑ Wiegand: Die Evangelische Markuskirche Butzbach. 2007, S. 11.
- ↑ Diehl: Baubuch für die evangelischen Pfarreien der Landgrafschaft Hessen-Darmstadt. 1931, S. 285.
- ↑ Wiegand: Die Evangelische Markuskirche Butzbach. 2007, S. 30–51.
- ↑ Wiegand: Die Evangelische Markuskirche Butzbach. 2007, S. 19.
- ↑ Wiegand: Die Evangelische Markuskirche Butzbach. 2007, S. 9.
- ↑ Adamy: Kunstdenkmäler im Großherzogtum Hessen. 1895, S. 23 (online, abgerufen am 7. März 2017).
- ↑ Homepage der Markusgemeinde: Virtueller Rundgang, abgerufen am 5. März 2017.
- ↑ a b Adamy: Kunstdenkmäler im Großherzogtum Hessen. 1895, S. 24 (online, abgerufen am 7. März 2017).
- ↑ Wiegand: Die Evangelische Markuskirche Butzbach. 2007, S. 21.
- ↑ a b c Bösken, Fischer: Quellen und Forschungen zur Orgelgeschichte des Mittelrheins. Bd. 3. 1988, S. 214.
- ↑ Adamy: Kunstdenkmäler im Großherzogtum Hessen. 1895, S. 26 (online, abgerufen am 7. März 2017).
- ↑ Wiegand: Die Evangelische Markuskirche Butzbach. 2007, S. 20.
- ↑ Adamy: Kunstdenkmäler im Großherzogtum Hessen. 1895, S. 27 (online, abgerufen am 7. März 2017).
- ↑ Adamy: Kunstdenkmäler im Großherzogtum Hessen. 1895, S. 28 (online, abgerufen am 7. März 2017).
- ↑ Wiegand: Die Evangelische Markuskirche Butzbach. 2007, S. 27.
- ↑ Wiegand: Die Evangelische Markuskirche Butzbach. 2007, S. 26.
- ↑ Wiegand: Die Evangelische Markuskirche Butzbach. 2007, S. 25.
- ↑ Wiegand: Die Evangelische Markuskirche Butzbach. 2007, S. 56–64.
- ↑ https://www.schloesser-hessen.de/butzbach
- ↑ Wiegand: Die Evangelische Markuskirche Butzbach. 2007, S. 53.
- ↑ Landesamt für Denkmalpflege Hessen: Kulturdenkmäler in Hessen. Wetteraukreis II. 2010, S. 335.
- ↑ Ev. Markuskirche D-Butzbach, Op 564. Metzler Orgelbau AG, abgerufen am 1. Januar 2012.
- ↑ Förster & Nicolaus-Orgel in Butzbach, abgerufen am 29. Juli 2016.
- ↑ Jörg Wiegand: Die Glocken der Markuskirche zu Butzbach, abgerufen am 9. März 2017 (PDF; 2,5 MB).
Koordinaten: 50° 26′ 6″ N, 8° 40′ 24,6″ O