Mar-Behnam-Kloster
| Sankt-Behnam-Kloster | |
|---|---|
![]() | |
| Baujahr: | älteste nachgewiesenen Bausubstanz 1164 |
| Lage: | 36° 8′ 16″ N, 43° 24′ 23″ O |
| Standort: | Baghdida Ninawa, Irak |
| Zweck: | Syrisch-katholisches Kloster |
Das Kloster des Märtyrers St. Behnam und seiner Schwester Sarah (reichsaramäisch ܕܝܪܐ ܪܡܪܝ ܒܗܢܡ ܘܡܪܬ ܣܪܐ, arabisch دير مار بهنام) ist eine aus dem 12. Jahrhundert stammende syrisch-katholische Klosteranlage bei dem Dorf Chidr-Elias nahe Baghdida, 36 Kilometer südöstlich von Mossul im Norden des Irak. Sie besteht aus einem ummauerten Bereich mit der Kirche und einem außerhalb liegenden Mausoleum. Das Kloster, das bei der lokalen Bevölkerung ebenfalls als Chidr-Elias bekannt ist, war 2014–2017 von Islamisten besetzt, die das Kloster schwer beschädigten und das Mausoleum am 19. März 2015 sprengten. Es wurde bis Dezember 2018 wieder aufgebaut.
Legende
Das Kloster wurde der Legende nach im 4. Jahrhundert durch einen assyrischen König namens Sinharib (auch: Sanharib)[1] begründet. Der König, so die Legende, ließ seinen Sohn Behnam und seine Tochter Sarah ermorden, nachdem sie sich, bekehrt von Mattai, einem Eremiten, Wunderheiler und späterem Namensgeber eines Klosters, zum Christentum bekannt hatten. Als Buße für seine Tat ließ der König das Kloster erbauen.
Die erste schriftliche Quelle der Legende des Märtyrers Behnam findet sich in einem syrisch-orthodoxen Manuskript aus dem frühen 13. Jahrhundert.[2] Die davon ausgehend tradierten Daten werden als anachronistisch angesehen. So ist zum Beispiel der erwähnte König Sinharib, Sîn-aḫḫe-eriba, dem 8. Jahrhundert vor Christus zuzuordnen.[3]
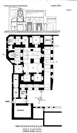
Gebäudeanlage


Die auf einem ovalen Hügel angelegte Klosteranlage besteht aus mehreren Bauwerken mit der Klosterkirche und dem oktogonalen Mausoleum Sankt Behnams als Hauptgebäuden. Hohe Klostermauern verleihen der Anlage einen festungsartigen Eindruck. Während sich die Klosterkirche innerhalb der Mauern befindet, lag das Mausoleum außerhalb, ungefähr 60 Meter von der Kirche entfernt in einer Senke. Es umschloss die vermeintliche Gruft Behnams, die von einer aufwendig verzierten Steinplatte bedeckt war.[4]
Das Behnam-Mausoleum wird von der muslimischen Bevölkerung des umliegenden Dorfes als ein Heiligtum al-Chidrs betrachtet. Über der Tür des Mausoleums befand sich eine uigurische Inschrift aus der Zeit um 1300 n. Chr., in der der Segen des Chidr-Elias auf den Ilchan-Herrscher, seinen Hofstaat und seine Frauen herabgerufen wird.[5]
Geschichte
Klostergründung und Bauwerk sind nicht genau zu datieren. Seit dem 10. Jahrhundert waren viele Kirchen nach dem Märtyrer Sankt Behnam benannt worden. Die älteste nachgewiesene Bausubstanz der Klosteranlage, der Chor der Kirche, stammt aus dem Jahr 1164. Vermutet wird, dass zuvor an dem Ort bereits ein Pilgerhospiz existiert haben könnte, eingerichtet von einem in der Legende erwähnten persischen Gläubigen.[6]
Gebäudeinschriften in syrischer, arabischer, aramäischer und uighurischer Sprache verweisen auf die Tätigkeit von Baumeistern und Gönnern.[7] Eine syrische Inschrift, die im Inneren in der Klosterkirche angebracht ist, berichtet von der Plünderung des Klosters durch die Truppen des Ilchans Baidu und die anschließende Wiedergutmachung durch den Herrscher. A. Harrak und N. Riju vermuten, dass die uighurische Inschrift mit den Segenswünschen für den Ilchan und seinen Hofstaat aus dieser Zeit, also von 1295, stammt und auch der Gebäudekomplex damals neu errichtet wurde.[8] Die Archäologie hält das Mausoleum für älter als die Kirche, allerdings ohne eine genauere Datierung vornehmen zu können.[9]
Die Mönche des Klosters nahmen im 18. Jahrhundert Kontakt mit der römisch-katholischen Kirche auf, was zur schrittweisen Konversion der Einwohner von Baghdida zur mit Rom unierten Syrisch-Katholischen Kirche führte. Zwischen 1767 und 1839 kam das Kloster unter die Aufsicht der Syrisch-Katholischen Kirche, unter der es bis zur Besetzung 2014 verblieb. In jüngster Zeit war es zumindest zeitweise nicht mehr von Mönchen besiedelt.[10] Zum Zeitpunkt der Besetzung 2014 lebten drei Mönche im Kloster, zusammen mit einigen dort wohnhaften Familien.[11]
Nach Verlautbarung in Pressenachrichten beschlagnahmten Vertreter des Islamischen Staats im Irak und in der Levante im Juli 2014 das Kloster und vertrieben die dort lebenden Personen.[12][13] In der Folgezeit wurden Kreuze auf und im Kloster entfernt und Handschriften verbrannt.[14] Laut lokalen Nachrichten in den sozialen Medien wurde das Mausoleum von der Terrororganisation Islamischer Staat am 19. März 2015 gesprengt.[15]
Nach Ende der Besetzung durch ISIS (2017) wurden das Mausoleum und das Kloster mit Spendengeldern der 2011 gegründeten französischen Organisation Fraternité en Irak bis Dezember 2018 wieder aufgebaut.[16][17] Die Handschriftensammlung des Klosters konnte vor der Besetzung in Sicherheit gebracht werden und befindet sich heute in Ankawa.
Literatur
- Amir Harrak und Niu Ruji: “The Uighur Inscription at the Mausoleum of Mar Behnam, Iraq,” in Journal of the Canadian Society for Syriac Studies 4, 2004, S. 66–72.
- Mirko Novák / Helen Younansardaroud: Mar Behnam, Sohn des Sanherib von Nimrod. Tradition und Rezeption einer assyrischen Gestalt im iranischen Christentum und die Frage nach dem Fortleben der Assyrer. In: Altorientalische Forschungen. 29/1 (2002), 166–194.
- Ethel Sara Wolper: Khidr and the Politics of Translation in Mosul. Mar Behnam, St George and Khidr Ilyas. In: Mohammed Garipour (Hrsg.): Sacred Precincts. The Religious Architecture of Non-muslim Communities Across the Islamic World. Leiden 2015; S. 379–392 in der Google-Buchsuche
- Helen Younansardaroud: Die Legende von Mar Behnam. In: Martin Tamcke (Hrsg.): Syriaca. Hamburg 2002; S. 185–195 in der Google-Buchsuche
Weblinks
- William Warda: Early Assyrian Churches and Monasteries in northern Iraq ( vom 3. Januar 2010 im Internet Archive), darin Fourth Century Saint Behnam Monastery auf der Website Christians of Iraq
- Pascal Meguesyan: Mar Behnām and Sārah’s convent. Mesopotamia Heritage, Februar 2018
- Iraq – Saint Bahnam's Monastery auf YouTube. 2010, abgerufen am 21. März 2015
Einzelnachweise
- ↑ Karen Radner: Ancient Assyria. A Very Short Introduction. Oxford University Press 2015, S. 7.
- ↑ Ethel Sara Wolper: Khidr and the Politics of Translation in Mosul. Mar Behnam, St George and Khidr Ilyas. In: Mohammed Garipour (Hrsg.): Sacred Precincts. The Religious Architecture of Non-muslim Communities Across the Islamic World. Leiden 2015; 385 in der Google-Buchsuche
- ↑ Helen Younansardaroud: Die Legende von Mar Behnam. In: Martin Tamcke (Hrsg.): Syriaca. Hamburg 2002; S. 185–195 in der Google-Buchsuche
- ↑ Ethel Sara Wolper: Khidr and the Politics of Translation in Mosul. Mar Behnam, St George and Khidr Ilyas. In: Mohammed Garipour (Hrsg.): Sacred Precincts. The Religious Architecture of Non-muslim Communities Across the Islamic World. Leiden 2015, S. 379–392 hier S. 381.
- ↑ Bas Snelders: Identity and Christian-Muslim interaction: medieval art of the Syrian orthodox from the Mosul area. Peeters, Löwen, 2010, S. 97, 570.
- ↑ Helen Younansardaroud: Die Legende von Mar Behnam. In: Martin Tamcke (Hrsg.): Syriaca. Hamburg 2002, S. 194.
- ↑ Ethel Sara Wolper: Khidr and the Politics of Translation in Mosul. Mar Behnam, St George and Khidr Ilyas. In: Mohammed Garipour (Hrsg.): Sacred Precincts. The Religious Architecture of Non-muslim Communities Across the Islamic World. Leiden 2015; S. 384 in der Google-Buchsuche
- ↑ Harrak/Ruji: The Uighur Inscription at the Mausoleum of Mar Behnam. 2004, S. 69.
- ↑ Wolper: Khidr and the Politics of Translation in Mosul. 2015, S. 381.
- ↑ Wolfgang Hage: Das orientalische Christentum. (Religionen der Menschheit) München: Kohlhammer 2007, ISBN 978-3-17-017668-3, S. 411 m.w.N.
- ↑ The Monastery of Mar Behnam profaned by the militiamen of the Islamic State, Meldung des Information service of the Pontifical Mission Societies vom 15. Oktober 2014, abgerufen am 21. März 2015.
- ↑ Isis militants 'seize Iraq monastery and expel monks'. BBC News Online, 21. Juli 2014, abgerufen am 21. Juli 2014 (englisch).
- ↑ Irak: Syrisches Mar-Bahnam-Kloster eingenommen. ead.de, 21. Juli 2014, abgerufen am 21. März 2015.
- ↑ The Monastery of Mar Behnam profaned by the militiamen of the Islamic State, Meldung des Information service of the Pontifical Mission Societies vom 15. Oktober 2014, abgerufen am 21. März 2015.
- ↑ Isis militants blow up 4th-century Christian Mar Behnam monastery in Iraq. The Independent, 20. März 2015, abgerufen am 21. März 2015 (englisch).
- ↑ Les travaux à Mar Behnam bientôt terminés. Fraternité en Irak, 7. Dezember 2018.
- ↑ The Revival of Mar Behnam Monastery. Mosul Eye, 20. Juli 2019.
