Liebig-Museum







Das Liebig-Museum ist ein 1920 in Gießen gegründetes naturwissenschaftliches Museum, das dem Chemiker Justus Liebig gewidmet ist. Das Gebäude wurde ursprünglich als Wachlokal einer Kaserne errichtet und von Liebig erweitert. Es zeigt die Arbeitsbedingungen und die Hilfsmittel jener Zeit im ehemaligen Chemischen Institut, in dem Liebig während seiner Zeit als Professor an der Gießener Universität von 1824 bis 1852 gelebt und geforscht hat.
Das Liebig-Museum wird zu den wichtigsten Chemiemuseen der Welt gezählt. Es wurde 2003 von der Gesellschaft Deutscher Chemiker (GDCh) zur Historischen Stätte der Chemie ernannt.[1] 2021 verlieh ihm die European Chemical Society den EuChemS Historical Landmarks Award 2020.[2]
Geschichte des Museums
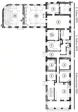
In den Jahren 1819–1821 wurde der älteste Teil des Museums (Räume 1–5) als Wachhaus zusammen mit der danebenliegenden Kaserne eines Bataillons des 4. Großherzoglichen Infanterieregiments erbaut. Als es Streitigkeiten zwischen Studenten und Militär gab, wurden die Soldaten nach Worms verlegt, und die Kaserne stand der Universität zur Verfügung. Seit 1824 richtete Liebig dieses Wachhaus als Chemisches Laboratorium ein. Einige Jahre später kamen ein zweiter Eingangsbereich (6), das Zimmer des Direktors (7a) und das Privatlaboratorium (7) hinzu. Im Jahre 1839 erstand der Bau in seiner jetzigen Größe und Gestalt durch Angliederung des Pharmazeutischen Laboratoriums (8), der Bibliothek (9), des analytischen Laboratoriums (10) und des Auditoriums (11).[3]
Nach dem Weggang Liebigs nach München 1852 und nach der Errichtung eines neuen Chemischen Institutes in der Ludwigstraße im Jahre 1888 diente das alte Institut noch kurze Zeit den Physikochemikern als Unterkunft und wurde dann verschiedenen anderen Diensten zugeführt.
Im Oktober 1910 wurde die „Gesellschaft Liebig-Museum“ gegründet. Zum 1. Vorsitzenden wurde der Geheime Medizinalrat Emanuel August Merck und zum 2. Vorsitzenden der Geheime Medizinalrat Robert Sommer gewählt. Am 26. März 1920 konnte das Museum eröffnet werden. Ende 1944 zerstörte eine Fliegerbombe das alte Laboratorium. Nach seiner Instandsetzung wurde das Museum im Sommer 1952 der Öffentlichkeit wieder zugänglich gemacht. Unter Federführung des damaligen Kurators Siegfried Heilenz erfolgte 1982 eine vollständige Neugestaltung des Museums. Aus Gründen der Sicherheit und Zugänglichmachung wurden ca. 3.800 Dokumente zu Justus Liebig, seinem familiären sowie wissenschaftlichen Umfeld (darunter 1.780 Originalbriefe) an das Universitätsarchiv Gießen übergeben. Die Dokumente waren mit Gründung des Museums von Mitgliedern der Gesellschaft zusammengetragen und grob verzeichnet worden.
Im Jahre 2003 wurde die Ausstellung im Rahmen der Veranstaltungen zum 200. Geburtstag von Justus Liebig neu konzipiert. Am 5. Dezember 2022 kam es zu einem Brand im historischen Hörsaal des Laboratoriums, der zu einer vorübergehenden Schließung führte.[4]
Räume
Zugänglich sind unter anderem:
- das „alte Labor“, woran der Kontrast zu den später errichteten Räumlichkeiten und damit die Fortentwicklung der Chemie während Liebigs Schaffensperiode deutlich wird,
- das Wägezimmer mit Analysewaagen, die der Gießener Schreinermeister Hoss für Liebig hergestellt hat,
- Liebigs Privatlabor und -schreibzimmer mit seinem Schreibtischstuhl, über den eine Legende sagt, dass jeder, der sich auf diesen Stuhl setzt, irgendwann einmal ein Naturwissenschaftler wird, der die Welt verändert,
- das Pharmazeutische Labor, in dem damals die Ausbildung der Apotheker stattfand,
- die Bibliothek, unter anderem mit sämtlichen Werken Liebigs,
- das Analytische Labor mit Apparaturen zur Demonstration der Elementaranalyse und
- das Auditorium, in dem Liebig seine Experimentalvorlesungen abhielt.
Literatur
- Literatur über Liebig-Museum nach Register nach GND In: Hessische Bibliographie.
- Franziska Müller: Das Liebig-Laboratorium – von seinen Anfängen bis in die Gegenwart. Festschrift zum 100jährigen Jubiläum des Giessener Liebig-Museums (26. März 1920–2020) (= Berichte der Justus Liebig-Gesellschaft zu Gießen, Band 10), Justus Liebig-Gesellschaft e. V.: Gießen 2020.
- Klaus Judel u. a.: Historische Stätten der Chemie – Justus von Liebig, hrsg. von der GDCh. Frankfurt/Main 2003 [2].
- Georg Schwedt: Liebig und seine Schüler – Die neue Schule der Chemie. Springer Verlag, Berlin 2002, ISBN 3-540-43205-1.
- Hans R. Jenemann: Die langarmigen Präzisionswaagen im Liebig-Museum zu Gießen. Gießen 1988.
- Siegfried Heilenz: Das Liebig-Museum in Gießen. (deutsch/englisch oder deutsch/französisch), Gießen 1987, ISBN 3-922730-66-3 oder ISBN 3-922730-82-5.
- Fritz Kröhnke, Willi Weis: Justus v. Liebig und das Gießener Liebig-Museum. Brühlsche Universitätsdruckerei Gießen, 1964/1980.
Weblinks
- Justus Liebig-Gesellschaft zu Gießen e. V.: Liebig-Museum und -Laboratorium
- Landesamt für Denkmalpflege Hessen (Hrsg.): Liebigmuseum In: DenkXweb, Online-Ausgabe von Kulturdenkmäler in Hessen
- Deutsches Museum München: Das Liebig-Laboratorium aus dem Jahr 1842 ( vom 12. Mai 2015 im Webarchiv archive.today) Auszug aus: Meisterwerke aus dem Deutschen Museum Band VI, München 2002, ISBN 3-924183-59-7
- Liebig-Briefe online bei DIGISAM der UB Gießen
Einzelnachweise
- ↑ Gesellschaft Deutscher Chemiker: Zum 200. Geburtstag von Justus v. Liebig – Enthüllung einer Gedenktafel, Ehrung eines chemischen Nachfahren ( vom 19. Oktober 2016 im Internet Archive), Pressemeldung vom 12. Mai 2003, abgerufen am 31. Juli 2012.
- ↑ EuChemS European Chemical Landmarks Award [1]
- ↑ Franziska Müller: Das Liebig-Laboratorium von seinen Anfängen bis in die Gegenwart. Festschrift zum 100-jährigen Jubiläum des Liebig-Museums, Band 10 der Berichte der Justus-Liebig-Gesellschaft zu Gießen, ISSN 0940-3426, 1. Auflage, Gießen 2020, 180 Seiten.
- ↑ Das Liebig-Museum ist wegen eines Brandschadens bis auf Weiteres geschlossen – Liebig-Museum und Laboratorium Gießen. Abgerufen am 6. Dezember 2022 (deutsch).
Koordinaten: 50° 34′ 51″ N, 8° 39′ 58,3″ O