Landhaus Oppenheim

Das Landhaus Oppenheim ist ein 1907–1908 vom Architekten Alfred Messel erbautes Landhaus in der Villenkolonie Alsen im Berliner Ortsteil Wannsee. Auftraggeber waren Franz Oppenheim, Generaldirektor der Agfa, und seine zweite Ehefrau Margarete, eine bedeutende Kunstsammlerin. Die ursprüngliche Adresse lautete Große Seestraße 22, heute ist das Haus nach Neuparzellierung des Grundstücks und Überbauung des Gartens in den 1980er Jahren über die Straße Zum Heckeshorn erschlossen und trägt dort die Hausnummer 38. In den Sommermonaten diente es als Mittelpunkt des gesellschaftlichen Lebens der Oppenheims und beherbergte ihre umfangreiche Kunstsammlung.
Nach dem Tod von Franz und Margarete Oppenheim verkauften die vor der Verfolgung durch die Nationalsozialisten in die Schweiz und nach Großbritannien emigrierten Erben das Anwesen 1940 zu einem Bruchteil seines realen Werts an das Reichssicherheitshauptamt. Unter dem Tarnnamen Institut für Altertumsforschung hatte bereits 1938 das Wannsee-Institut das Gebäude bezogen, das nun geheimdienstlichen Zwecken und der Kriegsvorbereitung in Osteuropa diente.
Nach dem Ende des Zweiten Weltkriegs war das Haus zusammen mit weiteren benachbarten Villen Teil des Krankenhauses Wannsee bis zu dessen Auflösung 1971. Dem letzten verbliebenen der von Messel im Auftrag von privaten Kunstsammlern ausgeführten Häuser drohte anschließend der Abriss. Nach längerem Leerstand und Verfall wurde es 1982 saniert und 1983 unter Denkmalschutz gestellt. Von 1990 bis 2009 betrieb der Verein Tannenhof Berlin-Brandenburg das Landhaus als Drogentherapiezentrum. Seit einer erneuten denkmalgerechten Sanierung nutzt die Internationale Montessori-Schule das Gebäude.
Gelegentlich werden das Landhaus Oppenheim als Großer Messel und das bereits 1900/1901 von Messel für den Verleger Ferdinand Springer auf dem unmittelbar angrenzenden Grundstück erbaute Landhaus Springer als Kleiner Messel bezeichnet.
Ein Sommerhaus am Wannsee

Ab den 1870er Jahren verbrachten Mitglieder der Berliner Oberschicht den Sommer in vornehmen Sommerresidenzen am Ufer des Großen Wannsees in den Villenkolonien Alsen und Wannsee. Als Angehörigen dieser Schicht war dem Ehepaar Oppenheim diese Gegend gut vertraut. Franz Oppenheim hatte für seine Familie 1886 auf dem Grundstück Friedrich-Karl-Straße 24 (heute: Am Sandwerder 17/19) eine neugotische Villa nach Plänen des für seine Kirchenbauten bekannten Architekten Johannes Otzen errichten lassen. Als seine erste Frau Else 1904 starb, verkaufte er die im Volksmund „Mäuseburg“ genannte Villa an den Bankier Siegfried Samuel. Außerdem besaß Ferdinand Reichenheim, der Bruder von Margarete Oppenheims erstem Ehemann Georg Reichenheim, eine 1880 von Christian Heidecke errichtete Villa ebenfalls an der Friedrich-Karl-Straße (heute Am Sandwerder 29).
Nach der Heirat erwarb das Ehepaar Oppenheim im Sommer 1906 eines der letzten freien Grundstücke der Villenkolonie Alsen an der Großen Seestraße (seit der Umbenennung am 8. April 1933: Am Großen Wannsee) für den Bau eines Sommerhauses. Zu diesen 8485 m² kamen beträchtliche Erweiterungen durch das im Winter 1906 erworbene südliche Nachbargrundstück[1] und ein Seegrundstück auf der gegenüberliegenden Straßenseite. Mit dem Bau ihres Sommerhauses beauftragten sie den Architekten Alfred Messel, in dessen Büro die Planungen 1907 begannen. Zu den beteiligten Mitarbeitern gehörten Paul Baumgarten, Paul Kolb, W. Eggermont und Wilhelm Walther. Die im Architekturmuseum der Technischen Universität Berlin verwahrten Zeichnungen für Nebengebäude wie Pförtner- oder Garagenhaus datieren auf Frühling und Sommer 1907, für das Haupthaus häufiger auf den Jahreswechsel 1907/08. Die Bauarbeiten erstreckten sich wahrscheinlich von Sommer 1907 bis mindestens in die erste Jahreshälfte 1908.[1]
Eine weitere Gelegenheit zur Erweiterung des Grundstücks ergab sich zu Beginn der 1920er Jahre. Die Oppenheims erwarben das Land zwischen der bisherigen Westgrenze bis zur neu angelegten Straße 6 der Kolonie, die seit dem 27. Juni 1925 den Namen Zum Heckeshorn trägt. Das Grundstück erhielt kurzzeitig die Adresse Zum Heckeshorn 2, ab 1927 Zum Heckeshorn 16–18, heute Zum Heckeshorn 36–40.
Messel als Architekt für Sammler
Mit dem Sammeln von Kunst zeigte sich die aufsteigende, neue gesellschaftliche und wirtschaftliche Elite als gleichwertig zum Adel. Für erfolgreiche Kaufleute, Unternehmer und Bankiers gehörte das Sammeln ab einer bestimmten Vermögensgröße zur Lebensführung und galt als wenig anstößige Form des bürgerlichen Luxus, da er Reichtum mit Bildung verband.[2] Passende Räume oder gar Häuser waren eine häufigere Bauaufgabe im Berlin der Kaiserzeit, und auch Alfred Messel hat mehrfach für Sammler gebaut.
Sein erster entsprechender Auftrag war 1892/1893 der Umbau des Wohnhauses für den Tier- und Dekorationsmalers Paul Meyerheim, Hildebrandstraße 22 in Berlin-Tiergarten, das im Zweiten Weltkrieg zerstört wurde. Das ursprünglich klassizistische Haus erhielt eine neue Fassade und im Innern vergrößerte Messel die Gesellschaftsräume im Erdgeschoss und richtete das Atelier des Künstlers im Obergeschoss neu ein. Beim Innenausbau verwendete er historische Architekturteile wie Türeinfassungen. Die Publikation des Umbaus 1896 in seinen Ausgeführte Architekturen[3], machten ihn als Innenarchitekten bekannt, der mit historischen Versatzstücken umzugehen weiß.[4]
Ebenfalls in die Jahre 1892/1893 fällte der Umbau des im Zweiten Weltkrieg zerstörten Hauses für den Bankier Valentin Weisbach, Tiergartenstraße 3a in Berlin-Tiergarten. Beim Umbau blieben nur die Außenmauern stehen und das Haus erhielt eine völlig veränderte Raumeinteilung. Auf Wunsch des Bauherrn vermittelte Wilhelm von Bode, der späteren Generaldirektor der Königlichen Museen, zahlreiche Gobelins, zu deren Integration Messel die passenden Wandeinteilungen entwarf.[5] Auch diesen Auftrag publizierte er in seinen Ausgeführte Architekturen.[3]
Ein großer Auftrag war der Neubau der Villa für den Baumwollgroßhändler Eduard Georg Simon auf dem Eckgrundstück Viktoriastraße 7 / Margarethenstraße 20 in Berlin-Tiergarten. Den 1902–1904 ausgeführten Auftrag erhielt er wohl auf Vermittlung durch dessen Bruder Felix Simon, für den er von 1900 bis 1901 an der nahe gelegenen Mathäikirchstraße ein Wohnhaus gebaut hatte – versehen mit historischen Bauteilen und Möbeln, aber ohne eigentliche Kunstsammlung.[4] Für die umfangreiche Kunstsammlung von Eduard Simon entwarf er wiederum in Zusammenarbeit mit Wilhelm Bode ein Konzept, die Sammlung des Bauherrn in passend zur jeweiligen Epoche gestalteten Räumen zu präsentieren. In diesen Stilräumen verbaute er auch historische Bauteile, etwa im Speisesaal Decken- und Wandfresken Giovanni Battista Tiepolos aus dem Palazzo Orazio Porto in Vicenza. Dieses Konzept der „malerischen Anordnung“ verwendete Bode erneut im großen Rahmen zusammen mit Ernst von Ihne beim Kaiser-Friedrich-Museum, dem heutigen Bode-Museum.[6] Das im Zweiten Weltkrieg ausgebrannte Gebäude wurde 1950 abgetragen.
Der Auftrag von Franz und Margarete Oppenheim unterschied sich von den bisherigen. Statt für eine Sammlung alter Kunst war eine Lösung für eine moderne Gemäldesammlung gefragt. Auch die Rolle der Sammlung war eine andere: Ordnete sie sich in den bisherigen Aufträgen in das großbürgerliche Programm von Repräsentations- und Gesellschaftsräumen ein, prägte die Sammlung im Landhaus Oppenheim das gesamte Gebäude, das Haus wurde um die Galerie herum gebaut.[7]
Nebengebäude
Eine gemauerte Einfriedung umfasste das gesamte Grundstück mit einer kleinen Nebenpforte in der Westmauer zum Wald und einem repräsentativen, von zwei Portalpfosten mit Blumenkörben einfassten Eingangstor an der Uferstraße, ungefähr auf Höhe der Abzweigung der Colomierstraße. Dahinter lag das eingeschossige, gelblich verputzte Pförtnerhaus mit Mansarddach, dessen klassizistische anmutende Gestaltung dem Hauptgebäude entsprach. Die übrigen Nebengebäude wie ein kombiniertes Stall- und Garagengebäude, ein Gewächshaus und Geflügelstall platzierte Messel auf dem Seegrundstück. Auf dem in den 1920er Jahren erworbenen Grundstück Zum Heckeshorn 16–18 kam ein im ähnlichen Stil wie die anderen Nebengebäude gestaltetes Gärtnerhaus, das ab 1927 in den Berliner Adressbüchern geführt wurde.[8] Das Häuschen trägt heute die Hausnummer 40 und gehört als Montessori-Kinderhaus zum Campus der Montessori-Schule.
-
Eingangstor mit Pförtnerhaus, 1911 -
Ehemaliges Garagen- und Stallgebäude auf dem Seegrundstück -
Ehemaliges Gärtnerhaus Zum Heckeshorn 40, heute: Montessori-Kinderhaus
Hauptgebäude

Das Landhaus platzierte Messel auf dem hinteren, straßenabgewandten Teil der Parzelle. Vom Pförtnerhaus an der Großen Seestraße führte ein Fahrweg am südlichen Rand des Grundstücks zu einem Rondell hinter dem Landhaus. Eine dichte Baumfläche, mit deren Anpflanzung unmittelbar nach Erwerb des Grundstücks begonnen wurde, verbarg die Sicht auf Pförtnerhaus und Erschließungsweg vom Haupthaus. Das nur mit niedrigen Nebengebäuden bebaute Seegrundstück auf der gegenüberliegenden Straßenseite sicherte den freien Blick vom Haupthaus über die Pleasureground-artige Rasenfläche auf den Wannsee. Durch die Neuparzellierung der Grundstücke, Abriss der Nebengebäude und die Neubebauung ist diese Gestaltung heute verloren.
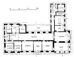
Das Volumen des Haupthauses teilte Messel in einen Haupttrakt und einen eingeschossigen kleinen Vorbau auf der Nordseite, der Wirtschaftsräume wie Küche, Vorratskammer, Anrichte und im Dachgeschoss Zimmer für Dienstmädchen aufnahm. Im Kellergeschoss brachte er neben weiteren Vorratsräumen auch die Zentralheizung für das Haus unter.
Die Gartenfassade gliedert sich in zwei leicht vorspringende, zweigeschossige Eckrisalite mit zwei Fensterachsen, die den fünfachsigen Mittelteil mit heruntergezogenem Dach einfassen. Der Sockel, die Eckbossierung der Risalite und die Fenstereinfassungen sind aus roh behauenem, grauweißem Muschelkalk. Die drei Achsen der Bögen der Gartenhalle oder Loggia im rechten Eckrisalit brechen einerseits die Symmetrie und verbinden andererseits Innen- und Außenraum des Landhauses. Bei der Gestaltung orientierte sich Messel an der Herrenhaus-Architektur des ausgehenden 18. Jahrhunderts.[9] Entsprechend diesen frühklassizistischen Vorbildern befindet sich das mittlere Fensterkreuz der weißgestrichenen Fenster in der Mitte der hochrechteckigen Fenster und nicht im oberen Drittel, wie seit der ersten Hälfte des 19. Jahrhunderts üblich. Die Fensterläden erhielten einen blaugrünen Anstrich. Die eher rohen, gelblichen Putzflächen waren ursprünglich mit Jungfernreben und Efeu berankt.[10]
Die Mansardwalmdächer über den Seitenrisaliten und dem Küchenflügel sowie das Mansardsatteldach über dem Mittelteil ist mit roten Biberschwanzziegeln eingedeckt, die Mansarden in Doppel- und die Walme in Kronendeckung. Die fünf Giebelgauben des ersten Obergeschosses entsprechen den Achsen der Fenster des Erdgeschosses. Im zweiten Obergeschoss erhellen zwei Giebelgauben in der Mitte der Seitenrisalite und drei Fledermausgauben die Räume des Trockenbodens im Dachgeschoss.
-
Loggia mit Verbindungstür zum Wohnzimmer -
Mittelteil -
Seitlicher Blick von der Terrasse auf die Gartenfassade -
Rechter Eckrisalit
Im Gegensatz zur symmetrischen Gartenfassade ist die Westfassade durch den vorgelagerten Küchentrakt auf der linken Seite und auf der rechten Seite durch den vorspringenden, risalitartigen Haupteingang mit dem gedrungenen Turm asymmetrisch und unregelmäßig. Der den Eingang flankierende Turm kaschiert raffiniert die unterschiedliche Breite der Seitenrisalite auf der Garten- und der Rückseite des Hauses. Die dem Haupteingang vorgelagerte Pergola verstärkt den hofartigen Eindruck. In der Rücklage zwischen dem kleinen Turm mit der geschweiften, in Kupferblech gedeckten Haube und dem Wirtschaftsraumflügel liegt eine kleine Terrasse. Der Sockel, die Eckbossierung, das in Stein gefasste Rundbogenportal des Eingangs sowie die Fenstereinfassungen aus roh behauenem grauweißem Muschelkalk entsprechen der Gestaltung der Gartenseite. Die Fassade des eingeschossigen Vorbaus strukturierte Messel zusätzlich mit Spalieren. Die Dachlandschaft auf der Rückseite gliederte sich analog der Gartenseite mit Giebelhauben im ersten und Fledermausgauben im zweiten Obergeschoss.
-
Eingang mit Pergola -
Eingang -
Seitenflügel


Durch den Haupteingang gelangt man in einen quadratischen Vorraum, an den sich rechts die Garderobe und links das ehemalige Dienerzimmer anschließen. Danach folgt die Galerie, die anstelle einer traditionellen Halle oder Diele die anschließenden Wohnräume erschließt. Mit ihrer Breite von 3,8 m und einer Länge von nahezu 27 m ist sie der größte Raum des Hauses und beherrscht es auf der Eingangsseite. Den Boden bedecken schwarze und weiße, in einem diagonalen Schachbrettmuster verlegte Marmorplatten. Vier große Fenster, von denen sich die beiden mittleren auf die vorgelagerte Terrasse an der Rückfront öffnen lassen, erleuchten die Galerie. Vier rötliche Stuckmarmor-Säulen bei den Fenstern unterteilen den Raum in einen eher repräsentativeren Teil gegen das an der nördlichen Schmalseite gewissermaßen als Verlängerung der Galerie anschließende Speisezimmer und einen eher auf den Eingang und das Treppenhaus an der südlichen Schmalseite bezogenen Teil. Die Tür am Ende der Galerie rechts vom Speisezimmer verbindet zu den Wirtschaftsräumen wie Küche, Speisekammer und Anrichte. Der Wirtschaftstrakt besitzt einen gesonderten Eingang an der Westseite.
Dem Verständnis der Galerie als reine Bildergalerie für die bedeutende Impressionisten-Sammlung Margarete Oppenheims mit mehreren Gemälden Paul Cézannes widersprechen die Memoiren des Historikers Felix Gilbert, einem Patenkind von Franz Oppenheim. Nach seinen Erinnerungen waren die Bilder als gewöhnliche Dekoration für die Wände über die verschiedenen Räume des Hauses verteilt.[11] Zwar sind keine zeitgenössischen Aufnahmen der Galerie bekannt, aber eine Fotografie der Galerie im Stadtpalais der Oppenheims, Corneliusstraße 7 in Berlin-Tiergarten, wohin die Bilder im Winter gebracht wurden, zeigt neben Gemälden auch Vitrinen für kunstgewerbliche Objekte und Porzellan.[12] Das Nutzungskonzept der Galerie an beiden Standorten dürfte ähnlich gewesen sein.
An die Längsseite der Galerie gegen Süden reihen sich mit Herrenzimmer und Wohnzimmer die Repräsentationsräume, in denen die Oppenheims ihr reges Gesellschaftsleben pflegten. Felix Gilbert schildert das Haus als einen Ort, wo sich Menschen aus verschiedensten Kreisen trafen, Naturwissenschaftler, Kunsthistoriker und Maler.[11] Namentlich bekannt sind die Architekten Hans Poelzig und Marlene Moeschke-Poelzig oder Nachbarn in der Villenkolonie wie die Ehepaare Johanna und Eduard Arnhold oder Martha und Max Liebermann,[13] der wiederholt im Garten malte. Auch die Künstlerin Vita Petersen und ihr Bruder, der Kunsthistoriker Otto von Simson besuchten des Öfteren ihren Großvater Franz Oppenheim.
Bemerkenswert sind die Schlafzimmer der Dame und des Herrn, die Messel im Gegensatz zu früheren Entwürfen und wohl auf ausdrücklichen Wunsch der Bauherren aus dem Obergeschoss ins Erdgeschoss verlegte. Sämtliche Wohnräume öffnen sich zum Garten, wobei nur das in der Mittelachse liegende Boudoir durch eine kleine Treppe eine direkte Verbindung zum Garten aufweist. Speisezimmer und Wohnzimmer besitzen jedoch über die Halle als Übergangsraum zwischen Innen und Außen eine indirekte Verbindung zum Garten.
Im Obergeschoss erschließt eine der Galerie entsprechende Diele die zahlreichen ehemaligen Fremdenzimmer, Zimmer für höhergestellte Angestellte und Wirtschaftsräume wie Nähzimmer und Wäschekammer. Über dem Eingang erhielt Kurt Oppenheim, der Sohn Franz Oppenheims aus erster Ehe, ein kleines Appartement. Eine Tür am nördlichen Ende der Diele führt zu den ehemaligen Mädchenzimmern im Dachgeschoss des Nebenflügels und zum Aufgang ins Dachgeschoss des Hauptflügels.
Gartenanlagen

Für die Gestaltung des ausgedehnten Gartens zog Messel den Gartenarchitekten Willy Lange hinzu. Während sich Messel um die Gesamtkonzeption und um die architektonischen Elemente wie Tore und Umfassungsmauern kümmerte, überließ er die Detailplanung der einzelnen Gartenbereiche mit Bepflanzungsplänen und Schmuckbeete Lange. Dieser publizierte den Garten des Landhauses Oppenheim anonymisiert als reiches Gartenheim in Wannsee in seinem Lehrbuch Gartengestaltung der Neuzeit. Mehrere von ihm selber angefertigte Aufnahmen, teils sogar in Farbe, dokumentieren den Garten und seine Verbindung mit dem Landhaus. Die starke Rolle der Bauherrin Margarete Oppenheim überliefert er als die einer „Gartenfreundin mit ausgeprägter persönlicher Neigung und gärtnerischem Wollen“.[14]
Den Hauptteil des Gartens nahm ein großes, auf die Mittelachse des Landhauses bezogenes Rasenparterre ein. Zwei Alleen fassten die leicht abschüssige, zur Straße abfallende Rasenfläche links und rechts ein. Die Alleen führten zu zwei durch Buchenhecken eingefassten Rundplätzen, in die auch der halboval-förmige Weg endete, der die Rasenfläche nach unten abschloss. Zwei direkt an diesen Weg gepflanzte Pyramidenpappeln betonten nochmals die Symmetrie der Anlage. Gebüschgruppen begleiteten die Alleen auf der Seite der Rasenfläche und mit Blumenbeeten umpflanzte Fliederbüsche belebten die Rasenfläche bei den Rondellen. Max Liebermanns Pastell Der Garten der Villa Oppenheim von 1925 zeigt den Blick in die nördliche Baumallee mit den seit der Anpflanzung deutlich gewachsenen Bäumen.
-
Südliche Verbindungstreppe der Terrassen, im Hintergrund die Lauben des Rosengartens -
Nördliche Baumallee entlang der Rasenfläche -
Max Liebermann: Der Garten der Villa Oppenheim, 1925 (nördliche Baumallee)
Vor der Gartenfront des Landhauses leiteten zwei durch Böschungen begrenzte Terrassen zum Garten über, die durch seitliche Treppen als Fortsetzung der Baumalleen verbunden waren. Ihre Mitten – in der Achse der Gartenfassade – betonte Messel bei der oberen Terrasse mit einer Rosenlaube und einem in die Stützmauer integrierten Brunnen mit Muschelbecken, bei der unteren Terrasse mit einer halbkreisförmigen Ausweitung, möbliert mit einem Steintisch und Steinbänken. Die Fotografien Willy Langes dokumentieren einen späteren Umbau, bei dem der Brunnen zugunsten einer Treppe zwischen den beiden Terrassen entfernt wurde. Am Fuß der Böschung der unteren Terrasse lagen Rosenbeete. Die obere Terrasse begleiteten auf beiden Seiten Rosenbeete, auf Seite der Böschung unterbrochen von sechs Podesten mit Stein-Amphoren, am Fuß der Böschung wuchsen Pelargonien. Auf der Rasenfläche vor der unteren Terrasse ließ Messel alte, knorrige Obstbäume anpflanzen, die aber bald nach seinem Tod wieder entfernt wurden.[14]
Rechts von der Gartenfassade lag der mit einer Pergola abgeschlossene Boccia-Garten mit der vertieft angelegten Boccia-Bahn. Ein schmalerer Weg führte entlang der Grundstücksgrenze bis zu einem an der Straße gelegenen Pavillon. Kurz vor dem Pavillon zweigte eine kurze Verbindung zum halboval-förmigen Weg am Ende des Rasenparterres ab. An der linken Schmalseite des Hauses lag der durch einen halbkreisförmigen Laubengang begrenzte Rosengarten, berankt mit der Kletterrose Crimson Rambler. Für die Fläche dieses Gartenteils wählte Willy Lange eine bunt gemischte, aber wohlausgeprobte Sommerblumenwiese.[15] Ein geschwungener Weg führte durch die dichte Baumbepflanzung zur Pförtnerhaus und von dort wiederum in den halboval-förmigen Weg am Ende des Rasenparterres.
-
Untere Terrasse -
Mittelteil der Terrassen im Ursprungszustand: Brunnen mit Muschelbecken -
Mittelteil der Terrassen nach Umbau mit neuer Verbindungstreppe -
Blick aus der Halle auf den mit einer Pergola abgeschlossenen Boccia-Garten
Auf der Rückseite des Hauses lag ein kleiner, eher privater Garten, der sich auf den Sitzplatz auf der kleinen Terrasse zwischen Eingang und Küchenflügel bezog. Willy Lange charakterisiert ihn als „abgeschlossenes Gärtchen, es ist gedacht wie eine Erweiterung des Hausplatzes ins Freie, um wenige Schritte im Gespräch auf und ab zu gehen.“[16] Eine Buchenhecke trennte ihn von der Vorfahrt und der Fahrstraße und eine Eibenhecke verdeckte den Weg, der von der Vorfahrt entlang der Grundstücksgrenze zum Eingang am Küchentrakt führte. Die dunkelgrüne Hecke kontrastierte den hellen Stein des kleinen Brunnens, der als Blickfang des Gartens auf der langen Achse einen ovalen, durch Blumenbeete und kleine Bäumchen eingefassten Kiesplatzes lag. Die Rasenflächen zwischen begrenzenden Hecken und Blumenbeeten schmückten bepflanzte Vasen. Die Bepflanzung gegen das Haus bildeten Jasmin- und Hortensienbüsche.
1911 erwarb das Ehepaar Oppenheim über den Kunsthändler Paul Cassirer einen Brunnen mit vier Pinguinen vom Bildhauer August Gaul. Dessen Aufstellung erforderte kleinere Veränderungen des Gartens, die nach Entwürfen des Direktors der Hamburger Kunsthalle Alfred Lichtwark von Paul Baumgarten ausgeführt wurden. Als neuer Blickfang des Gärtchens kam der Pinguinbrunnen in der Mitte des bisherigen ovalen Kiesplatzes auf einer neu angelegten Rasenfläche zur Aufstellung. Die Eibenhecken wurden zugunsten einer weniger dichten Bepflanzung aufgegeben und niederstämmige Obstbäumchen traten an die Stelle ihrer hochstämmigen Vorgänger. Der Brunnen galt seit Mitte der 1930er Jahre als verschwunden, wurde aber 2011/2012 in der Ausstellung Ein Zoo für Haus und Garten – Bronzen, Zeichnungen und Graphiken von August Gaul als Leihgabe der Familie Oppenheim in der benachbarten Liebermann-Villa gezeigt.[17]
-
Sitzplatz auf der Rückseite -
Gärtchen am Sitzplatz im Ursprungszustand -
Pinguinbrunnen von August Gaul
Der daran anschließende Garten zwischen dem Küchenflügel und der Grundstücksgrenze, ein rechteckiger Kiesplatz mit zentralen Apfelbaum und einer Laube war für das Dienstpersonal gedacht. Er ließ sich für das Personal gut erreichen über den Hinterausgang des Hauses im Küchentrakt. Bereits zu den Nutzgärten zählte der durch eine Mauer eingefasste Stauden- und Obstgarten in der nordöstlichen Ecke des Grundstücks, der die Bewohner des Hauses mit Obst und Blumen versorgte. Die Obstbäume wuchsen teils in Pyramidenform geschnitten, teils als freistehende Spaliere. Die wärmeliebenden Aprikosen- und Pfirsichbäume wurden als an der nördlichen Mauer befestigte Spaliere gezogen. Als angepflanzte Stauden nennt Willy Lange Garten-Margeriten, Flammenblumen und Goldruten.[10] Zu diesem Garten gehörte auch eine weitere Laube ganz in der nordöstlichen Ecke des Grundstücks. Vermutlich von diesem Standort aus zeichnete Max Liebermann 1922 ein Pastell, das den Blick über den Obst- und Staudengarten zur nördlichen Seitenfassade der Villa Oppenheim zeigt. Ebenfalls der Versorgung der Bewohnen dienten die in der südwestlichen Ecke des Grundstücks angepflanzten Himbeerbüsche und der Gemüse- und Blumengarten mit Gewächshaus auf dem Seegrundstück.
-
Garten mit Dienstbotenlaube -
Staudenbeet im Staudengarten -
Max Liebermann: Die Villa Oppenheim in Wannsee, 1922 (Blick über den Obst- und Staudengarten zum Landhaus)
Aneignung durch den NS-Staat
Franz Oppenheim war bereits 1929 auf einer Ägyptenreise gestorben. Nach dem Tod Margarete Oppenheims 1935 ging das Haus an die zwei Kinder Franz Oppenheims aus erster Ehe, die Kunstsammlung gelangte – wie testamentarisch verfügt – 1936 zur Versteigerung. Die sich seit der „Machtergreifung“ der Nationalsozialisten stetig verschlechternden Bedingungen für Juden in Deutschland verunmöglichten den Erben letztlich, das Haus in sinnvoller Form zu nutzen. Der Sohn Kurt Oppenheim lebte bereits seit 1931 in der Schweiz. Die Tochter Martha emigrierte mit ihrem Mann Ernst von Simson, den Margarete als Testamentsvollstrecker eingesetzt hatte, 1938 über die Schweiz nach Großbritannien.
Der Sicherheitsdienst der NSDAP übernahm Anfang 1937 das zunächst konfiszierte Haus und richtete darin das Wannsee-Institut unter der Tarnbezeichnung Institut für Altertumsforschung ein. Direktor des Instituts wurde im gleichen Jahr Michael Achmeteli. Bereits am 28. Januar waren große Teile der Russlandbibliothek von der Universität Breslau durch Personal des SD hier deponiert worden.[18] Der Bau mehrerer Baracken links und rechts neben dem Landhaus beschädigte die Gartenanlagen.[19][20] Die nun geheimdienstlichen Zwecken dienende Villa war aber nur eingeschränkt nutzbar, da seit Februar 1938 die Heizung defekt war.[21] Das Reichssicherheitshauptamt erwarb im August 1940 das Grundstück mit Landhaus und Gartenhaus zu einem Bruchteil seines Werts. Als Käufer für das Grundstück Zum Heckeshorn 16–18 trat die Nordhav-Stiftung auf, die in der nahegelegenen Villa Marlier, dem späteren Haus der Wannseekonferenz, ein Gästehaus für die Sicherheitspolizei und den Sicherheitsdienst der NSDAP betrieb. Möglicherweise sollte das Gelände einer Erweiterung des Gästebetriebs dienen.[20]
Auch die Nebengebäude auf dem Seegrundstück erhielten eine neue Nutzung. Die Reichsvereinigung der Juden in Deutschland richtete darin mit der Gartenbauschule Wannsee einen Umschulungsbetrieb ein. Nach Schließung der Jugend-Alijah-Schule im Herbst 1941 gelang es Jizchak Schwersenz, einen Teil der Schüler darin unterzubringen und weiter zu unterrichten. Die Jugendlichen kamen unter Aufsicht eines SS-Manns für Gartenarbeiten zum Einsatz, bis die Gruppe im Sommer 1942 aufgelöst wurde.[22] Ab 1940 dienten die Nebengebäude auch als Arbeitsbasis für die Zwangsarbeiter, die auf den zahlreichen Villengrundstücken in der Villenkolonie, die sich der NS-Staat angeeignet hatte, Garten- und Feldarbeiten verrichten mussten. Neben der Pflege der Gartenanlagen gehörte im Winter auch die Schneeräumung auf der Straße zum Großen Wannsee zu ihren Aufgaben.[23]
Krankenhaus, drohender Abriss und neue Nutzungen
_Franz_Oppenheim.jpg)
Als Folge des Kriegs waren 1945 zahlreiche Krankenhäuser in Berlin beschädigt oder zerstört. Der Verlust an Bettenkapazität gegenüber der Vorkriegszeit bewegte sich zwischen 70 und 90 Prozent.[24] Abhilfe fand sich unter anderem in den seit Kriegsende und dem Zusammenbruch des NS-Staats leerstehenden Gebäuden am Wannsee. Bereits im August 1945 eröffnete als Behelfslösung das Städtische Krankenhaus Wannsee mit 335 Betten, verteilt über mehreren Villen in der Straße Am Großen Wannsee, darunter die Villa Liebermann, das Haus Hamspohn und das Landhaus Oppenheim. Zunächst beherbergte es die Gynäkologie-Abteilung, später wurde es zur Röntgenstation mit einer Verbrennungsanlage für Krankenhausabfälle aller Art im Keller.[25] Dieses Provisorium bestand bis 1970.[25] Fotografien aus der Nachkriegszeit zeigen die Nutzung der Baracken aus der NS-Zeit für das Krankenhaus[26] und den weitgehend verwilderten Garten.[27]
Die ursprünglichen Pläne für die Zeit nach der Krankenhausnutzung sahen für das Landhaus Oppenheim wie auch das unmittelbar angrenzenden Landhaus Springer Abriss und Neubebauung vor. Dieser konnte für beide Messelbauten im letzten Moment unter anderem durch das Engagement des Landeskonservators Helmut Engel und des Architekturhistorikers Julius Posener abgewendet werden.[19]
Schließlich ließ der Verein Zentrale Krankenpflegeschule am Wannsee auf dem Grundstück Zum Heckeshorn nach Plänen des Architekten Hans Konwiarz durch die Neue Heimat die Krankenpflegeschule am Wannsee errichten. Die Grundsteinlegung war 1969, die Einweihung erfolgte 1972.[28] Bei der Aufteilung des Grundstücks wurde der Garten abgetrennt und auf der um Anteile der Nachbargrundstücke erweiterte Parzelle baute die Gagfah eine 1974 fertiggestellte Siedlung mit 54 Wohneinheiten als Miet- und Eigentumswohnungen für die Mitarbeiter der Lungenklinik Heckeshorn.[25] Damit verbunden war die Zerstörung der verbliebenen Gartenanlage, Abriss der Nebengebäude und Verlust der ursprünglichen Erschließung. Das Landhaus selber wurde nach längerem Leerstand und Verfall 1982 saniert und 1983 unter Denkmalschutz gestellt. Dabei erhielt der Turm die ursprüngliche Kupferblech-Eindeckung zurück, die wohl als Metallspende im Ersten oder Zweiten Weltkrieg entfernt und durch eine Ziegeleindeckung ersetzt worden war.
Von 1990 bis 2009 betrieb der Verein Tannenhof Berlin-Brandenburg das Landhaus als Drogentherapiezentrum. Seit einer erneuten denkmalgerechten Sanierung nutzt die Internationale Montessori-Schule in Berlin-Wannsee das Gebäude. Teil des Campus ist auch das ehemalige kleine Gärtnerhaus Zum Heckeshorn 40, das die Schule als bilinguales Kinderhaus am Wannsee nutzt. Am 14. Juli 2016 enthüllte der Staatssekretär für Kulturelle Angelegenheiten Tim Renner am Landhaus eine Berliner Gedenktafel zur Erinnerung an Margarete und Franz Oppenheim.[29]
Literatur
- Elke Blauert, Robert Habel, Hans-Dieter Nägelke, in Zusammenarbeit mit Christiane Schmidt (Hrsg.): Alfred Messel (1853–1909). Visionär der Großstadt. (Ausstellungskatalog der Kunstbibliothek Staatliche Museen zu Berlin und des Architekturmuseums der Technischen Universität Berlin) Edition Minerva, München 2009, ISBN 978-3-938832-53-0, .
- Gideon Botsch: Geheime Ostforschung im Sicherheitsdienst. Entstehung und Tätigkeit des Wannsee-Instituts 1935–1945. In: Zeitschrift für Geschichtswissenschaften, Jahrgang 2000, Heft 6, S. 509 ff.
- Robert Habel: Alfred Messels Wertheimbauten in Berlin. Der Beginn der modernen Architektur in Deutschland. Gebrüder Mann, Berlin 2009, ISBN 978-3-7861-2571-6, S. 757–764.
- Landesdenkmalamt Berlin (Hrsg.): Bezirk Steglitz-Zehlendorf, Ortsteil Wannsee. (= Denkmaltopographie Bundesrepublik Deutschland, Denkmale in Berlin.) Michael Imhof, Petersberg 2013, ISBN 978-3-86568-931-3, S. 110–111.
Weblinks
- Landhaus Dr. Franz Oppenheim im Architekturmuseum der TU Berlin
- Eintrag 09075572 in der Berliner Landesdenkmalliste
Einzelnachweise
- ↑ a b Robert Habel: Alfred Messels Wertheimbauten in Berlin. Der Beginn der modernen Architektur in Deutschland. Gebrüder Mann, Berlin 2009, ISBN 978-3-7861-2571-6, S. 758.
- ↑ Elke Blauert, Robert Habel, Hans-Dieter Nägelke, in Zusammenarbeit mit Christiane Schmidt (Hrsg.): Alfred Messel (1853–1909). Visionär der Großstadt. (Ausstellungskatalog der Kunstbibliothek Staatliche Museen zu Berlin und des Architekturmuseums der Technischen Universität Berlin) Edition Minerva, München 2009, ISBN 978-3-938832-53-0, S. 73.
- ↑ a b Alfred Messel: Ausgeführte Architekturen in Berlin. Photographische Original-Aufnahmen nach der Natur, in Lichtdruck herausgegeben von Hofphotographen Hermann Rückwardt. Berlin 1897.
- ↑ a b Elke Blauert, Robert Habel, Hans-Dieter Nägelke, in Zusammenarbeit mit Christiane Schmidt (Hrsg.): Alfred Messel (1853–1909). Visionär der Großstadt. (Ausstellungskatalog der Kunstbibliothek Staatliche Museen zu Berlin und des Architekturmuseums der Technischen Universität Berlin), Edition Minerva, München 2009, ISBN 978-3-938832-53-0, S. 77.
- ↑ Robert Habel: Alfred Messels Wertheimbauten in Berlin. Der Beginn der modernen Architektur in Deutschland. Gebrüder Mann, Berlin 2009, ISBN 978-3-7861-2571-6, S. 597.
- ↑ Robert Habel: Alfred Messels Wertheimbauten in Berlin. Der Beginn der modernen Architektur in Deutschland. Gebrüder Mann, Berlin 2009, ISBN 978-3-7861-2571-6, S. 693.
- ↑ Elke Blauert, Robert Habel, Hans-Dieter Nägelke, in Zusammenarbeit mit Christiane Schmidt (Hrsg.): Alfred Messel (1853–1909). Visionär der Großstadt. (Ausstellungskatalog der Kunstbibliothek Staatliche Museen zu Berlin und des Architekturmuseums der Technischen Universität Berlin) Edition Minerva, München 2009, ISBN 978-3-938832-53-0, S. 204.
- ↑ Heckeshorn, Zum. In: Berliner Adreßbuch, 1927, Teil 4, Wannsee, S. 1486.
- ↑ Robert Habel: Alfred Messels Wertheimbauten in Berlin. Der Beginn der modernen Architektur in Deutschland. Gebrüder Mann, Berlin 2009, ISBN 978-3-7861-2571-6, S. 759.
- ↑ a b Willy Lange: Die Gartengestaltung der Neuzeit. Leipzig 1922, S. XVI.
- ↑ a b Felix Gilbert: Lehrjahre Im Alten Europa. Erinnerungen 1905-1945. Siedler Verlag, Berlin 1989, ISBN 3-88680-167-5, S. 68–70.
- ↑ Deutsche Bauzeitung, 59. Jahrgang 1925, Nr. 83, S. 659.
- ↑ Gedenk- und Bildungsstätte Haus der Wannsee-Konferenz: Ausstellung Villencolonie Alsen am Großen Wannsee, Tafel Eduard und Johanna Arnhold. (PDF; 406 kB) Abgerufen am 19. September 2020.
- ↑ a b Willy Lange: Die Gartengestaltung der Neuzeit. Leipzig 1922, S. 13.
- ↑ Willy Lange: Die Gartengestaltung der Neuzeit. Leipzig 1922, S. 15.
- ↑ Willy Lange: Die Gartengestaltung der Neuzeit. Leipzig 1922, S. 14.
- ↑ Presseinformation der Liebermann-Villa am Wannsee zur Ausstellungseröffnung am 27. Oktober 2011. (PDF; 147 kB) Abgerufen am 19. September 2020.
- ↑ Gideon Botsch: Geheime Ostforschung im Sicherheitsdienst. Entstehung und Tätigkeit des Wannsee-Instituts 1935–1945. In: Zeitschrift für Geschichtswissenschaften, Jahrgang 2000, Heft 6, S. 509 ff.
- ↑ a b Robert Habel: Alfred Messels Wertheimbauten in Berlin. Der Beginn der modernen Architektur in Deutschland. Gebrüder Mann, Berlin 2009, ISBN 978-3-7861-2571-6, S. 761.
- ↑ a b Michael Haupt (Hrsg.): Villencolonie Alsen am Großen Wannsee. (Begleitband zur Ausstellung in der Gedenk- und Bildungsstätte Haus der Wannsee-Konferenz) Berlin 2012, ISBN 978-3-9813119-3-8, S. 77.
- ↑ Michael Haupt (Hrsg.): Villencolonie Alsen am Großen Wannsee. (Begleitband zur Ausstellung in der Gedenk- und Bildungsstätte Haus der Wannsee-Konferenz) Berlin 2012, ISBN 978-3-9813119-3-8, S. 76.
- ↑ Michael Haupt (Hrsg.): Villencolonie Alsen am Großen Wannsee. (Begleitband zur Ausstellung in der Gedenk- und Bildungsstätte Haus der Wannsee-Konferenz) Berlin 2012, ISBN 978-3-9813119-3-8, S. 61.
- ↑ Michael Haupt (Hrsg.): Villencolonie Alsen am Großen Wannsee. (Begleitband zur Ausstellung in der Gedenk- und Bildungsstätte Haus der Wannsee-Konferenz) Berlin 2012, ISBN 978-3-9813119-3-8, S. 60.
- ↑ Architekten- und Ingenieur-Verein zu Berlin (Hrsg.): Krankenhäuser. (= Berlin und seine Bauten, Teil VII, Band A.) Ernst & Sohn, Berlin 1997, ISBN 3-937251-58-8, S. 89.
- ↑ a b c Lungenklinik Heckeshorn – Die Tuberkulosebekämpfung in Berlin und die Vor- und Gründungsgeschichte von Heckeshorn. heckeshorn.de; abgerufen am 19. September 2020.
- ↑ Michael Haupt (Hrsg.): Villencolonie Alsen am Großen Wannsee. (Begleitband zur Ausstellung in der Gedenk- und Bildungsstätte Haus der Wannsee-Konferenz) Berlin 2012, ISBN 978-3-9813119-3-8, S. 33.
- ↑ Michael Haupt (Hrsg.): Villencolonie Alsen am Großen Wannsee. (Begleitband zur Ausstellung in der Gedenk- und Bildungsstätte Haus der Wannsee-Konferenz) Berlin 2012, ISBN 978-3-9813119-3-8, S. 34.
- ↑ Geschichte. Wannseeschulen für Gesundheitsberufe, wannseeschulen.de; abgerufen am 19. September 2020.
- ↑ Pressemitteilung, 12. Juli 2016. Senatsverwaltung für Kultur; abgerufen am 19. September 2020.
Koordinaten: 52° 25′ 49,1″ N, 13° 9′ 47,4″ O