Kuppelschalter

Ein Kuppelschalter (KS, auch Kupplungsschalter, teilweise auch Netzumschalter) ist in der elektrischen Energietechnik ein zum Zu- und Wegschalten einer systemrelevanten Energieerzeugungs- oder Energieverbrauchsanlage verwendeter, oftmals fernbetätigter, Schalter.[1]
Funktion
Der Kuppelschalter unterscheidet sich von anderen elektrischen Schaltern dadurch, dass er systemrelevante, besonders wichtige Anlagenteile verbindet. Ist der Kuppelschalter eigensicher ausgeführt, so wird der jeweilige Schaltzustand überwacht; bei besonders wichtigen und verlässlich funktionierenden Trenn- und Zuschaltfunktionen werden auch zwei Kuppelschalter in Reihe hintereinandergeschaltet (redundanter Aufbau).
Jeder Kuppelschalter muss mindestens ein Lastschaltvermögen aufweisen, das der Nennleistung der zu koppelnden oder trennenden elektrischen Anlage entspricht. Dazu können Schütze, Motorschutzschalter oder mechanische Leistungs- oder Lasttrennschalter verwendet werden. Sind besondere Schutzanforderungen mit dem Schalten verbunden, so muss der Kuppelschalter u. U. die Kurzschlussleistung schalten können (z. B. wenn ein Fehler anliegt und hohe Überlast- oder Kurzschlussströme geschaltet werden müssen).
Selbsttätige Kuppelstelle schützt die Anlage in der Regel nicht gegen Überlast und Kurzschluss.[2] Inwieweit beim Schalten des Kuppelschalters eine mechanische Überlappung zwischen den Schließer- und Öffnerkontakten eintreten soll, bestimmt die jeweilige Anwendung.
Kuppelstelle/Entkuppelstelle
Die Kuppel- bzw. Entkuppelstelle bezeichnet den Punkt im Versorgungsnetz, bei dem die Koppelung / Entkoppelung in das oder vom Netz erfolgt. Diese Stelle kann, muss aber nicht identisch sein mit:
- dem Generatorschalter (GS) oder
- einem Netzleistungsschalter (NS).
Beispiele

Zentraler Netz- und Anlagenschutz
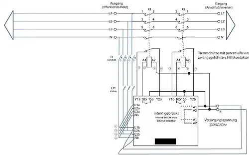
Ein Zentraler Netz- und Anlagenschutz (NA-Schutz, Entkuppelschutz) besteht aus zwei wesentlichen Komponenten:
- Netz- und Anlagenschutzrelais, das das Stromnetz überwacht, und
- ein oder zwei Kuppelschalter.
Es kann sich dabei um eine Eigenkonstruktion handeln oder z. B. nach der VDE 4105 bei Anlagen zur Erzeugung von erneuerbaren Energien[3] um eine „typgeprüfte Schutzeinrichtung mit Konformitätsnachweis“. Letztere überwacht ständig Spannung und Frequenz des Versorgungsnetzes auf Einhaltung der vorgegebenen Toleranzen und trennt die Anlage bei einer vorgegebenen Abweichung allpolig vom Versorgungsnetz oder schaltet sie wieder zu.[4]
ENS
Eine Einrichtung zur Netzüberwachung mit zugeordneten Schaltorganen (ENS) arbeitet ähnlich dem NA-Schutz und ist in Deutschland und Österreich für kleine Stromerzeugungsanlagen bis 30 kW Maximalleistung zugelassen.[5] Dadurch soll eine Inselbildung und dadurch erfolgende Rückspeisungen in das Energieversorgungsnetz verhindert werden, weil dies möglicherweise zu gefährlichen Auswirkungen führen könnte.
Die Fa. KACO hat z. B. mit dem Powador-protect eine Ansteuerung interner Kuppelschalter mehrerer KACO-Wechselrichter und auch externer Kuppelschalter entwickelt, welche die gesamte Abschaltkette NA-Schutz/Kuppelschalter (Entkuppelschutz) kombiniert und einfehlersicher[6] macht und ein zusätzliches Maß an Sicherheit bietet.
Quellen
- ↑ Erzeugung oder Verbrauch von Energie ist grundsätzlich nicht möglich, sondern nur die Umwandlung. Es wird im Weiteren dennoch die umgangssprachliche und undifferenzierte Verwendung der Worte Erzeugung und Verbrauch in Verbindung mit der Energieumwandlung verwendet.
- ↑ Dieser Schutz ist anderweitig, in Deutschland z. B. gemäß VDE 0100-712, VDE 0100-430 oder VDE 0100-530, sicherzustellen.
- ↑ Z. B. Photovoltaik, Blockheizkraftwerke und Biogas- oder Windkraftanlagen
- ↑ Im TN-C-Netz und TN-C-Teil eines TN-C-S-Netzes dürfen grundsätzlich nur die drei Phasen geschaltet werden. In den anderen Netzformen muss u. U. auch noch der Neutralleiter mit geschaltet werden. Das Schalten bzw. Trennen des PE- oder PEN-Leiters ist grundsätzlich unzulässig.
- ↑ Die VDE-AR-N 4105 verlangt in Kap. 6.1 den Einsatz eines zentralen NA-Schutzes für Photovoltaikanlagen über 30 kVA (Wechselrichter-) Anlagenleistung. In Österreich: TOR Teil D.4, Pkt. 5 und 6 iVm ÖVE/ÖNORM E 8001-4-712.
- ↑ Das Betriebsmittel überwacht selbstständig seine Funktion und schaltet beim Erkennen eines (internen) Fehlers automatisch ab bzw. verhindert das Wiedereinschalten (VDE-AR-N 4105 A.6).