Flughafen Kuala Lumpur
| Kuala Lumpur International Airport (KLIA) Lapangan Terbang Antarabangsa Kuala Lumpur 吉隆坡国际机场 கோலாலம்பூர் அனைத்துலக விமானநிலையம | |||
|---|---|---|---|
![]() | |||
| Das Hauptterminalgebäude, im Hintergrund der Tower | |||
| |||
| Kenndaten | |||
| ICAO-Code | WMKK | ||
| IATA-Code | KUL | ||
| Koordinaten | 2° 44′ 44″ N, 101° 42′ 36″ O | ||
| Höhe über MSL | 21,34 m (70 ft) | ||
| Verkehrsanbindung | |||
| Entfernung vom Stadtzentrum | 44 km südlich von Kuala Lumpur | ||
| Straße | |||
| Bahn | KLIA Ekspres | ||
| Nahverkehr | Nahverkehrszüge, Busse | ||
| Basisdaten | |||
| Eröffnung | 27. Juni 1998 | ||
| Betreiber | Malaysia Airports (Sepang) SDN BHD[1] | ||
| Fläche | 1000 ha | ||
| Terminals | 2 | ||
| Passagiere | 48.930.409[2] (2014) | ||
| Luftfracht | 753.899 t[2] (2014) | ||
| Flug- bewegungen |
339.650[2] (2014) | ||
| Kapazität (PAX pro Jahr) |
etwa 45 Millionen (2012) | ||
| Beschäftigte | 1800 beim Flughafenbetreiber | ||
| Start- und Landebahnen | |||
| 14R/32L | 4000 m × 60 m Asphalt/Beton[3] | ||
| 14L/32R | 4019 m × 60 m Asphalt/Beton | ||
| 15/33 | 3960 m × 60 m Asphalt/Beton[4] | ||
Der Kuala Lumpur International Airport (Abkürzung: KLIA, IATA-Code: KUL, ICAO-Code: WMKK) ist der größte malaysische Flughafen. Er wurde am 27. Juni 1998 eröffnet und liegt im Distrikt Sepang des malaysischen Bundesstaates Selangor, 44 Kilometer südlich der Hauptstadt Kuala Lumpur. Der Flughafen dient den malaysischen Fluggesellschaften Malaysia Airlines und AirAsia als Drehkreuz.
Geographie und Verkehrsanbindung
Der Flughafen befindet sich am südlichen Ende des etwa 50 Kilometer langen sogenannten Multimedia Super Corridors, einer Sonderwirtschaftszone, die sich vom Norden von Kuala Lumpur aus über die neu gebauten Städte Putrajaya und Cyberjaya, den Formel-1-Kurs in Sepang bis hin zum Flughafen im Süden erstreckt. Der Flughafen wurde auf einem Gebiet ehemaliger Ölpalmplantagen errichtet. Auch heute noch ist er von solchen Plantagen umgeben. Im Umkreis von 100 km leben mehr als sieben Millionen Menschen, also rund ein Drittel der malaysischen Bevölkerung. Sechs der zehn größten Städte Malaysias sind weniger als 100 km vom Flughafen entfernt, zum Stadtzentrum Kuala Lumpurs sind es 44 km, zur Küste 16 km.
Zwar liegt der Flughafen strategisch günstig als Zwischenstopp oder Umsteigeort für Flüge von Europa nach Indonesien, Australien, Neuseeland und in die Philippinen, steht aber in Konkurrenz mit den benachbarten südostasiatischen Drehkreuzen, den Flughäfen Singapur, Bangkok und Jakarta.
Seit 2002 verkehren der KLIA Ekspres und der KLIA Transit in die Innenstadt Kuala Lumpurs. Beide fahren in Kuala Lumpur im City-Air-Terminal ab, einem Teil des Hauptbahnhofs und kommen in der untersten Ebene im Hauptabfertigungsgebäude des Flughafens an. Mehrere Fluggesellschaften bieten ihren Kunden die Möglichkeit, bereits im City-Air-Terminal einzuchecken. Das aufgegebene Gepäck fährt mit dem KLIA Ekspres zum Flughafen.
Der KLIA Ekspres fährt die 57 Kilometer lange Strecke ohne Unterbrechung, während der KLIA Transit an drei zusätzlichen Stationen anhält. Die beiden Endbahnhöfe sind mit Bahnsteigtüren ausgestattet, welche erst dann automatisch öffnen, wenn der Zug steht.
Weiterhin ist der Flughafen durch Schnellbusse privater Unternehmen an die Innenstadt angebunden. Endhaltepunkte sind der Zentralbahnhof Kuala Lumpur Sentral sowie der Busbahnhof Puduraya.
Flughafengelände

Das Flughafenareal ist derzeit insgesamt rund zehn km² groß. Fast alle Flughafeneinrichtungen befinden sich zwischen den beiden zueinander parallelen, vier Kilometer langen Start- und Landebahnen, ähnlich dem Flughafen München. Die zwei bisher realisierten Start- und Landebahnen verlaufen in Nordwest-Südost-Richtung.
Die autobahnähnliche Schnellstraße und die Schnellbahntrasse kommen von Norden auf den Flughafen zu. Die Schnellstraße macht auf Höhe des Towers eine Linkskurve und teilt sich dort auf die verschiedenen Anfahrten zu den Abfertigungsgebäuden und den anderen Infrastruktureinrichtungen auf. Zwischen diesen Straßen befindet sich der 132 Meter hohe Flughafentower, der nach Bangkok (132,2 m) zweithöchste Tower weltweit.
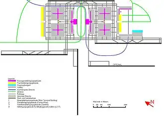
Das zentrale Hauptabfertigungsgebäude mit seinen charakteristischen Zeltdächern und das vorgelagerte Pierabfertigungsgebäude, der Contact Pier – ein Gebäudeschlauch mit Flugsteigen – liegen zwischen den beiden Start- und Landebahnen und senkrecht zu diesen. Vor diesem Pier verlaufen zwei Rollbahnen, die die beiden Pisten miteinander verbinden. Südlich davon befindet sich das bisher einzige, kreuzförmige Satellitenabfertigungsgebäude, das durch einen Pendelzug (Aerotrain) mit dem Contact Pier verbunden ist und ausschließlich zur Abfertigung internationaler Passagiere dient.
Westlich des Satelliten befindet sich heute eine große quadratische unbebaute Fläche, auf der in Zukunft das zweite Satellitengebäude errichtet werden soll. Südlich des Satelliten stehen die Frachtabfertigungsgebäude, das ehemalige Abfertigungsgebäude für Billigfluggesellschaften (Low-Cost-Carrier-Terminal) und, noch weiter südlich, entlang der westlichen Piste, die Hangars der ansässigen Malaysia Airlines und Kerosintanks.
Zwischen dem Satelliten und dem Low-Cost-Carrier-Terminal befindet sich ein kleiner Kontrollturm, der nur für die Überwachung der Flugzeugbewegungen auf dem Vorfeld zuständig ist.
Geschichte
Hintergründe
Bereits 1990 begann die malaysische Regierung mit der Planung eines neuen, leistungsstarken Flughafens für die Hauptstadt, da der alte Flughafen Sultan Abdul Aziz Shah in Subang schon lange chronisch überlastet war und keine weiteren Ausbaumöglichkeiten bot; der größte Unterstützer des Projektes war zu dieser Zeit der damalige malaysische Premierminister Mahathir bin Mohamad. Mit dem neuen Flughafen sollte der Kapazitätsbedarf für das Verkehrsaufkommen der nächsten Dekaden gedeckt werden.
Bauarbeiten und Fertigstellung
Die Baukosten für die erste Ausbaustufe beliefen sich auf mehr als 3,5 Mrd. US-Dollar (etwa 2,73 Mrd. Euro, Kurs: 10. November 2006).[5] Nach nur vier Jahren und sechs Monaten waren die Arbeiten abgeschlossen – bis dahin war noch nie zuvor ein Flughafen solcher Größe in so einer kurzen Bauzeit errichtet worden. Über 25.000 Bauarbeiter aus verschiedenen Ländern wirkten auf der damals größten Baustelle Malaysias mit.
Bevor die ersten Bautrupps anrücken konnten, musste ein Orang-Asli-Dorf (Ureinwohner) mit 85 Familien in eine andere Gegend umgesiedelt werden. Damit diese weiterhin Landwirtschaft betreiben konnten, wurden ihnen dort zum Ausgleich andere Agrarflächen zugeteilt.[6] Die Tatsache, dass nur diese Orang Asli-Siedlung in dem Gebiet existierte, war ein ausschlaggebender Standortfaktor und machte die Ansiedlung des neuen Flughafens dort attraktiv.

Am 27. Juni 1998 wurde der Flughafen offiziell eingeweiht. Überschattet wurde der Festakt von Problemen mit dem Gepäckfördersystem, welches zusammenbrach, außerdem stürzten die Systeme mehrerer Fluggastbrücken und Parkpositions-Anweisungsbildschirme des Visual docking guidance systems ab. Infolgedessen bildeten sich lange Schlangen im ganzen Flughafen, viele Gepäckstücke gingen verloren oder wurden erst Tage später ihren Besitzern zugeschickt.[7]
Situation heute
Auf einer Fläche von zehn km² erstreckt sich der Flughafen in seiner ersten Ausbaustufe. Von Anfang an wurde er so geplant, dass die Möglichkeit bestand, ihn stufenweise bis zu einer Kapazität von 80 Millionen Passagieren pro Jahr auszubauen. Heute liegt die Kapazität bei rund 25 Millionen Reisenden, wobei im ersten vollen Betriebsjahr (1999) lediglich 13,2 Millionen abgefertigt wurden.
Nur 21 Mio. Passagiere konnten 2004 abgefertigt werden. Ursprünglich wurden etwa 35 Mio. Passagiere für dieses Jahr prognostiziert. Der Frachtsektor rangiert auf deutlich höheren Rängen im weltweiten Vergleich (ACI zufolge Platz 29), als etwa die Passagierbeförderung (Platz 47) oder die Anzahl der Flugbewegungen. Diese stieg ab 2002 kontinuierlich und beförderte 2005 KLIA damit zum ersten Mal in die Gruppe der weltweit 100 größten Flughäfen in dieser Kategorie.
Siehe auch: Verkehrszahlen
Abfertigungsgebäude
Hauptabfertigungsgebäude (Main Terminal Building)

Das Hauptabfertigungsgebäude befindet sich zwischen den beiden Runways und hat im Grundriss eine rechteckige Form. Das Dach besteht aus 39 quadratischen Dacheinheiten, welche es ermöglichen, die Halle schnell und günstig auszubauen, indem weitere Gebäudeeinheiten angefügt werden.
Das Bauwerk besteht aus fünf übereinanderliegenden Ebenen. Die unterste Ebene beherbergt den Flughafenbahnhof, von dem die KLIA-Ekspres-Züge alle 15 bis 20 Minuten ohne bzw. die KLIA Transit-Züge alle 30 Minuten mit Zwischenhalten bis zum Hauptbahnhof Kuala Lumpurs fahren.[8] In der zweiten Ebene befinden sind die Zugänge zum Pan Pacific Hotel und dem Parkhaus, welches sich zwischen dem Hauptabfertigungsgebäude und dem Tower befindet. In der dritten Ebene werden alle ankommenden Passagiere abgefertigt, so dass sich hier unter anderem Gepäckausgabebänder, Passkontrolle, Zollkontrolle, Geldwechsler sowie Hotel- und Tourorganisationen befinden. In der vierten Ebene ist hauptsächlich die Gepäckförderanlage untergebracht. In der obersten, der fünften Etage, sind die Einrichtungen für die abfliegenden Passagiere angesiedelt.

Man gelangt durch einen der sechs Zugänge von der doppelstöckigen Anfahrtsstraße ins Innere der Halle. Die Anfahrtsstraße ist auf 350 Meter Länge überdacht. An der der Zufahrtsstraße gegenüberliegenden Seite gibt es einen Zugang zur Besucherterrasse des Flughafens. In der Halle gibt es sechs parallele Check-in-Inseln mit jeweils 36 Check-in-Schaltern. An den Enden der „Inseln“ befinden sich die Ticketschalter der Fluggesellschaften.
Hinter der sich auf der vierten Ebene befindenden Passkontrolle schließt sich ein Verbindungsgebäude an, das in den Contact-Pier mündet. Dort kann man geradeaus zu der Aerotrain-Station gehen und einen Zug zum Satelliten-Abfertigungsgebäude nehmen oder zu den Flugsteigen im Contact-Pier gehen, in dem es Flugsteige in der vierten Ebene für internationale Flüge und Flugsteige in der darunterliegenden Ebene für nationale Flüge gibt.
Ankommende Fluggäste internationaler Flüge gelangen durch das zentrale Verbindungsgebäude ins Hauptabfertigungsgebäude. Hinter der Passkontrolle gibt es in einer weitläufigen Halle zehn Gepäckausgabebänder. Um in den öffentlich zugänglichen Bereich zu kommen, muss die Zollkontrolle durchlaufen werden. Ankommende Passagiere von Inlandsflügen gelangen direkt aus der dritten Ebene des Piergebäudes über das dezentrale Verbindungsgebäude in die Gepäckausgabehalle (national) mit ihren zwei Gepäckausgabebändern, ohne eine Passkontrolle zu durchlaufen.
Siehe auch: Abläufe der Passagierabfertigung
Pierabfertigungsgebäude (Contact Pier)

Der Contact-Pier ist ein länglicher Gebäudeschlauch, an welchem auf beiden Seiten Flugzeuge an den Fluggastbrücken andocken können. Im Contact-Pier gibt es drei Ebenen. Um die Aerotrain-Station unterzubringen, ist der Contact-Pier in der Mitte etwa zweimal breiter als der Rest des Gebäudes.
In der obersten Ebene befinden sich die Aerotrain-Station und die Flugsteige für internationale Flüge, in der darunter liegenden dritten Ebene die Flugsteige für nationale Flüge, in der zweiten Ebene, die sich auf Vorfeldhöhe befindet, sind Warteräume/Flugsteige für Flüge untergebracht, für die die Flugzeuge nicht auf einer gebäudenahen Parkposition parken und deswegen die Passagiere mit Bussen dorthin gefahren werden. Wie überall im Flughafen muss man die Durchleuchtungsprozedur durchlaufen, um einen Warteraum (Wartelounge) betreten zu können.
Passagiere internationaler Flüge benutzen das zentrale Verbindungsgebäude, um zu Flugsteigen im Piergebäude zu gelangen.
Passagiere, die einen Inlandsflug benutzen wollen, gehen nicht durch das zentrale, sondern ein zusätzliches Verbindungsgebäude, um zum Contact-Pier zu gelangen. Dieses Verbindungsgebäude befindet sich auf der dritten Ebene und wird über Fahrtreppen oder Aufzüge aus dem Check-in-Bereich der nationalen Flüge in der fünften Ebene erreicht. Es liegt östlich des zentralen Verbindungsgebäudes und kann von Passagieren internationaler Flüge nicht benutzt werden, da es die beiden Gebäude nur auf der dritten Ebene verbindet. Ein identisches Verbindungsgebäude soll gebaut werden, wenn das Hauptabfertigungsgebäude nach Westen erweitert wird.
Im ganzen Gebäudeschlauch sind Fahrsteige, sogenannte Travellators, installiert, welche die Wege zu weit entfernten Flugsteigen zeitlich verkürzen.
Die kleinen Flugzeugparkpositionen nördlich des Contact-Piers können nur von Flugzeugen bis zur Größe eines Schmalrumpfflugzeuges benutzt werden. Diese Positionen haben nur eine Fluggastbrücke je Flugsteig und können nur von der dritten Ebene, dem nationalen Bereich, erreicht werden. Auf den Parkpositionen südlich des Contact-Piers können alle Flugzeuge bis zur Größe einer Boeing 747 parken. Diese Parkpositionen sind mit zwei Fluggastbrücken ausgerüstet und können entweder von einem „Jumbo“ (Boeing 747) oder von zwei Boeing 737 gleichzeitig benutzt werden.
Siehe auch: Abläufe der Passagierabfertigung
Satellitenabfertigungsgebäude (Satellite)


Das Satellitenabfertigungsgebäude ist ein dreistöckiger, kreuzförmiger Bau, an dem ausschließlich internationale Flüge abgefertigt werden und der die Ebenen zwei bis vier umfasst. Die Passagiere werden mit dem Aerotrain vom Contact-Pier zum Satelliten gebracht. 19 der 26 gebäudenahen Flugzeugparkpositionen sind mit zwei Fluggastbrücken bestückt, sodass ein schnelles Ein- und Aussteigen auch bei großen Flugzeugen gewährleistet ist. Außer am Gebäudeflügel mit der Aerotraintrasse (nur fünf Flugsteige) gibt es an jedem der Gebäudeflügel sieben Flugsteige. Um den Warteraum eines Flugsteiges betreten zu können, muss man die Durchleuchtungsanlagen durchlaufen. Die Wartesäle sind durch eine Glaswand von den Geh- und Fahrsteigen in der Mitte der Gebäudeflügel getrennt.
In der Gebäudemitte hat der Architekt des Flughafens, Kishō Kurokawa, einen Glaszylinder erbauen lassen, in dem tropische Regenwaldbäume und -pflanzen wachsen, um ein Stück Natur wieder zurückzuholen. Der Wald soll die Passagiere auf Malaysia mit seiner faszinierenden Pflanzen- und Tierwelt einstellen. Dieses Stück Tropischer Regenwald wurde nicht etwa gepflanzt, sondern größtenteils aus einem bestehenden Regenwald transplantiert. In der Mitte des Gebäudes, um den Wald herum – befinden sich u. a. die Aerotrain-Station, Geschäfte, Restaurants, Ruheräume und vier Panoramaaufzüge.
Diese Mezzanine genannte Ebene existiert nur in der Gebäudemitte und an den Enden der Gebäudeflügel. Nur im Gebäudeflügel, in welchem in der darunter liegenden Ebene die Aerotrains verkehren, wurde die Mezzanine-Ebene auf voller Länge und Breite gebaut, um Platz für das Transithotel und die riesige Malaysia-Airlines-Lounge zu schaffen. Wegen dieser Ebene kann das geschwungene Satteldach in diesem Gebäudeflügel nicht, wie in den anderen Gebäudeflügeln, von den Flugsteigen aus gesehen werden. In der Mezzanine-Ebene befinden sich weitere Geschäfte, Ruhe- und Raucherräume, Restaurants, Business-Centers und die Lounges einiger Fluggesellschaften für deren Vielflieger und First-Class-Passagiere.
Falls sich ein Flugzeug nicht auf einer gebäudenahen Parkposition befindet, werden die Fluggäste vom Flugsteig durch die Übergänge über der Servicestraße zu den Fluggastbrücken geführt. Die Passagiere werden dort noch vor Eintritt in die Fluggastbrücken über Treppen auf Vorfeldhöhe gebracht und in Bussen zum Flugzeug gefahren.
Um auch den Airbus A380 schnell abfertigen zu können, werden fünf Flugsteige den Anforderungen dieses „Superjumbos“ angepasst. Um ein schnelles Ein- und Aussteigen zu gewährleisten, werden die umgerüsteten Flugsteige mit einer dritten Fluggastbrücke ausgestattet und die Teile der vierten Ebene, an den Gebäudeflügelenden genutzt, um bestimmte Passagiergruppen (z. B. Erste-Klasse-Passagiere) bereits im Gebäude zu trennen. Der Homecarrier Malaysia Airlines selbst verfügt momentan über 6 Exemplare dieses Flugzeugtyps.
Abläufe der Passagierabfertigung

Die Abfertigung von Passagieren internationaler und nationaler Flüge läuft getrennt ab. Nur die Check-in-Flächen sind nicht räumlich getrennt. Im Folgenden sind zwei Beispiele der Abfertigungsreihenfolge aufgelistet (vergleiche Schema):
- Passagier möchte zum Flugsteig im Satellitengebäude:
- Hauptgebäude, Ebene 5: Straßenzufahrt, Check-in (1), Ebene 4: Passkontrolle (3), ca. 100 m zum Piergebäude
- Piergebäude, Ebene 4: geradeaus zur Aerotrainstation
- Aerotrainfahrt
- Satellitengebäude, Ebene 3: maximal 500 m bis zu einem Flugsteig in einem der fünf Gebäudeflügel
- Transitpassagier möchte aus dem Piergebäude (nationaler/Inlands-Flug) zu einem internationalen Flug im Satellitengebäude:
- Piergebäude, Ebene 3: Flugsteig G, geradeaus zur Passkontrolle (3) auf der rechten Seite, Ebene 4: Aerotrainstation
- Aerotrainfahrt
- Satellitengebäude, Ebene 3: maximal 500 m bis zu einem Flugsteig in einem der fünf Gebäudeflügel
Abfertigungsgebäude für Billigfluggesellschaften (LCCT)
Das Low Cost Carrier Terminal (LCCT) ist ein Abfertigungsgebäude, welches speziell an die Bedürfnisse der Billigfluggesellschaften angepasst ist.
Von 2006 bis 2014 befand es sich zwischen den beiden Runways, nordöstlich der Cargo City, 20 Straßenkilometer vom Hauptabfertigungsgebäude entfernt. Ein NadiKLIA genannter Bus pendelte zwischen Hauptabfertigungsgebäude und LCCT. Dieses LCCT nahm am 23. März 2006 nach neunmonatiger Bauzeit den Betrieb auf. Es war für eine maximale Kapazität von 10 Millionen Passagieren ausgelegt. Das 35.290 m² große, L-förmige Gebäude ist mit einem minimalen Kostenaufwand, von „nur“ 108 Millionen malaysischen Ringgit (etwa 27 Millionen Euro), errichtet worden. Dies konnte nur durch die Reduktion der Ebenen auf eine einzige, und den Verzicht auf eine Vielzahl von Einrichtungen, wie z. B. Fluggastbrücken, Vorfeldbusse, Aufzüge und Fahrtreppen, erreicht werden. Außerdem müssen alle Passagiere zu Fuß zu den Flugzeugen gehen.[9]
Bis zum Jahre 2009 wurde das Terminal durch eine Vergrößerung der Grundfläche des Gebäudes auf eine Kapazität von 30 Millionen Fluggästen pro Jahr erweitert.[10]
Am 2. Mai 2014 wurde der neu errichtete KLIA 2 Terminal eröffnet, welcher die Funktion des bisherigen LCCT komplett übernimmt. Der Terminal hat mit dem KLIA Ekspres Train sowie dem KLIA Transit Train eine direkte Verbindung zur Railwaystation des KLIA. Die Fahrtzeit beträgt 3 Minuten, was im Gegensatz zur alten Busverbindung zwischen dem KLIA-LCCT ein schnelles Wechseln zwischen beiden Terminals ermöglicht. Hauptnutzer des Gebäudes ist die einheimische AirAsia.
Für dieses neue Terminal wurde ein ganz neues Gelände westlich des Flughafens bebaut. Mit dieser Erweiterung wurde auch eine dritte Start- und Landebahn gebaut.[11] Das bisherige LCCT wird nun als Lagerhalle genutzt.[12]
Frachtabfertigungsgebäude (Advance Cargo Center)
MAS Kargo, die Frachttochter von Malaysia Airlines, betreibt ein modernes Frachtabfertigungsgebäude im Süden des Flughafens, zwischen den beiden Pisten und neben dem Low Cost Carrier Terminal. In seiner heutigen Größe ist es für eine Kapazität von einer Million Tonnen Luftfracht pro Jahr ausgelegt, kann jedoch für über drei Millionen Tonnen erweitert werden.
Das Gebäude ist mit den sichersten, modernsten und effektivsten Einrichtungen ausgerüstet und wurde auch so ausgelegt, dass riesige Mengen Luftfracht gelagert werden können, was für einen Frachtdrehkreuz essentiell ist.
Architektur/Gebäudeinterieur


Das japanische Architekturbüro Kisho Kurokawa Architect and Associates entwarf unter der Leitung des Architekten Kishō Kurokawa in Zusammenarbeit mit dem malaysischen Architekturbüro Akitek Jururancang die Abfertigungsgebäude und erstellte zugleich detaillierte Richtlinien für Höhe, Aussehen, verwendete Materialien, Bepflanzung, Beschilderung und Beleuchtung für alle Gebäude im Flughafenareal – auch für zukünftige. Die Konstruktion des Flughafens wurde von dem japanischen Bauunternehmen Taisei Corporation unter der malaysischen Dachgesellschaft KL International Airport Berhad ausgeführt.
Die Dachkonstruktion im Hauptabfertigungsgebäude besteht aus 39 gleichen quadratischen Dacheinheiten, welche abgewandelte Formen von Zeltdächern sind. Jede Dacheinheit besteht aus zwei miteinander verbundenen Schalen, einem sogenannten hyperbolischen Paraboloiden. Diese Schalen werden durch vier Stahlstützen stabilisiert, welche gleichzeitig die Dachgrate bilden. Jede dieser vier Stahlstützen besteht aus drei auseinander- und wieder zusammendriftenden Stahlrohren, zwischen denen Licht in die Check-in-Halle einfluten kann. Die Stahlstützen ruhen auf vier mit Granit verschalten konischen Säulen und laufen in der Dachspitze zusammen. An den Verbindungen (Kapitelle) zwischen Säulen und Stahlstützen beleuchten Lampen die Decke, welche mit Holzimitaten verkleidet ist. Anstatt die Last der Dachkonstruktion auf die konischen Säulen zu übertragen, hätte sich das Architektenteam auch dazu entscheiden können, die Konstruktion durch Zugglieder zwischen den Säulenkapitellen zu stabilisieren. Ein großer Vorteil der konischen Säulen besteht jedoch darin, dass sie im Innern genug Platz haben, um Regen- und Belüftungsrohre und andere Leitungen aufzunehmen. Die Dachkonstruktion soll laut Kurokawa Elemente der malaysischen Architektur verdeutlichen, sich an den islamischen Hintergrund des Landes anlehnen und außerdem die Fortschrittlichkeit und Modernität des südostasiatischen Staates symbolisieren.
Die Gebäudeflügel des Satellitenabfertigungsgebäudes haben ein Satteldach, welches aus zwei schrägen Dachflächen besteht. Das Dach spaltet sich kurz vor dem Glaszylinder mit dem Regenwald auf. Die beiden Dachflächen gehen nach rechts bzw. links in eine der Dachflächen der beiden benachbarten Gebäudeflügel über. Die vier dreieckigen Lücken im Dach, die bei dieser Spaltung kurz vor der Gebäudemitte mit dem Regenwald entstehen, sind, wie der Zylinder selbst, verglast. Die Dachflächen haben im Querschnitt die Form eines extrem gestreckten Halbkreises oder eines Halbmondes. Diese Form ermöglicht eine äußerst stabile Dachstruktur. Das Dach wird von viergeteilten Stahlstützen aus der Mitte des Gebäudes und durch zusätzliche kleinere Träger in den Wartesälen gestützt. Im Pierabfertigungsgebäude bevorzugten die Ingenieure ein ebenfalls halbkreisförmiges Pultdach. Dort wird das Dach durch zwei Stahlträger, die sich auf Höhe der vierten Ebene vierteilen, gestützt.
Der Regenwald in der Mitte des Satelliten befindet sich in einem nach oben geöffneten, leicht schrägen Glaszylinder. Dieser Zylinder wird von einem, aus drei Stahlrohren bestehenden, 20 Meter hohen Ring getragen. Dieser Ring wiederum wird von zwölf Stahlträgerpaaren aus dem Gebäudeinneren heraus getragen.
Die Decken sind mit Holzimitaten verkleidet, welche den Gebäuden ein luxuriöses Ambiente verleihen. Weiterhin sind außer im Hauptabfertigungsgebäude unregelmäßig Leuchtspots in die Decke eingelassen, die bei Nacht wie Sterne wirken. Die Dächer aller Gebäude sind mit in dunklem Khaki bemaltem Stahl gedeckt. Alle Wände und Betonpfeiler sind mit neutralen, weißen Kunststoffplatten verschalt. Sowohl im Satellite als auch im Contact-Pier sind die Warteräume der Flugsteige durch eine Glaswand von den Geh- und Fahrwegen in der Mitte des Gebäudes, getrennt. Die riesigen Panoramafenster, die von der Decke bis zum Fußboden reichen, sind in allen Gebäuden schräg, damit die Sonnenstrahlen in einem kleinen Einfallswinkel auf die Fenster treffen und so die Erhitzung des Gebäudeinneren minimiert wird. In allen Gebäuden sind die Böden mit grauen Granitplatten und die Warteräume mit lila Teppichböden ausgelegt. Um die tragenden Pfeiler herum lassen sich islamische Architekturelemente in Form von verschiedenen Formationen mit rot-, grün- und blaugefärbtem italienischem Granit finden.
Beschilderung/Orientierung
In allen Flughafengebäuden wird eine einheitliche Beschilderung verwendet.
In weißer Schrift auf blauen Schildern steht, von links nach rechts betrachtet, zunächst ein Richtungspfeil, dann ein Piktogramm, ein senkrechter grüner oder gelber Balken und ganz rechts schließlich die Information in Malaiisch (oben) und Englisch (unten). Ankommende Passagiere ohne Weiterflug folgen den Schildern mit dem gelben Balken, sie führen die Passagiere vom Flugsteig bis zur Passkontrolle und in die Ankunftshalle. Abfliegende Passagiere oder Transitpassagiere folgen den Schildern mit einem grünen Balken, um zu ihrem jeweiligen Flugsteig zu gelangen. Seit einiger Zeit werden die wichtigsten Schilder zusätzlich zu Malaiisch und Englisch auch noch mit arabischen, chinesischen und japanischen Hinweisen beschriftet.
Um die Orientierung zu vereinfachen, besitzen die Flugsteige (Gates) – je nach Gebäude, Gebäudeteil (nur Contact-Pier) und Gebäudeebene (nur Contact-Pier) – einen Buchstaben vor der Nummer des Gates. Die Flugsteige im Satellite heißen C. Flugsteige im östlichen Gebäudeflügel des Contact-Piers besitzen die Zusätze B (international) und H (national), im westlichen Gebäudeflügel A bzw. G. Die Buchstaben D, E und F wurden für weitere Abfertigungsgebäude wie beispielsweise das zweite Satellitengebäude freigehalten.
Flughafeninfrastruktur
Flughafenbahn (Aerotrain)

Der Aerotrain ist ein flughafeninterner Zug, ähnlich wie die SkyLine am Frankfurter Flughafen. Zwei Züge, bestehend aus je drei Waggons, pendeln zwischen dem Satellitenabfertigungsgebäude und dem Contact-Pier und sind rund um die Uhr in Betrieb. Alle drei Minuten fährt ein Zug, der für die Fahrt weniger als zwei Minuten benötigt. Er fasst 250 Passagiere und kann so etwa 3000 Passagiere pro Stunde und Richtung befördern. Die Höchstgeschwindigkeit der Fahrzeuge im regulären Betrieb erreicht bis zu 55 km/h.
Die Aerotrainzüge verkehren automatisch und führerlos. An den Bahnsteigen verhindern Bahnsteigtüren, dass Fahrgäste auf die Gleise gelangen können. Die beiden Haltestellen im Satelliten- und im Piergebäude sind so ausgelegt, dass zuerst die ankommenden Passagiere auf der einen Seite aussteigen können und erst kurze Zeit später die Türen auf der anderen Seite geöffnet werden, um die abfahrenden Passagiere einsteigen zu lassen (Spanische Lösung). Zur Lärmreduzierung sind in beiden Haltestellen die Fahrwege in Glasschalen eingetunnelt.
Die Fahrzeuge wurden von Bombardier geliefert und fahren ähnlich wie Busse mit gummibereiften Rädern auf einer Betonfahrbahn, die jedoch in der Mitte einen Führungsbalken hat, der auch als Stromschiene dient.
Die Bahntrasse führt unter den Taxiways hindurch und steigt dann zu beiden Seiten bis auf die Ebene der Haltestellen wieder an. Die Trasse ist auf voller Länge zweispurig, die Weichen für die Aerotrains, die in Zukunft das zweite Satellitengebäude anfahren sollen, sind bereits vorhanden. Im Contact-Pier ist die Station für die Aerotrains, die den zweiten Satelliten später einmal anfahren sollen, bereits im Rohbau vorhanden. Sie wird allerdings im Moment als Fläche für den Einzelhandel genutzt. Da die Wagen des Aerotrains in den Stationen gewartet werden, gibt es keine Stichstrecke zu einer Wartungsstation.
Gepäckförderanlage (Baggage Handling System)
Heutige Gepäckförderanlage
Die 24 Stunden in Betrieb befindliche Gepäckförderanlage ermöglicht es dem Passagier, jederzeit und überall einzuchecken. Die Anlage benutzt modernste Systeme, wie das Sortieren der Gepäckstücke mittels Strichcodes, vierfache Sicherheitskontrollen und Hochgeschwindigkeits-Förderbänder. Trotzdem gibt es häufig technische Probleme – wie am Eröffnungstag des Flughafens.
Maximal 1200 Gepäckstücke des Früh-Check-ins kann die Anlage aufbewahren. Einige der insgesamt 33 Kilometer langen Förderbänder durchlaufen einen 1,1 Kilometer langen Tunnel zwischen dem Haupt- und dem Satellitenabfertigungsgebäude.
Neue Gepäckförderanlage
Da die Gepäckförderanlage von enormen Problemen und häufigen Ausfällen geplagt wurde, bestellte das malaysische Verkehrsministerium am 19. März 2006 bei Siemens Industrial Solutions and Services (I&S) ein komplett neues Gepäckfördersystem im Wert von über 20 Millionen Euro. Die Anlage sollte im September 2007 den Betrieb aufnehmen.
Wie an vielen Großflughäfen wird das neue System die moderne Hochgeschwindigkeits-Behälterfördertechnik verwenden, bei der die Gepäckstücke in einzelnen Wannen transportiert werden. Bei dieser Methode kann man die Transportgüter auch bei hohen Geschwindigkeiten besser kontrollieren und nachverfolgen, anders als bei konventioneller Bandfördertechnik.[13]
Start- und Landebahnen/Pistensystem
Die beiden bisher realisierten Start- und Landebahnen sind jeweils vier Kilometer lang, 60 Meter breit, um einen Kilometer versetzt und erlauben Flugzeugen jeder Größe Starts und Landungen. Da die Bahnen etwa 2,5 km voneinander entfernt sind, erlauben sie Simultanbetrieb, also eine unabhängige Nutzung beider Pisten. Parallel zu jeder Piste verläuft eine Rollbahn (Taxiway), abschnittsweise sogar ein zweiter Taxiway. Zu bzw. von jeder Bahn führen neun Ab- und Anrollwege, jeweils vier davon sind Schnellabrollwege im 30°-Winkel. Diese Abrollwege erlauben, im Gegensatz zu senkrechten Abrollwegen, gelandeten Flugzeugen die Piste bei höherer Geschwindigkeit zu verlassen und so die Taktfolge landender Maschinen zu erhöhen. Das heutige Pistensystem kann eine maximale Kapazität von 120 Flugbewegungen pro Stunde bewältigen. Um diese Marke zu erreichen, wird meistens eine der beiden Bahnen für Starts und die andere für Landungen benutzt.
Im Idealbetrieb landen so viele Flugzeuge wie möglich auf derjenigen Piste, welche auf Höhe der Passagierabfertigungsgebäude endet. Startende Maschinen heben von der anderen Startbahn ab, deren Startpunkt sich ebenfalls auf Höhe der Terminals befindet. So vermindert sich die Bodenrollzeit auf ein Minimum.
Um die Start- und Landebahnen den Bedürfnissen des Airbus A380 anzupassen, wurde Ende 2005 damit begonnen, beiden Bahnen die vorgeschriebenen, 7,5 Meter breiten, befestigten Seitenstreifen (Schulterbereiche) anzufügen. Außerdem wurden die Startbereiche an den Enden der Pisten neu betoniert.
Der Masterplan sieht insgesamt vier, optional aber auch eine fünfte Bahn vor. Diese werden voraussichtlich westlich des heutigen Flughafenareals angesiedelt. Jede dieser Bahnen ist mit einer Länge von 4000 Metern geplant.
Planungen
Zweite Ausbaustufe/Fortgeschrittene Planungen

Die ursprünglichen Planungen sahen vor, das zweite Satellitengebäude 2009 in Betrieb zu nehmen. Dessen Bau verschob man jedoch zugunsten des Low-Cost-Carrier-Terminals. In naher Zukunft dürfte außerdem eine dritte Start- und Landebahn westlich des heutigen Flughafenareals gebaut werden.
Mit der Errichtung des zweiten Satellitengebäudes werden auch die Fahrbahntrassen des Aerotrains, zwischen dem Contact-Pier bzw. dem ersten Satellitengebäude und dem neuen Satellitenfluggastgebäude, fertig gestellt. Die Tunnels unter den Taxiways sind bereits im Rohbau vorhanden. Das Piergebäude lässt sich auf beiden Seiten um je 170 Meter erweitern. Dies stellt weitere Kapazitäten zur Verfügung. Diese Erweiterung erhöht die Kapazität auf 45 Millionen Passagiere pro Jahr und markiert das Ende der zweiten Ausbaustufe im Jahr 2012.
Alte Planungen sahen vor, den KLIA Transit bis zum Low-Cost-Carrier-Terminal (LCCT) zu verlängern, um den Passagieren eine schnelle Verbindung zwischen den verschiedenen Abfertigungsgebäuden und der Stadt zu bieten. Zurzeit pendelt eine NadiKLIA genannte Buslinie zwischen den beiden Abfertigungsgebäuden. Eine einfache Fahrt mit diesen Bussen kostet 1,20 Ringgit.
Mitte 2007 gab die Regierung grünes Licht für die Planungen der Flughafengesellschaft zur Errichtung eines neuen Abfertigungsgebäudes für Billigfluggesellschaften. Das neue Fluggastgebäude wird für 30 Millionen Passagiere im Jahr ausgelegt und in der Nähe des Hauptabfertigungsgebäudes angesiedelt, womit der Bau einer Zugstrecke zwischen den beiden Abfertigungsgebäuden wegfällt.
Die Pläne wurden bis September 2007 fixiert. Diese beinhalten auch den Ausbau des heutigen LCCTs auf 15 Millionen Passagiere jährlich. Mit der Inbetriebnahme des neuen Fluggastgebäudes werden alle Abfertigungsabläufe umziehen und das heutige Gebäude wird in ein Frachtgebäude umfunktioniert.[14][15]
Mitte 2006 legte das Unternehmen YTL Corp Bhd der malaysischen Regierung Pläne für eine Hochgeschwindigkeitsverbindung zwischen Kuala Lumpur und Singapur vor. YTL Corp Bhd leitete gemeinsam mit Siemens Malaysia Sdn Bhd transportation systems das Projekt der bestehenden Schnellbahn KLIA Ekspres ins Zentrum Kuala Lumpurs. Die Pläne sehen einen Halt am Flughafen vor, wobei möglicherweise die bestehende Normalspur-Strecke nach Kuala Lumpur genutzt werden würde. Die weitere Streckenführung würde Bahnhöfe in Malakka, Johor Bahru, im Zentrum Singapurs und am internationalen Flughafen des Stadtstaates beinhalten. Falls das Projekt realisiert wird, werden bis zu 350 km/h schnelle Velaro-E-Züge (Baureihe ähnlich dem deutschen ICE), des Herstellers Siemens die 325 Kilometer lange Strecke in nur 90 Minuten bewältigen (bisher neun Stunden) und damit den Shuttle-Flügen von Singapore Airlines und Malaysia Airlines ernsthafte Konkurrenz machen. Die Projektkosten werden auf 8 Milliarden Ringgit kalkuliert (ca. 1,9 Milliarden Euro).[16]
Im Mai 2007 stimmte die Landesregierung des angrenzenden Bundesstaates Negeri Sembilan der Planung zu, den KLIA Ekspres über Seremban bis zur touristisch attraktiven Stadt Port Dickson zu verlängern. Auch dieses Teilstück könnte in die Schnellfahrstrecke Kuala Lumpur-Singapur integriert werden.[17]
Endausbaustufe (Masterplan)
Der Masterplan sieht in der finalen vierten Ausbaustufe im Jahr 2020 insgesamt vier (optional fünf) Start- und Landebahnen, zwei Abfertigungskomplexe mit jeweils einem Pier- und zwei Satellitengebäuden vor, die für 100 Millionen Passagiere pro Jahr ausgelegt sind. Die benötigten Flächen sind bereits vorhanden und nicht besiedelt. Die neuen Pisten sollen westlich des heutigen Flughafenareals errichtet werden, der zweite Abfertigungskomplex wird spiegelverkehrt gegenüber dem heutigen Hauptabfertigungsgebäude, auf der anderen Seite der Anfahrtsstraße, erbaut. Da im Moment der Flughafen eine 20-prozentige Passagierwachstumsrate vorweisen kann, erscheinen diese Planungen nicht utopisch.
Fluggesellschaften und Ziele

Der Flughafen Kuala Lumpur wird von 69 Fluggesellschaften (darunter 6 Frachtfluggesellschaften) aus aller Welt angeflogen, die zu Zielen auf fünf Kontinenten fliegen. Mit jährlich rund 1,7 Millionen Passagieren ist die Strecke nach Singapur die aufkommensstärkste. In den deutschsprachigen Ländern wird Frankfurt angeflogen.
Die malaysischen Fluggesellschaften Malaysia Airlines und AirAsia, die erste Billigfluggesellschaft auf dem asiatischen Kontinent, nutzen den Kuala Lumpur International Airport als Streckendrehkreuz. Beide Fluggesellschaften unterhalten ein dichtes Inlandstreckennetz. Sie sorgen mit 49,1 % bzw. 19,1 % für das Gros des Passagieraufkommens.
Der Flughafen Kuala Lumpur wird von einigen Fluggesellschaften mit Airbus A380 angeflogen.
Um neue Fluggesellschaften nach Kuala Lumpur zu holen, erlässt der Flughafen diesen die Lande- und Parkgebühren, falls sie sich dazu verpflichten, fünf Jahre den Flughafen anzufliegen. Die anfallenden Kosten übernimmt der Staat. Aber auch wegen der ohnehin niedrigen Landegebühren ist Kuala Lumpur für viele Fluggesellschaften attraktiv. Die Landegebühr für eine Boeing 747 beträgt 1052 US-Dollar – nur gut halb so viel wie im benachbarten Singapur, wo eine Fluggesellschaft für den gleichen Flugzeugtyp am Flughafen Singapur 1883 Dollar bezahlen muss.[18] Die vielen Vergünstigungen hatten die Rückkehr einiger Fluggesellschaften zur Folge. Trotz Bemühungen der Flughafenleitung fliegt aber weder eine nord- noch eine südamerikanische Passagierfluggesellschaft den Flughafen an.
Verkehrszahlen
| Betriebsjahr | Passagieraufkommen | Frachtaufkommen in Tonnen | Flugbewegungen |
|---|---|---|---|
| 1999 | 14.021.531 | 430.223 | 129.810 |
| 2000 | 15.648.029 (+11,6 %) | 524.442 (+21,9 %) | 125.657 (−3,2 %) |
| 2001 | 14.707.125 (−1,4 %) | 445.832 (−13,5 %) | 113.634 (−9,6 %) |
| 2002 | 16.398.230 (+12,8 %) | 531.982 (+19,3 %) | 127.952 (+12,6 %) |
| 2003 | 17.454.564 (+6,4 %) | 589.982 (+10,9 %) | 129.947 (+9,3 %) |
| 2004 | 21.058.572 (+20,6 %) | 655.368 (+11,1 %) | 165.115 (+18 %) |
| 2005 | 23.213.412 (+20,4 %) | 655.944 (+12,6 %) | 182.386 (+10,4 %) |
| 2006 | 24.142.134 (+4,0 %) | 670.790 (+2,2 %) | 183.672 (+1,5 %) |
| 2007 | 26.938.970 (+11,6 %) | 649.197 (−3,3 %) | 193.982 (+5,6 %) |
| 2008 | 27.529.355 (+2,2 %) | 667.495 (+2,8 %) | 209.681 (+8,1 %) |
| 2009 | 29.682.093 (+7,8 %) | 601.620 (−9,9 %) | 225.251 (+7,4 %) |
| 2010 | 34.087.636 (+14,8 %) | 674.902 (+15,4 %) | 245.650 (+8,3 %) |
| 2011 | 37.704.510 (+10,6 %) | 669.849 (−0,7 %) | 269.509 (+9,7 %) |
| 2012 | 39.887.866 (+5,8 %) | 673.107 (+0,5 %) | 283.352 (+5,1 %) |
| 2013 | 47.498.157 (+19,1 %) | 680.982 (+1,2 %) | 326.678 (+15,3 %) |
| 2014 | 48.930.409 (+3 %) | ||
| 2015 | 48.938.424 (+0 %) | 726.200 | |
| 2016 | 52.643.511 (+7,6 %) | ||
| 2017 | 58.558.440 (+11,2 %) | ||
| 2018 | 59.988.409 (+2,4 %) | ||
| 2019 | 62.257.101 (+3,8 %) | 687.200 | 408.400 |
| 2020 | 13.120.116 (−78,9 %) | 125.200 (−69,3 %) |
Zwischenfälle
- Am 23. August 2001 wurde eine Boeing 747-368 der Saudi Arabian Airlines (Luftfahrzeugkennzeichen HZ-AIO) während des Rollens zum Abfluggate in einen Monsunentwässerungsgraben gelenkt, wobei der Bug Schaden davontrug und das Flugzeug irreparabel beschädigt wurde. Nach den Meldungen wurde die Maschine durch einen Bodenmechaniker bedient. Die sechs Crewmitglieder erlitten leichte Verletzungen.[21][22]
Sonstiges


- Westlich des Contact-Piers befindet sich der sogenannte Bunga Raya VVIP Complex, ein Gebäude, welches für VVIP-Gäste (Very Very Important Persons) errichtet wurde. Das Gebäude wird auch von der Regierung Malaysias für Staatsempfänge oder Reisen der Königsfamilie genutzt.
- Für den Einzelhandel stehen 85.000 Quadratmeter Verkaufsfläche zur Verfügung. Damit übertrifft der Flughafen viele seiner asiatischen Konkurrenten. 65 % der Erlöse nimmt die Betreibergesellschaft Malaysia Airports Holding Berhad im nicht-luftseitigen Sektor ein, etwa die Hälfte davon durch Vermietung der Einzelhandelsflächen.[23]
- Außerhalb des Hauptabfertigungsgebäudes befindet sich ein Fünf-Sterne-Hotel mit 450 Betten, das Pan Pacific Hotel KLIA.
- Es gibt zwei Feuerwehrstationen auf dem Flughafengelände. Die Löschzüge sind mit insgesamt 14 modernen Flugfeldlöschfahrzeugen ausgerüstet. Die größere der beiden Flughafenfeuerwehr-Stationen befindet sich östlich des Contact-Piers, die kleinere in der Nähe des Hangars im Süden des Flughafenareals.
- Auf dem Flughafengelände gibt es eine der beiden weltweit einzigen Kammern für explosive Güter (die zweite befindet sich am Flughafen München). In dieser Kammer, die 1,6 Millionen Ringgit gekostet hat, können z. B. explosionsgefährdete Frachtcontainer kontrolliert entschärft werden.
- Der Name Kuala Lumpur International Airport wurde zuvor als Alternativbezeichnung für den Sultan Abdul Aziz Shah Airport (SZB) in Subang Jaya verwendet.
- Es gibt das flughafeneigene Fernsehprogramm KLIA TV, welches an vielen Orten im Flughafen, beispielsweise in der Nähe von Sitzgruppen, ausgestrahlt wird. Das Programm besteht aus Unterhaltungs-, Nachrichten- und Dokumentationssendungen, welche größtenteils von bekannten Fernsehsendern wie beispielsweise National Geographic eingekauft werden.
- Ähnlich wie im Flughafen Frankfurt gibt es auch eine Flughafenzeitung, die KLIA Times.
- In allen Flughafengebäuden ist Rauchen verboten, trotzdem gibt es drei Raucherräume im Satellite und im Pier.
- Während der SARS-Krise, die in ganz Asien herrschte und einen enormen Passagierrückgang an den Flughäfen zur Folge hatte, wurden die Landegebühren für Flugzeuge um 50 % reduziert. Durch diese Preisreduktion erhoffte man sich, dass die Fluggesellschaften trotz des Mangels an Kunden den Flughafen weiter anfliegen würden. Die IATA begrüßte diesen Entschluss.[24]
- Malaysia Airlines lässt im Süden des Flughafens einen neuen Hangar, für die Wartung ihrer zukünftigen Airbus A380, bauen. Es wird die weltweit größte stützfreie Hangarkonstruktion sein.
- Seit seiner Eröffnung erhielt der Flughafen zahlreiche Auszeichnungen von namhaften Organisationen, wie dem Onlineportal Skytrax und der Luftfahrtorganisation International Air Transport Association. Wegen exzellentem Service wählten Skytrax-Benutzer KLIA zum weltweit besten Flughafen in der Kategorie 15-25 Millionen Passagiere pro Jahr. Auch im weltweiten Vergleich ist KLIA in Bezug auf Service auf Augenhöhe (Platz 4) mit Flughäfen, wie Singapur, Hong Kong und Seoul. Kuala Lumpur ist der einzige Flughafen, der für sein Engagement im Umweltschutz mit dem Green Globe Certificate 21 ausgezeichnet wurde.[25]
Siehe auch
Literatur
- Markus Binney: Airport Builders. Academy Editions, Chichester 1999, ISBN 0-471-98445-0, S. 121.
- Francisco Ascenio Cerver: Zeitgenössische Architektur. Könemann Verlagsgesellschaft, Köln 2000, ISBN 3-8290-2845-8, S. 32.
- Manuel Cuadra: World Airports. Junius Verlag, Frankfurt 2002, ISBN 3-88506-519-3, S. 52.
- Brigitte Rothfischer: Flughäfen der Welt. GeraMond Verlag, München 2005, ISBN 3-7654-7211-5, S. 100.
- Christian Schönwetter, Kerstin Graf, Jan Hausberg: AIRPORT DESIGN. Daab, Köln 2005, ISBN 3-937718-32-X, S. 192–199.
Weblinks
- Webpräsenz des Kuala Lumpur International Airport (englisch)
- Webpräsenz des Kuala Lumpur International Airport 2 (englisch)
- Webpräsenz der Flughafenschnellbahnen KLIAEkspres und KLIATransit (englisch)
- Inoffizielle Website des Flughafens (englisch)
- Detaillierte Website über den Flughafen (englisch)
- Flughafen Kuala Lumpur. In: Structurae
Einzelnachweise
- ↑ Website des Flughafenbetreibers
- ↑ a b c KLIA Fact Sheet. (PDF; 3 MB) KLIA, 2015, abgerufen am 4. April 2015 (englisch).
- ↑ AIP Malaysia. (PDF; 149 kB) In: aip.dca.gov.my. Department of Civil Aviation Malaysia, 2. Juni 2011, S. WMKK AD 2-5, abgerufen am 5. April 2015 (englisch).
- ↑ AIP Supplement Malaysia. (PDF; 13,3 MB) Department of Civil Aviation Malaysia, 20. Februar 2014, S. 2, abgerufen am 5. April 2015 (englisch).
- ↑ Quelle für Baukosten ( vom 13. November 2006 im Internet Archive)
- ↑ kiat.net Quelle für Umsiedlung ( vom 13. November 2006 im Internet Archive)
- ↑ Bericht über Probleme mit dem ersten Gepäckbefördersystem
- ↑ express/ Rail Link (KLIA). Abgerufen am 14. Dezember 2011.
- ↑ Website von AirAsia mit Informationen über das LCCT ( vom 22. Juli 2009 im Internet Archive)
- ↑ LCCT international arrival hall ahead of schedule. The Star, 9. Dezember 2008, abgerufen am 4. April 2015 (englisch).
- ↑ Building A Better klia2 For The Future Of Low Cost Air Travel. KLIA, 29. November 2011, abgerufen am 4. April 2015 (englisch).
- ↑ MAHB to convert LCCT into a cargo warehouse. klia2.info, 24. Juli 2014, abgerufen am 4. April 2015 (englisch).
- ↑ Siemens stattet Flughafen in Kuala Lumpur mit Gepäckförderanlage aus. airliners.de, 19. April 2006, abgerufen am 5. April 2015.
- ↑ The Star – malaysische englischsprachige Tageszeitung – Neues Abfertigungsgebäude für Billigfluggesellschaften ( vom 30. Juni 2008 im Internet Archive)
- ↑ The Star – malaysische englischsprachige Tageszeitung – Lage des neuen Abfertigungsgebäudes für Billigfluggesellschaften
- ↑ The Star – malaysische englischsprachige Tageszeitung – Hochgeschwindigkeitszug zwischen Kuala Lumpur und Singapur
- ↑ The Star – malaysische englischsprachige Tageszeitung – Verlängerung der Flughafenbahn KLIA Ekspres ( vom 30. Juni 2008 im Internet Archive)
- ↑ Asiatimes.ru - Malaysia waives fees for new flights - Thailand sees little impact from plan to build KL traffic
- ↑ Alle Zahlen entstammen Publikationen der Airports Council International (ACI). Abgerufen am 6. Dezember 2021.
- ↑ Kuala Lumpur International Airport Aviation Market Analysis. Abgerufen am 9. August 2022.
- ↑ Unfallbericht B-747-300 HZ-AIO, Aviation Safety Network (englisch), abgerufen am 1. November 2018.
- ↑ Saudi Arabian airliner taxis into ditch in Malaysia, crushing nose but causing no injuries. 24. August 2001, archiviert vom am 12. Februar 2015; abgerufen am 12. Februar 2015 (eng).
- ↑ The Star – malaysische englischsprachige Tageszeitung – Einnahmen des Flughafenbetreibers
- ↑ IATA: „Kuala Lumpur Joins Ranks of Airports Responding to SARS Crisis - Hong Kong Relief Misses the Mark“ ( vom 2. Oktober 2006 im Internet Archive) (englisch)
- ↑ Malaysia Airports - KLIA Continues Pursuit of Environmental Excellence With 'Walk The Environment' Campaign


