Kraftwerk Arniberg
| Kraftwerk Arniberg | ||
|---|---|---|
![]() | ||
| Lage | ||
| ||
| Koordinaten | 693827 / 180560 | |
| Land | ||
| Ort | Gemeinde Gurtnellen gegenüber von Amsteg | |
| Gewässer | Intschialpbach, Leutschachbach, Arnibach | |
| Höhe Oberwasser | 517 m ü. M. | |
| Kraftwerk
| ||
| Eigentümer | Elektrizitätswerk Altdorf AG (EWA) | |
| Planungsbeginn | 1907 | |
| Betriebsbeginn | 1910 1969 (nach Umbau) | |
| Technik
| ||
| Engpassleistung | 13 Megawatt | |
| Durchschnittliche Fallhöhe |
858 m | |
| Ausbaudurchfluss | 1.8 m³/s | |
| Regelarbeitsvermögen | 47.22 Millionen kWh/Jahr | |
| Turbinen | 1910: 2 × Pelton-Turbinen 1912: 3 × Pelton-Turbinen 1969: 2 × Pelton-Turbinen | |
| Generatoren | 1910: 2 × Synchrongenerator Alioth 1 × Synchrongenerator BBC 1912: 2 × Synchrongenerator Alioth 2 × Synchrongenerator BBC 1969: 2 × Synchrongenerator | |
| Sonstiges
| ||
| Website | Kraftwerke der EWA | |
| Stand | 2018 | |
Das Kraftwerk Arniberg ist ein Hochdruck-Laufwasserkraftwerk[1][2] auf dem Gebiet der Schweizer Gemeinde Gurtnellen, das den Arnisee als Wochenspeicher[3] benutzt.
Die Zentrale des Kraftwerks befindet sich vis-à-vis von Amsteg und gibt das Wasser in die Reuss ab. Betreiber der Anlage ist die Elektrizitätswerk Altdorf AG, an der die CKW-Gruppe beteiligt ist. Die Anlage wurde 1910 in Betrieb genommen und war wegen der ausserordentlichen Fallhöhe von 858 m eine Pionierleistung im europäischen Kraftwerksbau.[3]
Geschichte
Anfangs des 20. Jahrhunderts genügte dem Elektrizitätswerk Altdorf die Produktion des eigenen Kraftwerks Bürglen nicht mehr und es suchte nach einer Möglichkeit, ein weiteres Kraftwerk zu bauen. Eine Nutzung der Wasserkraft der Reuss war nicht möglich, da deren Wasserrechte bereits an die SBB vergeben waren. Das Ingenieurbüro H. E. Gruner aus Basel arbeitete deshalb ein Projekt aus, in dem das Wasser des Leitschachbaches, des Intschialpbaches und einiger Quellen auf der Hochebene des Arnibergs auf 1370 m Höhe gesammelt wird und in einer Zentrale im Tal auf einer Höhe von 520 m verarbeitet werden soll. In den trockenen Wintermonaten wurde mit einer möglichen Leistung von 1400 PS gerechnet, im wasserreichen Sommer sollten 10000 bis 15000 PS zur Verfügung stehen.[4] Die Konzession wurde 1907 erteilt,[5] die Baukosten wurden auf 3 Mio. Franken geschätzt.[4]
Während des Baus des Projektes wurde der Zweck des Kraftwerkes geändert. Das Werk sollte nicht nur Energie an das Elektrizitätswerk Altdorf liefern, sondern auch die Lastspitzen des Elektrizitätswerks Rathausen abdecken. Zu diesem Zweck beteiligten sich die Elektrizitätswerk Rathausen AG, der Vorläufer der CKW mit 62 % am Elektrizitätswerk Altdorf und finanzierten den Bau des Kraftwerks Arniberg.[6] Die Änderungen am Projekt wurden nach Vorschlägen der AG Motor aus Baden, einer Vorgängergesellschaft der späteren Motor-Columbus, vorgenommen. So musste für die neue Aufgabe das Maschinenhaus vergrössert werden, damit bei einem späteren Bedarf zusätzliche Turbinen aufgestellt werden konnten. Weiter musste die Anlage so ausgelegt werden, dass sie mit den unterschiedlichen Frequenzen beider Netze arbeiten konnte – Altdorf arbeitete damals noch mit einer Frequenz von 48 Hz, Rathausen dagegen mit 42 Hz.

Das Maschinenhaus nahm im August 1910 den Betrieb auf, obwohl der Stausee noch nicht fertiggestellt war. Zu diesem Zweck wurde das Wasser von der Zuleitung zum Stausee mit einem provisorischen Holzkanal über den Arniboden direkt zum Einlauf in die Druckleitung geführt. Im Maschinenhaus waren am Anfang nur die als Umformer nutzbare Maschinengruppe I mit 1500 PS Leistung und die Maschinengruppe II mit 3000 PS Leistung aufgestellt, 1912 folgte die Maschinengruppe III. Das Kraftwerk arbeitete im Verbund mit dem Kraftwerk Rathausen, dem Kraftwerk Bürglen und ab 1925 auch mit dem Kraftwerk Gurtnellen.
Im Jahr 1918 wurde zusätzlich der Arnibach gefasst und mit einem 80-kW-Pumpwerk bei Ober Axeli direkt in die Druckleitung des Kraftwerks eingeleitet. Am Anfang war diese Anlage nur im Winter in Betrieb.[7] 1944 wurde die Leistung der Turbinen erhöht, in den Jahren 1967 bis 1969 wurden die Anlage erneuert und neue Maschinengruppen installiert. In den Wintern 2011 und 2012 wurden neue Turbinenregler eingebaut. Die Jahresproduktion betrug 2012 ungefähr 46 GWh, was ungefähr einem Fünftel der Stromerzeugung des Elektrizitätswerk Altdorf entsprach.[3]
Technik
Die Wasserversorgung des Maschinenhauses erfolgt über den Arnisee mit einem Nutzinhalt von 180.000 m³. Dem See wird Wasser des Leitschachbaches und des Intschialpbaches zugeführt.[5]
Druckleitung

Die 2067 m lange Druckleitung vom Arnisee zum Maschinenhaus bestand aus geschweissten Röhren von 470 bis 600 mm Durchmesser, wobei vorerst nur eine Leitung auf dem für zwei Leitungen vorgesehenen Trassee aufgelegt wurde. Einzig beim Einlauf im Ostdamm des Stausees, in der Ventilkammer und bei den Verankerungsklötzen wurden kurze Teilstücke der zweiten Rohrleitung bereits ausgeführt.[8]
Die ersten 430 m der Druckleitung verlaufen im Boden, der Rest der Leitung verläuft bis auf einen 82 m langen Stollen beim Axli oberirdisch. Die Rohre wurden von der heute noch bestehenden Firma Ferrum aus Kattowitz geliefert und waren im unteren Teil der Leitung für einen Druck von 85 bar ausgelegt. Das Rohmaterial für die Rohre waren Bleche aus Siemens-Martin-Stahl, die von der Oberschlesische Eisenbahn-Bedarfs-Actien-Gesellschaft in Friedenshütte, einem Stadtteil des heutigen Ruda Śląska, hergestellt wurden.[8]
Am unteren Ende der Druckleitung war das Verteilrohr zu den einzelnen Maschinengruppen angeordnet. Die Abzweigungen zu den vier vorgesehenen Maschinengruppen waren als Formstücke ausgeführt. Sie wurden von Von Roll nach Zeichnungen von Bell Maschinenfabrik gefertigt und enthielten jeweils das Absperrorgan zur betreffenden Maschinengruppe.[8]
Maschinenhaus
Die Zentrale an der Reuss wurde für vier Maschinengruppen gebaut, es wurden jedoch am Anfang nur deren zwei aufgestellt: die als Umformer nutzbare Maschinengruppe I mit 1500 PS Leistung und die Maschinengruppe II mit 3000 PS Leistung.
Die Maschinengruppe I bestand aus einer Pelton-Turbine mit einer Leistung von 1300 PS, die zwei Drehstromgeneratoren antrieb. Der kleinere 16-polige Generator hatte eine Leistung von 500 kVA und lieferte Strom mit einer Frequenz von 48 Hz an das Elektrizitätswerk Altdorf, der grössere 14-polige Generator mit einer Leistung 1000 kVA lieferte 42-Hz-Strom an das Elektrizitätswerk Rathausen. Diese Maschinengruppe konnte auch als rotierender Umformer betrieben werden, so dass sie als Netzkupplung zwischen den beiden Elektrizitätswerken benutzt werden konnte. Die Turbine stammte von Bell, die Generatoren von der Elektrizitätsgesellschaft Alioth aus Münchenstein bei Basel.
Die Maschinengruppe II bestand aus einer Pelton-Turbine von Bell, die einen Drehstromgenerator von BBC antrieb. Die Turbine hatte eine Leistung von 3000 PS, der Generator eine von 2600 kVA. Im Maschinenhaus waren die Fundamente für drei weitere Maschinengruppen dieses Typs vorbereitet.
Die Transformatoren der Maschinengruppen waren im hinteren Teil des Maschinenhauses im Untergeschoss angeordnet. Die Übertragungsleitung nach Rathausen wurde mit einer Spannung von 42,5 kV betrieben, diejenige nach Altdorf mit einer Spannung von 15 kV. Über den Transformatoren war das Podium mit der Schaltwarte angeordnet. In dessen Fussboden waren abnehmbare Deckel eingelassen, die den Zugang zu den Transformatoren mit dem Laufkran der Maschinenhalle ermöglichten.
-
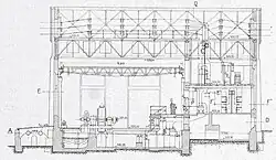
Querschnitt durch die Zentrale Amsteg -
Schaltschema der Zentrale des Kraftwerks Arniberg. Von den vier vorgesehenen Maschinengruppen wurden nur drei aufgestellt. -
Maschinengruppe I (vorne) und Maschinengruppe II (hinten) in der Zentrale Amsteg -
Geöffnete Maschinengruppe I, links der Generator für Rathausen, rechts derjenige für Altdorf -
Geöffnete Maschinengruppe II -
Einbau des Maschinentransformators der Gruppe II
Die Leistung des Maschinenhauses wurde über die Jahre immer wieder erhöht und um 1920 wurde auf den Betrieb mit einer Netzfrequenz von 50 Hz umgestellt.[9]
| Jahr | Maschinengruppe I | Maschinengruppe II | Maschinengruppe III | Gesamt | Quelle |
|---|---|---|---|---|---|
| 1910 | 1500 PS | 3000 PS | 4500 PS | ||
| 1912 | 1500 PS | 3000 PS | 3000 PS | 7500 PS | |
| 1944 | 1500 PS | 3600 PS | 4100 PS | 9200 PS | [7] |
| 1969 | 6,5 MW | 6,5 MW | 13 MW (17700 PS) | [1] |
Ende der 1960er-Jahre wurde die Anlage grundüberholt und die Maschinengruppen ausgewechselt.[10] Es wurden zwei 6,5-MW-Gruppen mit horizontaler Achse installiert, die je aus einer eindüsigen Pelton-Turbine und einem Generator bestehen.[3]
Kleinkraftwerk Leitschach
2009 wurde das Kleinkraftwerk Leitschach in Betrieb genommen. Es verwendet das Wasser von der Fassung Leitschach für den Antrieb einer Durchströmturbine, bevor dieses über den Sammelschacht Torli dem Arnisee zugeleitet wird. Die Fallhöhe beträgt 23 m, die Leistung beträgt 180 kW, die Jahresproduktion 550 MWh.[11]
Lagekarte

Siehe auch
Literatur
- Das Elektrizitätswerk Arniberg bei Amsteg. In: Schweizerische Bauzeitung. Band 60, 1912.
- Teil 1. Geologie, Zuleitung, Arnisee. Heft 14, 5. Oktober 1912, S. 183–189, doi:10.5169/seals-30060.
- Teil 2. Druckleitung, Standseilbahn. Heft 15, 12. Oktober 1912, S. 195–199, doi:10.5169/seals-30064.
- Teil 3. Zentrale, Maschinengruppen. Heft 16, 19. Oktober 1912, S. 207–213, doi:10.5169/seals-30068.
- Teil 4. Generatoren, Transformatoren. Heft 17, 26. Oktober 1912, S. 221–224, doi:10.5169/seals-30073.
- Teil 5. Schaltanlage. Heft 18, 2. November 1912, S. 243–244, doi:10.5169/seals-30079.
- Nachtrag betr. die Abnahme-Versuchs-Ergebnisse. Heft 19, 9. November 1912, S. 258, doi:10.5169/seals-30081.
Weblinks
Einzelnachweise
- ↑ a b Bundesamt für Energie BFE (Hrsg.): Statistik der Wasserkraftanlagen der Schweiz. 1. Januar 2020 (admin.ch [abgerufen am 2. Mai 2020] Anlagennummer 301000).
- ↑ In der Schweiz gelten alle Kraftwerke, die nicht mindestens ein Viertel der Winterproduktion speichern können als Laufwasserkraftwerke. Quelle: Statistik der Wasserkraftanlagen
- ↑ a b c d EWA unterzieht Pionierkraftwerk einer Verjüngungskur. In: Zek Hydro. 10. Jahrgang, Dezember 2012, S. 37–39 (docplayer.org).
- ↑ a b Arniwerk. In: Illustrierte schweizerische Handwerker-Zeitung. Band 25, Nr. 50, 1909, S. 781–782 (e-periodica.ch).
- ↑ a b Schweizerische Bauzeitung Teil 1
- ↑ Elektrizitätswerk Altdorf AG: Geschichte. Ehemals im (nicht mehr online verfügbar); abgerufen am 8. Dezember 2018. (Seite nicht mehr abrufbar. Suche in Webarchiven)
- ↑ a b Statistik Wasserkraftanlagen der Schweiz. 1. Januar 1947, S. 66–67.
- ↑ a b c Schweizerische Bauzeitung, Teil 2
- ↑ Cours d'eau et énergie. Band 13. Schweizerischer Wasserwirtschaftsverband, 1921, ISSN 0043-096X, OCLC 2536193, S. 159 (französisch, eingeschränkte Vorschau in der Google-Buchsuche).
- ↑ Hannes Gysling: Umfassendes Fitnessprogramm für EWA-Unterstation. In: Schneider Live. 2012, S. 30.
- ↑ Werner Jauch: KW Leitschach auf der Sonnenterrasse von Arni. In: Das Kleinkraftwerk. Nr. 74, 2010, S. 48–52 (p-i-m.com [PDF]).

