Kloster Murrhardt

Das ehemalige Kloster Murrhardt bestand als Benediktinerabtei St. Januarius in Murrhardt von 750 bis 1556 und von 1635 bis 1648. Es zählt damit neben Ellwangen und Hirsau zu den ältesten Klostergründungen in Württemberg.
Geschichte
Murrhardt im Frühmittelalter und erste Klostergründung

Die Entwicklung des Klosters ging von einem römischen Kohortenkastell aus, das aufgrund seiner Grenzlage zu den Alamannen von den Franken übernommen worden war; nach der Unterwerfung der Alamannen wandelte sich diese Grenzwache in ein königliches Gehöft. Auf Anweisung des austrischen Hausmeiers Karlmann kam es in den Jahren um 736 zur Gründung der Pfarrkirche St. Maria, wahrscheinlich durch den heiligen Pirmin – wie der Chronist des Klosters Reichenau, Gallus Öhem berichtet. Die kleine Holzkirche (6 × 4 m) war Maria geweiht und befand sich an dem Ort der heutigen Walterichskirche neben der damals noch vorhandenen Ruine eines römischen Mithras-Tempels; Reste der Kirche konnten bei einer archäologischen Ausgrabung 1963 nachgewiesen werden. In der Mitte des 8. Jahrhunderts versuchte das fränkische Adelsgeschlecht der Waltriche unter Mitwirkung des mit ihnen verbundenen, möglicherweise verwandten Bischofs Megingaud von Würzburg, ein Kloster einzurichten, um ein Verbindungsglied zwischen den Besitzungen der Waltriche im Rhein-Neckar-Raum und im westbayerischen Gebiet zu schaffen. Den Waltrichen gelang es, König Pippin den Jüngeren, Bruder und Nachfolger Karlmanns, für diesen Plan zu gewinnen und Pippin stiftete um 750 in Murrhardt die Urzelle St. Trinitatis. Die ursprüngliche Stiftungsurkunde Pippins ging zwar verloren, jedoch wurde die Mönchszelle „cellula Murrahart“ als kleines Kloster bzw. Prior-Stelle bereits 788 in einer von Pippins Sohn, Karl dem Großen ausgestellten Urkunde als im Besitz der Bischöfe von Würzburg erwähnt. Von dieser Mönchszelle fanden sich bei einer Grabung im Jahr 1973 Fundaments- und Mauerspuren im Ostchor der heutigen Stadtkirche. Durch den Tod König Pippins (768) und die Abdankung Megingauds als Bischof von Würzburg (769) kam die Entwicklung des Klosters zum Erliegen; gemeinhin geht die Forschung davon aus, dass zu Beginn des 9. Jahrhunderts keine funktionsfähige Mönchsgemeinschaft mehr vorhanden war.
Neugründung des Klosters durch Walterich

Um das Jahr 814 erbat Walterich, vormaliger zweiter Abt der Benediktinerabtei Neustadt am Main von Ludwig dem Frommen die Erlaubnis zur Errichtung eines Benediktinerklosters in Murrhardt. Walterich war vermutlich durch seine Abstammung von den Waltrichen der bestehenden Murrhardter Mönchszelle verbunden; wahrscheinlich ist auch eine verwandtschaftliche Beziehung zu den Karolingern als illegitimer Sohn Karls des Großen und somit als Halbbruder Ludwigs des Frommen. Ludwig stiftete schließlich im Jahr 817 ein Kloster, dem neben Walterich als Abt noch zwölf ausgewählte Mönche vom Kloster Reichenau als Brüder angehörten. Die neue Klosterkirche wurde nur wenige Schritte neben ihrem mittlerweile abgerissenen Vorgängerbau errichtet und besaß das Patrozinium der heiligen Maria, der Trinität und des heiligen Januarius. Um die wirtschaftliche Funktionsfähigkeit der Abtei sicherzustellen, schenkte Ludwig der Fromme dem Kloster den königlichen Forst zwischen Sulzbach an der Murr und Laufen am Kocher, die Pfarrei Fichtenberg sowie Höfe in Oßweil und Erdmannhausen. Im Jahr 839 hielt sich der Kaiser persönlich im Kloster Murrhardt auf und übergab Walterich bei dieser Gelegenheit ein Gebeinfragment des heiligen Januarius als Reliquie. Nur ein Jahr nach seinem Besuch in Murrhardt verstarb Ludwig der Fromme und seinem letzten Wunsch entsprechend wurde am 19. September 840, drei Monate nach seinem Tod, ein kostbares Silbergefäß mit dem mumifizierten Herz des Kaisers im Januarius-Altar der Klosterkirche feierlich beigesetzt; dort verblieb es, nebst einem wesentlich später geschaffenen und heute noch vorhandenen Kenotaph, bis in das 16. Jahrhundert, als Herzog Ulrich von Württemberg die Silberurne nach Stuttgart bringen und dort zusammen mit anderen Kirchenschätzen einschmelzen ließ. Um 840 starb auch Abt Walterich, der Neugründer des Klosters Murrhardt an einem 29. November und wurde noch am selben Tag in der Pfarrkirche St. Maria beigesetzt.
Übernahme durch das Bistum Würzburg und Kirchenneubau
Nach dem Tod Walterichs gelang es dem Geschlecht der Waltriche, ihren bestimmenden Einfluss im Murrhardter Kloster noch etwa ein Jahrhundert, bis zum Ende der ostfränkischen Karolinger aufrechtzuerhalten; der 906 urkundlich genannte Abt Engelbert ist wohl der letzte Vertreter, der den Waltrichen zugerechnet werden kann. Wenn auch keine schriftlichen Zeugnisse eines königlichen Eingreifens in die Amtsführung der Klostervorsteher überliefert sind, so besaß die Abtei in Murrhardt im ausgehenden 9. Jahrhundert faktisch den Status eines reichsunmittelbaren Königsklosters. Mit dem beginnenden 10. Jahrhundert durchlief das Kloster Murrhardt, wie viele Abteien in der damaligen Zeit, eine Periode des Niedergangs – insbesondere aufgrund der Einfälle der Ungarn und der damit eingehenden Einnahmeverluste verfiel die bauliche Substanz des Klosters nahezu vollständig. Die Grabung im Jahr 1973 in der Murrhardter Stadtkirche erbrachte den Nachweis, dass die Klosterkirche in wesentlichen Teilen durch einen Brand zerstört worden war – ob diese Zerstörung einem Überfall der Ungarn zuzurechnen ist, bleibt unbekannt; dafür spricht jedoch insbesondere der Umstand, dass zu dieser Zeit auf einem Bergsporn zwischen den Murrhardter Ortsteilen Hausen und Fornsbach ein Wach- und Meldeturm angelegt wurde, der noch heute den Namen Hunnenburg trägt. Nach dem Übergang der Macht von den, mittels der Waltriche auch persönlich mit Murrhardt verbundenen Karolingern auf die ortsfremden Ottonen verlor das Kloster seine bisherigen königlichen Gönner – diesen Umstand nutzte das Bistum Würzburg unter Bischof Bernward im Jahr 993, um das Kloster Murrhardt mittels gefälschter Dokumente an sich zu reißen und diesen Vorgang in Urkunden Kaiser Ottos III. bestätigen zu lassen. Unter Bernwards Nachfolger, Heinrich, wurde um das Jahr 1000 in der Abtei die gorzische Reform eingeführt, die alte, seit dem Brand nur noch als Ruine vorhandene karolingische Kirchenanlage völlig abgerissen und durch ein neues romanisches Januarius-Münster ersetzt. Dessen Krypta wurde eigens zur Verehrung des Gründungsabtes Walterich angelegt und schuf somit in der Klosterkirche einen Platz für den immer bedeutender werdenden Walterichskult in der Bevölkerung. Durch kaiserliche Schenkungen in den Jahren 1027, 1054 und 1064 erholte sich die wirtschaftliche Lage wieder und die Abtei Murrhardt konnte sogar Besitzungen bis in den Raum von Schwäbisch Hall sowie Jagsthausen hinzugewinnen.
Das Kloster Murrhardt im Hochmittelalter

Als wirtschaftlich blühendes Kloster befand sich die Abtei an der Wende zum beginnenden 12. Jahrhundert immer noch unter dem maßgeblichen Einfluss der Würzburger Bischöfe. Durch den 1076 beginnenden Investiturstreit geriet Murrhardt in den Brennpunkt der Auseinandersetzungen zwischen dem salischen Kaiser Heinrich IV. und Papst Gregor VII., da der papsttreue und später heiliggesprochene Bischof Adalbero aus Würzburg vertrieben wurde und sich bei der weiteren Unterstützung des Papstes nur noch auf die Klöster im Südwesten des Bistums, darunter auch das Kloster Murrhardt, stützen konnte. Unter dem Einfluss Adalberos trat die Abtei der Hirsauer Reform bei und stand in engstem Kontakt zu den wichtigsten Reformklöstern Süddeutschlands, wie Sankt Blasien, mit dessen Mönchen der Konvent von Murrhardt durch eine Gebetsverbrüderung verbunden war. Im Sinne dieser Reform wurde um 1130 das gesamte Kloster umgebaut und in Teilen neu errichtet; noch heute finden sich an den beiden, in dieser Periode erbauten, romanischen Türmen der Stadtkirche Bauformen, die nur der aus der hirsauischen Bauschule bekannt sind. Zu dieser Zeit besaß das Kloster Murrhardt bereits ein eigenes Münzrecht und prägte die sogenannten Murrhardter Pfennige. In der zweiten Hälfte des 12. Jahrhunderts geriet das Kloster infolge der häufigen Italienzüge Kaiser Barbarossas sowie der Verdrängung des Murrhardter Pfennigs durch den Heller in eine derart prekäre finanzielle Situation, dass die Verbindlichkeiten der Abtei nur durch die Veräußerung von Eigengütern wie dem Dorf Kirchenkirnberg beglichen werden konnten. Im Zuge der wirtschaftlichen Konsolidierung gelang es dem Kloster, dank einer Fälschung der Stiftungsurkunde, sich faktisch aus der Herrschaft der Würzburger Bischöfe zu befreien; maßgeblich für die Herrschaftsgewalt war nun die Vogtei, die zu dieser Zeit in den Händen der Grafen von Wolfsölden lag, deren Grablege sich seit knapp 200 Jahren im Kloster befand und die der Abtei eng verbunden waren. Eine Beziehung des staufischen Kaisers Friedrich II. mit Richina von Wolfsölden war wohl ursächlich für die kaiserliche Förderung erneuter Baumaßnahmen im Kloster um 1225 – zu dieser Zeit wurde die Klosterkirche, wahrscheinlich durch Mönch Gottfried, den Baumeister des benachbarten Klosters Komburg, in eine dreitürmige Anlage nach komburgischem Vorbild umgebaut und an den Nordturm die Walterichskapelle angefügt, in welche, nach der Seligsprechung und Öffnung des Grabs Walterichs, die Reliquien des Klostergründers überführt wurden. Diese außerordentlich prunkvollen Bauten, die zu den Höhepunkten süddeutscher Spätromanik zählen, markieren den Beginn der Wallfahrt zum Grab Walterichs, die, trotz der dazwischenliegenden Reformation, in Resten an Karfreitag noch heute zu beobachten ist.
Die Geschicke des Klosters vom Spätmittelalter bis zur Reformation

Das der Absetzung Friedrichs II. folgende Interregnum mit seinen teils heftigen Kämpfen im Murrtal überstand das Kloster Murrhardt weitgehend unbeschadet und seine Äbte wurden überdies mehrfach vom Papst mit der Schlichtung von Streitfällen in anderen Klöstern beauftragt. Durch den Verkauf der Grafschaft Löwenstein in ihrer Calwer Linie, die mittlerweile die Klostervogtei innehatte, an König Rudolf I von Habsburg im Jahr 1281 geriet die Abtei zu Beginn des Spätmittelalters praktisch unter die Herrschaft des Hauses Habsburg – mit dem unehelich geborenen ersten Sohn Rudolfs, Graf Albrecht I. von Löwenstein-Schenkenberg als Vogt, der im Jahr 1288 Murrhardt das Stadtrecht verlieh. Rückendeckung erhielt er dabei auch durch seinen jüngeren Halbbruder Albrecht I. von Habsburg der 1298 zum römisch-deutschen König gewählt worden war.
Wie bereits seine Vorgänger als Kirchenvögte, so wurde auch Graf Albrecht von Löwenstein 1304 vor dem Marienaltar der Klosterkirche beigesetzt. Um 1325 erfolgte unter seinem Sohn Nikolaus von Löwenstein der Umbau des Ostchores als würdige Grablege für sein Geschlecht. Seine Grabplatte mit romanischer Inschrift „Nicolaus comes de Löwenstein“ ist bis heute erhalten. Unter dem letzten der Löwensteiner Vögte, Albrecht II., geriet die Abtei Mitte des 14. Jahrhunderts erneut in größte wirtschaftliche Bedrängnis – der Grund hierfür lag zum einen in der verheerenden Pestepidemie ab dem Jahr 1348, dem Schwarzen Tod, und dem damit einhergehenden Zusammenbruch des mittelalterlichen Wirtschaftssystems sowie der kriegerischen Auseinandersetzung zwischen Reichsstädten und Fürsten, die erst mit der Schlacht bei Döffingen endete. Auch die hochverschuldete Grafschaft Löwenstein war nicht mehr in der Lage, ihren Verpflichtungen gegenüber den Gläubigern nachzukommen, und so ging im Jahr 1388 das Amt des Klostervogtes sowie die Herrschaft über die Stadt Murrhardt auf Graf Eberhard II. von Württemberg über. Von 1424 bis 1450 wurde die Klosterkirche erneut umfassend umgebaut – der romanische Westturm wurde abgerissen und die Vierung sowie der westliche Chor neu erbaut. Unter der württembergischen Herrschaft verschlechterte sich die Situation für das Kloster Murrhardt zunehmend; so musste die Abtei in der militärischen Auseinandersetzung zwischen Graf Ulrich V. und dem Kurfürsten Friedrich von der Pfalz der Grafschaft Württemberg nicht nur Truppen und Material stellen, sondern war auch verpflichtet, nach der Gefangennahme Ulrichs 1462 einen Teil des Lösegeldes für seine Freilassung bereitzustellen. Zwar gelang es den beiden Murrhardter Äbten Wilhelm Egen und seinem Nachfolger Johannes Schradin, die auch Stadt und Stadtmauer ausbauen ließen, dem Kloster zum Ende des 15. Jahrhunderts noch einmal zu einer letzten geistlichen und kulturellen Blüte zu verhelfen, doch bereits 1508 war der Konvent in vollständigem Niedergang begriffen. Mit den beginnenden sozialen Unruhen ab Beginn des 16. Jahrhunderts wurde der rasante Abstieg des Klosters Murrhardt noch einmal beschleunigt; ging der Aufstand des Armen Konrad 1514 im nahen Remstal an Murrhardt noch weitgehend vorbei, so traf der Bauernkrieg das Kloster umso härter. Am 25. April 1525 plünderten limpurgische Bauern die Abtei und vernichtete die klösterliche Bibliothek samt allen Büchern und Archivalien, die seit dem frühen Mittelalter dort aufbewahrt wurden. In den folgenden Wirren nach der Vertreibung Herzog Ulrichs von Württemberg schlug sich das Kloster auf die Seite der österreichischen Statthalterregierung des Hauses Habsburg. Unmittelbar nach Ulrichs Rückkehr aus dem Exil wurde in Württemberg die Reformation eingeführt, der Konvent des Murrhardter Klosters vom neuen Vogt Jakob Hofsess aufgelöst und der Großteil der Mönche vertrieben – lediglich Abt Martin Mörlin sowie drei Mönche verblieben in Murrhardt.
Interim, Restitution und das Ende

Die Teilnahme Württembergs am Schmalkaldischen Krieg auf Seiten des protestantischen Bundes führte zur Besetzung des Herzogtums durch die Armeen Kaiser Karls V.; auch in Murrhardt wurden im Sommer 1548 spanische Besatzungstruppen einquartiert und Abt Mörlin samt seinem geschrumpften Konvent wieder eingesetzt. Das Augsburger Interim hielt sich in Murrhardt bis 1552, als Abt Thomas Carlin verstarb und der württembergische Herzog Christoph den Sohn des Murrhardter Klostervogtes, Otto Leonhard Hofsess, der kurz zuvor als katholischer Mönch der Abtei beigetreten war, zum Nachfolger Carlins als Abt wählen ließ. Umgehend nach seiner Wahl trat Otto Leonhard Hofsess zum Protestantismus über und wurde der erste evangelische Abt Murrhardts sowie das Kloster nachfolgend reformiert. Von 1556 bis 1634 existierte dann ein evangelisches Klosteramt. Klostervogt Jakob Hofsess wurde 1574 wegen der Veruntreuung von 7000 Gulden schuldig gesprochen und in Murrhardt öffentlich enthauptet. Infolge der verlorenen Schlacht bei Nördlingen im Dreißigjährigen Krieg am 6. September 1634 ging das Kloster wieder in den Besitz der Benediktiner über. Unter Führung des Abtes Emmerich Fünkler und seines Stellvertreters, Prior Adam Adami, versuchten diese, in den folgenden 13 Jahren in Murrhardt die Restitution, auch mittels Waffengewalt durchzusetzen – jedoch ohne tiefgreifenden Erfolg. Prior Adami vertrat schließlich ab 1644 als Vertreter die Klöster bei den Friedensgesprächen in Münster. Am 24. Oktober 1648 wurde der Westfälische Frieden unterzeichnet, auch von Adami, der nachfolgend die katholische Sache noch als Weihbischof von Hildesheim vertrat. Der Konvent wurde nach dem Ende des Dreißigjährigen Krieges unter dem letzten Abt Joseph Huff endgültig aufgelöst; die Existenz des katholischen Klosters Murrhardt war damit nach fast 900 Jahren seines Bestehens für immer beendet. Danach wurde das evangelische Klosteramt wiederhergestellt und existierte dann bis zur Säkularisation 1806.
Baugeschichte
Die älteste Klosteranlage (Bauperiode I)
Die ursprüngliche Kirche des Klosters Murrhardt wurde als Saalkirche (14 × 7,5 m) erbaut; im Ostbereich erweiterte sich das Gebäude um einen 3,5 Meter breiten Rechteckchor. Seitlich des Saales schlossen sich zwei unterschiedlich große Nebenräume an, denen erhöhte Altarstellen und die zentrale, dreiseitige Chorschrankenanlage am östlichen Ende angegliedert waren. Die Chorschranken, mit der ein rund 4 × 4 m großer Bezirk abgetrennt wurde, standen auf einem in der gesamten Anlage durchgängigen Estrichfußboden; nur im Ostchor war dieser um eine Stufe erhöht. Am westlichen Ende des Chorraumes befand sich der zentrale Kreuzaltar der Kirchenanlage. Da Walterich, der Gründer des Murrhardter Klosters zuvor bereits als zweiter Abt der Mönchsgemeinschaft in Neustadt am Main wirkte, geht die Forschung aufgrund der fast identischen Baugrundrisse davon aus, dass dieser älteste Sakralbau nach dem Vorbild des Neustädter Klosters St. Peter und Paul erbaut wurde. Direkt an das östliche Ende der Klosterkirche wurde eine rechteckige und 3 × 4,4 m messende Außenkrypta als Grabstätte für die bestehende Mönchsgemeinschaft angebaut, da die Kirchenordnung im karolingischen Herrschaftsbereich eine Bestattung in Kirchenräumen untersagte. Die archäologischen Befunde legen nahe, dass die äußere Krypta als Tonnengewölbe konzipiert und gebaut wurde. Darüber hinaus befand sich unmittelbar nördlich der Kirche, in der Ecke zwischen Chor und nördlicher Seitenkapelle, eine einzelne Außenbestattung – deren bevorzugte Lage in Nähe des Altarraumes legt nahe, dass es sich hier um eine höhergestellte Persönlichkeit, jedoch nicht den Klostergründer und ersten Abt Walterich, gehandelt hat. Im Verlauf des 9. Jahrhunderts wurde am westlichen Teil der Klosterkirche abschließend noch ein Klausurgebäude für den Konvent angefügt.
Das Kloster des 11. und 12. Jahrhunderts (Bauperiode II)

Während dieser Bauphase wurde das Klostergebäudenach nach dem Vorbild der hirsauischen Bauschule umgebaut und eine dreischiffige, doppelchörige Pfeilerbasilika mit den Maßen 38 × 11,9 m errichtet; im Gegensatz zu der mit den karolingischen Bauplänen vorgegebenen Ostausrichtung der vergangenen Jahrhunderte befand sich das liturgische Zentrum des Sakralbaus nun im Westen. Das westliche Kirchenschiff kreuzte ein Langhaus mit sechs Arkaden, im Osten schlossen sich an den Hauptchor sowie zwei Nebenchöre jeweils Apsiden an. Westlich des Querhauses befand sich ein rechteckiger Chor, darunter eine kleine Hallenkrypta in der Tradition ottonischer Vierstützenkrypten. Aufgrund von Keramik- und Münzfunden, die 1973 bei der Untersuchung von Grabanlagen im Kirchengebäude gemacht wurden, lässt sich der Neubau der Basilika auf die Zeit von Anfang bis Mitte des 11. Jahrhunderts datieren. In direktem Zusammenhang mit der Neugestaltung des Kirchenbaues ist auch die bedeutendste Grablege innerhalb der romanischen Basilika zu sehen. Aufgrund der zentralen Lage der Begräbnisstätte auf der Mittelachse der Kirche ist davon auszugehen, dass es sich hierbei um das Grab einer für die Baugeschichte wichtige Persönlichkeit handelt; hierbei erscheint die letzte Ruhestätte eines Murrhardter Abtes naheliegend. Anhand der zeitlichen Einordnung der Bauarbeiten an der Pfeilerbasilika kommen hierfür die urkundlich verbrieften Äbte Adalof (1027) oder Wizo (1064) in Betracht. Vor dem Altar des nördlichen Seitenschiffs befand sich die Familiengrablege der ersten Vögte des Klosters Murrhardt aus dem Geschlecht der Grafen von Wolfsölden. Die Familiengruft wurde bis in die Mitte der dreißiger Jahre des 12. Jahrhunderts genutzt; die letzte Bestattung erfolgte für einen knapp dreißigjährigen Mann, der durch vier Schwerthiebe in die Stirn ein sehr gewalttätiges Ableben erfahren hatte. Aufgrund anthropologischer Untersuchungen der sterblichen Überreste sowie urkundlich belegter Verwicklungen der Hessonen in die Calwer Erbfehde nach dem Tode Gottfrieds von Calw im Jahr 1131 ist davon auszugehen, dass es sich bei dem Erschlagenen um Graf Gottfried von Wolfsölden handelt. In einer nächsten Bauphase zur Mitte des 12. Jahrhunderts wurden die beiden östlichen Nebenchöre durch zwei 19 Meter hohe Chorflankentürme ersetzt, die heute noch Bestand haben. Mit dieser zeitlichen Datierung zählen die beiden Turmbauwerke des Murrhardter Klosters zu den frühesten Ausprägungen ihrer Art. Zusätzlich wurde in etwa zeitgleich in der Nähe des südlichen Querarmes der Basilika eine neue Klausur in Vierflügelanlage errichtet.
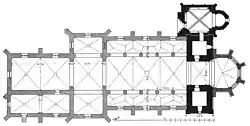
Bau- und Ausstattungsmaßnahmen des 13. und 14. Jahrhunderts (Bauperioden III und IV)
_413.jpg)
Als bedeutendste Baumaßnahme des 13. Jahrhunderts im Kloster Murrhardt ist sicherlich der Bau der Walterichskapelle anzusehen, der in die Jahre von 1230 bis 1240 datiert. In ihrem ursprünglichen Zweck diente die Kapelle der Verehrung des Gründerabtes und kanalisierte die aufkommende Wallfahrt zum Kloster des als wundertätig geltenden Walterich. Die lange Zeit vorherrschende Einschätzung des Bauwerks als Grabkapelle des Klostergründers wurde durch Grabungen in den Jahren 1952 sowie 1963 widerlegt – im letztgenannten Jahr wurde schließlich das Grab Walterichs bei archäologischen Untersuchungen in der Murrhardter Marienkirche, heute Walterichskirche, aufgefunden. Daher ist die Walterichskapelle als Memorialbau oder Oratorium anzusehen, die dem Gedenken des zwar nie heiliggesprochenen, in Murrhardt aber als Heiligen verehrten Klostergründers Walterich gewidmet war. Etwa zeitgleich erhielt die Kirche während dieser Bauperiode einen Westturm mit einer Höhe von 20 bis 25 Meter – dieser befand sich direkt über der westlichen Krypta und wandelte das Erscheinungsbild des Sakralbaues in eine Dreiturmkirchenanlage nach dem Vorbild der nicht weit entfernten Kirche St. Nikolaus auf der Comburg bei Schwäbisch Hall. Anhand der großen architektonischen Übereinstimmungen bei beiden Kirchengebäuden geht die Forschung davon aus, dass der Baumeister der Comburger Anlage, ein urkundlich mehrfach bezeugter Mönch Gottfried auch für die Erweiterung der Murrhardter Klosterkirche verantwortlich zeichnete. Mit der Bauperiode IV wurde die alte Ostapsis im frühen 14. Jahrhundert durch den noch heute bestehenden Polygonchor ersetzt. Dieser Neubau des Ostchores ist in engem Zusammenhang mit der Übernahme der Klostervogtei durch das Haus Löwenstein im Jahr 1281 zu sehen, da Graf Albrecht I. von Löwenstein die Murrhardter Klosterkirche als Grablege für sein Geschlecht ausgewählt hatte und daher ein repräsentativer und zeitgemäßer Bau benötigt wurde. Albrecht I. wurde nach seinem Ableben im Jahr 1304 zentral zwischen den beiden Chorflankentürmen vor dem Marienaltar, vor unserer frouwen altare[1], bestattet. Weiter östlich im Chor setzte man 1339 seinen Sohn und Nachfolger als Grafen, Nicolaus von Löwenstein, bei. Etwa aus dieser Zeit stammt auch die Kreuzigungsgruppe, aus der sich die Holzskulpturen Maria und Johannes erhalten haben.[2] In einer letzten spätromanischen Bauphase ab Mitte des 13. Jahrhunderts entstanden die noch heute vorhandenen Klausurgebäude der Alten Abtei, der Fürstenbau und das Refektorium sowie ein Neubau des Kreuzganges, von dem sich aber keine Reste mehr erhalten haben.
Bau und Ausstattung ab dem 15. Jahrhundert (Bauperiode V)

Mit Beginn des 15. Jahrhunderts erfolgte eine letzte Umgestaltung der Murrhardter Abtei – dabei wurde von Westen ausgehend mit einem umfassenden Neubau der Klosterkirche begonnen. Das romanische Querhaus und der markante Westturm wurden durch ein nur um Mauerstärke vergrößertes Querhaus und einen zweijöchigen Westchor ersetzt; südlich schloss sich noch eine Marienkapelle an. In einer folgenden Bauphase wurde das Langhaus in Form einer dreischiffigen Basilika neu errichtet – die Seitenschiffe weisen hierbei drei Joche, das Mittelschiff dagegen fünf Joche aus. Aus der zweiten Hälfte des 15. Jahrhunderts stammt ein Fragment aus einer Beweingungsgruppe, das sich heute im Landesmuseum Württemberg befindet.[3]
Nach der Reformation
Da die Klausurgebäude durch die Kampfhandlungen des Schmalkaldischen Krieges zur Mitte des 16. Jahrhunderts stark in Mitleidenschaft gezogen wurden, mussten die Westflügelgebäude der alten Abtei endgültig aufgegeben und in der Folgezeit abgebrochen werden.
Liste der Äbte des Klosters Murrhardt

|
| |||||||||||||||||||||||||||||||||||||||||||||||||||||||||||||||||||||||||||||||||||||||||||||||||||||||||||||||
Literatur
- Werner-Ulrich Deetjen: Die Reformation der Benediktinerklöster Lorch und Murrhardt unter Herzog Ulrich und das „Judicium de votis monasticis“. In: Blätter für württembergische Kirchengeschichte 76 (1976), S. 62–115.
- Gerhard Fritz: Kloster Murrhardt im Früh- und Hochmittelalter. Eine Abtei und der Adel an Murr und Kocher. (= Forschungen aus Württembergisch-Franken. Bd. 18). Thorbecke, Sigmaringen 1982, ISBN 3-7995-7617-7.
- Gerhard Fritz: Stadt und Kloster Murrhardt im Spätmittelalter und in der Reformationszeit. (= Forschungen aus Württembergisch-Franken. Bd. 34). Thorbecke, Sigmaringen 1990, ISBN 3-7995-7634-7.
- Ulrike Plate: Das ehemalige Benediktinerkloster St. Januarius in Murrhardt – Archäologie und Baugeschichte. (= Forschungen und Berichte der Archäologie des Mittelalters in Baden-Württemberg. Bd. 34). Herausgegeben vom Landesdenkmalamt Baden-Württemberg. Konrad Theiss Verlag, Stuttgart 1996, ISBN 3-8062-1230-9.
- Heinrich Wagner: Die Privilegierung des Klosters Murrhardt durch Ludwig den Frommen. In: Deutsches Archiv für Erforschung des Mittelalters 57 (2001), S. 421–450.
- Rolf Schweizer: St. Walterich und sein Kloster in Murrhardt – Sein Leben und Wirken. Geiger-Verlag, Horb am Neckar 2013, ISBN 978-3-86595-522-7.
- Gerhard Fritz: Die Anfänge des Klosters Murrhardt. In: Württembergisch Franken. Jahrbuch 100 (2016), S. 7–26.
- Gerhard Fritz: Kloster Murrhardt und die Reformation unter besonderer Berücksichtigung der Murrhardter Besitzungen in Schwäbisch Hall. In: Württembergisch Franken. Jahrbuch 102 (2018), S. 135–152.
- Gerhard Fritz: Murrhardt und der Dreißigjährige Krieg 1618 bis 1648. Religionskonflikt – Militär – Kriegsfolgen (= . Historegio. Band 13). Remshalden 2021, ISBN 978-3-948138-06-6.
Einzelnachweise
- ↑ Gerhard Fritz: Die Geschichte der Grafschaft Löwenstein und der Grafen Löwenstein-Habsburg, in: Württembergisch Franken 29 (1986) S. 260 f
- ↑ Maria und Johannes aus einer Kreuzigungsgruppe. In: Sammlung Online. Landesmuseum Württemberg, abgerufen am 14. April 2024.
- ↑ Trauernde Maria und Johannes der Evangelist aus Murrhardt. In: Sammlung Online. Landesmuseum Württemberg, abgerufen am 14. April 2024.
Weblinks
- Das Kloster Murrhardt auf der Website der Stadt Murrhardt
Koordinaten: 48° 58′ 46″ N, 9° 34′ 42″ O