Kloster Beaulieu-en-Rouergue
| Zisterzienserabtei Beaulieu-en-Rouergue (Belloc) | |
|---|---|
![]() | |
| Lage | Region Okzitanien Département Tarn-et-Garonne |
| Koordinaten: | 44° 12′ 36″ N, 1° 51′ 14″ O |
| Ordnungsnummer nach Janauschek |
195 |
| Gründungsjahr | 1144 |
| Jahr der Auflösung/ Aufhebung |
1791 |
| Mutterkloster | Kloster Clairvaux |
| Primarabtei | Kloster Clairvaux |
|
Tochterklöster |
keine |
Das Kloster Beaulieu-en-Rouergue (Bellus locus; Belloc) ist eine ehemalige Zisterzienserabtei in der Gemeinde Ginals im Département Tarn-et-Garonne, Region Okzitanien, rund zehn Kilometer südöstlich von Caylus in Frankreich, im Tal der Seye.
Geschichte

Das Kloster wurde 1144 nach einer Stiftung des Bischofs Adhemar III. von Rodez als Tochterkloster der Primarabtei Clairvaux gegründet. Es wird vermutet, dass die erste Kirche während des Albigenserkreuzzugs zerstört wurde. Erst nach Landschenkungen des Bischofs Vivian von Rodez blühte das Kloster auf. Es besaß die Grangien Saint-Journet und Bosc-Gayral, mehrere Mühlen und Meiereien. Auch in den Religionskriegen geriet das Kloster zwischen die Fronten des protestantischen Saint-Antonin-Noble-Val und des katholischen Caylus und erlitt Plünderungen und Zerstörungen. Im 16. Jahrhundert fiel es in Kommende. 1768 waren noch drei Mönche im Kloster. Während der Französischen Revolution wurde das Kloster 1791 aufgelöst und als Nationaleigentum verkauft. Nachdem Pläne, die Kirche zu versetzen, nicht durchgeführt worden waren, wurde die Anlage 1875 zum Monument historique erklärt. Nach langer landwirtschaftlicher Nutzung kam das Kloster 1960 an das Ehepaar Brache und im Jahr 1973 an die Caisse nationale des monuments historiques et des sites, die es zu einem Zentrum für zeitgenössische Kunst ausbaute.
Bauten und Anlage

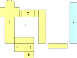
Die Anlage folgt dem bei Zisterzienserklöstern üblichen Schema. Die ab 1275 erbaute kreuzförmige Kirche (1) mit einer Trompenkuppel über der Vierung liegt im Norden des Kreuzgangs. Der polygonal geschlossene Chor besitzt sieben Lanzettfenster. Im südlichen Querhaus sind noch Reste der Dormitoriumstreppe zu sehen. Der kreuzgratgewölbte Kapitelsaal (2) mit rechtwinkligen Rippen weist zwei im Schaft zylindrische Säulen auf. Darüber befindet sich das mittelalterliche Dormitorium. Der Kreuzgang (3) ist nicht erhalten. Der Südflügel mit dem Refektorium wurde im 17. und 18. Jahrhundert zu einem Abtshaus umgebaut. Vom Konversenbau im Westen (4, 5) sind der mittelalterliche Keller und das 1967 als Ausstellungsraum wieder hergestellte Laiendormitorium erhalten. Südlich davon befindet sich das Refektorium (6). Etwas abseits befinden sich die Fischteiche (7).
Literatur
- Bernard Peugniez: Routier cistercien. Abbayes et sites. France, Belgique, Luxembourg, Suisse. Nouvelle édition augmentée. Éditions Gaud, Moisenay 2001, ISBN 2-84080-044-6, S. 274–276.
- Jean-Pierre Colle: Beaulieu – centre d’art contemporain. In: Dossiers d’Archéologie. Nr. 234, 1998, ISSN 1141-7137, S. 12–13 (mit weiteren Literaturhinweisen).
