Kloster

Ein Kloster ist eine bauliche Anlage, die von einer religiösen Lebensgemeinschaft (Ordensgemeinschaft) genutzt wird oder wurde. Christliche Klöster, denen eine Äbtissin oder ein Abt vorsteht, nennt man Abtei.
Die in manchen Orden Mönche beziehungsweise Nonnen genannten Bewohner leben in einer auf die Ausübung ihres Glaubens konzentrierten Lebensweise in Klosteranlagen zusammen. Diese bestehen in der Regel aus Kult-, Wohn- und Wirtschaftsgebäuden und eventuell noch weiteren Bauwerken.
Im westlichen Kulturraum sind insbesondere christliche Klöster bekannt, die größtenteils der katholischen Kirche und den orthodoxen Kirchen zugehören. Es gibt auch protestantische (beispielsweise das Kloster Amelungsborn) und ökumenische Klostergemeinschaften (wie die Communauté de Taizé). Daneben bezeichnet man auch Klosteranlagen asiatischer Religionen, insbesondere die Wohnanlagen buddhistischer Mönche sowie die Gebets- und Meditationszentren hinduistischer Gemeinschaften, als Klöster.
Christliche Tradition
Grundbegriffe
Die Benennung Kloster stammt vom lat.: claustrum, was „verschlossener Ort“ bedeutet (vgl. auch: Klausur). Später wurde mit claustrum insbesondere der für die abendländische Klosterarchitektur typische, im Deutschen „Kreuzgang“ genannte Innenhof eines Klosters bezeichnet. Im Englischen (cloister), Französischen (cloître), Italienischen (chiostro), Spanischen (claustro) und in anderen Sprachen lebt die lateinische Wurzel bis heute in dieser spezifischen Bedeutung fort. Im Deutschen, Niederländischen (klooster), Ungarischen (kolostor), Estnischen (klooster), Polnischen (klasztor), Tschechischen (klášter) und in den skandinavischen Sprachen (kloster) wurde die Benennung dagegen generalisiert und bezeichnet das Klosterbauwerk als Ganzes bzw. das Kloster als Einrichtung an sich.
Die klösterliche Lebensform christlicher Ordensleute wird teilweise als monastisch bezeichnet, was sich aus dem griechischen Wort für „Mönch“ (μοναχός, monachós) ableitet. Von dem davon abgeleiteten μοναστήριον monastḗrion (lateinisch Monasterium) stammen die dem deutschen Begriff „Kloster“ entsprechenden Benennungen in vielen anderen Sprachen: monastery (engl.), Монастырь (russ.), monastère (franz.), monasterio (span.). Diese Wurzel hat sich im Deutschen auch in dem Wort Münster (ahd. munistri, munsri) erhalten.
Im westkirchlichen Bereich sind Klosterbewohner heute in der Regel Angehörige einer Ordensgemeinschaft und werden in den kontemplativen Orden Mönche und Nonnen genannt. Kennzeichnend für die Lebensweise der klösterlichen Orden ist das gemeinschaftliche Leben (Vita communis), das aus dem frühchristlichen Koinobitentum entstanden ist. Es gibt allerdings weiterhin auch Klöster, deren Insassen eine stärker eremitische Lebensweise pflegen (z. B. Kartäuser).
Als Konvent wird in der Regel die gesamte Gemeinschaft der Religiosen bezeichnet, die in einem Kloster lebt, besonders bei den Bettelorden.[1] Der Ausdruck wird manchmal auch für den Wohnbereich des Klosters selbst verwendet. Im engeren Sinne bezeichnet Konvent die Versammlung der Konventualen, der stimmberechtigten Mitglieder der Gemeinschaft.[2] Klöster, denen regulär ein Abt oder eine Äbtissin vorsteht, nennt man Abtei. Weitere Begriffe für Niederlassungen verschiedener Orden sind Priorat, Residenz, Hospiz, Haus, Kommunität oder Fraternität. Eine Besonderheit ist die Bezeichnung Karmel für ein Kloster der Karmeliten oder Karmelitinnen nach dem Karmelgebirge in Israel.
Aufbau


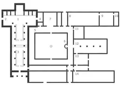
Der idealtypische bauliche Grundriss eines frühmittelalterlichen Klosters lässt sich am Klosterplan St. Gallen ablesen. Die Klosterkirche bildet in der Regel den räumlichen und geistlichen Mittelpunkt einer Klosteranlage. Der Klosterhof ist die meist quadratische und von einem Kreuzgang umgebene Zentralfläche eines Klosters, um die sich Klosterkirche, Refektorium (Speisesaal), Dormitorium (Schlafräume) und Kapitelsaal (Versammlungsraum), manchmal ein Infirmarium (Krankenabteilung) sowie das Necessarium (Bedürfnisraum) gruppieren. Je nach Ausrichtung des Klosters gab es eine Schreibstube (Scriptorium). In der Regel auch eine Bibliothek und ein Gästehaus. Daneben gehören häufig eine Reihe von Neben- und Wirtschaftsgebäuden zur Klosteranlage, etwa für die Landwirtschaft und bei den Zisterziensern für die Fischzucht.
Für Priestermönche und Laienmönche (Konversen) bestanden in vielen Abteien getrennte Räumlichkeiten mit eigenen Refektorien, Schlafsälen und Infirmarien.
Klostermauern und Klostertor mit Pforte verhinderten unerlaubtes Verlassen oder Eindringen in das Kloster.
Bei den Bettelorden war das Raumprogramm einfacher. Die Klöster und Kirchen lagen in den Städten und nicht, wie meist bei Benediktinern und Zisterziensern, auf dem Land, woraus sich eine beengte innerstädtische Bauweise ergab. Im Mittelalter herrschte jedoch auch hier der Typus von Klostergebäuden vor, die um einen Innenhof gruppiert waren und unmittelbar an die Bettelordenskirche anschlossen.
Klosterleben
Für klassische Klöster ist die monastische (mönchische) Lebensform bestimmend. Sie ist durch gemeinschaftliches und individuelles Gebet, Einkehr, Stille, Kontemplation und Abgeschiedenheit von der Welt, körperliche Arbeit, geistiges und geistliches Studium und Gastfreundschaft gekennzeichnet. Für monastische Orden ist darüber hinaus typisch die lebenslange Bindung des Mönchs oder der Nonne an das Kloster, in das er oder sie eingetreten ist. Bei anderen Orden, etwa die Bettelorden, ist die Möglichkeit einer Versetzung von einem Kloster in ein anderes üblich.
Ein Kloster ist im Westen meist einer Ordensgemeinschaft zugeordnet, deren Regel das Leben im Kloster bestimmt. Monastische Orden, die klausuriert in Klöstern leben, sind etwa Benediktiner, Zisterzienser, Trappisten, Kartäuser sowie die Karmelitinnen und die Klarissen. Ordensleute, die auch, aber nicht ausschließlich in Klöstern leben und kein streng monastisches Leben führen, sind etwa die Bettelorden (z. B. Franziskaner, Dominikaner und Karmeliten) oder die Regularkanoniker (z. B. Prämonstratenser).

In der östlichen Tradition sind Klöster weitaus eigenständiger als in der Westkirche. Sie sind entweder ganz autonom oder zu lockeren Verbänden, nicht aber wie in der Westkirche Orden oder zu klösterlichen Kongregationen gruppiert. Zugleich spielen Klöster für das religiöse und kirchliche Leben der orthodoxen Kirchen eine höchst bedeutsame Rolle. Nahezu der gesamte höhere Klerus dieser Kirchen entstammt dem Mönchtum.
Geschichte und kulturelle Bedeutung

Die ersten Klöster sind im 4. Jahrhundert aus Einsiedlerkolonien hervorgegangen (Ägypten und Palästina).
Das von 361 bis 363 in Ägypten errichtete koptische Antoniuskloster (Antonius dem Großen gewidmet) wird als das älteste christliche Kloster der Welt angesehen. Ebenfalls sehr alt ist das noch bestehende Kloster Mor Gabriel im Tur Abdin (Türkei), das im Jahr 397 von Shmuel (Samuel) und seinem Schüler Shem'un (Simon) gegründet wurde. Das bedeutet, dass die Mönche und Nonnen eine seit 1600 Jahren ununterbrochen andauernde Tradition fortführen.
Zu den ersten westlichen Klöstern zählen das Kloster Marmoutier an der Loire, das vom heiligen Martin von Tours gegründet worden sein soll, sowie auf deutschem Boden die Abtei St. Maximin in Trier. Die Abtei Saint-Maurice, die 515 von König Sigismund errichtet wurde, ist das älteste ohne Unterbrechung bestehende Kloster in Westeuropa. Benedikt von Nursia gründete im Jahr 529 in Montecassino sozusagen den Prototyp des abendländischen Klosters und stellte für das Zusammenleben im Kloster eine Regel zusammen, die Regula Benedicti, die über viele Jahrhunderte die Entwicklung der Klöster geprägt hat. Das darauf fußende benediktinische Mönchtum ist bis heute die prägende monastische Richtung der abendländischen Christenheit. Die orthodoxen und orientalischen Klöster der östlichen Tradition folgen dagegen mehrheitlich der Mönchsregel des Basilius von Caesarea oder der des Theodor Studites.
Von Anfang an waren die Klöster nicht nur Orte geistlichen Lebens, sondern auch Zentren der handwerklichen und landwirtschaftlichen Kunst sowie der Erforschung und Sammlung von Wissen (Klosterbibliothek). Sie spielten damit eine wichtige Rolle für den Erhalt oder Wiedererwerb des seit der Antike verloren gegangenen Wissens und dessen Verbreitung. Hervorzuheben ist hier insbesondere das von Cassiodor um 554 in Süditalien gegründete Vivarium.


Im Mittelalter waren Klöster bedeutsam für die Ausbildung der abendländischen Kultur und Zentren der Bildung. Kulturelle Arbeiten fanden fast ausschließlich in Klöstern statt. Mönche kopierten alte Bücher, fertigten Kunstwerke und Kulturgüter wie beispielsweise die Reichskleinodien des Heiligen Römischen Reiches an und unterhielten Klosterschulen für ihren Nachwuchs. Grundlegende Kulturtechniken wie das Lesen und Schreiben waren über lange Zeit praktisch nur in den Klöstern verbreitet. Diese führten auch eigene handwerkliche und landwirtschaftliche Betriebe und entwickelten praktische Techniken im Landbau, in der Pflanzenzucht oder der Kräuter- und Heilkunde (Klostergarten), die sie mitunter auch an die Bevölkerung weitergaben. Damit fungierten die Klöster als Stützpunkte der Missionierung und Kultivierung und wurden zu wichtigen Entwicklungszentren. Umsichtige Landesherren erkannten dies. Sie gründeten Klöster oft in unterentwickelten Gegenden und statteten sie mit großen Ländereien aus. Die Bezeichnung Stift, die an die Stiftung durch einen weltlichen Herrn erinnert, ist daraus entstanden. Ein typischer Kolonisationsorden waren die Zisterzienser, die vor allem im Norden und Osten Europas umfangreiche Waldgebiete rodeten und zur Erschließung durch Siedler vorbereiteten.
Immer wieder richteten sich monastische Reformbewegungen gegen eine zu starke Verweltlichung der Klöster. Hier ist etwa die Cluniazensische Reform zu nennen, die von der Abtei Cluny ausging, oder der Reformorden der Zisterzienser. Überhaupt lässt sich die Geschichte der Klöster als steter Wechsel zwischen „Verweltlichung“ und Reform im Sinne einer Rückbesinnung auf die Regeln lesen. Der Grund für die immer vorhandene Gefahr von Missständen in den Klöstern war besonders die Tatsache, dass der Eintritt in ein Kloster nicht immer aus religiösen Gründen und freiwillig erfolgte, sondern auch weltliche Motive wie politischer Machtgewinn und Einflussnahme (etwa von Adelsfamilien im Mittelalter), wirtschaftliche und soziale Absicherung und Versorgung (bspw. nicht erbberechtigter Kinder, die keine wirtschaftliche Grundlage für die eigene Familiengründung besaßen) oder Prestige- und Karriereziele eine Rolle spielten. Die unzureichende persönliche Identifikation Einzelner oder ganzer Gruppen von Gemeinschaftsmitgliedern mit den religiös-asketischen Zielen des Klosterlebens konnte allmählich zum Verfall der Sitten des gesamten Klosters führen, zumal ein Verlassen des Klosters meist nur durch Flucht möglich war. So kamen u. a. mehrere Päpste in Klosterhaft.[3] Gerade die reformorientierten, den klösterlichen Idealen streng verpflichteten Klöster und Klosterverbände gewannen allerdings im Mittelalter großen wirtschaftlichen und politischen Einfluss, was aus heutiger Sicht auch als eine Form der „Verweltlichung“ erscheinen mag, dem damaligen Weltbild zufolge aber in der Regel positiv gewertet wurde.
Mit dem wachsenden Einfluss der Städte sank die Bedeutung der klassischen, monastischen Klöster. Deren Rolle als Zentren der Kultur und Entwicklung übernahmen nun die Städte mit ihren Handwerkern, Schulen und Universitäten. Mit dem Aufkommen der Hospital- und Bettelorden (Franziskaner, Dominikaner, Karmeliten, Augustiner, Antoniter) entstand der neue Typ des Stadtklosters, in dem sich eine völlig andere Art des Ordenslebens etablierte, das keine klassischen monastischen Ideale mehr verfolgte. Diese Klöster lagen nicht abgeschieden in schwer zugänglichen Gegenden, sondern mitten in den aufstrebenden Städten. Praktisch alle größeren Stadtgründungen erhielten mindestens ein Kloster innerhalb der Stadtmauern. Die Ordensbrüder waren auch nicht mehr wie Mönche an das Kloster gebunden, sondern konnten innerhalb ihres Ordens versetzt werden oder begaben sich auf Wanderschaft. Sie führten kein rein kontemplatives Leben, sondern wirkten im kirchlichen Dienst unter den Menschen und widmeten sich vor allem der Seelsorge, der Predigt und anderen kirchlichen Aufgaben.
Frauen stand diese neue Form des religiösen Lebens allerdings aufgrund der damaligen gesellschaftlichen Beschränkungen bis ins 19. Jahrhundert hinein nur sehr begrenzt offen. Unter anderem deshalb führten Nonnen auch in späterer Zeit generell ein streng klausuriertes, kontemplatives Leben, selbst wenn ihre Klöster in der Stadt lagen und unabhängig davon, ob sie in der Tradition der alten monastischen Klöster oder der Bettelorden (wie die Karmelitinnen oder die Klarissen) standen. Das änderte sich erst langsam mit dem Aufkommen der weiblichen Schulorden und der karitativen Schwesterngemeinschaften, die in Krankenhäusern, Schulen oder ähnlichen Einrichtungen wirkten. Damit erschloss sich Frauenorden und damit den Frauenklöstern ein neuer Aufgabenbereich in der Armenfürsorge, der Krankenpflege und Altenpflege.
In den von den Umwälzungen der Reformation betroffenen Landstrichen wurden bereits im 16. Jahrhundert viele Klöster aufgehoben, da die meisten protestantischen Reformer dem Ordensleben ablehnend gegenüberstanden und die Ordensleute zum Verlassen ihrer Klöster aufforderten. Auch durch Kriegseinwirkungen und Plünderungen kam es (besonders etwa im Dreißigjährigen Krieg in Deutschland) immer wieder zur Zerstörung von Klöstern, die dann nicht immer wieder aufgebaut wurden. Den größten Einschnitt bildete dann aber die Auflösung der Kirchengüter durch die Säkularisation im Anschluss an die Französische Revolution und die Verbreitung des Gedankens einer säkularen Staatsräson in den durch Napoleon dominierten Gebieten. Durch Säkularisation fielen die Klostergüter entweder direkt an den Staat oder aber an adlige, seltener auch an bürgerliche Familien. Von der Säkularisation infolge des Reichsdeputationshauptschlusses (1803) waren auf einen Schlag etwa 300 Stifte, Klöster und Abteien betroffen. Sie wurden zum Teil abgerissen, zum Teil anderweitig genutzt oder verkauft. Viele Klosterkirchen wurden (häufig auch auf Druck der Gläubigen hin) in Pfarrkirchen umgewandelt, um sie vor der Zerstörung zu retten. Die Klosterbibliotheken dagegen wurden aufgelöst; ihre Bestände gingen in Staatsbesitz über oder wurden in private Bibliotheken eingegliedert. Viele Bücher gingen auch verloren.

Zu einer Wende kam es erst, als Ordensgemeinschaften in der zweiten Hälfte des 19. Jahrhunderts säkularisierte Klöster zurückkaufen konnten oder in katholischen Ländern teilweise rückübertragen bekamen. Seit dieser Zeit sind auch neue Klöster errichtet und neue Ordensgemeinschaften gegründet worden. Während viele Klöster den Nationalsozialismus weitgehend unversehrt überstanden, kam es im Herrschaftsgebiet des Kommunismus, so auch in Ostdeutschland nach 1945, erneut zu Auflösungen bzw. zur Verstaatlichung von Klosterbesitz. In Ostdeutschland wurden die Immobilien nach der Wende von 1989 rückübertragen. Seither kam es auch dort wieder zu Neugründungen. Insgesamt ist der Nachwuchs der Klöster Westeuropas aber im Laufe des 20. Jahrhunderts aufgrund der generell abnehmenden Bedeutung des Christentums und der Frömmigkeit in der modernen, pluralistischen Gesellschaft stark zurückgegangen.
Islamische Tradition
Auch der Sufismus kennt ein verschiedenartiges konventuales Zusammenleben von Brüdern, das aber mit den abendländischen klösterlichen Traditionen nicht linear vergleichbar sind.
Siehe dazu:
Buddhistische Tradition



In der Anfangszeit des Buddhismus war das Leben der buddhistischen Mönche dadurch gekennzeichnet, dass sie sich im Gegensatz zu den praktizierenden buddhistischen Laien stets auf der Wanderschaft befanden, wie ja der Religionsstifter Buddha auch selbst bis zu seinem Tode ein itinerantes Leben geführt hatte. Die buddhistischen Klöster entstanden als Aufenthaltsort der Mönche während der Regenzeit.
Zunächst wurden von den gläubigen Laien Grundstücke gestiftet, damit die Mönche während der Regenmonate ihre provisorischen Unterkünfte darauf errichten konnten. Erst später wurden ihnen auch feste Unterkünfte zur Verfügung gestellt und der Wohnbereich schließlich um eine zentrale Halle für Zusammenkünfte erweitert. Heute gilt ein Kloster erst dann als ein solches, wenn es eine Versammlungshalle hat und ihm ein vollordinierter Mönch vorsteht.
Buddhistische Klöster sind nicht auf Selbstversorgung angelegt. Ursprünglich hatten die buddhistischen Klöster kein Grundeigentum, wie es später beispielsweise im tibetischen Buddhismus üblich wurde. Ihren Lebensunterhalt bestritten die Mönche allein durch das Almosensammeln, nicht durch Arbeit oder Verpachtung von Land. Die Grundlagen für das Leben als Mönch in einem Kloster sind in der Patimokkha festgehalten, die in etwa mit einer Ordensregel zu vergleichen ist.
Hauptaufgaben der buddhistischen Klöster sind heute:
- Ort der Ruhe und des Rückzugs aus dem weltlichen Leben;
- Versammlungsort zur Durchführung von Ritualen;
- Versammlungsort für administrative Zusammenkünfte;
- Ort der Lehre und des Studiums;
- Anlaufpunkt für Opfer-Handlungen von Laien;
- Ort für die „seelsorgerische“ Betreuung von Laien;
- zeitlich begrenzter Aufenthalt von Laien, zum Studium und Meditation (Retreat).
Auf Grund der sehr unterschiedlichen Aufgabenschwerpunkte haben sich die Mönchsgemeinschaften vieler Klöster auf einzelne Tätigkeiten spezialisiert. So gibt es unter anderem:
- Höhlenklöster und Waldklöster, die vor allem als Orte des Rückzugs dienen;
- Dorfklöster, die neben dem mönchischen Leben insbesondere auch der Bevölkerung offenstehen;
- Schul- und Lehrklöster, die vor allem der religiösen Praxis und Ausbildung von Mönchen und Laien dienen.
Buddhistische Klöster werden geweiht und sind dann für immer Klöster, auch wenn niemand mehr darin wohnt und nur noch Ruinen vorhanden sind; geweihte Orte können nicht mehr entweiht werden. Weil das Verschenken des Grundstücks an die Mönche als Opfer gilt, können die Mönche den Ort – auch wenn sie wollten – nicht mehr zurückgeben, verschenken oder gar verkaufen, weil dadurch das gute Werk bzw. die Verdienste des Spenders zunichtegemacht würden. Das Ablehnen von Almosen ist die einzige Sanktion, die Mönche gegenüber Laien setzen können. Sie wird beispielsweise bei ungerechtfertigter übler Nachrede und Verleumdung von Gemeinschaftsmitgliedern angewandt.
In Thailand, Myanmar/Burma, Laos und Kambodscha, wo der Theravada-Buddhismus praktiziert wird, heißen die Klöster Wat. In Tibet besaßen viele Klöster vor der Annektierung des Landes durch die Volksrepublik China große Flächen an Pachtland.
Der (überwiegend in China, Vietnam, Japan und Korea praktizierte) Zen-Buddhismus bildet innerhalb des buddhistischen Mönchtums die einzige Tradition, in der die Mönche in der Regel arbeiten und die Klöster sich zum Teil selbst versorgen. Der Almosengang wird aber auch hier weiterhin betrieben, als Zeichen der Demut und um den Laien Gelegenheit für verdienstvolles Handeln zu geben.
Hinduistische Tradition

Indische Klöster werden Mathas genannt. Heute gibt es eine ganze Reihe hinduistischer Orden.
Den Grundgedanken eines Klosters, sich aus der profanen Welt zurückzuziehen und in der Abgeschiedenheit Gott näher zu kommen, findet man auch im Hinduismus. Bereits das Konzept der vier Lebensstadien des Menschen (Schüler, Haushalter, sich die Waldeinsamkeit Zurückziehender, Erlösung Suchender) zeigt, dass der Hinduismus den Weg des sich-von-der-Welt-Zurückziehens vorsieht. Der hinduistische Lebensentwurf sieht ausdrücklich vor, dass der Mensch heiraten und Kinder haben soll (als Grihastha, Haushalter), sich jedoch in jungen Jahren (als Brahmacarin, Schüler) religiösen Studien widmen soll, auf die er in späteren Jahren (als Vanaprashta und Sannyasin) aufbauen kann. Die brahmanischen Priester lebten in Indien deshalb nie enthaltsam. Jedoch spielte die Enthaltsamkeit für die Lebensphasen, die durch religiöse Suche bestimmt sind, seit jeher im indischen Gedankengut eine große Rolle.
Neben diesem brahmanisch geprägten Lebensmodell gibt es im Hinduismus zahllose Sadhus, Asketen, die umherwandern und nicht an eine Institution wie ein Kloster gebunden sind. Die Mythen erzählen von Rishis (Weise), die in der Einsamkeit nach Erkenntnis suchten. Heute gibt es Swamis und Gurus, die oftmals einen Aschram betreiben, in dem sie Meditation unterrichten und den Gläubigen religiöse Lehren vermitteln. Die Bindung eines Gläubigen an einen Aschram ist jedoch meilenweit entfernt von der Endgültigkeit einer Ordination; zudem sind die einzelnen Aschrams unabhängig und nicht an eine übergeordnete Institution gebunden.
In späterer Zeit (nach 800 n. Chr.) kamen zu den Aschrams die häufig mit einem Tempel verbundenen Klöster (Matha) hinzu, die bis in die Gegenwart Zentren geistigen Lebens, von Gelehrsamkeit und religiöser Aktivität waren. Einige Klöster besitzen und unterhalten Tempel, Schulen, Hospitäler, Waisenanstalten etc. Der Gelehrte Shankara (788–820 n. Chr.) stiftete einen Mönchsorden und viele Klöster, auch um das Zusammengehörigkeitsgefühl der hinduistischen Strömungen zu fördern. Diese Klöster und deren Vorsteher (Mahant) gelten bis heute noch bei vielen Indern als höchste religiöse Autoritäten, obwohl sie niemals die Stellung einer höchsten Instanz in Religionsangelegenheiten erlangt haben.
Aufgrund des islamischen Einflusses in Nordindien befinden sich große Klöster und Tempelanlagen heute hauptsächlich in Südindien.
Siehe auch
Filme
- Klöster Europas – Zeugen des Unsichtbaren. Fünfteilige Fernsehdokumentation von Marie Arnaud, Jacques Debs (Arte, Frankreich 2018)
Literatur
- Stefan Benz: Frauenklöster Mitteleuropas. Verzeichnis und Beschreibung ihrer Geschichtskultur 1550–1800. Aschendorff, Münster 2014, ISBN 978-3-402-11584-8.
- Christopher Brooke: Die große Zeit der Klöster 1000–1300. Herder, Freiburg im Breisgau 1976, ISBN 3-451-17433-2
- Gudrun Gleba: Klöster und Orden im Mittelalter. 3., mit einer überarbeiteten Bibliografie versehene Auflage, WBG, Darmstadt 2008, ISBN 978-3-534-20002-3.
- Jürgen Keddigkeit [u. a.] (Hrsg.): Pfälzisches Klosterlexikon. Handbuch der pfälzischen Klöster, Stifte und Kommenden (= Beiträge zur pfälzischen Geschichte. Band 26). 5 Bände. Institut für pfälzische Geschichte und Volkskunde, Kaiserslautern 2014–2019. Bd. 1, A–G: ISBN 978-3-927754-76-8. Bd. 2, H–L: ISBN 978-3-927754-77-5. Bd. 3, M–R : ISBN 978-3-927754-78-2. Bd. 4, S, Speyer: ISBN 978-3-927754-79-9. Bd. 5, T–Z: ISBN 978-3-927754-86-7.
- Hiltrud Kier, Marianne Gechter (Hrsg.): Frauenklöster im Rheinland und in Westfalen. Schnell + Steiner, Regensburg 2004, ISBN 978-3-7954-1676-8.
- Patrick Leigh Fermor: Reise in die Stille – Zu Gast in Klöstern. Fischer TB 17693, Frankfurt am Main 2010, ISBN 978-3-596-17693-9.
- Gert Melville: Die Welt der mittelalterlichen Klöster. Geschichte und Lebensformen. Beck, München 2012, ISBN 3-406-63659-4.
- Steffen Patzold: Konflikte im Kloster. Studien zu Auseinandersetzungen in monastischen Gemeinschaften des ottonisch-salischen Reichs. Husum 2000, ISBN 3-7868-1463-5.
- Eckart Roloff: Klöster, die Keimzellen des Fortschritts. Mit Pionieren zwischen Tradition und Innovation. In: ders.: Göttliche Geistesblitze. Pfarrer und Priester als Erfinder und Entdecker. Weinheim, Wiley-VCH 2010, S. 21–51, ISBN 978-3-527-32578-8 (mit Darstellungen vor allem zu Handschriften, Kartografie, Bierbrauen, Glockenguss und Klostermedizin).
- Thomas Sterba: Herders neues Klösterlexikon. Herder, Freiburg im Breisgau 2010, ISBN 978-3-451-30500-9.
- Wolfgang Urban: Orte der Stille. Klöster in Baden-Württemberg. Mit Bildern von Hans Siwik. Text von Wolfgang Urban. Verlag Katholisches Bibelwerk, Stuttgart 1998, ISBN 3-460-33083-X.
- Katharina Wildenauer, Christian Hamberger: Kloster-ABC. Verlag Katholisches Bibelwerk, Stuttgart 2003, ISBN 3-460-33084-8.
Weblinks
- Literatur von und über Kloster im Katalog der Deutschen Nationalbibliothek
- Klöster in Niedersachsen (Karte)
- Internetportal der Orden in Deutschland
- Thüringisches Klosterbuch
- „Rete Vitae Religiosae Mediaevalis Studia Conectens“
- Haus der Bayerischen Geschichte, Klöster in Bayern (Klosterportal)
- Datenbank zu Klöster und Stiften des Alten Reiches, Germania Sacra
Einzelnachweise
- ↑ Karl Suso Frank: Konvent. In: Walter Kasper (Hrsg.): Lexikon für Theologie und Kirche. 3. Auflage. Band 6. Herder, Freiburg im Breisgau 1997.
- ↑ Manfred Heim: Von Ablass bis Zölibat: Kleines Lexikon der Kirchengeschichte. (=Beck’sche Reihe. Band 1857), C. H. Beck, München 2008, ISBN 978-3-406-57356-9, S. 251 (Digitalisat).
- ↑ Herders Lexikon der Päpste, Verlag Herder Freiburg im Breisgau 2010, ISBN 978-3-451-06200-1