Kastell Niederberg
| Kastell Niederberg | |
|---|---|
| Limes | ORL 2a (RLK) |
| Strecke (RLK) | Obergermanischer Limes, Strecke 1 (Rhein-Lahn); rückwärtige Lage |
| Datierung (Belegung) | domitianisch[1] bis 259/260 |
| Typ | Kohortenkastell |
| Einheit | Cohors VII Raetorum equitata |
| Größe | 177,4 m × 157,8 m = 2,8 ha |
| Bauweise | Stein |
| Erhaltungszustand | über Tage nicht sichtbares Bodendenkmal |
| Ort | Koblenz-Niederberg |
| Geographische Lage | 50° 22′ 7,9″ N, 7° 37′ 38,4″ O |
| Höhe | 169 m ü. NHN |
| Vorhergehend | ORL 2: Kastell Bendorf |
| Vorgelagert | Kleinkastell Hillscheid (nordwestlich) ORL 3: Kastell Arzbach (westlich) ORL 4: Kastell Ems (südöstlich) |
Das Kastell Niederberg war ein römisches Auxiliarkastell des Obergermanischen Limes, der seit 2005 den Status eines UNESCO-Weltkulturerbes besitzt. Das frühere Kohortenkastell liegt heute als Bodendenkmal in einem Wohngebiet von Niederberg, einem rechtsrheinischen Stadtteil von Koblenz in Rheinland-Pfalz.
Lage

Das Kastell Niederberg befand sich rechts des Rheins, auf einem zum Strom hin flach abfallenden Bergplateau der Mittelterrasse gegenüber der Moselmündung.
In antiker Zeit war es – etwa sieben Kilometer westlich des Limes – verkehrsgeographisch und strategisch optimal positioniert. Die exponierte Lage gewährleistete eine gute Sicht auf das Tal des Rheins und die Moselmündung. Das Kastell bildete einen Brückenkopf des linksrheinischen Confluentes und beherrschte die rechtsrheinischen Verkehrswege. Insbesondere die Römerstraße, die von den nördlicheren Garnisonen kommend über Ehrenbreitstein und die römische Rheinbrücke nach Confluentes führte, ließ sich durch das Kastell kontrollieren. Ältere Trassen, die vom Rhein in östliche Richtungen, hinauf zur Montabaurer Höhe und weiter in den Westerwald oder in Richtung Lahntal mit den benachbarten Kastellen in und um Bad Ems führten, lagen ebenfalls in seiner Reichweite.
Im heutigen Ortsbild befindet sich das Kastell unterhalb der Wohnsiedlung „Im Römerkastell“. Deren die Siedlung von Nordost nach Südwest erschließende Achse liegt nur wenige Meter südlich der Via Principalis (Lagerhauptstraße). Die Straße „Im Weeling“ streift die Porta Praetoria (Haupt- oder Ausfalltor), die „Alte Burgstraße“ tangiert die Porta Principalis Sinistra (linkes Seitentor).
Forschungsgeschichte

Der im 19. Jahrhundert auch „Alteburg“ genannte Kastellplatz – eine Bezeichnung, die sich bis heute im Straßennamen „Alte Burgstraße“ erhalten hat – war schon immer durch eine auffällige Häufung an Kleinfunden römischer Provenienz in Erscheinung getreten. Darunter befanden sich auch Ziegel mit Militärstempeln. Dieser Umstand sowie militärgeographische Überlegungen veranlassten die Reichs-Limeskommission, unter der örtlichen Leitung des Ex-Oberstleutnants und für diesen Limesabschnitt zuständigen Streckenkommissars Otto Dahm, gezielt im Gebiet des damaligen Dorfes Niederberg nach einer römischen Garnison zu suchen. Bereits die erste archäologische Sondierungsgrabung führte dann auch im September 1895 zur Entdeckung, ersten Erforschung und Dokumentation des Kastells von Niederberg.
Weitere Untersuchungen wurden – bedingt durch den Bau der „Kastellsiedlung“ – seit den 1960er Jahren erforderlich und vom damaligen Staatlichen Amt für Vor- und Frühgeschichte in den Regierungsbezirken Koblenz und Montabaur durchgeführt. Seit dem Jahre 2002 werden neuerliche archäologische Forschungen durch dessen Nachfolgeinstitution, die Archäologische Denkmalpflege, Amt Koblenz vorgenommen. Die jüngsten Grabungsergebnisse wurden der Öffentlichkeit in bislang zwei Ausstellungen (2004[2] und 2005[3]) im Landesmuseum Koblenz[A 1] auf der Festung Ehrenbreitstein präsentiert.
Kastell
Struktur und Umwehrung

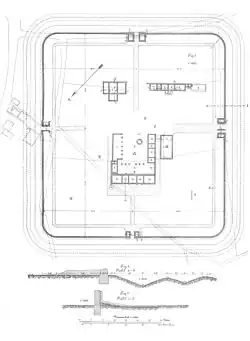
Bei dem Kastell Niederberg handelt es sich um ein rechteckiges Steinkastell, das mit seinen Außenmaßen von 177,40 mal 157,80 Meter eine Fläche von rund 2,8 Hektar einnimmt. Die durchschnittlich 1,25 Meter starke Wehrmauer war an ihren Ecken gerundet und um etwa 40 Zentimeter verstärkt. Sie wurde unter Verwendung von Kalkmörtel aus unbehauenen Grauwackesteinen gemauert. Die Mauer war nicht mit Eck- und Zwischentürmen versehen, jedoch wurden alle vier Tore von jeweils zwei seitlichen Türmen flankiert.
Vor der Wehrmauer lagen nach einer Berme von 1,25 Meter Breite zwei Spitzgräben als Annäherungshindernisse. Der innere Graben war neun Meter breit und 1,90 Meter tief, der äußere Graben erreichte bei einer Breite von sechs Metern eine Tiefe von 1,40 Meter.
Mit seiner Prätorialfront (Vorderfront) war das Kastell nach Südosten hin ausgerichtet. Aus ungeklärten Gründen waren die Porta Praetoria (Haupt- oder Ausfalltor) und die Porta Decumana (rückwärtiges Lagertor) und mit ihnen die Via Praetoria (Haupt- oder Ausfallstraße) und die Via Decumana (rückwärtige Lagerhauptstraße) aus der Mittelachse verschoben und zwar entgegengesetzt, so dass die Porta Praetoria mehr nach rechts und die Porta Decumana mehr nach links vom Idealplan abwich.
Von den vier Kastelltoren besaßen drei (Porta Praetoria, Porta Decumana und Porta Principalis Sinistra) jeweils nur einen einfachen 3,20 bis 4,00 Meter breiten Durchgang. Demgegenüber war die Porta Principalis Dextra (rechtes Seitentor) mit einem Doppeltor von insgesamt acht Metern Breite versehen und verfügte zudem über größere Flankentürme. Das Doppeltor war durch eine Mauer in einen breiteren Durchlass für Fuhrwerke und einen schmaleren Durchlass für Fußgänger unterteilt.
Innenbebauung

Das Zentrum des Innenbereichs wurde, wie bei römischen Auxiliarlagern üblich, von der sich zur Via Principalis hin öffnenden Principia (Kommandantur) beherrscht. Die Principia von Niederberg nahm mit ihren Seitenlängen von rund 38 mal 43 Meter eine Grundfläche von 1634 Quadratmetern ein. Sie gliederte sich unsymmetrisch in zwei Seitenfluchten und eine rückwärtige Raumflucht mit fünf Räumen. Deren mittlerer Raum, das Fahnenheiligtum (Aedes oder Sacellum) war nicht unterkellert und besaß keine Apsis. Der Raum an der Nordecke war beheizbar, in ihm dürfte sich das Tabularium (Schreibstube) befunden haben. Vor dem rückwärtigen Gebäudetrakt befand sich eine zum Innenhof hin offene Säulenhalle mit einem Fußboden aus Tuffsteinplatten. In der Principia kamen Fragmente einer Panzerstatue aus dem Boden, welche in die erste Hälfte des 3. Jahrhunderts datieren.[4]
Das den Innenhof nordöstlich begrenzende Gebäude war ebenfalls zum Hof hin offen. Die Häufung der hier gefundenen Schleuderkugeln und Geschützpfeile lässt eine Interpretation des Bauwerks als Geschützschuppen zu. Die gegenüberliegende Raumflucht war geschlossen und kann möglicherweise ebenfalls als Armamentarium (Waffenkammer) angesprochen werden.
Vom übrigen Innenbereich des Lagers konnten verschiedene massive Gebäude, Spuren der hölzernen Mannschaftsbaracken und Abschnitte der mit Kies verfestigten Lagerstraßen festgestellt werden, aber insgesamt gibt es große Wissenslücken über den Aufbau des Lagers.
Belegung und Geschichte

Das Kastell von Koblenz-Niederberg wurde vermutlich in domitianischer Zeit[1] im Zusammenhang mit dem Ausbau des Obergermanischen Limes angelegt. Etwa ab dem Jahr 100 n. Chr. ist hier die Cohors VII Raetorum equitata („7. Teilberittene Kohorte der Raeter“) nachgewiesen, ein teilberittener Infanterieverband, der sich aus sechs Zenturien Infanterie zu je 60 bis 80 Mann und vier Turmen Kavallerie zu je 32 Reitern zusammensetzte, deren Gesamtstärke also zwischen 488 und 608 Mann gelegen haben dürfte.[5] In Niederberg spielte das Kastell für gute 160 Jahre eine nicht unbedeutende Rolle als leicht rückwärtig gelegene Garnison des Obergermanischen Limes. Ihr Ende fand die Besatzung nicht in Koblenz, sondern im Kastell Niederbieber, wohin sie vermutlich um 259/260 abgerückt war, um die dortige Kastellbesatzung aufgrund eines kriegerischen Ereignisses mit spekulativem Hintergrund zu unterstützen. Bei diesen Abwehrkämpfen wurde sie wohl gemeinsam mit der Niederbieberer Truppe aufgerieben. In einem Nebenraum des Fahnenheiligtums (Aedes) des Kastells Niederbieber, fand sich das Skelett des Signifers (Feldzeichenträger) der 7. Raeterkohorte mit Resten seines Feldzeichens – der Mann hatte dieses wahrscheinlich bis zuletzt verteidigt.[6] Wie das gesamte rechtsrheinische Gebiet wurde auch das Kastell Niederberg während der Wirren des Limesfalls aufgegeben.
Kastellbad
Außerhalb des Kastells lag, wie bei römischen Auxiliarlagern üblich, das Balineum, die Thermen, die den Soldaten der Garnison in ihrer Freizeit zur kostenlosen Nutzung und den Zivilisten des Vicus gegen eine geringe Gebühr zur Verfügung stand. Die Badeanlage von Niederberg befand sich rund 30 Meter von der Südecke des Kastells entfernt auf dem Glacis des zum Rhein hin abfallenden Hangs. Sie war für die Badeanlage eines Kohortenkastells auffällig umfangreich und komfortabel ausgestattet. Um einen geschotterten Hof gruppierten sich insgesamt drei Gebäudekomplexe, deren Hauptgebäude alleine zwölf Räume enthielt, von denen drei mittels Hypokaustanlage beheizbar waren. Die Fußböden bestanden durchgängig aus sorgfältig verlegtem und zum Teil poliertem Estrich, in einigen Räumen konnten noch die Fragmente der Wandbemalung festgestellt werden. Das zweite Gebäude verfügte über insgesamt sieben, weniger aufwändig ausgestattete Räume, von denen einer eine Hypokaustvorrichtung aufwies. Das dritte und kleinste Gebäude, das nur aus einem einzigen lang gezogenen Raum bestand, wurde als Latrine interpretiert.
Vicus
Rund um das Kastell, insbesondere beiderseits der nach Westen führenden Straße, dehnte sich der weitläufige Vicus, die Zivilsiedlung, aus, der bei nahezu jeder römischen Garnison anzutreffen ist und in dem sich im Laufe der Zeit entlassene Militärs, Angehörige von Soldaten, Handwerker, Händler und Dienstleister niederließen. In 120 Metern Entfernung vom Kastell wurde 1871/72 ein Ziegelofen freigelegt. Das Fundmaterial weist u. a. Stempel der 22. Legion und der cohors VII Raetorum Equitata auf.[7]
Noch weiter westlich, nach römischen Gepflogenheiten außerhalb des besiedelten Bereiches, begannen die Gräberfelder. Das Zentrum des Vicus befand sich etwa in dem Bereich, in dem sich heute die Kirche St. Pankratius befindet. Hier bildete sich auch später der Kern zunächst des fränkischen und anschließend des mittelalterlichen Niederbergs heraus.
Befundsicherung, Fundverbleib und Denkmalschutz
Das Kastellgelände ist heute zu großen Teilen überbaut. Die noch freien Flächen mit möglicherweise noch ungestörten Befunden wurden als Grabungsschutzgebiet ausgewiesen. Das geborgene Fundmaterial befindet sich im Landesmuseum Koblenz und im Museum Wiesbaden.
-
Reliefverzierte Terra Sigillata aus den Grabungen von 1895 -
Fundmaterial aus den Grabungen von 1895 -
Metallfunde aus dem Fundmaterial der Grabungen von 1895 -
-
Text der Frontseite
Das Kastell Niederberg ist als Abschnitt des Obergermanisch-Rätischen Limes seit 2005 Teil des UNESCO-Welterbes. Außerdem ist dieses Bodendenkmal geschützt als eingetragenes Kulturdenkmal im Sinne des Denkmalschutz- und -pflegegesetzes (DSchG)[9] des Landes Rheinland-Pfalz. Nachforschungen und gezieltes Sammeln von Funden sind genehmigungspflichtig, Zufallsfunde an die Denkmalbehörden zu melden.
Siehe auch
Literatur
- Dietwulf Baatz: Der Römische Limes. Archäologische Ausflüge zwischen Rhein und Donau. 4. Auflage, Gebr. Mann, Berlin 2000, ISBN 3-7861-2347-0, S. 105.
- Otto Dahm in der Reihe Der obergermanisch-raetische Limes des Roemerreiches (Hrsg. Ernst Fabricius, Felix Hettner, Oscar von Sarwey): Abteilung B, Band 1, Kastell Nr. 2a: Das Kastell Niederberg bei Ehrenbreitstein (1900).
- Ernst Fabricius, Felix Hettner, Oscar von Sarwey (Hrsg.): Der obergermanisch-raetische Limes des Roemerreiches. Abteilung A, Band 1: Die Strecken 1 und 2 (1936).
- Cliff Alexander Jost: Vorbericht zu den Ausgrabungen 2002–2004 im Limeskastell Niederberg bei Koblenz. In: Andreas Thiel (Hrsg.): Forschungen zur Funktion des Limes. 3. Fachkolloquium der Deutschen Limeskommission 17./18. Februar 2005 in Weißenburg i. Bay. Theiss, Stuttgart 2007, ISBN 978-3-8062-2117-6, (= Beiträge zum Welterbe Limes, Band 2), S. 48–55.
- Cliff Alexander Jost: Der römische Limes in Rheinland-Pfalz. Landesamt für Denkmalpflege Rheinland-Pfalz, Koblenz 2003, ISBN 3-929645-07-6, (Archäologie an Mittelrhein und Mosel, Band 14), S. 96–99.
- Hans-Helmut Wegner: Koblenz-Niederberg. Kastell. In: Heinz Cüppers: Die Römer in Rheinland-Pfalz. Lizenzausgabe, Nikol, Hamburg 2002, ISBN 3-933203-60-0, S. 501ff.
Weblinks
- Kastell Niederberg auf der Webpräsenz des Ministeriums für Bildung, Wissenschaft, Jugend und Kultur Rheinland-Pfalz
- Kastell Niederberg auf der Webpräsenz der Deutschen Limeskommission
Anmerkungen
- ↑ Offizielle Webpräsenz des Landesmuseums Koblenz.
- ↑ Die vollständige Inschrift lautet: FORTVNAE CN. CALPVRNIVS VERVS PRAEF(ectvs) COH(ortis) VII RAETOR(um) EQ(uitatae). Es handelt sich also um einen von Cnaeus Calpurnius Verus – dem Präfekten der Kohorte – der Göttin Fortuna geweihten Stein.
Einzelnachweise
- ↑ a b Nach Dietwulf Baatz: Der Römische Limes. Archäologische Ausflüge zwischen Rhein und Donau. 4. Auflage, Gebr. Mann, Berlin 2000, ISBN 3-7861-2347-0, S. 105.
Nach C. A. Jost auf der Webpräsenz des Ministeriums für Bildung, Wissenschaft, Jugend und Kultur Rheinland-Pfalz ( des vom 28. September 2007 im Internet Archive) Info: Der Archivlink wurde automatisch eingesetzt und noch nicht geprüft. Bitte prüfe Original- und Archivlink gemäß Anleitung und entferne dann diesen Hinweis. ist es „um etwa 100 n. Chr.“ errichtet worden, wäre also trajanisch. - ↑ „Der Limes und das Kastell von Niederberg“ (8. Juli bis 26. September 2004).
- ↑ „Neues vom Limes – Aktuelle Funde aus den Kastellen Niederbieber und Niederberg“ (22. Juli bis 11. September 2005).
- ↑ Martin Kemkes: Das Bild des Kaisers an der Grenze – Ein neues Großbronzenfragment vom Raetischen Limes. In: Andreas Thiel (Hrsg.): Forschungen zur Funktion des Limes, Band 2. Konrad Theiss Verlag, Stuttgart 2007, ISBN 978-3-8062-2117-6, S. 144.
- ↑ Zur Problematik der Größenbestimmung einer Cohors equitata siehe Anne Johnson: Römische Kastelle des 1. und 2. Jahrhunderts n. Chr. in Britannien und in den germanischen Provinzen des Römerreiches. Zabern, Mainz 1987. (Kulturgeschichte der Antiken Welt, Bd. 37). ISBN 3-8053-0868-X. S. 29ff.
- ↑ Anne Johnson (dt. Bearbeitung von Dietwulf Baatz): Römische Kastelle, Verlag Philipp von Zabern, Mainz 1987, ISBN 3-8053-0868-X, S. 131
- ↑ Ulrich Brandl und Emmi Federhofer: Ton + Technik. Römische Ziegel. Theiss, Stuttgart 2010, ISBN 978-3-8062-2403-0 (Schriften des Limesmuseums Aalen. Nr. 61)
- ↑ FORTVNAE CN(aeus) CALPVRNIVS VERVS PRAEF(ectus) COH(ortis) VII RAETOR(um) EQ(uitatae) („(Geweiht) der Fortuna von Cnaeus Calpurnius Verus, Praefect der 7., teilberittenen Raeterkohorte“)
- ↑ DschG bzw. DSchPflG RP ( des vom 14. Juli 2006 im Internet Archive) Info: Der Archivlink wurde automatisch eingesetzt und noch nicht geprüft. Bitte prüfe Original- und Archivlink gemäß Anleitung und entferne dann diesen Hinweis.
