Herrenhaus Damsgård

Das Herrenhaus Damsgård (norwegisch: Damsgård hovedgård), auch Jansongård genannt, gilt als eines der Hauptwerke des Rokoko in Norwegen und ist eines der bestbewahrten Herrenhäuser der Holzarchitektur des 18. Jahrhunderts in Europa. Das Gebäude befindet sich in der Alléen 29 im Stadtviertel Damsgård des Stadtteils Laksevåg in Bergen. Heute ist es Teil der Stadtmuseen in Bergen.
Geschichte

Das Herrenhaus Damsgård wurde auf dem Gebiet Håsteinar errichtet. Håsteinar ist der ehemalige Name des Hauses und leitet sich vom altnordischen Hásteinar ab, was hoher Stein bedeutet. Es existieren zwei Theorien darüber, wie der Name entstanden ist. Man nimmt an, dass er entweder vom 284 Meter hohen Berg Damsgårdfjellet ableitet wurde oder von einer Gruppe großer Steine in der Damgårdsbucht.
Die Ansiedlung auf dem Areal geht bis ins Mittelalter zurück und es gibt Annahmen, dass der Ort schon Anfang des 12. Jahrhunderts besiedelt wurde. Die erste schriftliche Erwähnung stammt aus Munkelivs jordebok, einem Grundbuch des Klosters Munkeliv, aus dem Jahr 1427. Im Zuge der Reformation wurde das Gebiet – wie die anderen Kirchengüter auch – im Jahr 1536 von König Christian III. konfisziert. König Friedrich II. verkaufte den Besitz im Jahr 1562 an Tønnes Claussøn weiter. Mit dem Kaufvertrag verpflichtete er sich, ein Kaufmannshaus zu errichten. Nach Claussøn folgten diverse private Eigner. Der Autor Fossen nennt Personen aus Bergen, aber auch Niederländer, Deutsche, Dänen und Franzosen.
Kaufmannshaus
Es gibt keine Hinweise darauf, dass ein Kaufmannshof vor dem 17. Jahrhundert existiert hat. Auf einer Karte von J. van Geelkerck aus dem Jahr 1653, die sich heute in der Stadtsammlung des Historisk museum in Bergen befindet, ist ein Kaufmannshaus abgebildet. Es ist das Gebäude im Damsgårdveien 174. Im 17. Jahrhundert übernahm Dam Tønnessøn das Anwesen von seinem Vater Tønnes Clausson. Er gilt als Namensgeber des Hofes und der Name Damsgård wird erstmals in der Bergens sagefallsregnskap, dem Tilgungsbuch von Bergen, im Jahre 1643 genannt. Während dieses Jahrhunderts werden beide Namen – Håsteinar und Damsgård – synonym benutzt.
Nach einem Gutachten aus dem Jahr 1731 war das ziegelgedeckte Haus mit einer guten Stube, einer Alltagsstube, Kammern und Küche mit Schornstein, Speisekammer und Erdkeller ausgestattet.[1] Zwei Kacheln vom Beilegerofen, die man während einer Restaurierung fand, waren mit den Jahreszahlen 1673 und 1699 versehen.
Herrenhaus Damsgård
Der älteste Teil des heute bestehenden Herrenhauses stammt wahrscheinlich aus der Zeit von Severin Seehusen (1664–1726). Derzeit wurde das Gebäude auch als Lusthaus genutzt, zugleich fungierte es aber auch als normales Wohnhaus. Es war in den kräftigen Farben rot und grün gestrichen. Dies und die Raumaufteilung sind aus einem Steuerdokument aus dem Jahr 1731 bekannt.
1769 übernahm der Generalkriegskommissar Joachim Christian Geelmuyden Gyldenkrantz (1730–1795) das Anwesen. Ein Jahr später beschloss er den Umbau und Ende der 1770er Jahre erhielt das Gebäude seine U-Form, einen Turm auf dem Hauptgebäude und die berühmte Rokokofassade. Weihnachten 1795 starb Gyldenkrantz auf dem Anwesen und es wurde 1796 an den Hoffaktor Herman Didrich Janson (1757–1822), derzeit einer der reichsten Kaufleute in Bergen, versteigert.
Janson führte kleinere Umbauten durch und das Haus blieb bis 1983 im Besitz der Familie. 1865 fand eine umfassende Innenrenovierung statt, bei der viele Räume gestrichen und tapeziert wurden. Seit rund 1870 wurde das Haus ganzjährig bewohnt, bis es 1983 an den Staat und dem Vestlandske kunstindustriemuseum Bergen übergeben wurde. Das Gebäude bedurfte abermals einer umfassenden Renovierung, war aber verhältnismäßig gut instand gehalten. Die Restaurierungsarbeiten benötigten zehn Jahre, bevor das Museum am 28. Juni 1993 eröffnet werden konnte. Seit 2005 obliegt die Verwaltung des Hauses dem Bymuseet i Bergen, dem Stadtmuseum Bergen.
Im April 2013 ereignete sich ein Unfall, bei dem ein Auto das Haupttor überrollte und in die rückwärtige Fassade des Hauptgebäudes fuhr.[2]
Seit dem 27. Februar 1924 steht das Herrenhaus Damsgård unter Denkmalschutz.
Architektur

Die Hauptfassade des U-förmigen Gebäudes ist zur Hafeneinfahrt nach Bergen gewandt. Sie ist größer als das Haus selbst und im Rokokostil entworfen. Um eine perfekte Symmetrie der Fassade zu erschaffen, sind einige Fenster zum Herrengarten nur auf die Fassade aufgemalt.
Die sitzende Säule – eine Kuriosität

Das Hauptportal wird von zwei Säulen flankiert, die Teilziergiebel tragen. Die Säulen stehen auf Sockelelementen, sogenannten Postamenten, die zur Tür hin geschwungen sind. Dieses architektonische Detail ist nicht von anderen Orten bekannt und es steht im Widerspruch zur tragenden Funktion der Säule. Es findet sich jedoch auf mehreren Altartafeln im norwegischen Vestlandet wieder, die wahrscheinlich alle in Bergen produziert wurden. Auf einigen von ihnen befindet sich dieselbe gebogene Säule. Valentin Wedels Zeichnung der Hauptfassade hat eine auffallende Ähnlichkeit mit dem oberen Stück des Altarretabels in Sykkylven,[3] sodass der Urheber wahrscheinlich derselbe ist. Die derzeitige Hauptfassade wurde jedoch am Dreiecksgiebel nachträglich um 1800 abgeändert. Der Kunsthistoriker Jan Hendrich Lexow ist der Meinung, dass das Buch Prospettiva de pittori e architetti (Rom 1693–1700) des Jesuitenpaters Andrea Pozzo der Hintergrund dieses Vestlandphänomens ist. Pozzo gab 13 verschiedene Altarkompositionen in einer wieder und deklarierte sie als altare capriccioso,[4] die ebenfalls gebogene Säulen hat. Das Buch fand große Verbreitung in Europa, dennoch ist dieses Architekturmotiv nirgends außerhalb des Vestlandet wissentlich benutzt.
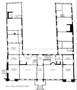
Aufteilung des Gebäudes

Der vordere Flur liegt am Haupteingang und dient dem Empfang von Gästen. Die Wände sind mit Supraporten verziert, die Themen von Munkholmen bei Trondheim, Fredriksberg in Kopenhagen und den Walfang in der Nordsee darstellen. Der Boden ist mit Marmorplatten aus Bergen belegt. Rechts vom Flur befindet sich die Blaue Stube, links die Goldene Stube und geradeaus gelangt man in den hinteren Flur, der zum Hof hinausführt.
Der hintere Flur ist zum Hof ausgerichtet. Die Tür zum Hofplatz stammt aus dem 18. Jahrhundert. Ursprünglich befand sie sich in der Hauptfassade und wurde im Zuge der Umbauten unter Gyldenkrantz um 1770 in die Hoffassade eingesetzt. Weiterhin kann man Spuren der ersten Treppe erkennen, die ebenfalls im 18. Jahrhundert entstand. Ein Löscheimer aus der Zeit des ersten Jansons befindet sich ebenfalls hier.
Die Blaue Stube ist ein Durchgangszimmer und liegt rechts neben dem Eingang und links vom Roten Kabinett. Vom Zimmer hat man Aussicht auf die Laksevåg Kirche und die Kirkebukt. Den Namen bekam das Zimmer von der blau-weiße Velours-Tapete, die während der Renovierungsarbeiten unter Gyldenkrantz angebracht wurde. Der Boden ist neueren Datums. An den Wänden hängen viele Porträts und Stiche, darunter ist ein Porträt von Gyldenkrantz, das 1783 von J. C. C. Michaelsen gefertigt wurde. Im Raum befinden sich ein Kronleuchter und ein prächtiger Ofen mit dunklen Fliesen, der in Norwegen verhältnismäßig selten ist. Hergestellt wurde der Ofen Mitte des 18. Jahrhunderts in Deutschland. In einem Schrank werden mehrere Gegenstände aus Silber aufbewahrt und ausgestellt.
Das Rote Kabinett schließt direkt an die blaue Stube an und bietet die gleiche Aussicht. Den Namen bekam das Zimmer durch seine rote Tapete, die aus der Zeit um 1865 stammt. Das Mobiliar stammt aus der Mitte des 19. Jahrhunderts.
Das Frauengemach befindet sich auf der Westseite des Haupthauses. Es schließt an das rote Kabinett an und hat man Zutritt zur kleinen Küche. Vom Fenster aus kann man auf den Frauengarten blicken. Ein großes Himmelbett von Ende des 18. Jahrhunderts befindet sich in dem Schlafzimmer.
Die kleine Küche schließt an das Frauengemach an und hat Ausblick auf den Hof. Diese Küche wurde benutzt, wenn keine Festlichkeiten im Herrenhaus stattfanden. Der Raum ist noch so gestaltet, wie ihn die Familie Janson 1983 verlassen hat.
Die Goldene Stube liegt an der Hauptfassade, der Blauen Stube gegenüber. Sie ist reichhaltig möbliert, jedoch ist die Einrichtung aus der ersten Hälfte des 19. Jahrhunderts. Der Goldton der Wände stammt aus der Periode, in der Herman Didrich Janson das Haus übernahm.
Der Medaillonraum schließt sich an die Goldene Stube an und bildet ein Eckzimmer an der Haupt- und der Ostfassade. Der Raum ist in hellen Rottönen dekoriert und an den Wänden befinden sich fünf gemalte Medaillons, die mit Rahmen und Ausfachungen verziert sind. Die Malereien zeigen Landschaften und eines bildet Jansons Boote ab. Die Möbel und der Kronleuchter stammen aus der zweiten Hälfte des 19. Jahrhunderts. Im Jahr 1887 bekam der Medaillonraum eine Tür zum Garten, diese liegt auf der Ostseite des Hauses.
Das Herrengemach befindet sich auf der Westseite des Hauptgebäudes und kann vom Medaillonraum und von der Küche betreten werden. Vom Zimmer hat man Ausblick auf den Herrengarten. An den Wänden unterhalb der Decke ist eine Borte angebracht, auf der laufende Hunde zu sehen sind. Das Mobiliar stammt vom Beginn des 20. Jahrhunderts.
Die Küche liegt auf der Rückseite des Hauptgebäudes. Sie kann durch den hinteren Flur betreten werden, besitzt aber auch Türen zur Goldenen Stube, zum Herrengemach und in einen kleinen Flur, durch den das Porzellanzimmer erreicht werden kann. Durch große Fenster kann man in den Hof sehen. Die Küche ist reich an Farben, so wie es im Spätbarock üblich war. Bei der letzten Restaurierung wurde der Raum im Stil des 18. Jahrhunderts wiederhergerichtet: mit lila Wänden, hellblauen Fensterbänken, hellgrünen Türen und Zierleisten und ocker und rotbraunen Einlagen. Ein großer Kamin, der zur Zubereitung des Essens diente, dominiert den Raum.
Das Porzellanzimmer im Ostflügel befindet sich hinter dem Herrenschlafzimmer und wurde 1796 von Herman Didrich Janson eingerichtet. Nach der Restaurierung wurden die originalen Farben der Wände in grau und grün wiederhergestellt. Das reichhaltige Inventar wurde über die Zeit verkauft oder vererbt. Ein Frühstücksservice der königlichen Porzellanfabrik Kopenhagen, dass 1798 gekauft wurde, kann besichtigt werden. Es beinhaltet mehrere Glasstücke, darunter eine Bowleschüssel, die ursprünglich Danckert Danckertsen Krohn gehörte.
Der Ballsaal befindet sich in der zweiten Etage des Hauptgebäudes. Er ist mit Türen und einem Kronleuchter im Rokokostil ausgestattet. Die Wände sind mit dunklen Draperien, verschiedenen Porträts und Spiegeln dekoriert. Das Mobiliar stammt aus dem 18. Jahrhundert. Die vergoldeten Lederbezüge der Stühle bezeugen, wie reich die Bewohner des Hauses gewesen sein müssen.
Gartengestaltung





Der Garten des Herrenhauses ist in drei Bereiche untergliedert: den östlichen Garten – Herrengarten genannt, den westlichen Garten – Frauengarten genannt und den englischen Garten. Der Frauengarten und der Herrengarten sind mit Mauern umgeben, die den Wind abhalten und die Wärme bewahren sollen. Unmittelbar hinter dem Haus, von der Seeseite abgewandt, befindet sich durch eine Straße getrennt, der Englische Garten. Die Gartenanlage wurde 1999 mit der Auszeichnung Årets grønne parken (Grüner Park des Jahres) geehrt.[5]
Die Restaurierung des Herren- und Frauengartens wurde von der Freizeitabteilung der Kommune Bergen nach Plänen des schwedischen Landschaftsarchitekten Sven-Ingvar Andersson durchgeführt. Die Gartenanlage wurde am 25. August 1988 noch vor der Wiedereröffnung des Hauses fertiggestellt. Ziel der Restaurierung war es, den Garten so wiederherzustellen, so wie er im 18. Jahrhundert aussah, sowohl mit den damals üblichen Pflanzen als auch von der Gartenarchitektur. Botaniker der Universität Bergen wählten Zier- und Nutzpflanzen aus, die derzeit am wahrscheinlichsten angebaut wurden. Ausgewählt wurden Rosen und Nutzpflanzen, wie Kohl und Zwiebeln, aber auch eine Kräutersammlung aus Thymian, Minze und Salbei. Den Garten zieren mehrere Statuen. Es sind Kopien zeitgenössischer Gartenkunst. Im östlichen Garten stand eine Statue von Neptun, im westlichen eine von Merkur. Sie symbolisieren Seefahrt und Handel, die Lebensgrundlagen der Stadt Bergen.
Der Herrengarten hat einen streng geometrischen Aufbau mit sechs Quadraten und einer Allee aus Eiben. Die Wege sind aus weißem Kies.
Der Frauengarten folgt weniger strengen architektonischen Linien als der östliche Garten. Hier gibt es einen Ententeich und einen Karpfenteich. Der Ententeich liegt in einer Achse mit dem Fenster des Frauenschlafzimmers. Diese Querachse zieht sich durch das ganze Haus bis zum Herrengarten, wo die Neptunstatue Wasser in ein kleines Bassin sprudelt.
Der Englische Garten wurde wahrscheinlich Mitte des 18. Jahrhunderts in einer Halbkreisform mit Lindenbäumen angelegt. Erst um 1830 wurde er in einen englischen Landschaftsgarten umgestaltet und bekam eine Brücke über den Bach, einen Teich mit Schlingpflanzen und Wege. Dieser Garten wurde ebenfalls restauriert und ist das ganze Jahr zugänglich.
Restaurierung
Die umfassende Restaurierung im Jahr 1983 fand unter der Leitung der Umweltschutzbehörde in Zusammenarbeit mit dem Riksantikvaren statt. Die Konservierungsarbeiten führte das Architekturbüro Hansteen durch. Die Restaurierung startete unmittelbar nach der Übernahme des Herrenhauses von der Familie Janson.
Vor der Restaurierung wurde das Haus begutachtet, gesichert und in Hinblick auf die zukünftige Aufgabe als Museum beurteilt. Als die Arbeiten begannen, erwiesen sich die Schäden an der tragenden Konstruktion und den Fundamenten als schwerwiegender als zunächst gedacht. Die ersten fünf Jahre verbrachte man damit, das Dach und die Wände zu reparieren und das Haus insgesamt zu stabilisieren. Statt die Konstruktion einfach auszutauschen, war das Hauptziel der Restaurierung, sie so weit wie möglich zu erhalten und nur die defekten Stellen zu reparieren. So sind viele Teile des Gebäudes noch im Original erhalten. Neben den notwendigen konstruktiven Maßnahmen starteten auch die Restaurierungsarbeiten, geleitet von Jon Brænne. Alle Oberflächen des Hauses wurden gründlich untersucht, und mehrere Lagen Tapeten und Goldbeschichtungen wurden abgetragen. Während dieser Arbeiten wurde eigens eine Hausmeisterwohnung im Westflügel des Hauses eingerichtet.
Die Wände einiger Räume wurden nach Stand damaliger Technik bemalt, andere wurden mit Kopien einstiger Tapeten ausgestattet. Man ließ die verschiedenen Räume so aufleben, dass sie verschiedene Zeiten der Geschichte des Hauses repräsentieren. Die Besucher des Museums werden in allen Räumen auf die früheren Bemalungen und Tapeten hingewiesen. Die Restaurierung sowie die Sicherungsarbeit war eine der umfangreichsten in Norwegen.
Siehe auch
Literatur
- Gunnar Hagen Hartvedt: Bergen Byleksikon. Kunnskapsforlaget, 1999, ISBN 82-573-1036-0.
- Trond Indahl: Damsgård. In: Heft des Vestlandske kunstindustrimuseum. 1994.
- Trond Indahl: Damsgård hovedgård, en festlig krusedull i norsk arkitektur. In: Foreningen til norske fortidsminnesmerkers bevaring (Hrsg.): Jahrbuch 1989. 1989, S. 11–26.
- Tale og Hansteen Kristina, Jacob Hans: Damsgårds istandsetting, intensjoner og arbeidsmåter. In: Foreningen til norske fortidsminnesmerkers bevaring (Hrsg.): Jahrbuch 1989. 1989, S. 27–46.
- Jon Brænne: Fra barokk til louis-seize, Undersøkelser, funn og konservering på Damsgård. In: Foreningen til norske fortidsminnesmerkers bevaring (Hrsg.): Jahrbuch 1989. 1989, S. 47–62.
- mehrere Verfasser: Damsgård have. In: Foreningen til norske fortidsminnesmerkers bevaring (Hrsg.): Jahrbuch 1989. 1989, S. 63–84.
- Jan Hendrich Lexow: Den sittende søyle i Bergen. In: Foreningen til norske fortidsminnesmerkers bevaring (Hrsg.): Jahrbuch 1954. 1954, S. 129–143.
- Kristian Bjerknes: De Bergenske borgerhus. In: Byborgernes hus i Norge. Oslo 1963, S. 160–198.
Weblinks
- Bymuseet i Bergen, abgerufen am 24. August 2013 (norwegisch, englisch)
- (Seite nicht mehr abrufbar, festgestellt im Mai 2021. Suche in Webarchiven) Bilder auf Kunsthistorie.com, abgerufen am 24. August 2013 (norwegisch)
Einzelnachweise
- ↑ nach W. M. Schelderup
- ↑ Krasjet inn i Damsgard hovedgard. ( des vom 29. Juli 2013 im Internet Archive) Info: Der Archivlink wurde automatisch eingesetzt und noch nicht geprüft. Bitte prüfe Original- und Archivlink gemäß Anleitung und entferne dann diesen Hinweis. In: Bergens tidene. (norwegisch) – abgerufen am 24. August 2013.
- ↑ die Kirche ist heute niedergebrannt
- ↑ Bild des altare capriccioso ( des vom 16. Januar 2014 im Internet Archive) Info: Der Archivlink wurde automatisch eingesetzt und noch nicht geprüft. Bitte prüfe Original- und Archivlink gemäß Anleitung und entferne dann diesen Hinweis. – abgerufen am 24. August 2013.
- ↑ Årets grønne parken ( vom 20. September 2011 auf WebCite) (norwegisch) – abgerufen am 24. August 2013.
Koordinaten: 60° 23′ 0″ N, 5° 18′ 7,6″ O