Garnisonkirche (Spandau)

Ansicht von Osten, 1890

Die Garnisonkirche war ein Kirchengebäude in Spandau. Es bestand von 1887 (Grundsteinlegung) bis 1950 und diente als Gotteshaus für die evangelische Militärkirchengemeinde in der Garnison Spandau.

Geschichte

Militärseelsorge in Spandau

Die Gottesdienste der in Spandau stationierten evangelischen Soldaten fanden ab 1659 bis zu deren Umnutzung durch französisches Militär 1806 in der Moritzkirche statt, ab 1709 zudem in der neu erbauten Schlosskapelle auf der Spandauer Zitadelle.[1] Im Laufe des 18. Jahrhunderts wurde auch die Johanneskirche neben der reformierten Gemeinde zunehmend durch die Militärgemeinde genutzt; die Kirche wurde dafür ab 1836 grundlegend erneuert und verfügte über 493 Sitzplätze.[2] Für die katholischen Soldaten bestand eine Kapelle auf dem Gewehrplan und ab 1848 die neuerbaute Kirche St. Marien am Behnitz.

Mit dem Ausbau Spandaus zur Festung ab 1873 wuchs die Zahl der Militärangehörigen, so dass die Johanneskirche als Garnisonkirche der evangelischen Militärgemeinde nicht mehr ausreichte; 1876 zählte die Militärgemeinde 3787 Seelen, die Johannesgemeinde etwa 2500. Eine Verlegung der Johanneskirche als Gemeinde- und Militärkirche wurde von der Stadt Spandau gewünscht, um das Grundstück der Kirche in der Jüdenstraße zur Erweiterung der Stadtschulen nutzen zu können. Dies lehnte der Militärfiskus jedoch ab. Daraufhin wurde die Kirchengemeinde mit der Nikolaigemeinde zusammengelegt, in der Spandauer Neustadt wurde 1895/96 die Lutherkirche gebaut. Für die Militärgemeinde errichtete der Militärfiskus neu die Garnisonkirche. Der letzte Gottesdienst der Militärgemeinde in der Johanneskirche fand am 9. März 1890 statt, die Johanneskirche wurde im Winter 1902/03 abgerissen.[3]

Geschichte des Kirchbaus

Die Garnisonkirche auf einer Postkarte, 1909

Die Ausschachtungsarbeiten für die Garnisonkirche begannen im Mai 1887, die Grundsteinlegung war am 19. Oktober 1887. Wegen des schwierigen Baugrundes mussten zunächst durch Bögen verbundene Senkkästen für die Fundamente gebaut werden. Der Entwurf der Kirche stammt von Regierungsbaumeister Ernst August Roßteuscher unter Mitarbeit des Geheimen Oberbaurats Gustav Voigtel und des Intendantur- und Baurats Emil Boethke.[4] Die Leitung des Kirchbaus hatten die Regierungsbaumeister Voelcker, Jansen und Afinger, der Bau wurde ausgeführt von Maurermeister E. Müller aus Spandau, Zimmermeister W. Sittel aus Nauen, Schlossermeister Seebinger aus Marburg (Schmiede- und Schlosserarbeiten) und Steinmetzmeister Schöneseifer aus Marburg (Werksteinarbeiten). Die Baukosten lagen bei 270.000 Mark (kaufkraftbereinigt in heutiger Währung: rund 2,22 Millionen Euro). An der Weihe der Kirche am 16. März 1890 nahmen Kaiser Wilhelm II., Kaiserin Auguste Viktoria und Kaiserin Friedrich teil.

An die Einweihung der Kirche erinnerte eine Tafel mit folgender Aufschrift:[5]

„Durch Gottes Gnade wurde im Jahre des Heils 1890 am Sonntage Laetare am 16. März diese Kirche in Gegenwart Ihrer beiden Majestäten, unseres allergnädigsten Kaiser und Königs Wilhelm II. und unserer allergnädigsten Kaiserin Viktoria, Ihrer Majestät der Kaiserin und Königin Friedrich, Königlicher Prinzen und Prinzessinnen, des Großherzogs von Baden und der ersten Würdenträger in Staat und Kirche eingeweiht. Möge unser Gotteshaus allzeit sein und bleiben ein heilger Quell seligmachenden Glaubens, unwandelbarer Königstreue bis in den Tod, gesegneter Waffenbrüderschaft. – Das walte Gott.“

Im Oktober 1944 und im März 1945 zerrissen durch in der Nähe niedergehende Bomben mehrere Segmentbögen der Fundamente und es entstanden Risse im Mauerwerk der Kirche, die zum Teil vom Fußboden bis zur Empore reichten; der Turm neigte sich 60 cm zur Seite. Daher wurde 1946 zunächst der Abriss der Kirche beschlossen, da die Aufbaukosten 360 000 Reichsmark betragen hätten und eine Garnisongemeinde nach Ende des Zweiten Weltkriegs nicht mehr bestand. 1947 erwog man, das Gebäude zu einem Gemeindehaus für die Luthergemeinde umzubauen. Am 4. Oktober 1950 wurde die Garnisonkirche gesprengt, an der Stelle entstand eine Grünfläche. Letzte Grundmauern wurden bei Straßenbauarbeiten am 11. Mai 1959 gesprengt.[6]

Bauwerk

Die Kirche lag am damaligen Hafenplatz auf der westlichen Seite der Neuendorfer Straße (die damals östlicher verlief als heute) und südlich der Einmündung der Bismarckstraße (bis 1891: Spektestraße), in Höhe der Garnisonwaschanstalt, dem heutigen Restaurant Brauhaus. Der Bau war in Ost-West-Richtung ausgerichtet, der Chor lag im Westen, der Turm stand wegen der besseren Wirkung im Straßenbild im Osten an der Neuendorfer Straße.

Das Standbild Kaiser Wilhelms I. nahe der Kirche

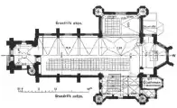
Das Gebäude war eine zwölf Meter breite einschiffige Hallenkirche mit einem elf Meter breiten Querhaus im Stil der Neogotik. Die Apsis mit einem schmalen Vorchor hatte einen dreiseitigen Schluss. Seitlich vom Vorchor waren die Sakristei (links) und ein Konfirmandenzimmer (rechts) angebaut. Das Außenmauerwerk bestand aus tiefroten Rathenower Handstrichsteinen im Blockverband. Das Langhaus war durch Strebepfeiler in drei Joche gegliedert, die ein Kreuzgewölbe besaßen. Die Strebepfeiler waren teilweise durch die Wand gezogen und bildeten auch innen rechteckige Vorsprünge, die Gewölbedienste und Pfeilervorlagen für die Gurtbögen waren erst ab einer Höhe von drei Metern entwickelt. Auch die einjochigen Querhausarme hatten ein Kreuzgewölbe, die quadratische Vierung ein weites Sterngewölbe. Die Querhausarme waren in Langhausbreite arkadenartig mit Emporen geschlossen, die Orgelempore im Osten war in den Turm hineingezogen. Alle Emporen hatten an den Brüstungen eine Zwerggalerie. Die Fenster waren dreigeteilte Spitzbogenfenster; sie zeigten im Bogenfeld bei den Fenstern zwischen den Strebepfeilern eine große und zwei kleinere Rosen, am Querhaus gleich große Rosen. Über dem zweitürigen Portal befand sich ein großes Rundfenster, von dem drei große und drei kleinere, aus Dreipassformen gebildete Rundfenster zusammengefasst wurden. Die farbigen Fenster waren von dem Berliner Glasmaler L. Jessel gestaltet, das Chorfenster zeigte Jesus Christus in der Mandorla.[7]

Der Kirchturm als östliche Schauseite der Kirche war 70 m hoch und hatte eine achteckige gemauerte Spitze, umgeben von mehreren Fialtürmchen. Die beiden Fassaden des Querhauses hatten jeweils beidseitig zwei Ecktreppentürme, die durch Blenden aufgelockert waren.

Das Innere der Kirche war nach „mittelalterlichen Grundsätzen“ in leuchtenden Farben ausgemalt, und zwar neben Wandflächen, Pfeilern und Gewölbe auch alle Säulenknäufe, Kragsteine, Rippenanfänger und Schlusssteine.[7]

Südlich der Kirche wurde 1909 ein Reiterdenkmal Kaiser Wilhelms I. aufgestellt.

Ausstattung

Orgel

Die Orgel in der Garnisonkirche wurde von der Orgelbaufirma Schlag & Söhne (Schweidnitz in Schlesien) 1890 erbaut und hatte 23 Register.[8] 1913 wurde sie von der Hoforgelbauanstalt W. Sauer (Frankfurt an der Oder) umgebaut und 1931 von der Firma Orgelbau Gebrüder Dinse neu intoniert.

Disposition der Orgel von 1890[8]
I Manual
Bordun 16′
Principal 8′
Gambe 8′
Hohlflöte 8′
Oktave 4′
Spitzflöte 4′
Rauschquinte 223′ 2′
Mixtur IV
Cornet I–III
Trompete 8′
II Manual
Gedeckt 16′
G-Principal 8′
Salicet 8′
Gedackt 8′
Voix céleste 8′
Principal 4′
Flauto trav. 4′
Mixtur II–III
Pedal
Principal 16′
Violon 16′
Cello 8′
Subbass 16′
Posaune 16′
  • Koppeln: II/I, I/P, II/P
  • 3 Combinationsknöpfe mf. f. tutti & Auslöser
  • Rohrwerkabsteller
  • Schweller II

Glocken

Die Kirche erhielt drei Gussstahl-Glocken, die 1890 in der Königlichen Geschützgießerei Spandau von Geschützgießmeister Kirsch gegossen worden waren:

  • 820 kg, Durchmesser 118 cm, Schlagton f
  • 422 kg, Durchmesser 94 cm, Schlagton a
  • Von der dritten Glocke ist nur die Inschrift bekannt:
    Lobet ihr Himmel den Herrn, lobet Ihn in der Höhe.
    Anno Domini 1889, gegossen in der Königl. Geschützgießerei zu Spandau.

Die beiden ersten Glocken waren am Ende des Ersten Weltkriegs nicht mehr vorhanden, die dritte Glocke wurde am 3. Oktober 1934 abgehängt und durch zwei neue Glocken, ebenfalls aus Gussstahl, aus der Glockengießerei Otto in Hemelingen bei Bremen ersetzt, die am 4. November 1934 geweiht wurden:

  • 1600 kg, Schlagton ges, Inschrift:
    Jesus Christus, gestern und heute und derselbe auch in Ewigkeit. – 1934, als Reichspräsident von Hindenburg starb und Reichskanzler Adolf Hitler Führer des Deutschen Reiches war und Oberstleutnant Freiherr von Gablenz, Pfarrer Radtke und Oberinspektor Zimmermann Kirchenvorstand und Baurat Klage und Bauinspektor Meyer Bauleiter waren.
  • 800 kg, Schlagton es, Inschrift:
    Sei getreu bis an den Tod, so will ich dir die Krone des Lebens geben. Gegossen anno Domini 1934 zur Erinnerung an den verewigten Reichspräsidenten Generalfeldmarschall von Hindenburg.[9]

Sonstige Ausstattung

Literatur

  • Gunther Jahn: Die Bauwerke und Kunstdenkmäler von Berlin. Stadt und Bezirk Spandau. Gebr. Mann Verlag, Berlin 1971, S. 131–134.
Commons: Garnisonskirche Spandau (Berlin) – Sammlung von Bildern, Videos und Audiodateien

Einzelnachweise

  1. Gunther Jahn: Die Bauwerke und Kunstdenkmäler von Berlin. Stadt und Bezirk Spandau. Berlin 1971, S. 187–193, hier S. 150.
  2. Gunther Jahn: Die Bauwerke und Kunstdenkmäler von Berlin. Stadt und Bezirk Spandau. Berlin 1971, S. 151, 154.
  3. Gunther Jahn: Die Bauwerke und Kunstdenkmäler von Berlin. Stadt und Bezirk Spandau. Berlin 1971, S. 150 f., 155.
  4. Uwe Kieling: Berliner Baubeamte und Staatsarchitekten im 19. Jahrhundert. Kulturbund der DDR, Berlin 1986, S. 13.
  5. Gunther Jahn: Die Bauwerke und Kunstdenkmäler von Berlin. Stadt und Bezirk Spandau. Berlin 1971, S. 134.
  6. Gunther Jahn: Die Bauwerke und Kunstdenkmäler von Berlin. Stadt und Bezirk Spandau. Berlin 1971, S. 132. Nach anderen Angaben: Sprengung der Kirche am 4. Oktober 1949. ([1] Clemens Kurz Stadtspaziergänge: Verschollene Orte: die Garnisonkirche in Spandau, 21. Februar 2016.)
  7. a b Gunther Jahn: Die Bauwerke und Kunstdenkmäler von Berlin. Stadt und Bezirk Spandau. Berlin 1971, S. 133.
  8. a b Roland Eberlein (Hg.): Hermann Mund Sammlung Orgeldispositionen Heft A. (walcker-stiftung.de [PDF; abgerufen am 24. Februar 2024] Disposition Nr. 41, S. 46).
  9. Gunther Jahn: Die Bauwerke und Kunstdenkmäler von Berlin. Stadt und Bezirk Spandau. Berlin 1971, S. 133 f.
  10. Gunther Jahn: Die Bauwerke und Kunstdenkmäler von Berlin. Stadt und Bezirk Spandau. Berlin 1971, S. 154.

Koordinaten: 52° 32′ 27,5″ N, 13° 12′ 20,2″ O