Daihōon-ji


Der Daihōon-ji (japanisch 大報恩寺) mit dem Bergnamen Zuiō-zan (瑞応山), auch Senbon-Shakadō (千本釈迦堂) genannt, ist ein Tempel der Shingon-Richtung des Buddhismus. Der Tempel befindet sich im Kamigyō-ku, Kyōto und ist der 16. Tempel des Neuen Saigoku-Pilgerwegs.
Geschichte
In einem Bericht im „Hantōkō“ (半陶藳) heißt es, Ganko (岸高), ein Gefolgsmann des Fujiwara no Mitsutaka (藤原 光隆), bekannt auch als „Nekoma Chūnagon“ (猫間 中納言), habe Priester Gikū (義空) veranlasst, im Jahr 1221 diesen Tempel zu errichten. Gikū war ein Enkel des Fujiwara no Hidehira (藤原 秀衡; 1096–1187), der am Ende der Heian-Zeit in Nordjapan regierte.
Anlage
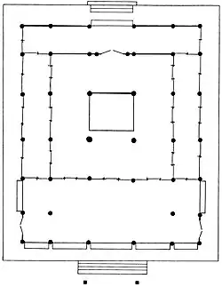
Die Haupthalle (本堂 Hondō) wurde im Jahr 1221 im Shichū-Stil (四柱造) errichtet und hat die Zerstörungen während der verschiedenen Kriege der Adeligen untereinander als große Ausnahme überlebt. Sie hat sechs Säulen an der Frontseite von 19,53 m und fünf Säulen in der Tiefe mit 23,19 m, ist eingeschossig, besitzt ein Fußwalmdach, das mit Zypressenrinde (檜皮葺 Hiwada-buki) gedeckt ist. Das Gebäude besitzt Gitter-Türen (蔀戸 Shitomi-do) und Schiebe-Türen (引き違い格子戸 Hikichigai kōshi-do) und ähnelt daher eher einem Residenz als einem Tempel der Heian-Zeit. Die Haupthalle ist als Nationalschatz registriert.
Tempelschätze
Als Wichtiges Kulturgut Japans sind registriert:
- Sitzender Siddhartha Gautama (木造釈迦如来坐像 Mokuzō Shaka nyorai sazō) aus der Kamakura-Zeit. Hauptkultfigur des Tempels, geschaffen von Gyōkai (行快), einem Schüler Kaikeis, nicht öffentlich sichtbar.
- Die zehn wichtigsten Jünger (木造十大弟子立像 Mokuzō jūdaideshi ritsuzō) aus dem Inneren der Shaka-Figur.
- Sechs Kannon (木造六観音像 Mokuzō roku Kannon) aus dem Inneren der Shaka-Figur.
- Stehender, gerade geborener Siddhartha aus Bronze (銅造誕生釈迦仏立像 Dōzō Tanjō-Shaka ritsuzō), Muromachi-Zeit.
- Stehende Kannon (木造千手観音立像 Mokuzō senju Kannon ritsuzō), Heian-Zeit.
- Futai mit zwei Begleitern (木造傅大士及二童子像 Mokuzō Futaishi oyobi ni dōji zō) aus dem Jahr 1418.
- Vollständige Sutra Kitanokyō-ōdō (北野経王堂一切経 Kitanokyō-ōdō issai-kyō) 5048 Blätter, davon 232 kopiert.
Literatur
- Kyoto-fu rekishi isan kenkyukai (Hrsg.): Daihōon-ji. In: Kyoto-fu no rekishi sampo (jo). Yamakawa Shuppan, 2011. ISBN 978-4-634-24626-3. S. 159.
Weblinks
Koordinaten: 35° 1′ 54,7″ N, 135° 44′ 23,7″ O