Clackmannan Tower

Clackmannan Tower ist ein Tower House nahe der schottischen Stadt Clackmannan in der Council Area Clackmannanshire. 1960 wurde das Gebäude in die schottischen Denkmallisten in der höchsten Kategorie A aufgenommen.[1] Des Weiteren ist das Bauwerk seit 1935 als Scheduled Monument geschützt.[2]
Geschichte
Das Bauwerk stammt aus dem 14. Jahrhundert. Über den Erbauer existieren unterschiedliche Angaben. Entweder ließ der schottische König David II. den Turm erbauen oder erst Robert Bruce (nicht zu verwechseln mit Robert the Bruce), welcher die Ländereien im Jahre 1359 erwarb. Den örtlichen Überlieferungen folgend, war Robert the Bruce († 1329) der Bauherr. Gesichert erscheint hingegen, dass sich die Ländereien zwischen 1359 und 1796 im Besitz des Clan Bruce befand. Als Standort wurde die Kuppe des King’s Seat Hill gewählt, welcher durch das Panorama über das Tal des Forth eine strategisch bedeutsame Position darstellte. Zunächst entstand ein zweistöckiges, längliches Gebäude, das im Laufe des 15. Jahrhunderts erweitert wurde. Zum einen wurde das bestehende Bauwerk auf vier Stockwerke aufgestockt, zum anderen wurde im rechten Winkel ein fünfstöckiger Anbau hinzugefügt, sodass ein L-förmiger Grundriss entstand. Des Weiteren wurde ein Herrenhaus neben dem Turm errichtet, welches mit dem Ableben des letzten Erben im Jahre 1791 abgerissen wurde. Der Clackmannan Tower wurde im 16. und 17. Jahrhundert umgestaltet. Unter anderem wurde der Eingang von der Ost- an die Westseite verlegt. Seit den 1950er Jahren verwaltet Historic Scotland den Turm. Durch Bergsenkung infolge von Bergbauaktivitäten entstanden Schäden am Gebäude. Der Turminnere kann derzeit auf Grund von Bauschäden nicht besichtigt werden.[3][4][5]
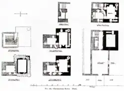
Beschreibung


Der 24 m hohe Clackmannan Tower liegt am Westrand der Stadt Clackmannan. Er besitzt einen L-förmigen Grundriss, wobei der Südflügel fünf- und der Nordflügel vierstöckig ist. Das Mauerwerk besteht aus Bruchstein und teilweise verbauten Quadersteinen. Der aus dem 17. Jahrhundert stammende Eingangsbereich wird von einem Dreiecksgiebel bekrönt. Ursprünglich wurde der Turm über eine Treppe im ersten Obergeschoss betreten. Das Gebäude schließt mit einer auskragenden Zinnenbewehrung. Das schiefergedeckte Dach ist neueren Datums. Von den Außengebäuden sind allenfalls noch Fragmente erhalten.[1][3][4]
Einzelnachweise
- ↑ a b Listed Building – Eintrag. In: Historic Environment Scotland. (englisch).
- ↑ Scheduled Monument – Eintrag. In: Historic Environment Scotland. (englisch).
- ↑ a b Eintrag zu Clackmannan Tower auf trove.scot, der Datenbank von Historic Environment Scotland (englisch)
- ↑ a b Clackmannan Tower. In: Clackmannanshire Council www.clacks.gov.uk > Tourism & Visitor Attractions > Places to Visit. Clackmannanshire Council, Clackmannanshire, abgerufen am 5. November 2022 (englisch).
- ↑ Informationen über den Clackmannan Tower ( vom 2. Mai 2012 im Internet Archive)
Weblinks
- Informationen über den Clackmannan Tower
- Eintrag zu Clackmannan Tower auf trove.scot, der Datenbank von Historic Environment Scotland (englisch)
Koordinaten: 56° 6′ 28,4″ N, 3° 45′ 35,4″ W