Chōju-ji (Shiga)


Der Chōju-ji (japanisch 長壽寺, volkstümlich Higashitera (東寺, „Osttempel“)) ist ein Tempel der Tendai-Richtung des Buddhismus und einer der Drei Tempel von Konan in der Präfektur Shiga.
Geschichte
Der Tempel wurde in der Tempyō-Ära (729–749) von Priester Rōben gegründet. In alten Zeiten soll es eine ausgedehnte Tempel-Anlage gegeben haben, jetzt ist es eine kleine, einsame Anlage unter Bäumen.
Die Anlage
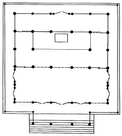
Die Haupthalle (Hondō) am Ende eines von Ahorn-Bäumen gesäumten Zugangsweges hat einen Grundriss von 5 × 5 Ken, der mit 12,73 × 13,15 m nicht ganz exakt ein Quadrat bildet. Sie besitzt ein Walmdach, das mit Zedernrinden-Schindeln (檜皮葺, Hiwada-buki) gedeckt ist. Die Halle ist über eine, durch ein Vordach geschützte, Treppe zugänglich. Die Haupthalle, die aus der frühen Kamakura-Zeit stammt, ist im Japanischen Stil ausgeführt. Sie ist als Nationalschatz registriert.
In der Mitte der Haupthalle befindet sich auf dem Altar ein Miniaturschrein (厨子, Zushi), der gemäß einer Inschrift aus dem Jahr 1480 stammt und der ebenfalls als Nationalschatz registriert ist. Die im Inneren befindliche Buddha-Gruppe wird – dem esoterischen Buddhismus gemäß – gewöhnlich nicht der allgemeinen Öffentlichkeit gezeigt. Die Mitte wird von einem sitzenden Shaka-nyorai eingenommen. Er ist 177 cm hoch, ist aus Holz und ist typisch für die späte Heian-Zeit. Rechts befindet sich ein Amida-nyorai aus Holz, 142 cm hoch. Beide Figuren sitzen auf einem Lotos-Kissen, zählen zu den Wichtigen Kulturgütern des Landes. Etwas zurückgesetzt befindet sich dort noch eine weitere Heiligenfigur. Sie ist als Wichtiges Kulturgut der Präfektur registriert.
In einem mittelgroßen, rechts hinter der Haupthalle stehenden, Speicher befindet sich ein sitzender Amida-nyorai aus Holz, der 2,85 m hoch ist. Er stammt aus der Heian-Zeit und ist als Wichtiges Kulturgut registriert. – Auf einer kleinen Insel im Teich auf der rechten Seite steht ein kleines, der Göttin Benzaiten geweihtes, Bauwerk mit quadratischem Grundriss von 1,8 m Seitenlänge. Es ist mit Zedernrinden-Schindeln gedeckt, stammt aus der Muromachi-Zeit und ist ebenfalls Wichtiges Kulturgut.
Literatur
- Shiga-ken rekishi sampo henshu iinkai (Hrsg.): Choju-ji. In: Shiga-ken no rekishi sampo (jo). Yamakawa Shuppan, 2008. ISBN 978-4-634-24625-6.
Weblinks
Koordinaten: 34° 59′ 7,2″ N, 136° 3′ 35,6″ O