Burg Laurenzberg
| Burg Laurenzberg | |
|---|---|
![]() Burg Laurenzberg im Jahr 1915 | |
| Alternativname(n) | Burg Sankt Laurenzberg, Laurenzburg, Burg Berg, Burg Berghe, Burg Schwalmersberg, Burg Siegersberg, Schwalmersburg, Siegersburg, Ten Bergen[1] |
| Staat | Deutschland |
| Ort | Eschweiler |
| Entstehungszeit | 14. Jahrhundert |
| Burgentyp | Niederungsburg |
| Erhaltungszustand | abgerissen |
| Bauweise | Bruchstein, Backstein |
| Geographische Lage | 50° 52′ N, 6° 15′ O |
Die Burg Laurenzberg war eine Wasserburg am südlichen Ortsrand der in den 1970er Jahren abgebaggerten Ortschaft Laurenzberg, einem Stadtteil von Eschweiler. Die kleine Anlage war im Laufe der Geschichte unter zahlreichen Namen bekannt, so zum Beispiel Burg Berg, Schwalmersburg, Burg Siegersberg und Ten Bergen.
Geschichte
Im Jahr 1347 wurde die Burg erstmals urkundlich genannt, als sie Reinhard von Schönau samt dem dazugehörigen Gericht dem Kölner Domkapitel zu Lehen auftrug. Anschließend kam sie im 15. Jahrhundert an Seger von Schwalmen, ob durch Kauf oder als Mitgift seiner Frau, ist unklar.[2] Nach ihm wurde die Anlage auch Burg Siegersberg und Burg Schwalmersberg genannt.[3] Fulsgin von Schwalmen brachte Burg und Herrschaft 1422 in ihre Ehe mit Johann I. von Palant, Herrn zu Breitenbend.[4] Seine Familie blieb bis in das 17. Jahrhundert Besitzerin. Der Sohn des Paares, Johann II. von Palant, erbaute wahrscheinlich den damaligen Torturm der Anlage.[3] Darauf deuten die Wappen Johanns II. und seiner Frau Katharina von Roetzelaer hin, die sich am Kamin und an der Balkendecke des Zimmers im ersten Turmgeschoss befanden.
Beim Tod einer ihrer Nachfahren, ebenfalls mit Namen Johann, im Jahr 1533 kam es zu einer Erbteilung unter seinen elf Kindern. Die Burg Laurenzberg ging dabei an Johanns ältesten Sohn Werner. Er und seine Frau Margarethe von dem Bongart ließen sie grundlegend verändern. Während der Jülicher Fehde brannte die Anlage 1542 ab,[5] wurde im Folgenden aber wieder aufgebaut.

1611 vermachte die Witwe Anna von Gertzen, verheiratete von Palant, den Besitz nach dem Tod ihrer beiden Söhne Johann und Wilhelm an die Nachkommen ihrer beiden Schwestern Maria und Elisabeth, namentlich Daem (Damian) von Harff, Johann von Gymnich zu Vischel, Adam von Gymnich zu Dreiborn und Johann von Binsfeld. Mit Ausnahme des Harff’schen Anteils kam der Besitz später an die Herren von Wachtendonk und nach deren Aussterben im Jahr 1731 an die Nachkommen des Daem von Harff. 1741 waren dies mehrere Familien: die von Harff, von Spieß zu Allner und von Rohe-Drove. Aufgrund dieser Teilung scheint die Burg heruntergekommen zu sein,[6] zumindest waren nach dem 16. Jahrhundert keine Instandhaltungsarbeiten mehr zu verzeichnen. Der Freiherr Clemens August von Hersel vereinigte den Besitz durch Käufe in den Jahren 1767, 1768 und 1772 wieder in einer Hand. Gemeinsam mit seiner Frau Maria Anna von Bourscheidt zu Merödgen ließ er weitreichende Umbauarbeiten vornehmen, bei der große Teile der alten Anlage durch Neubauten ersetzt wurden. Davon zeugte das Allianzwappen des Paares über der Tordurchfahrt gemeinsam mit der Jahreszahl 1773. Die jüngere Tochter Maria Anna vermachte die Burg bei ihrem Tod ihrem Neffen, dem Grafen Edmund von Hatzfeld-Wildenburg-Weisweiler. Am 28. Juni 1845[7] folgte als Eigentümer Herzog Prosper Ludwig von Arenberg, der die Burg Laurenzberg ab 1884 samt 25 Morgen Land verpachtete. Anschließend war die Anlage bis mindestens 1927 das Eigentum des Herzogs Engelbert-Maria von Arenberg. In jenem Jahr gab es Pläne, sie an den Eschweiler Bergwerks-Verein zu verkaufen.[7]
Die kleine Anlage verschwand – wie der gesamte Ort Laurenzberg – 1972 von der Landkarte, als sie für den Tagebau Zukunft-West abgebaggert wurde.
Beschreibung

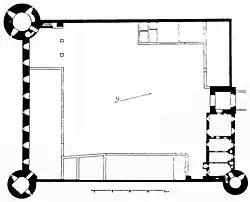
Burg Laurenzberg war eine geschlossene Vierflügelanlage aus Bruch- und Backstein. Sie besaß einen etwa 59 × 46,5 Meter[8] messenden, rechteckigen Grundriss und war von breiten Wassergräben umgeben, die vom Merzbach gespeist wurden. Drei ihrer Ecken waren durch massive Rundtürme markiert, der vierte Turm an der Nordwest-Ecke war zu Beginn des 20. Jahrhunderts bereits abgetragen. Seine Steine hatten beim Umbau im 18. Jahrhundert Verwendung gefunden.[7]
Zugang gewährte an der Nordseite ein barocker, viereckiger Torturm mit Eckquaderungen, zu dem eine Brücke führte. Seine Mauern waren 1,35 Meter[7] dick und die drei Geschosse waren von einer schiefergedeckten, geschwungenen Haube bedeckt. Das Innere der ersten und zweiten Etage wurde jeweils von einem einzigen Raum eingenommen. Während das erste Geschoss eine Balkendecke besaß, war das zweite Geschoss von einem Sterngewölbe mit hochgotischen Profilen abgeschlossen. In beiden Räumen fanden sich Kamine aus Blaustein, wovon derjenige in der ersten Etage die Wappen der Familien Palant und Roetzelaer zeigte, die sich an den Deckenbalken wiederholten.
An der Ostseite schloss sich dem Torturm der Wohntrakt an. Er ersetzte den früheren Palas der Anlage, der ihre gesamte Südseite einnahm und später als Scheune diente. Der langgestreckte Bau besaß Verbindungen zu den ihn flankierenden Ecktürmen im Südwesten und Südosten. Anfangs mehrgeschossig, waren die einstigen Obergeschosse zu Beginn des 20. Jahrhunderts bereits abgetragen und der Flügel bestand nur noch aus einem zugeschütteten Keller und einem Erdgeschoss. Seine Außenfassade besaß sieben Querstockfenster, die eine lichte Höhe von zwei Metern[9] aufwiesen. Der Türsturz des hofseitigen Eingangs aus rotem Sandstein zeigte das Allianzwappen Werner von Palants sowie seiner Frau Margarethe von Bongart und wies das Paar als Bauherren aus.
Die drei noch existierenden Ecktürme aus Backstein waren zweigeschossig und mit einem Kranzgesims verziert. Ihr Dach war im Laufe der Zeit abgenommen worden. Ihre niedrigen Untergeschosse aus Bruchstein waren von einem Kuppelgewölbe abgeschlossen, während das Erdgeschoss ein Kreuzrippengewölbe besaß. Schießscharten zeugten von der Wehrhaftigkeit der Bauten, deren Mauern so dick waren, dass sich die Treppen zu den Obergeschossen in der Mauerstärke befanden. Der Südwest-Turm war der größte der Türme und besaß 2,5 Meter[10] dicke Mauern. An der Nordseite seines Innenraums befand sich ein schlichter Kamin. Der runde Südost-Turm der Anlage war hingegen weniger wehrhaft. Eine Treppe führte von seinem Erdgeschoss auf die Ringmauer zum vermutlich vorhandenen Wehrgang.[10]
Literatur
- Karl Franck-Oberaspach, Edmund Renard: Die Kunstdenkmäler des Kreises Jülich (= Die Kunstdenkmäler der Rheinprovinz. Band 8, Abt. 1). L. Schwann, Düsseldorf 1902. S. 152–157.
- Christian Lenz: Die Laurenzberger Burg und ihre Geschichte. In: Rur-Blumen. Blätter für Heimatgeschichte, Unterhaltung und Belehrung. Jg. 7, Nr. 33, 1927, o. S.
- Walther Zimmermann, Hugo Borger (Hrsg.): Handbuch der historischen Stätten Deutschlands. Band 3: Nordrhein-Westfalen (= Kröners Taschenausgabe. Band 273). Kröner, Stuttgart 1963, DNB 456882847, S. 393.
Weblinks
Fußnoten
- ↑ Friedrich-Wilhelm Krahe: Burgen des deutschen Mittelalters. Grundriss-Lexikon. Flechsig, Würzburg 2000, ISBN 3-88189-360-1, S. 359.
- ↑ Vgl. Gisela Meyer: Die Familie von Palant im Mittelalter. Vandenhoeck & Ruprecht, Göttingen 2004, ISBN 3-525-35852-0, S. 260, Fußnote 2 (Digitalisat).
- ↑ a b K. Franck-Oberaspach: Die Kunstdenkmäler des Kreises Jülich. 1902, S. 153.
- ↑ Gisela Meyer: Die Familie von Palant im Mittelalter. Vandenhoeck & Ruprecht, Göttingen 2004, ISBN 3-525-35852-0, S. 260 (Digitalisat).
- ↑ W. Zimmermann, F. von Klocke: Handbuch der historischen Stätten. 1963 S. 393.
- ↑ K. Franck-Oberaspach: Die Kunstdenkmäler des Kreises Jülich. 1902, S. 154.
- ↑ a b c d C. Lenz: Die Laurenzberger Burg und ihre Geschichte. 1927, o. S.
- ↑ Die Angaben beruhen auf dem in Die Kunstdenkmäler des Kreises Jülich veröffentlichten Grundriss und dem dazugehörigen Maßstab.
- ↑ K. Franck-Oberaspach: Die Kunstdenkmäler des Kreises Jülich. 1902, S. 155.
- ↑ a b K. Franck-Oberaspach: Die Kunstdenkmäler des Kreises Jülich. 1902, S. 156.

