Burg Gödersheim

Die Burg Gödersheim ist die Ruine einer spätgotischen[1] Wasserburg wenige Kilometer von Wollersheim entfernt, einem Stadtteil von Nideggen im nordrhein-westfälischen Kreis Düren. Sie befindet sich im Tal des Neffelbaches und steht seit dem 22. Oktober 1993[2] unter Denkmalschutz. Eigentümer der Burgruine und des umliegenden Geländes war der Landschaftsverband Rheinland. 2016 kaufte der direkte Nachbar, Helmut Waldmann, der Besitzer der Gödersheimer Mühle ist, die Ruine und die anliegenden Gebäude. Er will die Gebäude abreißen und in der Ruine und dem Torhaus Wohnungen einrichten.[3]
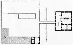
Beschreibung

Die zweiteilige Anlage bestand früher aus einem Burghaus und einer dreiflügeligen Vorburg, deren Hufeisenform zum Burghaus hin geöffnet war. Beide Teile der Burg waren von Wassergräben umgeben. Von der Vorburganlage sind nur noch Reste der Ringmauer und der stark überformte Torbau erhalten. Das Torgebäude besitzt Staffelgiebel und eine rundbogige Tordurchfahrt. Die übrigen Wirtschaftsgebäude wie Stallungen und Scheunen sind heute vollständig abgerissen.
Das zweigeschossige Burghaus mit Eckquaderungen wurde aus Bruchsteinen errichtet und besitzt einen rechteckigen Grundriss. Früher war es von einem Krüppelwalmdach abgeschlossen, ist heute aber nur noch als Ruine erhalten. Es ähnelte stark der etwa zur gleichen Zeit erbauten Hallenburg Disternich.[4] Im zweiten Geschoss zeigen sich an zwei Gebäudeecken die Ansätze runder Scharwachttürmchen. Die Längsseiten sind durch Querstockfenster mit Sandsteinfassungen in vier Achsen unterteilt. An den schmalen Giebelseiten finden sich je zwei Fensteröffnungen. Ein kleiner Erker mit dreiteiligem Fenster und Pultdach war schon zu Beginn des 20. Jahrhunderts teilweise eingestürzt.[5] Zur Vorburg hin war das Gebäude durch einen Zwinger mit niedriger Bruchsteinmauer und einigen Schießscharten geschützt.[5] Zugang zum Zwinger gewährte ein Tor aus der Zeit der Renaissance, das in seinem Rundbogengiebel das Allianzwappen der Familien von Merode und Holtrop sowie die Jahreszahl 1708 zeigte. Eine schmale, gemauerte Bogenbrücke stelle die Verbindung von Vorburg zum Wohnhaus her und führte zu einer Zugbrücke. Sowohl das Renaissancetor als auch die Brücke sind heute jedoch nicht mehr erhalten.
Auf dem Burgareal stehen neben der Herrenhausruine moderne Gebäude aus den 1950er Jahren, die von 1959 bis zu Beginn des 21. Jahrhunderts als Außenstelle der Rheinischen Landeskrankenhauses dienten.
Geschichte

Die Niederungsburg wurde erstmals im Jahre 1343 erwähnt und befand sich zu jener Zeit im Besitz der Familie von Gödersheim. 1373 erschien ein Johann von Vlatten als ihr Besitzer.
Der Juncker Goedert van Goedersem (Goedert von Goedersheim), war im 15. Jahrhundert (ca. 1440) Mitglied der St. Sebastianus-Schützen von Nideggen.[6]
Durch Heirat kam die Burg im Jahr 1474 an die Herren von Lülsdorf. Mitglieder dieser Familie errichteten um 1500[7] die heute als Ruine erhaltene Wasserburg. 1630 erwarb die Familie von Rohe genannt Obsinnich die Anlage von den Lülsdorfs, ehe sie spätestens 1642[8] durch Heirat an Gotthard von Merode-Hohenfels kam. Sein Sohn Johann Wilhelm und dessen Frau Anna Maria von Holtorp ließen wohl das Zwingertor umgestalten,[8] wovon bis etwa zum Ende des 19. Jahrhunderts[5] ihr gemeinsames Wappen und die Jahreszahl 1708 im Giebelfeld des Tores zeugten.
Auf der zwischen 1801 und 1828 unter Jean Joseph Tranchot durchgeführten Topographische Aufnahme der Rheinlande ist der Ort als Juderscheim eingezeichnet.
Als mit dem Tod Regine Petronellas von Merode die Familienlinie 1826 erlosch, kam die Burg Gödersheim – ebenso wie die Burg Jüngersdorf – per Erbschaft an die Familie des Düsseldorfer Rentmeisters Graef, dessen Erben den Besitz in mehreren Teilen verkauften. Die Burg erwarb die Familie Meiss aus Wollersheim. Einige ihrer Mitglieder bewohnten das Burghaus noch bis zum Jahr 1865, dann verfiel die Anlage allmählich und wurde zur Ruine.
Im Juni 2020 wurde bekannt, dass die Burg wieder aufgebaut werden soll.[9]
Literatur
- Jascha Philipp Braun: Auf den Spuren des Mittelalters: Die Burg Gödersheim im Fokus der Bauforschung, in: LVR-Amt für Denkmalpflege im Rheinland (Hrsg.): Jahrbuch der Rheinischen Denkmalpflege Band 46, Petersberg 2018, S. 215–227.
- Paul Clemen (Hrsg.): Die Kunstdenkmäler des Kreises Düren (= Die Kunstdenkmäler der Rheinprovinz. Band 9, Abt, 1). L. Schwann, Düsseldorf 1910, S. 355–358.
- Ulrich Coenen: Architektonische Kostbarkeiten im Kreis Düren. 2. Auflage. Mainz, Aachen 1989, ISBN 3-925714-27-8, S. 226–227.
Weblinks
Einzelnachweise
- ↑ U. Coenen: Architektonische Kostbarkeiten im Kreis Düren, S. 227.
- ↑ Denkmalbeschreibung der Burgruine, Zugriff am 21. April 2012.
- ↑ Aachener Zeitung: Wollersheim: Burg Gödersheim: Von einer Ruine zum Schmuckstück? 5. Januar 2017, abgerufen am 24. Juli 2021.
- ↑ wasserburgen.de ( des vom 4. Juli 2016 im Internet Archive) Info: Der Archivlink wurde automatisch eingesetzt und noch nicht geprüft. Bitte prüfe Original- und Archivlink gemäß Anleitung und entferne dann diesen Hinweis., Zugriff am 21. April 2012.
- ↑ a b c P. Clemen: Die Kunstdenkmäler des Kreises Düren, S. 357.
- ↑ Johann Franz Martin Aschenbroisch: Beiträge zur Geschichte des Herzogthums Jülich, Bände 1–2, Bochum 1867, S. 193
- ↑ U. Coenen: Architektonische Kostbarkeiten im Kreis Düren, S. 226.
- ↑ a b P. Clemen: Die Kunstdenkmäler des Kreises Düren, S. 356.
- ↑ Sabine Paprotta-Schröder: Burg Gödersheim: Burg erwacht aus dem Dornröschenschlaf. 23. Juni 2020, abgerufen am 24. Juli 2021.
Koordinaten: 50° 40′ 28,9″ N, 6° 32′ 48,3″ O