Markthalle IV
| Markthalle IV | |
|---|---|
![]() Vorderhaus an der Dorotheenstraße 29 (heute 84) um 1890, hinter der Durchfahrt ist der Eingang der Markthalle zu erkennen | |
| Daten | |
| Ort | Berlin, Dorotheenstraße 29 (heute 84) und Reichstagufer 12–14 |
| Architekt | Alfred Lempp |
| Bauherr | Reichspost |
| Baustil | spätklassizistische Fassade |
| Baujahr | 1886 Markthalle bis 1913 1913–1917 Erweiterungsbau 1923 |
| Koordinaten | 52° 31′ 8,5″ N, 13° 23′ 1″ O |
| Besonderheiten | |
Die 1886 eröffnete Markthalle IV an der Dorotheenstraße 29 (heute 84) und dem Reichstagufer 12–14 in der Berliner Dorotheenstadt entstand in der ersten Phase des kommunalen Bauprogramms für die Berliner Markthallen. Dieses von 1883 bis 1892 dauernde Programm sollte die ausreichende Versorgung der ständig wachsenden Bevölkerung Berlins mit günstigen Lebensmitteln sicherstellen und die Straßen und Plätze von den zunehmend als unhygienisch und als Verkehrshindernis empfundenen Wochenmärkten befreien. Die Markthalle IV schloss der Berliner Magistrat 1913 wegen Unrentabilität und verkaufte das Grundstück an die Reichspost, die Teile der ehemaligen Markthalle in den Neubau des Berliner Postscheckamtes integrierte. Über das Postscheckamt, noch verschiedentlich erweitert und umgebaut, lief ein bedeutender Teil des Postscheckverkehrs des Deutschen Reiches und später der DDR. 1996 endete die Nutzung durch die Post, und seit einer Gesamterneuerung Ende der 1990er Jahre dient der unter Denkmalschutz stehende Gebäudekomplex als Berliner Sitz des Presse- und Informationsamtes der Bundesregierung.
Überblick
Die heute verschwundene Markthalle IV lag im Parzelleninneren der Grundstücke Dorotheenstraße 84 (nach der bis 1911 gültigen Nummerierung Dorotheenstraße 29, dann bis nach 1945 Dorotheenstraße 23) und Reichstagufer 12–14 in der Dorotheenstadt. Das ehemalige Vorderhaus an der Dorotheenstraße 84 steht unter Denkmalschutz, und am Spreeufer hat sich mit dem zugemauerten Versorgungstunnel der ehemaligen Markthalle ein weiteres Baudenkmal erhalten, das die Markthalle IV vor den anderen Kleinmarkthallen Berlins auszeichnete. Der Markthallenkomplex gehörte zum Bauprogramm der insgesamt 14 Berliner Kleinmarkthallen, die zwischen 1883 und 1892 in drei Bauphasen entstanden. Stadtbaurat Hermann Blankenstein und sein Büro zeichneten wie für die anderen Hallen die Pläne für die von 1884 bis 1886 in der ersten Phase errichtete Markthalle.
Der Wandel der Dorotheenstadt und der Friedrich-Wilhelm-Stadt vom Wohn- zum Geschäftsviertel und die damit verbundene Abnahme der Wohnbevölkerung ließ den Betrieb der Markthalle nach der Jahrhundertwende zusehends unrentabel werden. So schloss der Berliner Magistrat die Markthalle 1913 und verkaufte das Grundstück gewinnbringend an die Reichspost für den Bau des Berliner Postscheckamtes.
Regierungsbaumeister Alfred Lempp integrierte das Vordergebäude an der Dorotheenstraße und den in solider Bauweise errichteten Keller in den von 1913 bis 1917 errichteten Neubau des Postscheckamtes, den die Reichspost anstelle der abgetragenen Markthalle errichten ließ. Ein ebenfalls nach Plänen von Alfred Lempp zwischen 1920 und 1923 ausgeführter Erweiterungsbau trug dem stetig wachsenden Postscheckverkehr Rechnung. Das Berliner Postscheckamt führte 1917 mit 34.400 von insgesamt 181.300 Konten rund ein Fünftel der Postscheckkonten im Deutschen Reich.[1] 1934 führte die Reichspost bereits über eine Million Konten, davon 169.000 im Postscheckamt Berlin – der Zentrale des deutschen Postscheckverkehrs.[1]
Nach den Kriegsbeschädigungen im Zweiten Weltkrieg vereinfacht wieder aufgebaut und purifiziert, nutzte die Deutsche Post der DDR das Postscheckamt weiter, zuletzt umgebaut zum Rechenzentrum. Im Westteil der Stadt übernahm der Neubau des Postscheckamt Berlin West diese Funktion ab 1971. Die nach der politischen Wende mit der Deutschen Post der DDR zusammengeführte Deutsche Bundespost verlagerte den Postscheckverkehr von dem Gebäude in der Dorotheenstraße auf andere Zentren und so endete 1996 nach beinahe achtzig Jahren die Nutzung durch die Post. Seit einer im Jahr 2000 abgeschlossenen Gesamterneuerung mit Rekonstruktion der nach dem Zweiten Weltkrieg abgeschlagenen Fassade des Vorderhauses und ergänzenden Neubauten dient der Komplex heute als Berliner Sitz des Presse- und Informationsamtes der Bundesregierung.
Bauphase und Eröffnung

Die für die Dorotheenstadt geplante Markthalle sollte neben der Dorotheenstadt auch die am gegenüberliegenden Ufer der Spree gelegene Friedrich-Wilhelm-Stadt versorgen. Allerdings mussten ihre Bewohner in den ersten Jahren nach der Eröffnung 1886 einen Umweg über die Weidendammer Brücke oder die Marschallbrücke nehmen, bis der 1890 eröffnete Schlütersteg eine direkte Fußgängerverbindung zur Markthalle ermöglichte.[2] Die Stadtverordnetenversammlung genehmigte in ihrer Sitzung vom 17. Januar 1884 den Erwerb der Grundstücke Dorotheenstraße 28–30 und Reichstagufer 12–14 für 1,25 Millionen Mark (kaufkraftbereinigt in heutiger Währung: rund 11,42 Millionen Euro). Nach der Zustimmung der Stadtverordneten am 21. Mai 1884 zu den vom Magistrat vorgelegten Plänen für die Kleinmarkthallen der ersten Phase des Bauprogramms, darunter der Markthalle IV, begannen die Bauarbeiten bereits am 1. Juli 1884.
Im Oktober 1884 gerieten die Arbeiten durch einen Konflikt zwischen dem Magistrat und dem königlichen Polizeipräsidium ins Stocken. Das Präsidium forderte für alle Markthallen die Einteilung der Holzbedachung durch vier Meter breite, unbrennbare Streifen in Segmente von maximal 1600 Quadratmeter Größe und die Verbreiterung der Durchfahrten durch die Vorgebäude und Portale auf neun Meter. Die am 20. Oktober 1884 eingestellten Arbeiten ruhten bis zum Entscheid des Ministers des Innern am 22. April 1885, der in der Mehrzahl der Streitpunkte zugunsten des Magistrats ausfiel.
Die Markthalle IV eröffnete am 3. Mai 1886 mit der Zentralmarkthalle I am Alexanderplatz und den anderen zwei Kleinmarkthallen der ersten Bauphase, der Markthalle II und der Markthalle III. Gleichzeitig schlossen die durch die Markthalle IV ersetzten Wochenmärkte auf dem Karlplatz und auf dem Platz vor dem Oranienburger Tor. Die Bau- und Einrichtungskosten für die Markthalle und die Vorderhäuser an der Dorotheenstraße und am Reichstagufer summierten sich auf 782.259 Mark.[3]
Bauparzelle

Das angekaufte Grundstück an der Dorotheenstraße bildete mit den später abgetrennten und weiterverkauften Parzellen ein Trapez mit einer 51,91 Meter langen Front an der Dorotheenstraße und seitlichen Grenzlinien von 111,86 und 135,52 Metern Länge. Die hintere Grundstücksbegrenzung im Norden bildete zum Zeitpunkt des Kaufs die Spree. Die Uferstraße Reichstagufer war jedoch bereits geplant und zum Zeitpunkt der Eröffnung der Markthalle zwischenzeitlich angelegt. Um die hohen Grundstückskosten von 1,25 Millionen Mark zu reduzieren, legte Hermann Blankenstein die Markthalle ins Innere des Grundstücks und beschränkte die Vorderhäuser an der Dorotheenstraße und am Reichstagufer auf ein Minimum. Die sich ergebenden Restgrundstücke versuchte der Magistrat weiterzuveräußern – an der Dorotheenstraße mit Erfolg. Die beiden Parzellen am Reichstagufer blieben jedoch bis 1917 unbebaut. Der Magistrat vermietete diese Grundstücke mit einfacher Infrastruktur – Klinkerpflasterung und je drei Kandelaber als Beleuchtung – „sehr günstig“[3] dem Verein der Obstzüchter aus Werder als Verkaufsplätze für Obst. Die unmittelbare Lage an der Spree ermöglichte den direkten Transport des Obstes von den Obstplantagen in Kähnen zur Markthalle. An den drei Ladebühnen an der Ufermauer konnten die Obsttienen bequem und schnell entladen und durch den die Uferstraße unterquerenden Versorgungstunnel direkt in den Keller der Markthalle gebracht werden. Die Markthalle IV übernahm mit dieser für die Kleinmarkthallen einmaligen Einrichtung einen Teil des Großhandels für Obst und entlastete damit die Zentralmarkthalle am Alexanderplatz. Die Anbindung an eine Wasserstraße findet sich erst wieder in den Projekten für eine neue Großmarkthalle aus der Vor- und Zwischenkriegszeit, die auf einem Gelände zwischen dem Bahnhof Beusselstraße und dem Berlin-Spandauer Schifffahrtskanal entstehen sollte.
Markthallenkomplex
Der Markthallenkomplex zeigte mit der Markthalle im Grundstücksinnern und den beiden Vorderhäusern mit ihren Durchfahrten die typischen Elemente der Hallen des kommunalen Bauprogramms, die nicht wie die Markthalle V oder die Markthalle X als freistehende Hallen errichtet wurden. Hermann Blankenstein plante die Vorderhäuser jeweils als gemischte Wohn- und Geschäftshäuser mit Ladengeschäften im Erdgeschoss und Wohnungen in den oberen Etagen.
Vordergebäude an der Dorotheenstraße


Die 18 Meter breite Front des erhaltenen Vordergebäudes an der Dorotheenstraße liegt genau in der Achse der dort einmündenden Schadowstraße und verlängerte diese gewissermaßen durch das Portal bis in die Markthalle hinein. Das 14,87 Meter tiefe Vorderhaus war als Mietshaus angelegt und umschloss ursprünglich mit zwei 9 Meter langen und 5,25 Meter tiefen Seitenflügeln einen 7,5 Meter breiten, unterkellerten Hof, in den die Durchfahrt von der Dorotheenstraße her mündete. In den sechs Läden im Vorderhaus und den Seitenflügeln etablierten sich eine Butterhandlung, zwei Delikatesswarenhandlungen und ein Kaffeegeschäft.[4] Zwei einfachere Wohnungen, darunter die Wohnung des Markthalleninspektors, befanden sich im durch die Höhe der Durchfahrt bedingten Halbgeschoss. Die herrschaftlichen Wohnungen im ersten und zweiten Geschoss nahmen die gesamte Etage ein.
Die spätklassizistische Fassade steht in der Tradition der Schinkelschule. Das Portal der Durchfahrt und die Fenstereinfassungen ließ Hermann Blankenstein in Sandstein ausführen und die Flächen mit gelbroten Klinkern verblenden. Als Hoheitszeichen verweist das Wappen Berlins in den Bogenzwickeln des Portals der Durchfahrt auf die Bauherrin. Die Füllungen zwischen den Fenstern im ersten und zweiten Geschoss sowie den Fries unter dem Hauptgesims bedecken sgraffitoartig in rot und hellgrau ausgeführte Rankenmuster und Ornamente in Renaissanceformen. Im ersten Stock illustrieren darin eingelassene Terrakotta-Medaillons das Marktangebot – Geflügel links, Gemüse und Obst in der Mitte und Fische und Krebse rechts. In der ursprünglichen Gestaltung verwies auch die Inschrift Markthalle IV über dem ehemals mit einem schmiedeeisernen Gittertor verschließbaren Portal auf den Zweck des Gebäudes als Markthalle.
Vor dem Umbau zum Postscheckamt 1917 überdeckten Kreuzrippen- und Tonnengewölbe, wie sie sich beim Vorderhaus der Markthalle III erhalten haben, die 4,5 Meter breite und 7,3 Meter hohe Durchfahrt. Die mit gelblichen Klinkern und Formsteinen ausgeführten Pfeiler, Gurte und Kreuzrippen gliederten Wand- und Gewölbeflächen. Die Hoffassade erhielt nur eine einfache Verblendung aus gelblichen Klinkern. Fahrrinnen aus Granit in der Durchfahrt und im angrenzenden Hof lenkten den Verkehr der Marktwagen. Bei Dunkelheit beleuchtete eine Bogenlampe von 9 Ampere die Durchfahrt.
Vordergebäude am Reichstagufer

Das beim Umbau zum Postscheckamt abgebrochene Vordergebäude am Reichstagufer war mit 12 Meter Breite beschränkt auf das Portal der 4,5 Meter breiten Durchfahrt, begleitet von zwei Durchgängen für Fußgänger – alle verschließbar durch schmiedeeiserne Gitter. Diese an einen römischen Triumphbogen erinnernde Gestaltung betonte die öffentliche Bedeutung des Gebäudes und hätte den schmalen Eingang zur Markthalle auch nach (der nie stattgefundenen) Bebauung der Nachbargrundstücke in der Straßenflucht hervorgehoben. Auf den Terrakottareliefs über den Fußgänger-Durchgängen zeigten Putti das Angebot der Markthallen und die Inschrift Markthalle IV über dem Mittelportal nannte nochmals die Funktion des Baus.
Fünf gereihte Rundbogenfenster im ersten Geschoss erhellten das Wartezimmer des fotografischen Ateliers, das Blankenstein in den oberen Geschossen des dreigeschossigen Vorderhauses vorgesehen hatte. Ihm erschien „bei der Lage der Gebäudefront gegen Norden die Anlage eines photographischen Ateliers besonders geeignet.“[3] Über der Fensterzone folgte das von Konsolen getragene vorkragende Gesims mit einem Rundbogenfries. Das Dach war gegen das Reichstagufer wegen des fotografischen Ateliers im Dachgeschoss vollständig verglast. Offenbar fand sich aber nur mit Schwierigkeiten ein Fotograf als Mieter für das Atelier, denn erst das Berliner Adressbuch von 1897 verzeichnet das Photographische Atelier R. Gentsch als Mieter.[5] Ob wegen der schlechten Vermietbarkeit oder aus anderen Gründen: Das Atelier im Vorderhaus der Markthalle IV blieb ein Einzelfall unter den Nutzungen der Markthallen-Vorderhäuser.
Wie an der Dorotheenstraße überwölbten Kreuzrippengewölbe die Durchfahrt und ein von einem Sterngewölbe überdeckter siebeneckiger Raum vermittelte zwischen der Achse Markthalle – immer noch in der Verlängerung der Schadowstraße – und der sie schräg schneidenden Achse der Ausfahrt nach dem Reichstagufer. Auch die übrige Gestaltung – Gliederung der Wände und Gewölbe mit Pfeilern, Gurten und Kreuzrippen aus Formsteinen, Verblendung der Wand- und Gewölbeflächen mit gelblichen Klinkern – orientierte sich am anderen Vorderhaus. Links und rechts der Durchfahrt lagen fünf kleinere Läden, in denen sich eine Obstwarenhandlung und andere, nicht direkt mit der Lebensmittelversorgung, aber mit der Haushaltsführung verbundene Geschäfte wie eine Küchengerätehandlung, eine Porzellanwarenhandlung und eine Seifenhandlung ansiedelten.[5] Im mittleren Gewölbe befand sich der Eingang zur Speisewirtschaft für die Zeiten, in denen die Markthalle geschlossen und damit der übliche Zugang von der Halle her nicht möglich war. Der Wagenverkehr rollte wiederum auf Granitfahrrinnen und die Einfahrt ließ sich durch eine 9-Ampere-Bogenlampe erhellen.
Markthalle

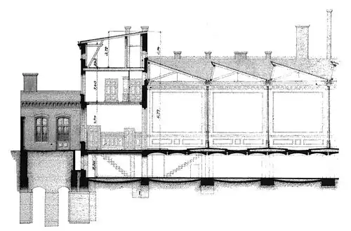
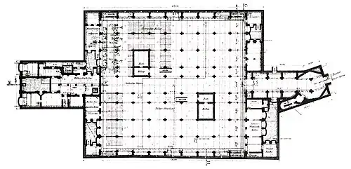
Der Grundriss der Markthalle bildete ein beinahe quadratisches Rechteck von 55,02 mal 54,34 Metern. Das Mittelschiff lag in der Achse der Schadowstraße und richtete die Halle nach Norden aus. Mit 13 Metern war es etwas breiter als bei den anderen Kleinmarkthallen der ersten Bauphase, aber, bedingt durch eine flachere Dachneigung, nur unwesentlich höher. Acht 6,77 Meter hohe gusseiserne Säulen im Abstand von 6 Metern trugen auf beiden Seiten das Mittelschiff. Auf ihnen wurden viereckige, 5,7 Meter hohe Eisenpfosten eingesetzt, zwischen denen die schmiedeeisernen Bogenbinder des Mittelschiffes eingespannt waren. Ihre Obergurte folgten der flachen Neigung des Satteldachs, während die Untergurte als Rundbögen ausgebildet waren. Ein großer Versteifungsring von 1,7 Metern und zwei kleinere von 85 Zentimetern Durchmesser in den Bogenzwickeln dienten der statischen Aussteifung dieser Trägerkonstruktion. Als Pfetten zwischen diesen Bogenbindern befestigte I-Profil-Eisen trugen die Holzsparren des Satteldaches. In Höhe der Bogenbinder trat das Mittelschiff nach außen als ungefähr drei Meter hohe Fensterwand in Erscheinung. Kippflügel, gelochte Bleche und Glasjalousien dienten der Lüftung. Je drei 6,2 Meter breite Seitenschiffe begleiteten links und rechts das Mittelschiff, das sie um fünf Meter überragte. 6,77 Meter hohe Gusseisensäulen sowie an der linken Längswand 2,29 Meter und an der rechten Längswand 1,84 Meter lange Zungenmauern an den Außenmauern trugen die für die Beleuchtung und Belüftung günstigen Sheddächer mit ihren nach Norden ausgerichteten Fensterflächen. Auf der Seite der Speisewirtschaft am rechten nördlichen Ende der Halle ersetzten drei 2 Meter breite und 4 Meter lange Oberlichter das Sheddach.

Die fensterlosen Längswände der Markthalle gestaltete Blankenstein wiederum mit dem bereits von den Durchfahrten bekannten Wechsel von hellgelben und hellroten Klinkern sowie glasierten Ziegeln. Über einem 31 Zentimeter hohen Granitsockel folgten im unteren Viertel der Wand hellrote Verblendersteine. Darüber schloss ein mit hellroten Formsteinen ausgeführtes Gesims die Sockelzone ab und leitete zu den oberen, hellgelb verblendeten Wandflächen über. Mit farbig glasierten Ziegeln abgesetzte Rechtecke gliederten diese Fläche im Rhythmus der Säulen. Ein Rosettenfries mit einem einfachen Gesims korrespondierte mit den Kapitellen der Gusseisensäulen und bildete den oberen Wandabschluss.
Die Querwände dominierten die durch eine Eisen-Glas-Konstruktion verschlossenen Rundbogenportale des Mittelschiffes. Das Portal zum Hof an der Dorotheenstraße war etwas größer und besaß neben dem Tor für die Wagen in der Mitte links und rechts separate Türen für die Fußgänger. Das schmalere Portal am Reichstagufer, nur mit einer gemeinsamen Öffnung für Wagen und Fußgänger, begleiteten zwei Blendbögen. Eine in die Eisen-Glas-Konstruktion eingelassene Uhr zeigte den Marktbesuchern an beiden Enden des Mittelschiffes die Zeit. Die obere Wandzone, abgetrennt durch ein Gesims ungefähr auf der Höhe der Seitenschiffe, belebten drei gekoppelte Rundbogenfenster in der Mittelachse und je ein kleineres Rundbogenfenster links und rechts davon. Die Wandflächen an den Enden der Seitenschiffe erhielten neben der bereits von den Längswänden bekannten Gliederung mit verschiedenfarbigen Ziegeln zwei gekoppelte Rundbogenöffnungen. Je nach Bedarf wurden sie als Fenster oder Türen ausgebildet und führten dann zu Nebenräumen der Markthalle wie beispielsweise den Aborten. Speziell ausgezeichnet war der Zugang zur Speisewirtschaft – diese Wandfläche erhielt als einzige ein Rundbogenportal anstelle der gekoppelten Rundbogenöffnungen und war so im Marktgewimmel für die Besucher leichter zu finden.
Das Mittelschiff verengte sich im Bereich der Durchfahrt auf neun Meter durch hineingezogene Marktstände und war mit sechs Zentimeter starken Eisenklinkern gepflastert. Die Gänge und Inseln mit den Marktständen bedeckten rutschfeste, gerippte Sinzinger Fliesen. Zwanzig elektrische Bogenlampen von je 6 Ampere in den Seitenhallen und zwei von 15 Ampere in der Mittelhalle beleuchteten die Markthalle in den frühen Morgenstunden.
Nutzung der Standflächen in den 1890er Jahren
Betraten die Besucher in den 1890er Jahren die Markthalle von der Dorotheenstraße aus, fanden sie zur Rechten sechs Stände für Seefische und zur Linken 24 Verkaufsstände für Flussfische und Krebse. Den Rest der Verkaufsfläche auf der rechten Seite nahmen hauptsächlich die 140 Stände für Butter, Käse, Delikatessen, Obst und Grünkram ein. Gegen das Speiserestaurant am Ende der Halle folgte eine Verkaufsfläche ohne feste Standeinrichtungen für Holz und an der nördlichen Hallenwand boten die Marktfrauen Vögel und Blumen an. In den Gängen auf der linken Hallenseite fanden die Marktbesucher an 110 Ständen ein reiches Angebot an Fleisch und Wild. Die 22 Verkaufsstände der letzten Standinsel verkauften Brot, Mehl und Vorkost (Vorspeisen) und an der Hallenwand standen wiederum Vögel und Blumen im Angebot.
Keller und Verbindungstunnel

Der gesamte Markthallenkomplex mit Ausnahme der Flächen unter der Durchfahrt an der Dorotheenstraße und der Lichthöfe war unterkellert. Die nahe Spree verursachte einen hohen Grundwasserstand, weshalb sich die Kellersohle nur 94 Zentimeter unter dem höchsten beobachteten Grundwasserspiegel absenken ließ. Die Kellergewölbe waren als Folge mit 2,10 Metern unter dem Mittelschiff und 2,26 Metern unter den Seitenschiffen eher niedrig. Zudem war eine aufwändige Grundwasserabdichtung erforderlich. Dazu wurden die Fundamente der Säulen und Pfeiler, welche die Kellerdecke stützen, durch 0,5 Meter starke Mauern aus gestampftem Zementbeton verbunden. Diese Mauern dienten als Widerlager für umgekehrte Tonnengewölbe, durch eine 2 Zentimeter dicke Zementschicht gegen das Grundwasser abgedichtet. Der gesamte Keller erhielt bis auf die Höhe des maximalen Grundwasserspiegels einen wasserdichten Zementputz.
Der Keller diente hauptsächlich als Warenlager für die Händler. Vier Treppen in den Ecken und zwei in der Mitte des Hauptschiffes der Markthallen sowie zwei Aufzüge verbanden das Lager mit der Halle. Eine weitere Treppe führte zum westlicheren Verkaufsplatz der Obsthändler am Reichstagufer. Zwei Eiskeller erlaubten die Lagerung von besonders verderblichen Lebensmitteln und für konfiszierte Waren standen der Marktpolizei eigene, vom Lager der Markthalle durch Mauern getrennte Räumlichkeiten, zur Verfügung. Eher etwas düster war wohl der bei dieser Markthalle in den Keller verlegte Aufenthaltsraum für die Markthallenarbeiter, der aber zumindest einen direkten Zugang zum Lichthof im Erdgeschoss besaß. Im Maschinenraum in der südwestlichen Ecke produzierte ein mit Gas betriebener Generator anfangs die Elektrizität für die Beleuchtung der Markthalle und der Ladengeschäfte. Nach Anschluss an das öffentliche Stromnetz wurde er abgebaut.
Um die auf dem Wasserweg angelieferten Waren direkt einlagern zu können, war der Keller durch einen Tunnel unter der Straße am Reichstagufer mit den Ladebühnen an der Spree verbunden. An der Ufermauer der Spree war der Tunnel durch eine 2,5 Meter breite, zweiflügelige Tür aus schmiedeeisernen Flachschienen abgeschlossen, die gleichzeitig die Lüftung des Markthallenkellers sicherstellte. Ein engmaschiges Drahtnetz verhinderte das Eindringen von Ratten. Da der Hochwasserstand höher lag als die Kellersohle, war hinter der Tür ein 13 Zentimeter breiter und 13 Zentimeter tiefer Falz angebracht, in dem sich bei Bedarf Dammbalken als Stütze einer wasserdichten Schüttung einbringen ließen. Der zugemauerte ehemalige Versorgungstunnel der Markthalle ist noch heute gut erkennbar in der Ufermauer des Reichstagufers und steht unter Denkmalschutz.
Nebengebäude
Zwischen der südlichen Außenmauer der Markthalle und der Grundstücksgrenze zu den ausgeschiedenen Bauplätzen an der Dorotheenstraße lagen sechs Meter breite Lichthöfe. Daran stießen als niedrige Markthallenanbauten die Aborte für Männer und Frauen sowie die Räumlichkeiten für die Marktpolizei. An der Nordmauer der Halle lagen gegen Westen mit dem Raum für den Halleninspektor, den Marktaufseher und den Fleischbeschauer weitere Verwaltungsräume, getrennt durch einen Lichthof. Die Nordmauer gegen Osten nahm der zweigeschossige Bau der Speisewirtschaft ein, die einen eigenen, vom Verkaufsplatz der Obstzüchter durch eine Mauer getrennten Wirtschaftshof mit anliegender Küche und Spülküche besaß. Das Obergeschoss der Speisewirtschaft nahm die Wohnung des Wirtes auf.
Unrentabilität und Verkauf an die Reichspost
Zum 1. Januar 1909 hatte das Deutsche Reich den Postscheckverkehr eingeführt. Für Berlin übernahm zunächst das 1906 erbaute Postamt NW 7 an der Dorotheenstraße 23–24, in der seit 1912 gültigen Nummerierung Dorotheenstraße 62–66, die Abwicklung des Postscheckverkehrs. Das neue Zahlungssystem war beliebt und die rasch anwachsende Zahl von Teilnehmern erforderte eine bauliche Erweiterung, die sich nicht mehr am bisherigen Standort verwirklichen ließ. Die Reichspost suchte daher dringend ein Grundstück in zentraler Lage und fand im Berliner Magistrat einen Verkäufer, der eine Lösung für die unrentabel gewordene Markthalle IV suchte. Seit dem Bau der Markthalle hatte sich die Dorotheenstadt wegen der zentralen Lage vom Wohn- zum Geschäftsviertel entwickelt. Moderne Geschäftsbauten verdrängten zunehmend die Wohnhäuser und der damit verbundene Verlust an Wohnbevölkerung ließ die Kunden der Markthalle und damit auch die Händler ausbleiben. Die Besetzung der Verkaufsstände sank nach der Jahrhundertwende von 53,1 Prozent im Jahr 1901 auf 32,7 Prozent im Jahr 1911.[6] So verkaufte der Magistrat die Markthalle IV gewinnbringend für 3.811.740 Mark an die Reichspost zum Neubau des Postscheckamtes.[7] Im Verkaufsvertrag verpflichtete sich die Stadtverwaltung, die Markthalle bis zum 31. März 1913 zu schließen. Die beiden Verkaufsplätze der Werderschen Obstzüchter sollten nicht vor dem 1. Juli 1915 geschlossen werden, verblieben dann aber wegen Verzögerungen der Bauarbeiten infolge des Beginns des Ersten Weltkriegs bis in den Dezember 1917.
Berliner Postscheckamt
Die Planungen für den Um- und Neubau führte der Regierungsbaumeister Alfred Lempp durch. Mit dem Vorgängerbau übernahm er dessen eingebaute Lage im Inneren der Parzelle, die zumindest an der Dorotheenstraße wenig Raum für eine repräsentative Fassade bot. Wohl auch deshalb blieben das Vorderhaus an der Dorotheenstraße und die Keller der Markthallen erhalten, während die eigentliche Markthalle und das Vorderhaus am Reichstagufer 1913 abgebrochen wurden. Der viergeschossige Neubau des Postscheckamtes, teilweise mit ausgebautem Dachgeschoss, entstand im Grundstücksinnern über den Grundmauern der abgetragenen Markthalle.
Neubau des Postscheckamtes


Mit seinen schmalen Seitenflügeln an den Grundstücksgrenzen und einem breiteren Trakt ungefähr in der Mitte des Grundstücks umschloss das neue Postscheckamt einen Hof, den Lempp größtenteils mit der repräsentativen Kassenhalle überbaute. Die Verkürzung der Seitenflügel des Vorderhauses schuf Platz für einen kleinen Vorplatz vor dem Neubau.
Die Durchfahrt, nun Durchgang zum Haupteingang des Postscheckamtes, erhielt eine heute noch erhaltene neue Wandgestaltung mit neuer Decke. Anstelle von Blankensteins wechselnden Kreuz- und Tonnengewölben trat ein schlichtes Tonnengewölbe, dessen Fläche sich kreuzende Rippen aus Stuck in Kassetten gliedern. Der Bildhauer Hermann Feuerhahn gestaltete unterstützt von der Firma Christoph Hasselwander die Werksteineinfassungen der Fenster der neuen Hinterfassade und weitere Bauplastik in neoklassizistischen Formen mit Jugendstilanklängen. Die Wandflächen erhielten einen schlichten Edelputz und über dem Schlussstein des Durchgangs thronte neu eine Merkurstatue. Zwei Kugelleuchten in Bronzewandhalterungen an der Hinterfassade sowie zwei Leuchter im Durchgang beleuchteten Durchfahrt und Hof.
Eine Streifenquaderung bis auf die Höhe des Kämpfers des Durchfahrtbogens setzte sich an den Querwänden des Hofes fort und fand ihre Entsprechung in der Fassade des Postscheckamtes. Zwei Treppen mit flachen Stufen leiteten die Kunden durch den Vorhof zum Haupteingang des Postscheckamtes. Die Restflächen des Hofes links und rechts waren mit Rasen bepflanzt. Zwei dorische Doppelsäulen fassten den als einstöckigen Vorbau vor die geschwungene Fassade des Mittelbaues tretenden Haupteingang. Dahinter gelangten die Besucher in die über drei Geschosse reichende Eingangshalle mit einer doppelläufigen Treppenanlage links und rechts. Die repräsentative Treppenanlage mit den Pfeilerarkaden und den kunstvoll geschmiedeten Brüstungen der Firma Eduard Puls,[8] die massiven Holztüren mit ihren reich profilierten Rahmen, die mit farbigen Gläsern eingesetzten Fenster, die ovale, mit Stuckaturen und Malereien verzierte Decke mit dem großen Leuchter zeugten vom Selbstbewusstsein des größten der 13 Postscheckämter des Deutschen Reiches. Sie stand nicht hinter der Pracht der Geschäftsräume der Banken zurück, die im Gegensatz zu den Postscheckämtern nur ausgewählte, kapitalkräftige Kunden bedienten. Das Herz des Gebäudes, die anschließende Kassenhalle, war ein quadratischer Raum vom 18 Metern Seitenlänge, den eine mit farbigen Gläsern eingelegte Glaskuppel mit einem großen Reichsadler zierte. Die Glaserarbeiten führte die Firma Moerike & Reich in Groß-Lichterfelde aus, die Kunstschmiedearbeiten erledigte wie im Treppenhaus die Firma Eduard Puls in Berlin-Tempelhof.[8] Schwere Eichenholzmöbel vermittelten den Kunden, die an 20 Zahlstellen und zwei Scheckannahmestellen am Ende der Schalterhalle bedient wurden, das Gefühl von Solidität und Vertrauen.
Im dahinterliegenden Raum des Mitteltraktes – nicht mehr für die Kunden zugänglich – befand sich die Geldannahme mit dem Tresorraum. Das Erdgeschoss im östlichen Seitenflügel nahm die Schriftwechselstelle ein, während im westlichen Trakt die Druckerei und die Drucksachenverwaltung untergebracht waren. Der Warenverkehr erfolgte über den kleinen Hof, der über eine Durchfahrt im Erdgeschoss des Mitteltraktes mit dem Reichstagufer verbunden war. In den oberen Geschossen reihten sich entlang der Gänge in den Seitentrakten die Büros für den Postdirektor, die Postinspektoren, den Personaldienst und verschiedene Räume für die Kanzlei, während die Scheckstelle als großer Saal die gesamte Fläche des Mittelbaues bedeckte. Im zweiten Obergeschoss arbeiteten die Angestellten der Kontostelle in großen Arbeitssälen. Die am Ende der Seitentrakte nach dem Mittelbau angesetzten Treppenhäuser markierten bereits die angedachte und später auch durchgeführte Erweiterung des Gebäudes zu einer Doppelhofanlage bis zum Reichstagufer.
Die Bauarbeiten für das Postscheckamt begannen am 17. Juli 1913, dreieinhalb Monate nach Schließung der Markthalle. Am 29. Januar 1917 öffnete das Postscheckamt Dorotheenstraße nach vierjähriger Bauzeit seine Tore für die Kundschaft.
Hausrohrpostanlage
Die seinerzeit modernste Technik unterstützte die Scheckverarbeitung.[9] Von den beiden Annahmestellen in der Kassenhalle gelangten die Schecks über einen Bandaufzug, eine Art vertikales Förderband, in die direkt darüber liegende Scheckstelle. Nach Eintrag in einem Merkbuch beförderte die Hausrohrpostanlage die Schecks innerhalb des Geschosses von der Kontrollstelle auf Verteilstellen, wo sie Büroboten zu den Arbeitsplätzen der Angestellten brachten. Nach Prüfung des Schecks gelangten diese über den gleichen Weg wieder zurück zur Kontrollstelle. Ein weiterer Bandaufzug beförderte sie nun ins zweite Obergeschoss zur Verbuchung durch die Kontostelle – auch hier übernahm die Rohrpost die Feinverteilung innerhalb des Stockwerks. In Stößen gebündelt gelangten die Schecks schließlich wieder in Fallschächten ins Erdgeschoss und über Rohrpost an die 20 Zahlstellen. Jede Zahlstelle verfügte über einen eigenen Rohrpostanschluss, aber während in den oberen Geschossen die Rohre der Rohrpost offen unter der Decke geführt wurden, verlegte die Reichspost die Rohre aus Rücksicht auf die architektonische Gestaltung der Halle an die Decke des darunterliegenden Kellergeschosses.
Erweiterungsbau am Reichstagufer

Die Bebauung des restlichen Grundstücks am Reichstagufer verzögerte sich durch den weitgehenden Baustopp während des Ersten Weltkriegs. In der Zeitschrift Berliner Architekturwelt veröffentlichte Lempp 1918 zusammen mit dem Bericht über den Neubau bereits einen Grundriss für den Erweiterungsbau, der erst später und verändert zur Ausführung kam. Die Bauarbeiten begannen Ende 1920 und kamen im Oktober 1923 zum Abschluss. Der Erweiterungsbau aus einem fünf-, im Mittelteil sechsgeschossigen Gebäudetrakt entlang der Spree verbindet sich mit seinen zwei Seitentrakten entlang der Grundstücksgrenzen mit dem Bau von 1917 und umschließt den mit einer Durchfahrt erschlossenen Hof. Auch bei dieser Erweiterung nutzte die Reichspost den Keller der ehemaligen Markthalle und erweiterte ihn unter die ehemaligen Verkaufsflächen der Obsthändler. Der Erweiterungsbau umfasste keine Räume für den Publikumsverkehr. Die Geschosse, auch die beiden ausgebauten Dachgeschosse, erhielten keine weiteren Unterteilungen durch Trennwände, sondern wurden als große Arbeitssäle eingerichtet.
Die Fassade des Neubaus von 1917 war mit 18 Metern recht schmal und versteckte sich im engen Innenhof hinter dem Vorderhaus der ehemaligen Markthalle an der Dorotheenstraße. Mit der 57 Meter langen Fassade am Reichstagufer konnte das Postscheckamt nun auch nach außen würdig in Erscheinung treten. Der Mittelteil mit sieben Fensterachsen enthält im Erdgeschoss in den mittleren drei Achsen die Durchfahrten zum Hof. Er tritt neben den beiden dreiachsigen Seitenfassaden leicht vor. Die Streifenquaderung verleiht dem Erdgeschoss die notwendige Schwere als „Sockel“ für die darüberliegenden Geschosse. Acht Säulen mit ionischen Kapitellen verklammern die vier Obergeschosse des Mittelteils und tragen das Hauptgesims. Darüber wechselt im fünften Obergeschoss des Mittelteils die rechteckige Form der Fenster zu Rundbogenfenstern.
Beim Bau der Erweiterung erhielt auch der Mittelflügel des Postscheckamtes ein fünftes Geschoss, und 1925 integrierte die Reichspost das ehemalige Hotel Prinz-Heinrich an der Dorotheenstraße 22, das sie bereits 1915/1916 zusammen mit dem Gebäude Dorotheenstraße 25 erworben hatte.
Zweiter Weltkrieg und Nachkriegszeit
Im Zweiten Weltkrieg beschädigten Bomben im Januar 1944 das Dach des ehemaligen Vordergebäudes an der Dorotheenstraße und zerstörten die Glaskuppel der Halle. Die Schäden am Postscheckamt waren aber nicht schwer, sodass der am Ende des Krieges völlig zusammengebrochene Postscheckverkehr bereits am 25. Juli 1945 wieder aufgenommen werden konnte. Durch die Währungsreform am 20. Juni 1948 mit der Einführung der Deutschen Mark in den westlichen Sektoren und der anschließenden Berlin-Blockade verlor das Postscheckamt seine Bedeutung für Gesamt-Berlin. Die Wochenschau Welt im Film der britischen und amerikanischen Besatzungsmächte berichtete am 20. August 1948 von der Eröffnung eines eigenen Postscheckamtes für West-Berlin.[10]
Anlässlich der 1951 in Ost-Berlin stattfindenden Weltfestspiele der Jugend und Studenten erhielt das Postscheckamt eine zeitgemäße Modernisierung des äußeren Erscheinungsbildes. Beim Vorderhaus an der Dorotheenstraße wurden die Terrakotten, Formsteine, Sandsteingliederungen und Sgraffito-Felder für eine einfache Kratzputzfassade abgeschlagen, einzig belebt durch den großen Schriftzug „POSTSCHECKAMT“ über dem Portal und die Ladenschilder der HO-Filiale, die ins Vorderhaus gezogen war. In der Schalterhalle verschwand der letzte Stuck, der nach den Zerstörungen des Krieges verblieben war.
Seit Anbeginn begleitete die Automatisierung den Postscheckverkehr als Voraussetzung zur Bewältigung der stetig wachsenden Aufträge. Ab Beginn der 1970er Jahre verdrängten elektronische Buchungsverfahren die bisherigen mechanischen und elektromechanischen Rechen- und Buchungsmaschinen. Die Deutsche Post der DDR ließ in der ehemaligen Schalterhalle ihr Rechenzentrum mit Anlagen zur elektronischen Datenverarbeitung installieren. Diese Umbauten waren mit dem Verlust letzter Überreste der historischen Schalterhalle von 1917 verbunden und führten zu schwerwiegenden Eingriffen in der Eingangshalle und im Treppenhaus.
Mit der deutschen Wiedervereinigung 1990 vereinigten sich auch die Deutsche Post der DDR und die Deutsche Bundespost. Das Rechenzentrum wurde nicht mehr benötigt und so endete die Nutzung des Gebäudes durch die Post nach beinahe 80 Jahren 1996.
Presse- und Informationsamt der Bundesregierung

Nach dem Umzug von Bonn nach Berlin sollte das Presse- und Informationsamt der Bundesregierung möglichst nahe der Regierungszentrale Platz finden. Ein Beschluss des Bundeskabinetts bestimmte dafür den Straßenblock zwischen Dorotheenstraße und Reichstagufer: insgesamt acht Parzellen mit Bebauung vom letzten Viertel des 19. Jahrhunderts bis zu Plattenbauten aus DDR-Zeiten, darunter das Vorderhaus der Markthalle und die Gebäude des Postscheckamtes. Die Entwurfsaufgabe des 1995 ausgeschriebenen Wettbewerbs forderte neben Büros für die rund 550 Mitarbeiter Infrastrukturen für Pressekonferenzen und andere Veranstaltungen sowie Räume für die Bibliothek und das Archiv mit acht Millionen Zeitungsausschnitten und 1,5 Millionen Fotografien.
Die Realisierung des Siegerprojektes des Architekturbüros KSP Engel und Zimmermann zerfiel in drei Bauabschnitte, die im Oktober 1997, Oktober 1998 und August 2000 vollendet wurden. Im dritten Bauabschnitt befreiten die Architekten die ehemalige Kassenhalle des Postscheckamtes von späteren Einbauten und ersetzten die im Zweiten Weltkrieg verlorene Glaskuppel durch eine moderne Stahl-Glas-Konstruktion. Der runde, repräsentative Saal, benannt nach dem Widerstandskämpfer Theodor Haubach, dient Pressegesprächen und weiteren besonderen Veranstaltungen des Presse- und Informationsamtes. Ein überraschend aufgefundener Katalog der Firma Ernst March mit Fotografien der Terrakottaplatten und Formsteine sowie historisches Bildmaterial erlaubte die Rekonstruktion der Fassade an der Dorotheenstraße in der ursprünglichen, von Blankenstein entworfenen Gestalt. Nur die Jahreszahlen im zweiten Obergeschoss wurden verändert – mit 1886 dem Jahr der Eröffnung der Markthalle, 1917 dem Jahr der Eröffnung des Postscheckamtes und 1999 dem Jahr der Generalsanierung nennen sie die prägenden Eckdaten in der Geschichte des Gebäudekomplexes.
Siehe auch
Literatur
- (Abbildungen). In: Berliner Architekturwelt. Nr. 11/12, Februar 1918, S. 257–276 (zlb.de – Abbildungen 368–389).
- Jochen Boberg (Hrsg.): Exerzierfeld der Moderne. Industriekultur in Berlin im 19. Jahrhundert (= Industriekultur deutscher Städte und Regionen. Berlin. Band 1). C. H. Beck, München 1984, ISBN 3-406-30201-7, S. 106–113 und 166–168.
- Thorsten Knoll: Berliner Markthallen (= Berlinische Reminiszenzen, 69). Haude und Spener, Berlin 1994, ISBN 3-7759-0392-5.
- August Lindemann: Die Markthallen Berlins. Ihre baulichen Anlagen und Betriebseinrichtungen im Auftrage des Magistrats. Springer, Berlin 1899, S. 41–43 sowie Tafeln 17 und 18. ub.tu-berlin.de
Weblinks
- Einträge in der Berliner Landesdenkmalliste: für das Gesamtensemble, für das Postscheckamt und für den Verbindungstunnel der ehemaligen Markthalle IV
- Bundesministerium für Verkehr, Bau und Stadtentwicklung ( vom 26. Dezember 2007 im Internet Archive)
- Bild des Inneren der Markthalle 1886. In: Architekturmuseum der TU Berlin.
- Innenansicht der Markthalle, Foto von Hermann Rückwardt. In: Architekturmuseum der TU Berlin.
- Bild des Vorderhauses Dorotheenstraße nach der Umnutzung zum Postscheckamt, um 1930/40
- Nachkriegsbild des Vorderhauses Dorotheenstraße aus den 1950er Jahren mit der vereinfachten Fassade
- Zur Rekonstruktion der Terrakotten. ( vom 11. November 2013 im Internet Archive; PDF; 918 kB) restaurierung-am-oberbaum.de
- Liste denkmalgeschützter Gebäude des Post- und Fernmeldewesens
Einzelnachweise
- ↑ a b André Franik: Das Postscheckamt Dorotheenstraße/Reichstagsufer wird eröffnet. In: Berlinische Monatsschrift (Luisenstädtischer Bildungsverein). Heft 1, 2000, ISSN 0944-5560, S. 49–52 (luise-berlin.de).
- ↑ Architektenverein zu Berlin und Vereinigung Berliner Architekten (Hrsg.): Berlin und seine Bauten. Band 1: Einleitendes – Ingenieurwesen. Wilhelm Ernst & Sohn, Berlin 1896, S. 151.
- ↑ a b c August Lindemann: Die Markthallen Berlins. 1899, S. 41–43 und Tafeln 17 und 18.
- ↑ Berliner Adressbuch. Unter Benutzung amtlicher Quellen. Scherl, Berlin 1887.
- ↑ a b Berliner Adressbuch. Unter Benutzung amtlicher Quellen. Scherl, Berlin 1898.
- ↑ Erich Rindt: Die Markthallen als Faktor des Berliner Wirtschaftslebens. Vergin, Berlin 1928, S. 31.
- ↑ Was in Gross-Berlin vorgeht. In: Berliner Architekturwelt. Nr. 2, Mai 1913, S. 84 (zlb.de – „Die Markthalle in der Dorotheenstraße wird einem Postneubau weichen“).
- ↑ a b (Abbildungen). In: Berliner Architekturwelt. Nr. 11/12, Februar 1918, S. 257–276 (zlb.de – Abbildungen 368–389).
- ↑ Archiv für Post- und Telegraphie. Band 45, 1918, ZDB-ID 502740-8, S. 134–145.
- ↑ Neues Postscheckamt und Ernährungsamt in den Westsektoren nach Verlegung aus dem sowjetischen Sektor. In: Welt im Film (WIF) 169, 20. August 1948.

