BCL Bay 13
| BCL Bay 13 | |
|---|---|
| Nummerierung: | 20 090 bis 20 093 |
| Anzahl: | 4 |
| Hersteller: | MAN |
| Baujahr(e): | 1913 |
| Ausmusterung: | bis 1960 |
| Bauart: | Lokalbahnwagen mit offenem Übergang |
| Gattung: | BCL |
| Spurweite: | 1435 mm (Normalspur) |
| Länge über Puffer: | 12.800 mm |
| Länge: | 9.776 mm |
| Höhe: | 3.976 mm |
| Breite: | 3.000 mm |
| Gesamtradstand: | 7.000 mm |
| Bremse: | Handspindelbremse / Westinghouse |
| Kupplungstyp: | Schraubenkupplung nach VDEV |
| Sitzplätze: | 16 / 35 |
| Stehplätze: | 20 |
| Klassen: | II / III |
| Besonderheiten: | Gasglühlichter |

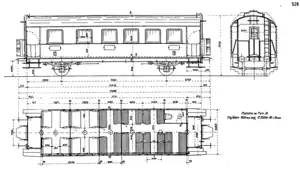
Bei den bayerischen BCL Bay 13 handelte es sich um Durchgangswagen für den Lokalbahnverkehr. Sie wurden im Wagenstandsverzeichnis der Königlich Bayerischen Staatseisenbahnen (K.Bay.Sts.B.) von 1913 unter der Blatt-Nr. 526 geführt.
Entwicklung
Mit dem größer werdenden Streckennetz an Lokalbahnen einher ging der Bedarf an passenden Wagen für den lokalen Personen-Nahverkehr. Zwischen 1909 und 1929 wurden Wagen beschafft, die schon Merkmale der normalen Personenwagen für Vollbahnen aufwiesen. Im Unterschied zu anderen Lokalbahnwagen waren diese für den Militärtransport nicht geeignet (fehlende Dampfheizung).
Beschaffung
Insgesamt wurden in dem Zeitraum zwischen 1909 und 1929 411 Wagen in den Gattungen BL, BCL, CL, DL und PPostL beschafft.[1] Diese hatten alle einen einheitlichen Grundriss, offene Endplattformen mit Dixi-Gittern an den Aufstiegen und nur durch Bügel gesicherte Personalübergänge. Statt den bis dato gebräuchlichen Verbundfenstern wurden große Scheiben eingebaut. Von den Wagen nach Blatt 526 wurden 1913 in einem Los insgesamt 4 Wagen bei MAN in Nürnberg für den Einsatz auf der elektrisch betriebenen Lokalbahn Garmisch-Partenkirchen nach Reutte/Tirol beschafft.
Verbleib
Die Wagen kamen alle noch zur Deutschen Bundesbahn, wo sie zwischen 1955 und 1958 auf der Strecke Traunstein-Ruhpolding eingesetzt wurden. Alle Wagen wurden im Oktober 1960 ausgemustert.
Konstruktive Merkmale
Untergestell
Der Rahmen der Wagen war komplett aus Profileisen aufgebaut und genietet. Die äußeren Längsträger hatten U-Form mit nach außen gerichteten Flanschen. Die Querträger waren ebenfalls aus U-Profilen und nicht gekröpft. Als Zugeinrichtung hatten die Wagen Schraubenkupplungen nach VDEV. Die Zugstange war durchgehend und mittig gefedert. Als Stoßeinrichtung besaßen die Wagen geschlitzte Korbpuffer mit einer Einbaulänge von 650 Millimetern, die Pufferteller hatten einen Durchmesser von 370 Millimetern.
Laufwerk
Die Wagen hatten genietete Fachwerkachshalter der Verbandsbauart. Gelagert waren die Achsen in Gleitachslagern. Die Tragfedern waren 1.800 mm lang und bestanden aus je 12 Blättern mit den Maßen 96 mm × 13 mm. Die Räder hatten Speichenradkörper der bayerischen Form 39. Wegen des langen Radstandes von 7.000 Millimetern kamen Vereinslenkachsen zum Einsatz.
Neben einer Handspindelbremse, welche sich auf einer der Plattformen am Wagenende befand, hatten die Wagen auch Druckluftbremsen des Systems Westinghouse.
Wagenkasten
Der Rahmen des Wagenkastens bestand aus hölzernen Ständerwerk. Dies war außen mit Blechen und innen mit Holz verkleidet. Die Stöße der Bleche wurden durch Deckleisten abgedeckt. Das Dach war flach gerundet und ging direkt in die Seitenwand über. Es war über die offenen Endplattformen hinausgezogen. Die Wagen besaßen Auftritte in der Bauart der Vollbahnwagen und nicht mehr die klappbaren Lokalbahnauftritte. Einzelne Wagen erhielten um 1930 Metallfensterrahmen.
Ausstattung
Der Wagentyp führte sowohl die 2. als auch die 3. Klasse. Sie hatten 16 gepolsterte Sitze in der 2. Klasse, insgesamt 35 Sitzplätze in der 3. Klasse und einen Abort. Klassentypisch bestanden die Sitze aus Holzlattenbänken. Für die beiden Endplattformen waren insgesamt 20 Stehplätze ausgewiesen. Die Beleuchtung erfolgte durch Gasglühleuchten. Die Versorgungsbehälter für das Gas waren in Wagenlängsrichtung unter das Untergestell gehängt. Die Beheizung erfolgte über elektrische Heizungen. Belüftet wurden die Wagen durch statische Dachlüfter sowie durch versenkbare Fenster.
Der Anstrich der Wagen erfolgte in Beige und Grün, den Farben der bayerischen elektrisch betriebenen Linien.
Wagennummern
| Herstelldaten | Wagennummern[2] je Epoche Gattungszeichen |
Fahrwerk | Ausstattung | Zusatzinfos | ||||||||||||||||||
|---|---|---|---|---|---|---|---|---|---|---|---|---|---|---|---|---|---|---|---|---|---|---|
| Bau- jahr |
Her- steller |
ab 1909 (1907) |
Rep. (1919) |
DR (ab 1923) |
DRG (ab 1930) |
DRG n. Umbau |
Ausge- mustert |
letzter Heimat-Bf.[3] |
Bremsen | Anz. Achs. |
Lenk- achs. |
Bl. | Hz. | Anz. Abort |
Anz. Sitze je Klasse | Signal- halter |
Bemerkung | |||||
| Blatt-Nr. 526 | BCL | BCL Bay 13 | BCL Bay 13 | (siehe Legende) |
(siehe Legende) |
1. | 2. | 3. | 4. | (siehe Legende) |
||||||||||||
| 1913 | MAN | 20 090 Mü | 9 111 Mü | 9 924 Mü | 10/1960 | Freilassing | Pl, Wsbr | 2 | V | Gg | E | 1 | 16 | 35 / 20 |
||||||||
| 20 091 Mü | 9 112 Mü | 9 925 Mü | 10/1960 | Murnau | ||||||||||||||||||
| 20 092 Mü | 9 113 Mü | 9 926 Mü | 10/1960 | Garmisch | ||||||||||||||||||
| 20 093 Mü | 9 114 Mü | 9 927 Mü | 10/1960 | Garmisch | ||||||||||||||||||
| Legende Bremsen | Handbremstypen | BrH = Bremserhaus, Pl = Handbremse auf Plattform, Fsbr = Freisitzbremse | ||||||||||||||||||||
| Druckluftbremsen | Hnbr = Henri-Bremse, Hsbr = Henri-Schnellbremse, Kp. = Knorr-Bremse, Sbr. = Schleifer-Bremse, Ssbr = Schleifer-Schnellbremse, Wbr = Westinghouse-Bremse, Wsbr = Westinghouse-Schnellbremse | |||||||||||||||||||||
| Saugluftbremsen | Hbr = Hardy-Bremse, Ahbr = Autom. Hardy-Vacuumbremse | |||||||||||||||||||||
| Legende BL | Arten der Beleuchtung | P = Petroleumleuchte, G = Gasleuchte, Gg = Gas-Glühleuchte, El = elektrische Beleuchtung | ||||||||||||||||||||
| Legende HZ | Arten der Beheizung | O = Ofenheizung, D = Dampfheizung, E = elektrische Heizung, Pr. = Presskohleheizung, L = nur Dampfleitung | ||||||||||||||||||||
Literatur
- Wagner, Alto: Bayerische Reisezugwagen. 1. Auflage. KIRUBA Verlag, 2015, ISBN 978-3-945631-00-3.
- Konrad, Emil: Die Reisezugwagen der deutschen Länderbahnen. Band 2. 1. Auflage. Franckh, Stuttgart 1984, ISBN 3-440-05327-X.
- Wagenpark-Verzeichnis der Kgl. Bayer. Staatseisenbahnen. Aufgestellt nach dem Stande vom 31. März 1913. 1913.