Bürgerwasserkunst




Die Bürgerwasserkunst oder Kaufleutewasserkunst war ein Lübecker Wasserversorgungssystem der frühen Neuzeit.
Hintergrund
Mit der Brauerwasserkunst verfügte Lübeck bereits seit dem ausgehenden 13. Jahrhundert über eine Wasserversorgung, die jedoch nur den südöstlichen Teil des Stadtgebiets abdeckte. Dieser Zustand missfiel zunehmend den einflussreichen Kaufleuten, deren Häuser sich vorwiegend im Zentrum der Stadt, und dort bevorzugt auf dem Rücken des Stadthügels in der Umgebung von Rathaus und Marienkirche befanden.
Da die Brauerwasserkunst technisch nicht in der Lage war, diese hochgelegenen Grundstücke zu versorgen, schlossen sich 284 der betroffenen Lübecker Bürger zusammen und traten in Verhandlungen mit dem Rat, um die Erlaubnis zur Errichtung einer weiteren Wasserkunst zu erlangen. Im Jahre 1531 kam es zur Einigung mit dem Rat, der den Bau einer neuen Anlage auf dem Hüxterdamm, unmittelbar neben der bestehenden Brauerwasserkunst, gestattete. Die Bauarbeiten wurden rasch in Angriff genommen, und schon 1533 konnte die neue Bürgerwasserkunst den Betrieb aufnehmen.
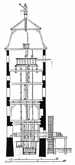
Die Konstruktion
Kernstück der Bürgerwasserkunst war ein etwa 20 Meter hoher Wasserturm in Ziegelbauweise, der zugleich das erste Lübecker Bauwerk im Stile der Renaissance darstellte. In seinem Inneren befand sich in 16 Metern Höhe der Hochbehälter, der 14,75 Kubikmeter Wasser fassen konnte und hoch genug lag, um mit dem resultierenden Wasserdruck auch die höchstgelegenen Grundstücke des Stadthügels zu versorgen.
Im Untergeschoss des Turms befanden sich vier Pumpen, welche von einem unterschlächtigen Wasserrad angetrieben wurde. Das Wasser der Wakenitz gelangte durch ein weit in den Fluss hinausgelegtes Rohr zum Pumpwerk und wurde dann durch zwei Steigleitungen in den Hochbehälter befördert. Von dort gelangte es in die Hauptleitung, die das Versorgungsnetz speiste.
Im 18. Jahrhundert erhielt die Bürgerwasserkunst ein Mansarddach, auf dessen Spitze sich eine Neptunsfigur mit Dreizack in der Hand und Delphin zu den Füßen befand. Aus Dreizack und Delphin sprudelte Wasser, wenn Überdruck in den Leitungen herrschte oder eine separate kleine Wasserkunst in Betrieb gesetzt wurde.
Giovanni Botero erwähnte bereits 1596 das Lübecker System in seiner Weltbeschreibung[1] und der Autor Adam Anderson berichtete, dass die Wasserwerke der Stadt London nach diesem Lübecker Muster angelegt wurden.[2]
Das Leitungsnetz
Die Hauptleitung des zur Bürgerwasserkunst gehörenden Netzes verlief durch die Johannisstraße und die Mengstraße; Abzweigungen führten unter anderem in die Königstraße und die Breite Straße. Das Leitungsnetz deckte das gesamte Stadtzentrum ab, reichte nach Westen bis hinunter an die Trave und im Norden bis zum Koberg. Die Wasserleitungen waren zumeist ausgebohrte Baumstämme, es wurden jedoch in der Hundestraße auch hölzerne Rinnen mit aufgenagelten Deckeln gefunden.
Die Bürgerwasserkunst diente fast ausschließlich der Speisung von Hausanschlüssen mit Steigsäulen und Soden. Ausnahmen waren ein öffentlicher Brunnensod in der Breiten Straße und, als Besonderheit der Bürgerwasserkunst, insgesamt vier als Hydranten dienende Säulen in der Königstraße, der Breiten Straße und der Mengstraße, an die bei Bränden lederne Löschschläuche angeschlossen werden konnten.
Von den Abnehmern des Wassers wurde eine einheitliche Gebühr, das sogenannte Kunstgeld, erhoben. Nur drei gewerbliche Kunden, zwei Brauer und ein Bäcker, entrichteten wegen ihres hohen Verbrauchs den doppelten Satz.
Zum Zeitpunkt ihrer Auflösung im Jahr 1867 waren insgesamt 359 Häuser an das 5940 Meter lange Leitungsnetz der Bürgerwasserkunst angeschlossen.
Das Ende der Bürgerwasserkunst
Wie die benachbarte Brauerwasserkunst versah die Bürgerwasserkunst ohne Unterbrechung ihren Dienst bis weit in das 19. Jahrhundert. Allerdings gab die Wasserversorgung immer häufiger Anlass zur Klage und zu gewichtigen Bedenken.
Zum einen reichte die Menge des durch die Pumpen geförderten Wassers nicht mehr aus, den Bedarf zu decken. Die wachsende Wasserknappheit lag auch an den hölzernen Leitungen, die oftmals faulig und undicht geworden waren. Wegen der nachlassenden Menge wurde die Versorgung mit Wasser rationiert. Die verschiedenen Bereiche des Netzes wurden nur noch zu bestimmten Zeiten mit Wasser versorgt. Der schlechte Zustand der Leitungen trug auch dazu bei, dass Straßen verschlammten und Keller überschwemmten, da die Leitungen brachen. Bedenken rief außerdem hervor, dass bei sinkender Wassermenge auch der Wasserdruck sank und bei Bränden mehr als ein Viertel der zum Einsatz gelangenden Feuerspritzen nicht mehr vorsorgt wurden.
Zum anderen wurde die Wasserqualität besorgniserregend. Oberhalb des Hüxterdamms wurden Unrat und Abfälle in die Wakenitz gekippt, aus mehreren Straßen führten Siele Abwässer in den Fluss. Das ungefiltert in die Leitungen gepumpte Wasser hatte einen unangenehmen Fäulnisgeruch, zu dem auch die Schlammablagerungen auf dem Grund der Wakenitz beitrugen. In der ersten Hälfte des 19. Jahrhunderts wurde Lübeck von mehreren Choleraepidemien heimgesucht, die insgesamt 2500 Todesopfer forderten. Untersuchungen ergaben den Zusammenhang zwischen der Ausbreitung der Krankheit und verschmutztem Trinkwasser, so dass Wege zu einer Verbesserung der Lübecker Wasserversorgung gesucht wurden.
1861 vorgelegte Pläne sahen vor, am Standort der Wasserkünste auf dem Hüxterdamm eine neue Wasserkunst zu errichten. Dieses Vorhaben wurde jedoch nicht weiter verfolgt. Der Senat gab Plänen für eine mit Dampfkraft betriebene Stadtwasserkunst den Vorzug, bei denen das Wasser der Wakenitz nicht mehr in unmittelbarer Stadtnähe, sondern abseits der Verunreinigungen in größerer Entfernung zur Altstadt entnommen wurde. Dieses Projekt wurde 1865 von Senat und Bürgerschaft angenommen und in den folgenden zwei Jahren umgesetzt.
Mit Inbetriebnahme der neuen Wasserkunst im Jahre 1867 wurde die Bürgerwasserkunst ebenso wie die Brauerwasserkunst überflüssig. 1874 wurden beide Wassertürme abgebrochen und sämtliche Anlagen beseitigt. Es haben sich keine Überreste erhalten, wenn man von hölzernen Rohrleitungen absieht, die bis heute bei Straßenarbeiten in der Lübecker Altstadt gefunden werden und Aufschluss über den genauen Verlauf des Versorgungsnetzes geben.
Literatur
- Mieszyslaw Grabowski, Doris Mührenberg: „In Lübeck fließt Wasser in Röhren ... seit 700 Jahren!“ Eine kulturgeschichtliche Studie. Hansestadt Lübeck, Lübeck 1994 (Ausstellungen zur Archäologie in Lübeck 1, ZDB-ID 2167832-7), (Ausstellungskatalog, Lübeck, Museum Burgkloster, 16. Dezember 1994 – 12. Februar 1995).
- Rainer Andresen: Das alte Stadtbild – Geschichte, Kirchen, Befestigungen. 2 Bände. Verlag Neue Rundschau, Lübeck 1980–1984.