Bäriswiler Keramik
Die Bäriswiler Keramik wurde in Bäriswil im Kanton Bern in der Schweiz hergestellt. Neben Langnau im Emmental mit der Langnauer Keramik und der Region Heimberg BE bzw. Steffisburg war Bäriswil einer der bedeutenderen Standorte der Keramikproduktion im Kanton Bern im 18. und 19. Jahrhundert. Im selben Zeitraum wurde Keramik auch in Albligen und Zweisimmen, Ortsteil Blankenburg hergestellt.
Bäriswiler Hafner
Die Keramikproduktion lag in den Händen verschiedener Hafnerfamilien. Besonders hervorzuheben ist die Hafnerdynastie Kräuchi. Ihre drei Familienzweige stellten sowohl den ersten Hafner (gesichert ab 1758 in Bäriswil) als auch den letzten Hafner (in den 1870er Jahren). Erst nach ca. 1810 stiegen auch Mitglieder der Familie Witschi in die Keramikproduktion ein, die sie in den 1860er Jahren zu Gunsten der Herstellung von «Röhren» aufgaben. Erst ganz am Ende der Bäriswiler Hafnereigeschichte waren zwei Mitglieder der Familie Kläy ebenfalls in der Keramikproduktion tätig.
Hafnergrundstücke
Für einzelne der Hafner liessen sich die Hafnergrundstücke nachweisen. Hervorzuheben sind die Liegenschaften Hubelweg 24, Hubelweg 10/12 (Röhrenhütte), Hausmattweg 9 und 15, Giebelweg 4 und Dorfstrasse 11. Es muss jedoch mit weiteren ehemaligen Hafnergrundstücken "Am Giebelrain" gerechnet werden, da nicht für alle Hafner die jeweilige Lage der Werkstatt nachgewiesen werden konnte. Umfangreicher untersucht ist bislang nur die "Röhrehütte" aus dem Besitz der Familie Witschi. Als "Baudenkmal von nationaler Bedeutung" ist sie zugleich der einzige oberirdisch erhaltene Zeuge dieses Abschnittes der Bäriswiler Ortsgeschichte.
Stilistische Entwicklung
In Museums- und Privatsammlungen der Schweiz konnten im Jahr 2010 insgesamt 333 Keramiken gefunden werden, die aufgrund typologischer und stilistischer Merkmale der Bäriswiler Produktion zugeschrieben werden können. Bäriswiler Keramik unterscheidet sich eindeutig von der typischen Langnauer Keramik bzw. der Heimberger Keramik. Durch naturwissenschaftliche Analysen würden sich diese Zuordnungen in Zukunft auch zweifelsfrei absichern lassen.
-
Bäriswiler Keramik, ca. 1758–1780 -
Bäriswiler Keramik, ca. 1780–1800 -
Bäriswiler Keramik, ca. 1800–1821
Die stilistische Analyse zeigt die starke Bindung des frühen Bäriswiler Geschirrs (ca. 1758–1780) an die barocken, regionalen Keramiktraditionen der ersten Hälfte des 18. Jahrhunderts. Hervorzuheben sind hier vor allem die blau-weiss dekorierten Geschirre mit Unterglasur-Pinseldekor, aber auch Malhorn-, Springfeder- und Borstenzugdekore. Diese frühe, fast noch barocke Produktion bleiglasierter Irdenware mit Unterglasur-Pinseldekor auf einer weissen Grundengobe (frühes Bäriswil), dürfte ausschliesslich dem ersten Hafner Jakob Kräuchi zuzuschreiben sein, der nach den Quellen auch Kachelöfen setzte.
Ab ca. 1779–1781 lässt sich ein stilistischer Umbruch erkennen. Diese Veränderungen, die u. a. die Aufnahme von Rokoko-Elementen in den Dekor beinhalten, standen im Zusammenhang mit dem sukzessiven Wegzug des ersten Hafners und seiner beiden Söhne nach Biel-Mett (spätestens 1785) und ab 1780/1785 der Übernahme der Werkstatt durch die Schulmeister/Hafner-Dynastie Kräuchi. Die Aufgabe der Werkstatt in Bäriswil hat ihren Grund wahrscheinlich in missglückten Grundstücksspekulationen in der Familie des Jakob Kräuchi und daraus resultierenden wirtschaftlichen Schwierigkeiten.
Ab 1779/1781 bis um 1800 folgte in Bäriswil eine zweite, in der Dekoration einem ländlichen Rokoko verpflichtete Produktionsperiode (mittleres Bäriswil) mit rasch aufeinander folgenden Entwicklungsschritten, die vor allem aufgrund der zahlreichen Geschirrbeschriftungen und Datierungen gut gegliedert werden kann. Die feinlinigen, mit der Gänsefeder geschriebenen Frakturbuchstaben in manganvioletter bis fast schwarzer Farbe sind eines der wichtigen Merkmale der Bäriswiler Keramik. Ihre kalligraphische Qualität steht mit dem ausgeübten Erst- oder Zweitberuf – Schulmeister – eines Teils der Familienmitglieder Kräuchi in unmittelbarem Zusammenhang. Besonders hervorzuheben ist, dass Bäriswiler Geschirre, die aus Unterteil und Deckel bestehen, Strich-, Zahlen- und Buchstabenmarken tragen, die die Zusammengehörigkeit der beiden Teile dokumentieren. Solche Blindmarken finden sich bei keiner der anderen bernischen Produktionsregionen (Langnau, Heimberg, Blankenburg).
Zwischen ca. 1800 und 1821 folgte eine letzte Phase der Produktion (spätes Bäriswil), die durch eine zunehmende Erstarrung der Dekore der Keramik mit Unterglasur-Pinseldekor geprägt ist. Nur wenige Zentralmotive, vor allem Tiere, wurden neu in den Motivschatz aufgenommen, die Rocaillen- und Blumenmuster nicht mehr weiterentwickelt. Mit dem Jahr 1821 enden die Geschirrbeschriftungen auf der "klassischen" Bäriswiler Keramik mit weisser Grundengobe. Grund hierfür mag u. a. der zweite Konkurs des Hafners/Schulmeisters Ludwig Kräuchi in den Jahren 1819/1821 gewesen sein.
Bariswiler Fayence

Zwischen etwa 1785 und ca. 1800/1803 beinhaltete die Bäriswiler Produktion immer auch einen kleinen Prozentsatz echter Fayence mit einer Blei-Zinnglasur und Inglasurmalerei. Dabei handelt es sich offenbar nur um Zuckerdosen, Teekannen, kleine Terrinen und eine Spardose, die so glasiert, aber dann mit den typischen Bäriswiler Motiven bemalt wurden. Dieses kleine Gefässformenspektrum dokumentiert augenfällig, wie stark unsere Kenntnis von den Erhaltungschancen für Geschirr im Alltag und der musealen Sammlungstätigkeit im späten 19. Jahrhundert und ihren Präferenzen (bemalte Tintengeschirre, Teller und Schüsseln) abhängt. Wahrscheinlich wurden neben den Teekannen zum Zeitpunkt ihrer Produktion auch Kaffeekannen, Koppchen, Tassen und Untertassen hergestellt.
Bäriswiler Alltagsgeschirr

Aufgrund anhaftender Glasurreste an den Bäriswil zugeschriebenen Keramiken kann zudem nachgewiesen werden, dass die "klassische" Bäriswiler Keramik nur ein Produktionssegment dargestellt hat. Daneben wurden vor allem malhornverzierte Geschirre mit roter Grundengobe, aber auch Keramik mit grüner Glasur, schwarzer Manganglasur, mit gelber Glasur und braunem Spritzdekor und mit Farbkörpern in der Grundengobe gefertigt. Hierbei handelt es sich um zeittypisches Geschirr, wie es auch die zahlreichen anderen Hafnerbetriebe der weiteren Region fertigten. Sofern keine eindeutigen Dekoreigenheiten oder Bodenmarken vorliegen, kann daher dieses "Bäriswiler Alltagsgeschirr" im archäologisch untersuchten Verbrauchermilieu und in den Museumssammlungen nicht von dem der übrigen Produktionszentren oder Hafnerbetriebe des Kantons Bern getrennt werden. Dies ist auch einer der Gründe, warum ohne Bodenfunde an Schrüh- oder Fehlbränden unklar ist, welche Produkte die verschiedenen Hafner Kräuchi und Kläy zwischen 1821 und ca. 1870 herstellten.
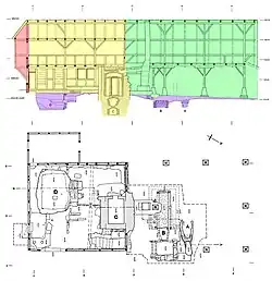
Die Bäriswiler «Röhrehütte» - Eine Hafnerwerkstatt der ersten Hälfte des 19. Jahrhunderts der Familie Witschi


Das Gebäude der Röhrenhütte oder umgangssprachlich «Röhrehütte», stand nach den archivalischen Informationen durchgängig in den Händen der Hafner der Familie Witschi. Es wurde aus älteren Bauhölzern nach 1818 und vor 1854 errichtet. Vom ältesten Gebäude hat sich nur die strassenseitige Fassade erhalten (rosa), da am 1. April 1890 ein Brand die Werkstatt weitgehend zerstörte. Der Wiederaufbau erfolgte auf demselben Grundriss 1893/1894 (gelb). 1903/1904 wurde der rückwärtige Trockenschuppen angebaut (grün). Archäologische Ausgrabungen (violett) konnten in diesem Bereich zwei Ofenreste aufdecken, von denen nur Ofen A zur Keramikherstellung genutzt worden sein dürfte, doch repräsentiert er mit seinen beiden Zügen und der ungewöhnlich schmalen Feuerungsgrube eine Ofenvariante, die bislang nicht hinreichend in die technologische Entwicklungslinie der Töpferöfen eingeordnet werden kann. Zur Hafnerei in der Röhrehütte gehörte auch die Grube D, die wohl als Lagerraum für den verbrauchsfertig aufbereiteten Töpferton anzusprechen ist. Ofen A wurde zu Beginn der Röhrenfabrikation um 1860/1865 durch Ofen B ersetzt, dem schliesslich der jüngste Ofen C folgte.
Die Ausgrabungen haben ein aussagekräftiges Spektrum an Schrüh- und Fehlbränden der ersten Hälfte des 19. Jahrhunderts erbracht. Es dokumentiert die Werkstattgebundenheit bestimmter typologischer Elemente, denn das vorliegende Formenspektrum deckt sich nicht mit den Keramiktypen des "klassischen Bäriswil". Es versuchten sich auch die Hafner der Familie Witschi an einer Fayenceproduktion, die sich farblich an der der überlegenen Manufakturen Matzendorf SO und Kilchberg-Schooren orientierte. Daneben produzierten die Witschis aber vor allem manganglasiertes Alltagsgeschirr und Keramik mit weisser und roter Grundengobe.
Die Intensivierungs- und Kultivierungsmassnahmen im landwirtschaftlichen Bereich ab der Mitte des 19. Jahrhunderts machten die Herstellung von Drainage- und Wasserrohren zu einem wirtschaftlich vielversprechenden Geschäft. Die Umstellung auf diesen Produktionszweig vollzogen die Hafner der Familie Witschi in den 1860er Jahren, da die Geschirrhafnerei ansonsten das Überleben kaum noch zu sichern vermochte. Deshalb wanderten 1854, 1855 und 1857 drei Bäriswiler Hafner und ihre Familien nach Amerika aus.
Literatur
- Andreas Heege, Andreas Kistler, Poteries décorées de Suisse alémanique, 17e-19e siècles - Collections du Musée Ariana, Genève - Keramik der Deutschschweiz, 17.-19. Jahrhundert - Die Sammlung des Musée Ariana, Genf. Mailand 2017.
- Robert L. Wyss: Berner Bauernkeramik (Berner Heimatbücher 100–103), Bern 1966, 44–46.
- Adriano Boschetti-Maradi: Gefässkeramik und Hafnerei in der Frühen Neuzeit im Kanton Bern (Schriften des Bernischen Historischen Museums 8), Bern 2006, 212–214.
- Andreas Heege/Andreas Kistler/Walter Thut: Keramik aus Bäriswil. Zur Geschichte einer bedeutenden Landhafnerei im Kanton Bern und ihrer handwerklichen Geschirrproduktion (Schriften des Bernischen Historischen Museums, Band 10), Bern 2011.