Apollotempel (Palatin)

Terrassengelände mit Fragmenten vom Apollotempel auf dem Palatin, Rom
Lage des Tempels auf dem Palatin, Rom
Plan der Umgebung auf dem Palatin
Bauglieder des Tempels

Der Apollotempel stand auf dem Palatin in Rom. Der Tempel wurde 36 v. Chr. durch Octavian, den späteren Kaiser Augustus, gelobt[1] und 28 v. Chr. geweiht.[2]

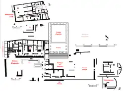
Der auf einer Terrasse errichtete Tempel befand sich mittig in den Besitzungen des Augustus auf dem Palatin, zwischen Wohnhaus, Bibliotheken und dem Hof mit den Geschäftsräumen. Die Terrasse erhob sich hierbei bis zum Obergeschoss des Wohnhauses, war also von beträchtlicher Höhe. Die area Apollinis, der zum Tempel gehörige heilige Bezirk, umfasste eine Fläche von etwa 30 × 70 Meter, in der das Gelände um neun Meter am Abhang des Palatin abfiel. Die von einer Quadermauer an Front und Seiten gefasste Terrasse war mit einer Fassade auf Sicht zum Circus Maximus hin gestaltet. Der Tempel selbst befand sich auf der Nordseite der Terrasse und erhob sich über diese um weitere 10 Fuß, knapp 3 Meter.

Errichtet wurde er an einer Stelle, die durch einen Blitzeinschlag auf dem Besitz des Augustus durch den Gott selbst angezeigt worden sein soll.[3] Sein Fundament bestand aus verschiedenen Komplexen und Materialien: Dort, wo nur Böden und mögliche Innenordnungen zu tragen waren, wurde es aus opus caementicium gebildet, während tragende Fundamentbereiche aus Quadermauerwerk errichtet wurden. Letztere wurden im Bereich der Frontsäulenstellung aus Einzelfundamenten gebildet. Aufgrund von Fragmenten, die zu einer Dreiviertelsäule und zu Halbsäulen gehören, ist der Tempel als sechssäuliger Pseudoperipteros mit 6 × 3 Säulen tiefe Vorhalle zu rekonstruieren. Sieben Halbsäulen gliederten die äußeren Langseiten der Cella. Den Kapitellfragmenten zufolge war er korinthischer Ordnung. Reste von Säulenbasen oder dem Gebälk sind nicht erhalten. Die Säulen selbst hatten 24 Kanneluren und einen unteren Durchmesser von 1,45 Metern. Die Säulenhöhe lässt sich zu etwa 14,50 Meter rekonstruieren. Das abschließende Geison lag auf einem vermittelnden Zahnschnitt. Das Dach war mit Marmorziegeln gedeckt. Demnach war das Äußere des Tempels, wie es Properz[4] bestätigt, ganz aus Marmor errichtet.

Der literarischen Überlieferung zufolge zierte das Tympanon eine Figurengruppe, die von den archaischen Bildhauern Bupalus und Athenis aus Chios geschaffen worden war.[5] Den Giebel krönte eine Statue des Sol auf seinem Sonnenwagen.[6] Elfenbeinerne Platten, die den Sturz der Gallier vom Parnass und die um ihre Kinder trauernde Niobe zeigten, zierten die Türflügel.[7] Erhaltene Fragmente der Türlaibung zeigen antithetische Greife und einen Dreifuß.

Die Innenraumgestaltung der etwa 19 × 22 Meter großen Cella ist nicht erhalten. Lediglich Friesfragmente mit der Darstellung eines Dreifußes und Blöcke aus rotem Assuan-Granit könnten mit der Cellagestaltung in Verbindung gebracht werden. Da das Caementicium entlang der Langseiten 2 Meter breite Abtiefungen aufweist, ist hier die Fundamentlage einer Innenordnung zu vermuten, deren Zeitstellung unbekannt ist und auch von einer späteren Restaurierung stammen könnte. Eine Statuengruppe der apollinischen Trias diente als Kultstatuen: eine Latona des Kephisodot[8], ein Apollo des Skopas[9] und eine Diana des Timotheos[10]. Die Statuenbasis dieser Gruppe barg die Sibyllinischen Bücher, die Augustus aus dem Tempel des Jupiter vom Kapitol hierher hatte bringen lassen. Des Weiteren stiftete Augustus goldene Dreifüße[11] und einen goldenen Leuchter in Form eines Apfelbaums in den Tempel[12].

Der von Augustus auf eigenem Grund und Boden verwirklichte Bau stand in enger Beziehung zum Wohnhaus des Augustus auf dem Palatin und war mit diesem direkt durch eine überwölbte Rampe verbunden. Nach dem Tod des Augustus wurde diese Verbindung aufgegeben. Eine nicht überlieferte Restaurierung des Tempels ist nachweisbar und vermutlich mit dem neronischen Brand in Verbindung zu bringen. Der Tempel wurde 363 n. Chr. durch einen Brand zerstört.

Den Tempel umgab eine Säulenhalle, die Portikus der Danaiden, mit Säulen aus gelbem Marmor (Giallo antico). Die Halle verdankte ihren Namen den Statuen der 50 Danaiden aus schwarzem Marmor, die in den Interkolumnien aufgestellt waren, einer Statue des Danaos mit gezogenem Schwert, und den Reiterstatuen der Söhne des Aigyptos.

Literatur

  • Lilian Balensiefen: Apollo Palatinus. Ein Kultgründungsvorhaben des jungen Caesar Divi Filius. In: Christine Schmitz, Anja Bettenworth (Hrsg.): Mensch – Heros – Gott. Weltentwürfe und Lebensmodelle im Mythos der Vormoderne. Franz Steiner Verlag, Stuttgart 2009, ISBN 978-3-515-09294-4, S. 67–89.
  • Gianfilippo Carettoni: Die Bauten des Augustus auf dem Palatin. In: Wolf-Dieter Heilmeyer u. a. (Hrsg.): Kaiser Augustus und die verlorene Republik. Ausstellung Berlin 1988. Philipp von Zabern, Mainz 1988, ISBN 3-8053-1007-2, S. 265–267.
  • Jens Fischer: Vates Apollinis, vates Augusti – Das Verhältnis des palatinischen Apollonheiligtums zu Orakeln und sein Einfluss auf das Selbstverständnis der zeitgenössischen Dichter. In: Graeco-Latina Brunensia. Band 26/2, 2021, S. 83–98 (Digitalisat).
  • Jens Fischer: Folia ventis turbata – Sibyllinische Orakel und der Gott Apollon zwischen später Republik und augusteischem Principat (= Studien zur Alten Geschichte. Band 33). Vandenhoeck & Ruprecht, Göttingen 2022.
  • Enrico Gallocchio, Patrizio Pensabene: Neue Forschungen zum augusteischen Komplex auf dem Palatin. In: Manuel Flecker u. a. (Hrsg.): Augustus ist tot – Lang lebe der Kaiser! Internationales Kolloquium anlässlich des 2000. Todesjahres des römischen Kaisers vom 20.–22. November 2014 in Tübingen. Verlag Marie Leidorf, Rahden/Westf. 2017, S. 157–202.
  • Eckard Lefèvre: Das Bildprogramm des Apollotempels auf dem Palatin. Universitätsverlag, Konstanz 1989, ISBN 3-87940-358-9.
  • Ralf Schenk: Der korinthische Tempel bis zum Ende des Prinzipats des Augustus (= Internationale Archäologie. Band 45). Verlag Marie Leidorf, Espelkamp 1997, ISBN 978-3-89646-317-3, S. 107–109.
  • Maria Josè Strazzulla: Il principato di Apollo. Mito e propaganda nelle lastre Campana del tempio di Apollo Palatino. „L’Erma“ di Bretschneider, Rom 1990, ISBN 88-7062-704-7.
  • Stephan Zink: Old and New Archaeological Evidence for the Plan of the Palatine Temple of Apollo. In: Journal of Roman Archaeology. Band 25, 2012, S. 388–402.

Einzelnachweise

  1. Sueton, Augustus 29, 2; Cassius Dio 49, 15, 5; Velleius Paterculus 2, 81.
  2. Cassius Dio 53, 1, 3; Properz 2, 31,1-6; 4, 1, 1-4.
  3. Sueton, Augustus 29,3.
  4. 2, 31,9.
  5. Plinius, naturalis historia 36, 11-13.
  6. Properz 2, 31, 11.
  7. Properz 2, 31,12–14.
  8. Plinius, naturalis historia 36, 24.
  9. Plinius, naturalis historia 36, 25.
  10. Plinius, naturalis historia 36, 5, 32.
  11. Augustus, Res gestae 24.
  12. Plinius, naturalis historia 34, 14.

Koordinaten: 41° 53′ 20″ N, 12° 29′ 9″ O