AMCO-Fabrikerweiterungsgebäude

Das AMCO-Fabrikerweiterungsgebäude ist ein im Jahr 1925 in Kirchbrak in Niedersachsen errichtetes Fabrikgebäude des holzverarbeitenden Unternehmens August Müller & Co. (AMCO). Es wurde von den Architekten Walter Gropius und Ernst Neufert entworfen und war ihr erster Auftrag nach der Übersiedlung des Bauhauses von Weimar nach Dessau.
Beschreibung



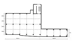
Das dreigeschossige und teilunterkellerte Fabrikgebäude hat in seiner ursprünglichen Form eine Länge von 26 Meter und eine Breite von 16 Meter und stellt einen sogenannten „abgetreppten Kopfbau“ dar. Es ist über 14 Meter hoch und verfügt über ein begehbares Flachdach aus Hohlblocksteinen. Das Gebäude erstreckt sich in Nord-Süd-Richtung. An der Nordseite setzt ein eingeschossiger Vorbau von 20 Meter Länge und fünf Meter Breite an. Der Bau ist eine Stahlskelettkonstruktion mit Geschosshöhen von jeweils 4 Meter. Der Grundriss weist ein Raster von 7,6 Meter × 5 Meter auf und ist durch sechs Stützen gegliedert. Die nichttragenden Giebelwände bestehen aus Mauerwerk. Die östliche Gebäudeflucht von insgesamt 46 Meter Länge liegt entlang der stillgelegten Bahnstrecke der ehemaligen Vorwohle-Emmerthaler Eisenbahn-Gesellschaft.
An der westlichen Gebäudeseite befindet sich ein Turmbau mit Treppenhaus und Aufzug. Auf der West- und der Ostseite wird jedes der drei Geschosse auf der gesamten Front durch ein 3,3 Meter hohes Fensterband belichtet, das drei Reihen von hochrechteckigen und eisengerahmten Fenstern mit blauem Anstrich bilden. Ursprünglich hatte das Fabrikerweiterungsgebäude eine für die Klassische Moderne typische weiße Fassade, die heute einen gelben Anstrich aufweist.
Das Gebäude ist, abgesehen von der Front zur ehemaligen Bahnstrecke, an den übrigen drei Seiten von weiterem Gebäudebestand des Unternehmens umgeben. Die späteren An- und Umbauten haben den Grundcharakter des Gebäudes nicht wesentlich verändert. In den 1930er Jahren kam es zu einer Aufstockung des eingeschossigen Vorbaus um ein Geschoss und eine Erweiterung nach Süden durch ein stilgleiches Fabrikgebäude.
Die drei Geschosse des Fabrikerweiterungsgebäudes dienten ursprünglich dem Produktionsbetrieb in der Holzverarbeitung. Heute wird das Gebäude als Lagerhalle genutzt.[1]
Geschichte
AMCO-Unternehmensgeschichte
Das Unternehmen August Müller & Co. (AMCO) ging aus der Oberen Mühle in Kirchbrak hervor, die der aus dem Nachbarort Breitenkamp stammende August Müller 1849 pachtete. Sein gleichnamiger Neffe August Müller übernahm 1878 die an der Lenne liegende Wassermühle und nutzte sie zum Antrieb von Kreissägen zur Holzbearbeitung.[2] Daraus entstand ein Holzwerk mit 250 Beschäftigten, das wesentlich zum Wohlstand der Gemeinde Kirchbrak und ihrer Bewohner beitrug. Mitte der 1920er Jahre partizipierte das Unternehmen am Aufschwung der deutschen Wirtschaft durch den Dawes-Plan. Dadurch verbesserte sich die Auftragslage derart, dass dringender Bedarf an einer Erweiterung der Produktionsanlagen bestand, was 1925 zum Bau des Fabrikerweiterungsgebäudes führte. 1987 kam es zu einer Neuausrichtung des Betriebs[3] und 2016 zur Übernahme durch ein Holzverarbeitungsunternehmen aus Süderbrarup, wobei der Standort in Kirchbrak weiterhin unter dem Namen AMCO firmiert.[4]
Fabrikerweiterung

Im Jahr 1925 beauftragte der Unternehmer August Müller als Inhaber der AMCO das Bauatelier Walter Gropius mit der Errichtung eines Erweiterungsbaus, den die angestiegene Produktion erforderlich machte. Der Kontakt kam auf Vermittlung von Carl Benscheidt aus dem nahe gelegenen Alfeld zustande, für den Gropius 1911 das Fagus-Werk als modernen Industriebau errichtet hatte. Es wird angenommen, dass August Müller sich als Anhänger der Mazdaznan-Bewegung für Gropius als Architekt entschieden hatte, da die Bewegung durch Johannes Itten das Bauhaus kurzzeitig prägte. Das Bauatelier Walter Gropius arbeitete einen detaillierten Kostenvoranschlag aus und schrieb die Bauarbeiten aus, worauf sich fünf lokale und auswärtige Unternehmen bewarben. Die Angebote beliefen sich auf Summen zwischen 70.000 und 100.000 Reichsmark und eine Bauzeit zwischen 54 und 80 Tagen.
Bauarbeiten
Den Zuschlag für die Bauarbeiten erhielt die Eisenbeton-Bauunternehmung Robert Grastorf GmbH in Hannover-Wülfel,[5] die die Arbeiten mit rund 50 Mitarbeitern ausführte und auch für die statischen Berechnungen verantwortlich war. Sie hatte die kürzeste Bauzeit angegeben und erschien dem Bauatelier Walter Gropius als hinreichend erfahren im Umgang mit dem Eisenbetonbau, da sie das Pförtnerhaus des Fagus-Werks errichtet hatte.[6] Die Kosten für den Neubau wurden mit 75.870,61 Reichsmark veranschlagt. Der Zeitplan für die Errichtung war zunächst auf den 9. Juli 1925 als Baubeginn und eine Fertigstellung zum 9. September desselben Jahres festgesetzt („sofern nicht streiks, eingriffe höherer gewalt, feuer usw. die arbeit hindern […] für den fall nicht rechtzeitiger fertigstellung der bauarbeiten ist die bauleitung befugt für jeden tag […] eine vertragsstrafe von mk 100 Mark (…) zu erheben“). Am 18. Juli 1925 wurde durch das Atelier Walter Gropius beim Hochbauamt Holzminden ein Antrag auf „sofortige vorläufige baugenehmigung“ für den „fabrikneubau August Müller & Co. Kirchbraack“ gestellt. Die zusätzlich anfallenden Putz- und Maurerarbeiten erfolgten durch den Maurermeister Ferdinand Lieben in Scharfoldendorf. Es entstand ein dreigeschossiger Massivbau mit einer lichten Durchgangshöhe von 4 Meter sowie ein eingeschossiger Vorbau und eine Unterkellerung des Treppenhauses einschließlich Fahrstuhlschacht. Architektonisch sollte der Komplex sich an folgende Vorgaben halten „schlichten formen dem zweck entsprechend, aussenputz, als anpassung an die umliegenden bauernhäuser, fenster aus eisen, farbig gestrichen“.[7] Der Rohbau wurde am 26. Oktober 1925 fertiggestellt, und die Bauabnahme durch das Hochbauamt Holzminden erfolgte am 31. Oktober 1925. Mit der Produktion von Möbeleinzelteilen im Erweiterungsgebäude konnte nach der Erteilung der Betriebsgenehmigung am 20. April 1926 nach 10 Monaten Planungs- und Bauzeit begonnen werden.
Baumängel
Kurz vor Ablauf der zweijährigen Garantiezeit traten Anfang 1928 schwerwiegende Baumängel durch Risse am Fabrikerweiterungsgebäude auf; es war in der Horizontalen um einige Zentimeter verschoben. Der Architekt Ernst Neufert ließ durch seinen Weimarer Kollegen Max Weber ein Gutachten zur Schadensursache erstellen. Er kam zu dem Schluss, dass die Ursache in dem nicht fachgerechten Verbau von Eisenträgern in der Dachkonstruktion zu suchen war. Laut Neufert habe das Bauunternehmen unerfahrene örtliche Handwerker beschäftigt, um den Kostennachlass in der Angebotskalkulation wett zu machen. Das Bauunternehmen wiederum schob die Schuld für die Baumängel den Architekten Gropius und Neufert wegen ungenügender Bauleitung zu. Sie hätten den Bau über Telefon und Briefe abgewickelt und seien nur im Abstand von 30 Tagen vor Ort gewesen. Tatsächlich waren Gropius und Neufert während der Bauphase in zahllose Bauprojekte eingebunden und mit der Neuorganisation des Bauhauses in Dessau beschäftigt, sodass der Fabrikbau in Kirchbrak nur am Rande mitlief. Letztendlich behob das Bauunternehmen die Baumängel.
Denkmalschutz

Das Fabrikerweiterungsgebäude ist eines der wenigen Fabrikgebäude von Walter Gropius in Niedersachsen. Lange Zeit galt das als UNESCO-Welterbe ausgezeichnete Fagus-Werk in Alfeld als sein einziger Industriebau in dem Land.[8] Weitere Gebäude im Bauhaus-Stil sind ein Lagergebäude einer Landmaschinenfabrik in Alfeld von 1924 und eine Papierfabrik in Gronau von 1923. Als Bauwerk von Gropius wurde das AMCO-Fabrikerweiterungsgebäude einer breiten Öffentlichkeit erst durch einen Pressebericht des NDR im März 2019 bekannt. Die Berichterstattung stand im Zusammenhang mit dem 100-jährigen Jubiläum der Gründung des Bauhauses im Jahr 1919. Bereits um das Jahr 2009 will ein Bürger aus Kirchbrak das Fabrikgebäude der Denkmalbehörde des Landkreises Holzminden als mögliches schutzwürdiges Bauwerk gemeldet haben. Der Landkreis habe nicht reagiert.[9] Das Niedersächsische Landesamt für Denkmalpflege führte im Jahr 2019 das Gebäude noch nicht als Baudenkmal in der niedersächsischen Denkmalliste. Die Behörde initiierte eine Unterschutzstellung[10][11], die 2020 erfolgte. Anschließend gab die Gemeindeverwaltung bekannt, das Gebäude für Besucher zu öffnen.[12]
Architekturgeschichtliche Einordnung


Architekturhistoriker bewerten das AMCO-Fabrikerweiterungsgebäude folgendermaßen: „…sein äußeres demonstriert noch heute die klare sprache einer vordergründig zweckrationalen industriearchitektur, die allerdings keine architekturgeschichte schreiben konnte.“[13] Des Weiteren sei der Fabrikbau aus demselben Geist wie das Bauhausgebäude in Dessau entwickelt worden, was sich anhand der Konstruktionsprinzipien zeige. Dies gelte insbesondere für die Auflösung der Längswände durch waagerechte Fensterbänder in Glas.[14] Diese durchlaufende Gebäudeverglasung gleicht dem zeitgleich errichteten Dessauer Bauhausgebäude und sei charakteristisch für den Baustil von Gropius. Die von ihm geforderte künstlerische Überhöhung von Fabrikarchitektur ist allerdings hier nicht erkennbar.[15] Nach Reiner Zittlau vom Niedersächsischen Landesamt für Denkmalpflege hat Gropius dem Industriebau seinen Stempel aufgesetzt, es sei aber kein Schlüsselbau dieser Zeit.
Literatur
- Karin Wilhelm: Walter Gropius Industrie Architekt (= Schriften zur Architekturgeschichte und Architekturtheorie). Friedrich Vieweg & Sohn, Braunschweig / Wiesbaden 1983, ISBN 3-322-93810-7, S. 107–115, doi:10.1007/978-3-322-93810-7 (eingeschränkte Vorschau in der Google-Buchsuche – Pläne zum Bau mit Grundriss ab S. 270, eingeschränkte Ansicht, zugleich Dissertation an der Universität Marburg).
- Hartmut Probst, Christian Schädlich: Walter Gropius. Der Architekt und Theoretiker, Werkverzeichnis. Berlin, 1986, Teil 1, S. 286.
- Bernd Krämer: Der Architekt Walter Gropius im Leine- und Weserbergland. In: Jahrbuch Landkreis Holzminden. Band 10/11, 1992/1993, S. 75–87.
- Ulf Meyer, Hans Engels: Walter Gropius, Ernst Neufert. Fabrikerweiterung August Müller & Co. / August Müller & Co. Production Hall, Kirchbrak. In: Bauhaus: 1919–1933. Prestel, München 2006, ISBN 3-7913-3613-4, S. 38–39.
- Wilhelm Klauser: BEL – „Da steht ein Gropius“ in: Bauwelt 16 vom 7. August 2018 (Online)
Weblinks
- AMCO-Fabrik im Denkmalatlas Niedersachsen
- Gropius-Bau in Kirchbrak: Versteckt und vergessen bei ndr.de vom 27. März 2019
- Bildliche Darstellung des Unternehmens „August Müller & Co. Kirchbrak. Sägewerk und Holzwarenfabrik. Mühlenbetrieb.“ vermutlich Anfang des 20. Jahrhunderts
- Ein zweites Gropius-Schätzchen schlummert im Weserbergland im Dornröschenschlaf. In: Holzmindener-Nachrichten. 27. März 2019
Einzelnachweise
- ↑ Sensation: Gropius-Bau in Kirchbrak entdeckt In: Deister- und Weserzeitung vom 28. März 2019.
- ↑ Werksgeschichte August Müller & Co. ( vom 28. März 2019 im Internet Archive)
- ↑ Amco Möbelindustrie aus Kirchbrak bei Wer zu wem Firmendatenbank.
- ↑ Martina Fuchs: Amco hat einen neuen Eigentümer. In: Deister- und Weserzeitung vom 4. Juli 2016.
- ↑ Industriekultur in den Regionen, in: Zeitschrift Industriekultur, Zeitschrift des Landschaftsverbandes Rheinland, Nr.2.19, S. 51
- ↑ Karin Wilhelm: Walter Gropius. Industriearchitekt, Vieweg, Braunschweig und Wiesbaden 1983, ISBN 3-528-08690-4, S. 48
- ↑ Karin Wilhelm: Walter Gropius. Industriearchitekt. Friedrich Vieweg & Sohn, Braunschweig / Wiesbaden 1983, ISBN 3-322-93810-7, S. 107–115, hier S. 108–109 (eingeschränkte Vorschau in der Google-Buchsuche).
- ↑ Georg Thomas: Geortet: AMCO GmbH – Gropius II bei Niedersächsische Wirtschaft vom 17. Juli 2019
- ↑ Webseite NDR.de/Kultur, Abruf am 4. April 2019
- ↑ Lange vergessen: Gropius-Bau in Kirchbrak entdeckt. In: Täglicher Anzeiger Holzminden vom 27. März 2019
- ↑ Denkmalschutz soll Gropius-Bau in Kirchbrak retten bei ndr.de vom 9. Juli 2020
- ↑ Denkmalschutz: Kirchbrak will Gropius-Bau für Gäste öffnen bei ndr.de vom 13. November 2020
- ↑ Siehe Literatur: Bernd Krämer: Der Architekt Walter Gropius im Leine- und Weserbergland. S. 84–85.
- ↑ Karin Wilhelm: Walter Gropius Industrie Architekt. S. 115.
- ↑ Ulf Meyer: Bauhaus 1919–1933. Prestel, München / Berlin / London / New York 2006, ISBN 3-7913-3613-4, S. 38.
Koordinaten: 51° 57′ 46,8″ N, 9° 34′ 47″ O